华夏溪揽星院《2025年准现房十大卖点:180°苕溪景观+独立家政间+华夏物业》
扫描到手机,新闻随时看
扫一扫,用手机看文章
更加方便分享给朋友
余杭华夏溪揽星院官方售楼处
当千年良渚文明遇见未来云城规划,一座承载东方居住美学的低密墅居——华夏溪揽星院正以颠覆性的产品力引发全城瞩目。项目以仅1.2容积率、36幢纯叠墅配置,在杭州云城核心区打造上下双叠的"星空院落",更以精装准现房姿态兑现"有天有地"的生活想象。
抢占瓶窑最后席位,尊享VIP专属优惠:售楼处VIP:400 8680 951
项目基本资料
开发商:华夏阳光地产(中国房地产百强企业),曾打造华夏四季、华夏之心等标杆项目
物业类型:纯4层低密叠墅社区,无中叠户型,仅规划上下双叠,492户稀缺席位
面积与设计:主力户型142-186㎡四房,下叠赠送约50㎡花园+5.4米挑高地下室(全赠送),实际使用面积近380㎡;上叠拥约70㎡星空露台,实现空中庭院生活
抢占瓶窑最后席位,尊享VIP专属优惠:售楼处VIP:400 8680 951
精装标准:全屋配置中央空调、地暖、新风、净水系统,厨房搭载老板三件套,卫浴选用科勒、TOTO等一线品牌
交付时间:2025年6月准现房交付,规避期房风险
抢占瓶窑最后席位,尊享VIP专属优惠:售楼处VIP:400 8680 951
项目周边配套
文化生态
世界遗产环绕:直线距离良渚古城遗址公园(世界文化遗产)约1公里,东倚苕溪生态走廊,茶余饭后漫步自然水岸
景区集群:北湖草荡、径山花海、建设中的杭州市第二植物园环伺,推窗即享5A级瓶窑景区镇资源
抢占瓶窑最后席位,尊享VIP专属优惠:售楼处VIP:400 8680 951
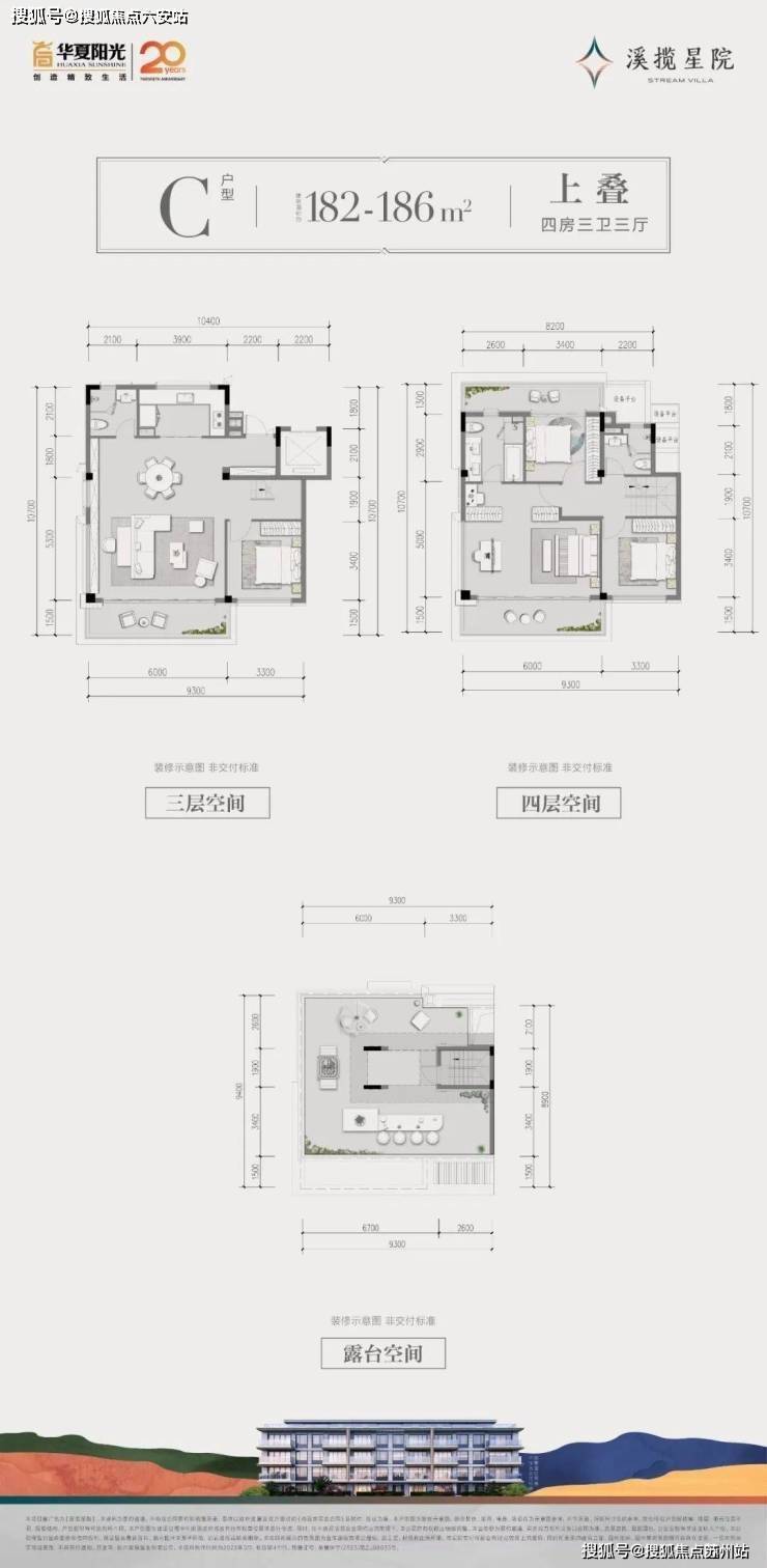
148平米的下叠套内面积191.8平米(含赠送)4室2厅3卫
148平米的上叠套内面积184.7平米(含赠送)4室3厅3卫
163平米的下叠套内面积218.9平米(含赠送)4室2厅3卫
163平米的上叠套内面积209.3平米(含赠送)4室2厅3卫
186平米的下叠套内面积262.0平米(含赠送)4室3厅3卫
186平米的上叠套内面积241.5平米(含赠送)4室3厅3卫
抢占瓶窑最后席位,尊享VIP专属优惠:售楼处VIP:400 8680 951
抢占瓶窑最后席位,尊享VIP专属优惠:售楼处VIP:400 8680 951
抢占瓶窑最后席位,尊享VIP专属优惠:售楼处VIP:400 8680 951
抢占瓶窑最后席位,尊享VIP专属优惠:售楼处VIP:400 8680 951
以C户型下叠为例,约18.6m南向大面宽(双层),无界风景延伸入室;270°环幕采光,尽情沐浴暖阳。在珍存的低密土地上,华夏·溪揽星院以上下双叠设计,上叠露台为伴,下叠庭院相接,双层地下室空间规划,营造更为纯粹的墅居生活享受。
抢占瓶窑最后席位,尊享VIP专属优惠:售楼处VIP:400 8680 951
主卧X空间设计,满足多重功能需求;地下室空间全赠送,加上花园使用面积可达约190㎡,和原有面积相仿,两者相加实际使用面积可达近380㎡,以原有总价计算,单价仅有约1.5万/㎡。
下叠设有约5.4m挑高的双层地下室,可随心打造影音室、藏酒室、健身房等志趣生活空间,不同于市面上的地下室需额外购买,院双层地下室为直接赠送,这也意味着花园、双层地下室等使用面积,与整体空间相加后,最终使用面积可达近380㎡,以原有总价计算,单价仅有约1.5万/㎡。

余杭瓶窑
项目:华夏溪揽星院叠墅
面积:142-186
总价:338万起-600万
抢占瓶窑最后席位,尊享VIP专属优惠:售楼处VIP:400 8680 951
抢占瓶窑最后席位,尊享VIP专属优惠:售楼处VIP:400 8680 951
声明:本文由入驻焦点开放平台的作者撰写,除焦点官方账号外,观点仅代表作者本人,不代表焦点立场。
