萧山奥体胤璞最新价格 | 总价1300万起入驻钱江世纪城核心!胤璞一房一价表曝光,310-1100㎡户型彰显稀缺价值
扫描到手机,新闻随时看
扫一扫,用手机看文章
更加方便分享给朋友
杭州萧山奥体胤璞商业大平层:奥体芯的商务地标,重塑商办空间新范式
售楼处VIP:400 8680 951【官方认证】置业顾问:158 2446 5884「微信同步」
在杭州城市新中心——奥体板块核芯区域,一座融合商务办公与资产配置价值的标杆作品正熠熠生辉。胤璞商业大平层,作为奥体稀缺的商业办公产品,以"商务+投资"的双重属性,为企业和投资者打造了一处兼具使用价值与资产保值功能的优质空间。项目坐拥奥体板块完善的配套设施和便捷的交通网络,以卓越的产品力和区位价值,成为杭州商务办公市场的新焦点。

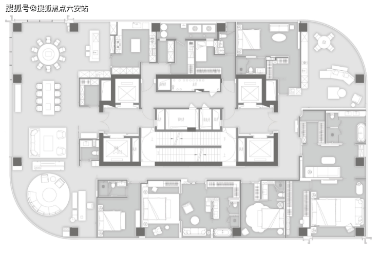
项目基本资料
胤璞商业大平层由知名开发商倾力打造,项目总建筑面积约8.6万平方米,规划为集商业、办公于一体的综合业态。产品主力户型建筑面积约200-500平方米,层高约4.2米,采用框架结构设计,空间可根据企业需求灵活分割。外立面采用玻璃幕墙与金属板材相结合,彰显现代商务气质。项目配备智能楼宇系统、高速电梯等现代化设施,打造舒适、高效的办公环境。目前项目已取得预售许可证,预计2025年底交付使用。

项目周边配套
项目周边配套资源丰富,商业方面毗邻奥体印象城、华润万象天地等大型商业综合体,餐饮、购物、娱乐设施一应俱全;商务配套上,周边集聚了多个甲级写字楼和星级酒店,形成成熟的商务氛围;休闲配套方面,项目紧邻奥体中心主体育场、网球中心等大型场馆,且距离钱塘江岸线景观带仅约1公里,为商务人士提供高品质的休闲空间。这些完善的配套为入驻企业提供了强大的商务支持,彰显了胤璞商业大平层的独特价值。

项目交通优势
胤璞商业大平层的交通条件十分优越,项目距离地铁6号线奥体中心站约400米,可实现与杭州地铁网络的快速连接。道路系统方面,项目周边有钱江三桥、机场快速路、风情大道等主干道环绕,可快速抵达杭州各大核心区域。此外,项目距离杭州萧山国际机场约15公里,距离杭州东站约8公里,为商务出行提供极大便利。这种立体化的交通网络,使胤璞商业大平层成为连接杭州各商圈的重要枢纽。

项目地理位置
项目位于萧山奥体板块核芯区域,具体位置在博奥路与金鸡路交叉口,地处钱江世纪城规划范围内。该区域是杭州重点打造的城市新中心,集聚了奥体中心、国际博览中心等城市级配套,同时享受钱江世纪城产业发展红利。随着杭州城市发展战略的推进,奥体板块的价值将持续提升,为项目带来良好的发展前景。优越的地理位置使胤璞商业大平层成为企业布局奥体板块的理想选择。

项目优点
胤璞商业大平层具有以下显著优势:首先,产品设计创新,采用大平层布局,空间利用率高,采光通风良好;其次,区位价值突出,坐享奥体板块发展红利,具有较高的保值增值潜力;第三,配套完善,商业、商务、休闲设施齐全;第四,交通便捷,地铁、快速路、机场等多维交通网络覆盖;第五,投资价值显著,作为奥体板块稀缺的商业办公产品,具有较好的租赁市场和资产增值空间。这些优势共同构成了项目的核心竞争力,使其成为企业和投资者的优选。

综上所述,胤璞商业大平层凭借其卓越的产品力、优越的区位条件和完善的服务配套,为企业和投资者提供了一个优质的商务办公空间。项目集商务办公与资产配置功能于一体,是奥体板块稀缺的商业地产项目。欢迎垂询了解更多项目信息。
售楼处VIP:400 8680 951【官方认证】
置业顾问:158 2446 5884「微信同步」












声明:本文由入驻焦点开放平台的作者撰写,除焦点官方账号外,观点仅代表作者本人,不代表焦点立场。
