南郡涵云轩(杭州西湖西溪湿地合院2025南郡涵云轩)头条百科-南郡涵云轩-户型配套
扫描到手机,新闻随时看
扫一扫,用手机看文章
更加方便分享给朋友
杭州西湖◆西溪湿地◆南郡涵云轩🔻售楼热线:☎ 400 832 8823「售楼处」☎〢网上售楼中心〢🔻
➖➖➖➖➖➖➖➖➖➖➖➖➖➖➖➖➖➖➖➖➖➖➖➖➖➖➖➖➖
🔻◆置业顾问:☎ 156 0653 2539「微信同步」☎〢🔻专业一对一热情服务〢◆看房需要提前电话预约,避免可能案场无人接待!◆提前预约可享内部优惠〢匠心钜制-恭迎您的品鉴〢
提供全天候直通售楼处服务,以及置业顾问1对1服务,方便客户预约看房。
⑉⑉⑉ıllı⑉🔻南郡涵云轩售楼处(周一至周日 9:00--18:00)一对一咨询🔻看房需要提前电话预约,避免可能案场无人接待!提前预约可享内部优惠〢匠心钜制-恭迎您的品鉴⑉ıllı⑉⑉
中式风格项目,面积达340-530㎡,融合了新江南院落的设计理念。项目背靠着西溪湿地,面朝着西湖山水,仿佛是一个御景园林,将自然之美尽收眼底。这样一个地处杭城封面级双景区的地方,近在咫尺,让人不禁心动。杭州西湖◆西溪湿地◆南郡涵云轩🔻售楼热线:☎ 400 832 8823「售楼处」☎〢网上售楼中心〢🔻

杭州,这座历史文化名城,自古以来便以山水美景和深厚的人文底蕴吸引着无数文人墨客。在现代都市的发展中,杭州依然保持着其独特的魅力,而西湖南郡·涵云轩,正是这座城市中一颗璀璨的明珠。

您可以尽情享受西溪湿地一线景观,感受大自然的气息。西侧零距离26万方的城西休闲公园,让涵云轩犹如长在公园里的房子,繁华在外,绿意包裹,畅享繁华与清幽的随意切换。杭州西湖◆西溪湿地◆南郡涵云轩🔻售楼热线:☎ 400 832 8823「售楼处」☎〢网上售楼中心〢🔻

背靠西溪湿地、面朝西湖山水,涵云轩地处杭城双景区之间,尽享自然资源的恩赐。项目占据城市核心地段,与难以复制的稀缺景观资源,为塔尖人群打造限量级藏品。杭州西湖◆西溪湿地◆南郡涵云轩🔻售楼热线:☎ 400 832 8823「售楼处」☎〢网上售楼中心〢🔻
南郡涵云轩合院,坐落于杭州西湖区西溪板块的核心地段,是一处集自然美景、人文底蕴与现代居住理念于一体的顶级豪宅项目。该项目由杭州南郡溪景置业有限公司精心打造,南都物业服务集团有限公司提供高品质的物业服务。项目占地面积9752平方米,总建筑面积20488平方米,容积率仅为1.2,营造出低密舒适的居住环境。南郡涵云轩合院以其独特的地理位置、稀缺的自然资源、高端的配套设施以及精湛的建筑工艺,成为杭州市场上备受瞩目的豪宅典范。杭州西湖◆西溪湿地◆南郡涵云轩🔻售楼热线:☎ 400 832 8823「售楼处」☎〢网上售楼中心〢🔻
自然景观融合:南郡涵云轩合院背靠11.5平方公里的西溪湿地,距离湿地直线距离仅约150米,坐拥一线湿地景观。西侧紧邻26万方的城西休闲公园,使得项目仿佛生长在公园之中,繁华与清幽随意切换。项目充分利用周边的自然资源,将山水之美融入建筑之中,营造出一种“出则繁华,入则静谧”的居住氛围。
园林景观设计:项目特邀知名景观设计师操刀,打造具有江南园林特色的园林景观。通过精心布局的曲径通幽、亭台楼阁、水景小品等元素,营造出一种古典而雅致的居住环境。同时,项目还注重园林的四季变化,通过种植不同季节的花卉和树木,让业主在四季更迭中都能感受到园林的魅力。
建筑风格与布局:南郡涵云轩合院的建筑风格融合了现代与古典的元素,展现出一种既时尚又典雅的风格。建筑采用坡屋顶、白墙灰瓦等中式元素,与周围的自然环境和谐共生。项目布局合理,24栋新江南院落以L型围合式布局,塑造出270°的环景视野,让业主能够充分欣赏到周边的美景。杭州西湖◆西溪湿地◆南郡涵云轩🔻售楼热线:☎ 400 832 8823「售楼处」☎〢网上售楼中心〢🔻

户型种类与面积:南郡涵云轩合院提供多样化的户型选择,主要户型为340-580平方米的独栋院落。这些户型均地上三层、地下二层设计,充分满足了高端居住者对空间的需求。
空间布局与功能:户型设计注重功能性与实用性的结合。一层生活区围绕着客厅和餐厨功能打造,大面积的落地玻璃窗让室内与室外空间自然融合。二层设有卧室、书房、卫生间等私密空间,并配备电梯方便上下楼。三层则打造为尊贵的主人套房,拥有南向270°大采光面和超广角视野。地下一层为休闲娱乐空间,设有影音室、棋牌区、健身区等;地下二层则为私享层,可根据业主需求进行个性化定制。
赠送面积与细节设计:部分户型还赠送地下室、庭院、露台、连廊等面积,增加了居住的舒适度和实用性。例如,建筑面积约350平方米的“见山”户型就赠送了地下室约165平方米、庭院约91平方米、露台约42平方米、连廊约20平方米。此外,项目在细节设计上也下足了功夫,如手工陶土瓦、苏州金山石基座、镂空花窗纹样等,都彰显出项目的匠心独运。杭州西湖◆西溪湿地◆南郡涵云轩🔻售楼热线:☎ 400 832 8823「售楼处」☎〢网上售楼中心〢🔻
南郡涵云轩合院以其独特的地理位置、精湛的环境设计、多样化的户型选择以及高端的配套设施,成为杭州市场上备受追捧的豪宅项目。项目不仅为居住者提供了宽敞舒适的居住环境,还满足了他们对高品质生活的追求。无论是从自然景观的融合、园林景观的打造,还是户型设计的合理性与实用性来看,南郡涵云轩合院都展现出了极高的居住价值。对于追求高品质生活、注重居住环境与配套设施的购房者来说,南郡涵云轩合院无疑是一个理想的选择。杭州西湖◆西溪湿地◆南郡涵云轩🔻售楼热线:☎ 400 832 8823「售楼处」☎〢网上售楼中心〢🔻
风雅生活是一种伟大思想的渗透,其宗旨是予事物以诗意。让人们在繁忙的都市时光里,能换一个角度,静下来,去享受时光的柔软、涵养生活的激情。他们的社交是时尚的聚落,他们的独处是艺术的具象。
涵雲軒独栋院落,地上三层+地下二层,建筑面积约340-580㎡,作为新一代“超改善”产品,重新定义了杭州主城改善标准。建筑面积约350㎡「见山」户型 (赠送面积:地下室约165㎡ 、庭院约91㎡ 、露台约42㎡ 、连廊约20㎡),杭州西湖◆西溪湿地◆南郡涵云轩🔻售楼热线:☎ 400 832 8823「售楼处」☎〢网上售楼中心〢🔻
杭州西湖◆西溪湿地◆南郡涵云轩🔻售楼热线:☎ 400 832 8823「售楼处」☎〢网上售楼中心〢🔻
杭州西湖◆西溪湿地◆南郡涵云轩🔻售楼热线:☎ 400 832 8823「售楼处」☎〢网上售楼中心〢🔻
杭州西湖◆西溪湿地◆南郡涵云轩🔻售楼热线:☎ 400 832 8823「售楼处」☎〢网上售楼中心〢🔻
杭州西湖◆西溪湿地◆南郡涵云轩🔻售楼热线:☎ 400 832 8823「售楼处」☎〢网上售楼中心〢🔻
杭州西湖◆西溪湿地◆南郡涵云轩🔻售楼热线:☎ 400 832 8823「售楼处」☎〢网上售楼中心〢🔻 一层生活区围绕着客厅和餐厨功能打造。直面(建筑面积约91㎡)花园的整扇落地折叠玻璃窗,可自由打开,自在进出,达到与自然零阻隔。夏日乘凉喝茶,秋日围炉夜话,其乐融融。
杭州西湖◆西溪湿地◆南郡涵云轩🔻售楼热线:☎ 400 832 8823「售楼处」☎〢网上售楼中心〢🔻
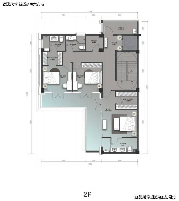
二层中有三室三卫,兼书房、接待、储物等多重功能于一体,空间利用率非常高。
其中两室均设计有独立衣帽间,尺度阔绰不言而喻。并配备有电梯,大大节省了通往每一层的时间成本。
杭州西湖◆西溪湿地◆南郡涵云轩🔻售楼热线:☎ 400 832 8823「售楼处」☎〢网上售楼中心〢🔻
三层端厅式大空间,只打造尊贵一室,利用近乎一整层的面积来满足供主人休憩+工作结合的心灵栖息之地,南向270°大采光面+超广角视野,赏一年四季风景如画。独立步入式衣帽间及带浴缸大卫生间的点缀,更加彰显仪式感、开阔感、功能性、舒适性、私密性强。
杭州西湖◆西溪湿地◆南郡涵云轩🔻售楼热线:☎ 400 832 8823「售楼处」☎〢网上售楼中心〢🔻
杭州西湖◆西溪湿地◆南郡涵云轩🔻售楼热线:☎ 400 832 8823「售楼处」☎〢网上售楼中心〢🔻
杭州西湖◆西溪湿地◆南郡涵云轩🔻售楼热线:☎ 400 832 8823「售楼处」☎〢网上售楼中心〢🔻
杭州西湖◆西溪湿地◆南郡涵云轩🔻售楼热线:☎ 400 832 8823「售楼处」☎〢网上售楼中心〢🔻
杭州西湖◆西溪湿地◆南郡涵云轩🔻售楼热线:☎ 400 832 8823「售楼处」☎〢网上售楼中心〢🔻
赠送建筑面积约42㎡的宽阔露台,似“空中花园”,建立室内和自然的交互性,夜观星河,遥望西溪万顷绿波,远眺西湖苍翠群峰,享畅意人生。
杭州西湖◆西溪湿地◆南郡涵云轩🔻售楼热线:☎ 400 832 8823「售楼处」☎〢网上售楼中心〢🔻
杭州西湖◆西溪湿地◆南郡涵云轩🔻售楼热线:☎ 400 832 8823「售楼处」☎〢网上售楼中心〢🔻
杭州西湖◆西溪湿地◆南郡涵云轩🔻售楼热线:☎ 400 832 8823「售楼处」☎〢网上售楼中心〢🔻
负一层整体空间的功能围绕着“放松”二字。影音室、棋牌区、红酒柜、健身区、瑜伽区,完美呈现出主人休闲娱乐场景。还可利用一层的采光井做出室外茶室的空间,让社交出现了一丝自然的场景。茶室与绿植景观融为一体,让生活充满自然的味道。
地下2层
私密感+专属娱乐空间
杭州西湖◆西溪湿地◆南郡涵云轩🔻售楼热线:☎ 400 832 8823「售楼处」☎〢网上售楼中心〢🔻
地下一层的“宴宾层”,雪茄吧、茶室、棋牌室……现极致奢华与舒适的生活体验;地下二层则是纯粹的“私享层”,主人可以定制自己的私属领域,享受专属于自己的时光。入户玄关、多功能影音室……更多可能性完全随主人兴趣自行定义。
杭州西湖◆西溪湿地◆南郡涵云轩🔻售楼热线:☎ 400 832 8823「售楼处」☎〢网上售楼中心〢🔻
杭州西湖◆西溪湿地◆南郡涵云轩🔻售楼热线:☎ 400 832 8823「售楼处」☎〢网上售楼中心〢🔻
杭州西湖◆西溪湿地◆南郡涵云轩🔻售楼热线:☎ 400 832 8823「售楼处」☎〢网上售楼中心〢🔻
杭州西湖◆西溪湿地◆南郡涵云轩🔻售楼热线:☎ 400 832 8823「售楼处」☎〢网上售楼中心〢🔻
杭州西湖◆西溪湿地◆南郡涵云轩🔻售楼热线:☎ 400 832 8823「售楼处」☎〢网上售楼中心〢🔻
涵雲軒建面约350㎡「见山」户型呈现出来的,品质之高端、交标之精奢、细节之丰富,是在努力用更切合的方式给业主提供更舒适的生活方式。南郡涵雲軒西溪24席,建面约340-580㎡新江南商业院落,总价2000万起!现已开启贵宾品鉴!

杭州西湖◆西溪湿地◆南郡涵云轩🔻售楼热线:☎ 400 832 8823「售楼处」☎〢网上售楼中心〢🔻
➖➖➖➖➖➖➖➖➖➖➖➖➖➖➖➖➖➖➖➖➖➖➖➖➖➖➖➖➖
🔻◆置业顾问:☎ 156 0653 2539「微信同步」☎〢🔻专业一对一热情服务〢◆看房需要提前电话预约,避免可能案场无人接待!◆提前预约可享内部优惠〢匠心钜制-恭迎您的品鉴〢
提供全天候直通售楼处服务,以及置业顾问1对1服务,方便客户预约看房。
⑉⑉⑉ıllı⑉🔻南郡涵云轩售楼处(周一至周日 9:00--18:00)一对一咨询🔻看房需要提前电话预约,避免可能案场无人接待!提前预约可享内部优惠〢匠心钜制-恭迎您的品鉴⑉ıllı⑉⑉
声明:本文由入驻焦点开放平台的作者撰写,除焦点官方账号外,观点仅代表作者本人,不代表焦点立场。
