涵云轩坐落在杭州西湖区,中式风格项目,面积达340-530㎡,融合了新江南院落的设计理念。涵雲軒建面约350㎡「见山」户型呈现出来的,品质之高端、交标之精奢、细节之丰富,是在努力用更切合的方式给业主提供更舒适…
杭州西湖合院◆西溪湿地◆南郡涵云轩🔻售楼热线:☎ 400 832 8823「售楼处」☎〢网上售楼中心〢🔻
➖➖➖➖➖➖➖➖➖➖➖➖➖➖➖➖➖➖➖➖➖➖➖➖➖➖➖➖➖
🔻◆置业顾问:☎ 156 0653 2539「微信同步」☎〢🔻专业一对一热情服务〢◆看房需要提前电话预约,避免可能案场无人接待!◆提前预约可享内部优惠〢匠心钜制-恭迎您的品鉴〢
提供全天候直通售楼处服务,以及置业顾问1对1服务,方便客户预约看房。
⑉⑉⑉ıllı⑉🔻南郡涵云轩售楼处(周一至周日 9:00--18:00)一对一咨询🔻看房需要提前电话预约,避免可能案场无人接待!提前预约可享内部优惠〢匠心钜制-恭迎您的品鉴⑉ıllı⑉⑉

挥一挥衣袖,总有一片你带不走的云彩,无论身在何方,它依旧未改。如果它叫江南,则西溪更甚。西溪,从来都是一个心灵扎根的地方,永远安静影响着世界的地方。这是心中的原乡,走过世界,更懂江南的西溪、西溪的江南。
地处西溪板块核心,北面就是11.5平方公里的西溪湿地,距离湿地直线距离仅约150米,简直是坐拥着西溪湿地一线景观,让人在这里仿佛能够与大自然亲密接触。艺术,是涵云轩的生活底色。我们希望在自然与建筑之间找到平衡点, 用现代时尚的韵味,回应中式意境的美学。杭州西湖合院◆ 西溪湿地◆ 南郡涵云轩🔻售楼热线:☎ 400 832 8823「售楼处」☎〢网上售楼中心〢🔻

涵云轩的建筑在尽可能范围内,吸收江南院落的坡屋顶、白墙灰瓦、山水景墙等中式风骨,放眼望去,见阳光洒下、韵律辉映,将周围青山绿水映衬出更浓郁的自然之色,绿与白,深浅相照,自然与建筑,完美交融。

天朗气清时,水墨色与美国白金石的金绿辉映,交织出一种奢华但又深邃的沉静感。保证绝对的隐私性和生活品味。台阶、格栏、水系、亭台、树柏,层层递进,涵雲軒在追求美学的同时,做出了真正意义上的“隐奢”入口。外界无法一眼窥尽全貌,更添高门大户之神秘感。

涵雲軒,左拥西溪、右抱西湖,静揽双西;双西自古为杭州名片,将院落置于此间者,非王公大族难以介入。放眼杭州,能兼得如此生态、人文与繁华的,没有哪个区域能与之匹敌。

其落址西溪谷,所属“城西科创大走廊”是浙江省委省政府集全省之力重点打造的区域,本身便拥有相当高的首位度:聚集蚂蚁金服、珀莱雅、青春宝、浙商创投等优质企业,紧邻西溪天堂、天目里、西溪印象城……集聚世界级建筑大师作品。

在设计方面,涵云轩更是精益求精。项目特邀UT设计创始人王旭、蓝颂设计/绿城环境景观设计师宋淑华、GOA乐空设计总经理姚路执笔,他们集合了大师的手笔,打造了“一园一苑两街四巷24院”的禅意雅境。这种设计理念,将传统与现代相结合,让人在这里感受到了极致的美好。
涵雲軒24栋新江南院落,承继宋代美学的人文传统,打造纯正的三层低密建筑,以L型围合式布局塑造270°的环景视野,雅集山水,坐望未来,既是城市价值的全新承载,又是具有全新时代刻度的人文坐标。

涵云轩坐落在杭州西湖区,中式风格项目, 面积达340-530㎡,融合了新江南院落的设计理念。项目背靠着西溪湿地,面朝着西湖山水,仿佛是一个御景园林,将自然之美尽收眼底。这样一个地处杭城封面级双景区的地方,近在咫尺,让人不禁心动


风雅生活是一种伟大思想的渗透,其宗旨是予事物以诗意。 让人们在繁忙的都市时光里,能换一个角度,静下来,去享受时光的柔软、涵养生活的激情。他们的社交是时尚的聚落,他们的独处是艺术的具象。
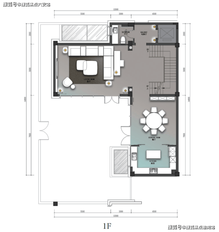
涵雲軒独门独户院落,地上三层+地下二层,建筑面积约340-580㎡,作为新一代“超改善”产品,重新定义了杭州主城改善标准。 建筑面积约350㎡「见山」户型 (赠送面积:地下室约165㎡ 、庭院约91㎡ 、露台约42㎡ 、连廊约20㎡) ,



一层生活区围绕着客厅和餐厨功能打造。直面(建筑面积约91㎡)花园的整扇落地折叠玻璃窗,可自由打开,自在进出,达到与自然零阻隔。夏日乘凉喝茶,秋日围炉夜话,其乐融融。


二层中有三室三卫,兼书房、接待、储物等多重功能于一体,空间利用率非常高。
其中两室均设计有独立衣帽间,尺度阔绰不言而喻。并配备有电梯,大大节省了通往每一层的时间成本。

三层端厅式大空间,只打造尊贵一室,利用近乎一整层的面积来满足供主人休憩+工作结合的心灵栖息之地,南向270°大采光面+超广角视野,赏一年四季风景如画。独立步入式衣帽间及带浴缸大卫生间的点缀,更加彰显仪式感、开阔感、功能性、舒适性、私密性强。



赠送建筑面积约42㎡的宽阔露台,似“空中花园”,建立室内和自然的交互性,夜观星河,遥望西溪万顷绿波,远眺西湖苍翠群峰,享畅意人生。


负一层整体空间的功能围绕着“放松”二字。影音室、棋牌区、红酒柜、健身区、瑜伽区,完美呈现出主人休闲娱乐场景。还可利用一层的采光井做出室外茶室的空间,让社交出现了一丝自然的场景。茶室与绿植景观融为一体,让生活充满自然的味道。
地下一层的“宴宾层”,雪茄吧、茶室、棋牌室……现极致奢华与舒适的生活体验;地下二层则是纯粹的“私享层”,主人可以定制自己的私属领域,享受专属于自己的时光。入户玄关、多功能影音室……更多可能性完全随主人兴趣自行定义。



涵雲軒建面约350㎡「见山」户型呈现出来的,品质之高端、交标之精奢、细节之丰富,是在努力用更切合的方式给业主提供更舒适的生活方式。南郡涵雲軒西溪24席,建面约340-580㎡新江南商业院落,总价2000万起!现已开启贵宾品鉴!

杭州西湖合院◆西溪湿地◆南郡涵云轩🔻售楼热线:☎ 400 832 8823「售楼处」☎〢网上售楼中心〢🔻
➖➖➖➖➖➖➖➖➖➖➖➖➖➖➖➖➖➖➖➖➖➖➖➖➖➖➖➖➖
🔻◆置业顾问:☎ 156 0653 2539「微信同步」☎〢🔻专业一对一热情服务〢◆看房需要提前电话预约,避免可能案场无人接待!◆提前预约可享内部优惠〢匠心钜制-恭迎您的品鉴〢
提供全天候直通售楼处服务,以及置业顾问1对1服务,方便客户预约看房。
⑉⑉⑉ıllı⑉🔻南郡涵云轩售楼处(周一至周日 9:00--18:00)一对一咨询🔻看房需要提前电话预约,避免可能案场无人接待!提前预约可享内部优惠〢匠心钜制-恭迎您的品鉴⑉ıllı⑉⑉