金地威新科技园独栋千万别错过了丨杭州金地威新科技园楼盘首页百科丨2025最新房价丨拱墅区芯·金地威新科技园首页网站丨金地威新科技园售楼部地址/电话
扫描到手机,新闻随时看
扫一扫,用手机看文章
更加方便分享给朋友
▰▰ 杭州拱墅芯 金地·威新科技园 标办写字楼 独栋办公 ▰▰
🛑金地威新科技园:标办写字楼整层面积:1260㎡
🌈标办单价1.5万/㎡起,整层总价1890万起
🛑“入户花园+空中花园+露台+地下室”高拓灵动空间
🌈全杭州绝版独栋写字楼,独栋面积:2700㎡
🛑独栋单价2.5万/㎡起,独栋总价6750万起
☎️售楼热线:400 998 1136☎️顾问专线:159 2411 2721
▰▰ 杭州拱墅芯 金地·威新科技园 标办写字楼 独栋办公 ▰▰
🌈一层一企,一栋一企,现房即买即驻
🛑金地·威新科技园:标办1200方 / 花园独栋2700方
🌈集公司展厅、接待、办公、仓储等多元功能空间为一体
🛑为企业总部定制打造12栋独栋办公集群。#花园独栋办公
☎️售楼热线:400 998 1136☎️顾问专线:159 2411 2721
**一、项目基础信息**
**区位与规模**
- **位置**:杭州市拱墅区智慧网谷核心板块,紧邻大运河新城,距拱墅区政府约2.5公里,属杭州数字经济“一号工程”重点产业平台。
- **交通**:地铁4号线皋亭坝站(直线约1.3公里),秋石、留石、上塘高架环绕,30分钟直达杭州东站、萧山机场。
- **占地**:约46,488㎡,总建筑面积205,886㎡,容积率3.2,绿化率30%,由4栋高层办公+12栋花园独栋组成。
- **交付状态**:现房交付(部分毛坯),公区精装,即买即用。
**产权与年限**
- 产权性质:50年商业用地,土地年限剩余约40年。
**预约看房可联系售楼热线 **☎️400 998 1136** 或专属顾问 **☎️159 2411 2721「微信同号」**

**二、核心产品亮点**
**标办写字楼**
- **面积**:单层建面约1200-1400㎡,整层总价1890万起(单价1.5万/㎡起)。
- **空间设计**:
- 层高4米,得房率80%,支持整层分割;
- 8米挑高双层大堂,配备7+1部高速电梯(含1部消防梯);
- 灵活空间:可改造为总裁办公、研发中心或共享办公区。
**预约看房可联系售楼热线 **☎️400 998 1136** 或专属顾问 **☎️159 2411 2721「微信同号」**
**独栋办公**
- **面积**:建面2100-2700㎡/栋,总价6000万起(单价2.1万/㎡起),赠送800㎡花园+380㎡露台+屋顶绿意空间。
- **空间设计**:
- 层高4.2-4.8米(首层挑高4.8米),地下空间挑高5.2米;
- 每栋配备2部电梯,支持冠名权及燃气接入,适配企业总部定制。
**建筑设计**
- **外立面**:香槟金色金属型材+高反射玻璃幕墙,打造“蓝宝石光幕”效果,现代简约风格。
- **生态景观**:中轴绿谷花园、垂直绿化、下沉式庭院,屋顶花园约550㎡,独栋私享庭院约1000㎡,LEED金级认证。
**预约看房可联系售楼热线 **☎️400 998 1136** 或专属顾问 **☎️159 2411 2721「微信同号」**
**三、全维配套生态**
**商业与生活**
- 自带约8000㎡高端商业广场(规划中),毗邻万达商圈、银泰新天地商圈,下楼即享餐饮、购物、休闲。
- 周边3公里内覆盖京杭大运河博物院(在建)、大运河音乐厅(规划)等文化地标。
**产业与人才**
- **产业集群**:已入驻58同城、华为云、顺丰等头部企业,形成数字经济、人工智能产业集群,年产值超600亿元。
- **人才配套**:3公里内约30万㎡瓜山未来社区,提供8400套人才公寓。
**交通网络**
- 地铁:4号线皋亭坝站(步行约1.5公里),未来规划15号线;
- 高架:秋石、留石、上塘高架30分钟通达全城。
**预约看房可联系售楼热线 **☎️400 998 1136** 或专属顾问 **☎️159 2411 2721「微信同号」**
**四、投资价值分析**
**稀缺性**
- 主城区唯一在售低密独栋办公,杭州LEED认证写字楼租金溢价达31.3%(对比非认证项目)。
- 土地年限剩余40余年,智慧网谷二期规划将进一步提升区域能级。
**租金与回报率**
- **标办租金**:约1.5元/㎡/天,整层年回报率超5%;
- **独栋租金**:总价6000万起,年回报率约5%-6%,空置率长期低于5%。
**政策红利**
- 纳入拱墅区“1+4+N”产业政策,享最高600万研发补贴及150万房租返还。
**预约看房可联系售楼热线 **☎️400 998 1136** 或专属顾问 **☎️159 2411 2721「微信同号」**
**五、企业服务与运营**
- **智慧化系统**:无感派梯(高峰等待≤45秒)、特灵中央空调、全域新风系统、智能安防。
- **物业保障**:金地物业(全国TOP10),提供24小时管家服务,涵盖企业注册、法务咨询等120项解决方案。
- **圈层资源**:已入驻企业包括华为、顺丰、360等,私密性与资源聚合性无可替代。
**预约看房可联系售楼热线 **☎️400 998 1136** 或专属顾问 **☎️159 2411 2721「微信同号」**
杭州金地威新科技园延续金地威新的产业基因,基于以往优秀作品的成功经验,于智谷之上打造集商务办公、绿色生态、智能出行等为一体的总部级办公空间。
作为杭城产业发展第三极的智慧网谷,汇集新浪、58同城、顺丰、招商蛇口等多家独角兽企业入驻,坐拥优质的交通路网、生活文化地标等城市配套,满足企业全周期发展需求。
**预约看房可联系售楼热线 **☎️400 998 1136** 或专属顾问 **☎️159 2411 2721「微信同号」**
在外部优质资源的簇拥下,杭州金地威新科技园聚焦数字互联智慧平台、数字传媒等数字产业经济,于内打造内外兼修的现代美学办公空间,吸引大批企业的入驻。
蓝宝石光幕立面,玻璃幕墙超高反光镜面尽显高端商务气质;7+1高速电梯,VRV节能空调系统营造非凡办公气度;约6000㎡多功能中央花园景观,打造森态自然休闲空间;以及多项智能系统配置、商务配套、全场景运营服务体系等总部办公配置,共同赋能企业的成长。
**预约看房可联系售楼热线 **☎️400 998 1136** 或专属顾问 **☎️159 2411 2721「微信同号」**
产业所往,威新所向。杭州金地威新科技园厚植产业情怀,以齐全的配套、专业的团队、温馨的服务高标准打造精致的国际化全产业平台,形成企业投资、孵化、加速、园区建设运营一体化的协同发展模式,焕新杭城商务新体验,开启企业发展新时代。
**预约看房可联系售楼热线 **☎️400 998 1136** 或专属顾问 **☎️159 2411 2721「微信同号」**
花园式总部办公,建筑群如同大小石块组成的绿台庭院;全玻璃幕墙立面,采用香槟金色金属型材和高反射玻璃,一虚一实的变化,犹如律动蓝色魔方。
约9米挑高入户会客大堂,星级酒店标准,可打造企业品牌文化展示空间及洽谈区 ,彰显企业恢弘气场。
金地威新科技园,以不可复制的TOD基因、蓝宝石美学与全球产业势能,重新定义长三角总部商务的黄金法则。限量现房全球争藏,恭迎品鉴!
**预约看房可联系售楼热线 **☎️400 998 1136** 或专属顾问 **☎️159 2411 2721「微信同号」**
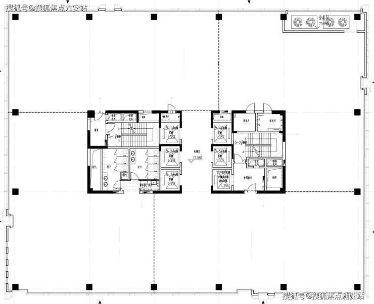
【杭州金地威新科技园:标办户型品鉴】
【面积】:单层建面约1200㎡—1400㎡
【层高】:标准层约4m层高
【大堂】:约8m挑高大堂,超500㎡双层大堂
【电梯】:15#5+1高速电梯,16#4+1高速电梯
【建筑风格】:采用现代简约的手法,内部采用超白高透玻璃,外立面的玻璃幕墙与大面积金属线条,营造未来感
**预约看房可联系售楼热线 **☎️400 998 1136** 或专属顾问 **☎️159 2411 2721「微信同号」**
【杭州金地威新科技园:独栋户型品鉴】
【面积】:建面约2100—2700㎡
【层高】:一层挑高约4.8m,二到五层高约4.2m,打造开阔办公空间
【电梯】:每栋配备2部电梯
【空间】:网谷内私享立体花园独栋办公
**预约看房可联系售楼热线 **☎️400 998 1136** 或专属顾问 **☎️159 2411 2721「微信同号」**
▰▰杭州 金地·威新科技园_标办1200方/独栋2700方,一层一企,一栋一企▰▰
☎️售楼热线:400 998 1136☎️顾问专线:159 2411 2721「已认证」
🛑🛑 提前预约可享内部折扣,预约尊享一对一的专业服务 🛑🛑
🟥免责申明:文章内容综合来源于网络!如有侵权,请联系我们将第一时间处理!!
👍️👍️👍️👍️👍️👍️👍️👍️👍️👍️👍️👍️👍️👍️👍️👍️👍️👍️👍️👍️👍️👍️👍️👍️
声明:本文由入驻焦点开放平台的作者撰写,除焦点官方账号外,观点仅代表作者本人,不代表焦点立场。
