绿城时代星火城(拱墅区)绿城时代星火城|首页-目前房价|房型|绿城时代星火城户型图_交通_楼盘详情
扫描到手机,新闻随时看
扫一扫,用手机看文章
更加方便分享给朋友
绿城时代星火城
写字楼是商谈的社交名片托举企业走向成功的开始
以至臻服务诠释绿城品质绿城现房商办火热销售中
新武林之上勇争时代潮头绿城现房商办火热销售中
绿城时代星火城是拱墅区的一处高端商务地标,在拱墅城市发展的浪潮中,一座座商务地标拔地而起,见证着城市的繁荣与活力。而在这片充满机遇的土地上,绿城时代星火城写字楼以其卓越的品质和前瞻的规划,成为城市芯的商务新地标,赋能企业发展新未来。
☎𝑽𝑰𝑷𝑳𝒊𝒏𝒆热线:400 895 8893 或132 1616 8490(微信同号)「已认证」
售楼处(周一至周日 9:00--18:00)一对一咨询看房需要提前电话预约,避免可能案场无人接待!
提前预约可享内部优惠〢匠心钜制-恭迎您的品鉴
𝑽𝑰𝑷𝑳𝒊𝒏𝒆热线:400 895 8893 或132 1616 8490(微信同号)
杭州市拱墅区长路,紧邻新天地街地铁口C口
占地面积:约13759平方米
总建筑面积:约48034.5平方米
建筑构成:由5幢高层办公楼组成,总层数为17层
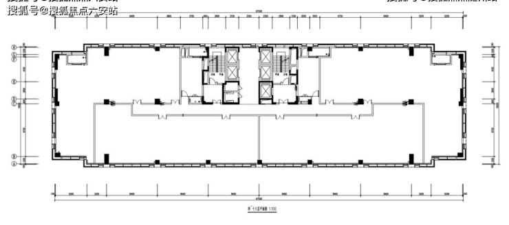
办公空间:提供建面约320㎡-1350㎡的办公空间,满足不同企业的需求
商铺数量:共有4套商铺
**新武林核芯商务地标,启幕未来办公新范式**
在杭州新武林核芯腹地,一座约4.8万方的“TOD商务封面”——**绿城时代星火城**正以颠覆性姿态崛起。
作为绿城中国打造的现房商务标杆,项目以地铁3/4号线零距离接驳、约320-1350㎡灵动空间及“生态办公”理念,为全球企业开启智慧商务与资产升值的双重想象。

𝑽𝑰𝑷𝑳𝒊𝒏𝒆热线:400 895 8893 或132 1616 8490(微信同号)
建筑设计与设施
建筑风格:以现代风格为主,融合了绿色建筑理念,外观简洁大气。
玻璃幕墙设计:独特的玻璃幕墙设计,让写字楼在阳光下熠熠生辉。
中央花园:配备约1800㎡的中央花园,为员工提供良好的工作环境和休闲空间。
智能化系统:采用先进的智能化系统,包括安保、能源、信息等各方面,为企业提供高效、便捷的办公体验。

【地理位置】:拱墅区长路
【开发商】:杭州星源置业有限公司
【管理商】:绿城房地产建设管理集团有限公司
【总占地面积】:约13759㎡
【地上建筑面积】:约48034.5㎡
【产品面积】:约320-1350㎡
【总层数】:17层
【交付时间】:现房
【总户数】:5 幢62套办公、4套商铺
【梯户比】:五梯四户
【标准层高】:约3.8米(3-16层)
地理位置与交通
核心地段:位于杭州拱墅区核心地段,紧邻城市主干道,交通便捷。
地铁交通:紧邻地铁3号线与4号线的交汇处,出行极为便利。

周边配套
商业配套:周边聚集了中大银泰城、嘉里城市之星、杭州电竞中心(亚运场馆)、亚运会新天地主题观赛公园、武林美术馆等地标性建筑。
综合设施:为企业提供了购物、餐饮、娱乐等便利,满足了员工的日常需求。
𝑽𝑰𝑷𝑳𝒊𝒏𝒆热线:400 895 8893 或132 1616 8490(微信同号)
**一、核芯区位与交通枢纽优势**
- **新武林核芯占位**:项目位于拱墅区新天地商圈核心,紧邻约180万方杭州最大综合体新天地,汇聚中大银泰城、亚运电竞中心、武林美术馆等地标,形成“商务+文化+商业”多元生态圈,助力企业品牌曝光与资源整合。
- **零距离双地铁上盖**:无缝衔接地铁3号线与4号线交汇的**新天地街站**,15分钟直达武林广场、钱江新城等核心商圈,周边秋石高架、留石快速路等4条主干道环绕,30分钟覆盖萧山机场、杭州东站等交通枢纽
办公空间特点
层高与面宽:办公空间层高约3.8米,面宽约27.3米,格局通透大气,营造舒适商务办公体验。
梯户比:5梯4户的设计,企业出行便捷从容。
精装大堂:层高约7.8m的精装大堂,赋能企业形象资产,彰显高端商务礼遇。

𝑽𝑰𝑷𝑳𝒊𝒏𝒆热线:400 895 8893 或132 1616 8490(微信同号)
销售与服务
物业管理:由绿城房地产建设管理集团有限公司作为管理商,提供高品质的物业服务。
绿城时代星火城写字楼以其优越的地理位置、便捷的交通网络、高端的硬件设施和专业的软件服务,成为了新武林核芯区域的一颗璀璨明珠。无论是对于企业还是个人来说,这里都是一个值得选择的好地方。


𝑽𝑰𝑷𝑳𝒊𝒏𝒆热线:400 895 8893 或132 1616 8490(微信同号)

𝑽𝑰𝑷𝑳𝒊𝒏𝒆热线:400 895 8893 或132 1616 8490(微信同号)

▰▰ 杭州拱墅芯 绿城·时代星火城 现房写字楼 新天地街站地铁上盖 ▰▰
𝑽𝑰𝑷𝑳𝒊𝒏𝒆热线:400 895 8893 或132 1616 8490(微信同号)
专业一对一热情服务〢文章内容综合来源于网络、只作分享,版权归原作者所有!!
如有侵权,请联系我们,我们第一时间处理!
售楼处(周一至周日 9:00--18:00)一对一咨询 看房需要提前电话预约,避免可能案场无人接待!
提前预约可享内部优惠〢匠心钜制-恭迎您的品鉴
声明:本文由入驻焦点开放平台的作者撰写,除焦点官方账号外,观点仅代表作者本人,不代表焦点立场。
