金地威新科技园写字楼→杭州房天下丨杭州金地威新科技园独栋2025首页网站丨金地威新科技园最新价格丨金地威新科技园楼盘详情→楼盘百科→售楼处电话
扫描到手机,新闻随时看
扫一扫,用手机看文章
更加方便分享给朋友
▰▰ 杭州拱墅芯 金地·威新科技园 标办写字楼 独栋办公 ▰▰
🛑金地威新科技园:标办写字楼整层面积:1260㎡
🌈标办单价1.5万/㎡起,整层总价1890万起
🛑“入户花园+空中花园+露台+地下室”高拓灵动空间
🌈全杭州绝版独栋写字楼,独栋面积:2700㎡
🛑独栋单价2.5万/㎡起,独栋总价6750万起
☎️售楼热线:400 998 1136☎️顾问专线:159 2411 2721
▰▰ 杭州拱墅芯 金地·威新科技园 标办写字楼 独栋办公 ▰▰
🌈一层一企,一栋一企,现房即买即驻
🛑金地·威新科技园:标办1200方 / 花园独栋2700方
🌈集公司展厅、接待、办公、仓储等多元功能空间为一体
🛑为企业总部定制打造12栋独栋办公集群。#花园独栋办公
☎️售楼热线:400 998 1136☎️顾问专线:159 2411 2721
**一、项目基础信息**
**区位与规模**
- **位置**:杭州市拱墅区智慧网谷核心板块,紧邻大运河新城,距拱墅区政府约2.5公里,属杭州数字经济“一号工程”重点产业平台。
- **交通**:地铁4号线皋亭坝站(直线约1.3公里),秋石、留石、上塘高架环绕,30分钟直达杭州东站、萧山机场。
- **占地**:约46,488㎡,总建筑面积205,886㎡,容积率3.2,绿化率30%,由4栋高层办公+12栋花园独栋组成。
- **交付状态**:现房交付(部分毛坯),公区精装,即买即用。
**产权与年限**
- 产权性质:50年商业用地,土地年限剩余约40年。
**预约看房可联系售楼热线 **☎️400 998 1136** 或专属顾问 **☎️159 2411 2721「微信同号」**

**二、核心产品亮点**
**标办写字楼**
- **面积**:单层建面约1200-1400㎡,整层总价1890万起(单价1.5万/㎡起)。
- **空间设计**:
- 层高4米,得房率80%,支持整层分割;
- 8米挑高双层大堂,配备7+1部高速电梯(含1部消防梯);
- 灵活空间:可改造为总裁办公、研发中心或共享办公区。
**预约看房可联系售楼热线 **☎️400 998 1136** 或专属顾问 **☎️159 2411 2721「微信同号」**
**独栋办公**
- **面积**:建面2100-2700㎡/栋,总价6000万起(单价2.1万/㎡起),赠送800㎡花园+380㎡露台+屋顶绿意空间。
- **空间设计**:
- 层高4.2-4.8米(首层挑高4.8米),地下空间挑高5.2米;
- 每栋配备2部电梯,支持冠名权及燃气接入,适配企业总部定制。
**建筑设计**
- **外立面**:香槟金色金属型材+高反射玻璃幕墙,打造“蓝宝石光幕”效果,现代简约风格。
- **生态景观**:中轴绿谷花园、垂直绿化、下沉式庭院,屋顶花园约550㎡,独栋私享庭院约1000㎡,LEED金级认证。
**预约看房可联系售楼热线 **☎️400 998 1136** 或专属顾问 **☎️159 2411 2721「微信同号」**
**三、全维配套生态**
**商业与生活**
- 自带约8000㎡高端商业广场(规划中),毗邻万达商圈、银泰新天地商圈,下楼即享餐饮、购物、休闲。
- 周边3公里内覆盖京杭大运河博物院(在建)、大运河音乐厅(规划)等文化地标。
**产业与人才**
- **产业集群**:已入驻58同城、华为云、顺丰等头部企业,形成数字经济、人工智能产业集群,年产值超600亿元。
- **人才配套**:3公里内约30万㎡瓜山未来社区,提供8400套人才公寓。
**交通网络**
- 地铁:4号线皋亭坝站(步行约1.5公里),未来规划15号线;
- 高架:秋石、留石、上塘高架30分钟通达全城。
**预约看房可联系售楼热线 **☎️400 998 1136** 或专属顾问 **☎️159 2411 2721「微信同号」**
**四、投资价值分析**
**稀缺性**
- 主城区唯一在售低密独栋办公,杭州LEED认证写字楼租金溢价达31.3%(对比非认证项目)。
- 土地年限剩余40余年,智慧网谷二期规划将进一步提升区域能级。
**租金与回报率**
- **标办租金**:约1.5元/㎡/天,整层年回报率超5%;
- **独栋租金**:总价6000万起,年回报率约5%-6%,空置率长期低于5%。
**政策红利**
- 纳入拱墅区“1+4+N”产业政策,享最高600万研发补贴及150万房租返还。
**预约看房可联系售楼热线 **☎️400 998 1136** 或专属顾问 **☎️159 2411 2721「微信同号」**
**五、企业服务与运营**
- **智慧化系统**:无感派梯(高峰等待≤45秒)、特灵中央空调、全域新风系统、智能安防。
- **物业保障**:金地物业(全国TOP10),提供24小时管家服务,涵盖企业注册、法务咨询等120项解决方案。
- **圈层资源**:已入驻企业包括华为、顺丰、360等,私密性与资源聚合性无可替代。
**预约看房可联系售楼热线 **☎️400 998 1136** 或专属顾问 **☎️159 2411 2721「微信同号」**
杭州金地威新科技园延续金地威新的产业基因,基于以往优秀作品的成功经验,于智谷之上打造集商务办公、绿色生态、智能出行等为一体的总部级办公空间。
作为杭城产业发展第三极的智慧网谷,汇集新浪、58同城、顺丰、招商蛇口等多家独角兽企业入驻,坐拥优质的交通路网、生活文化地标等城市配套,满足企业全周期发展需求。
**预约看房可联系售楼热线 **☎️400 998 1136** 或专属顾问 **☎️159 2411 2721「微信同号」**
在外部优质资源的簇拥下,杭州金地威新科技园聚焦数字互联智慧平台、数字传媒等数字产业经济,于内打造内外兼修的现代美学办公空间,吸引大批企业的入驻。
蓝宝石光幕立面,玻璃幕墙超高反光镜面尽显高端商务气质;7+1高速电梯,VRV节能空调系统营造非凡办公气度;约6000㎡多功能中央花园景观,打造森态自然休闲空间;以及多项智能系统配置、商务配套、全场景运营服务体系等总部办公配置,共同赋能企业的成长。
**预约看房可联系售楼热线 **☎️400 998 1136** 或专属顾问 **☎️159 2411 2721「微信同号」**
产业所往,威新所向。杭州金地威新科技园厚植产业情怀,以齐全的配套、专业的团队、温馨的服务高标准打造精致的国际化全产业平台,形成企业投资、孵化、加速、园区建设运营一体化的协同发展模式,焕新杭城商务新体验,开启企业发展新时代。
**预约看房可联系售楼热线 **☎️400 998 1136** 或专属顾问 **☎️159 2411 2721「微信同号」**
花园式总部办公,建筑群如同大小石块组成的绿台庭院;全玻璃幕墙立面,采用香槟金色金属型材和高反射玻璃,一虚一实的变化,犹如律动蓝色魔方。
约9米挑高入户会客大堂,星级酒店标准,可打造企业品牌文化展示空间及洽谈区 ,彰显企业恢弘气场。
金地威新科技园,以不可复制的TOD基因、蓝宝石美学与全球产业势能,重新定义长三角总部商务的黄金法则。限量现房全球争藏,恭迎品鉴!
**预约看房可联系售楼热线 **☎️400 998 1136** 或专属顾问 **☎️159 2411 2721「微信同号」**
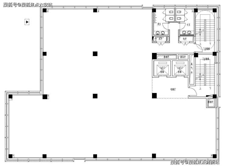
【杭州金地威新科技园:标办户型品鉴】
【面积】:单层建面约1200㎡—1400㎡
【层高】:标准层约4m层高
【大堂】:约8m挑高大堂,超500㎡双层大堂
【电梯】:15#5+1高速电梯,16#4+1高速电梯
【建筑风格】:采用现代简约的手法,内部采用超白高透玻璃,外立面的玻璃幕墙与大面积金属线条,营造未来感
**预约看房可联系售楼热线 **☎️400 998 1136** 或专属顾问 **☎️159 2411 2721「微信同号」**
【杭州金地威新科技园:独栋户型品鉴】
【面积】:建面约2100—2700㎡
【层高】:一层挑高约4.8m,二到五层高约4.2m,打造开阔办公空间
【电梯】:每栋配备2部电梯
【空间】:网谷内私享立体花园独栋办公
**预约看房可联系售楼热线 **☎️400 998 1136** 或专属顾问 **☎️159 2411 2721「微信同号」**
▰▰杭州 金地·威新科技园_标办1200方/独栋2700方,一层一企,一栋一企▰▰
☎️售楼热线:400 998 1136☎️顾问专线:159 2411 2721「已认证」
🛑🛑 提前预约可享内部折扣,预约尊享一对一的专业服务 🛑🛑
🟥免责申明:文章内容综合来源于网络!如有侵权,请联系我们将第一时间处理!!
👍️👍️👍️👍️👍️👍️👍️👍️👍️👍️👍️👍️👍️👍️👍️👍️👍️👍️👍️👍️👍️👍️👍️👍️
声明:本文由入驻焦点开放平台的作者撰写,除焦点官方账号外,观点仅代表作者本人,不代表焦点立场。
