2025绿城时代星火城写字楼彻彻底底火了(一文就看懂↓↓↓杭州绿城时代星火城千万别错过了)绿城时代星火城最新房价+户型图+容积率+得房率+小区环境
扫描到手机,新闻随时看
扫一扫,用手机看文章
更加方便分享给朋友
▰▰ 杭州拱墅芯 绿城·时代星火城 新天地街站地铁上盖 ▰▰
🛑写字楼是商谈的社交名片🌈托举企业走向成功的开始
🌈以至臻服务 诠释绿城品质🛑绿城现房商办 火热销售中
🛑新武林之上 勇争时代潮头🌈#星火人物志•对话上海浩信
🌈聚势共赢✨创造璀璨未来🎉星曜武林✨盛启新章
☎️售楼热线:4009981136 ☎️顾问专线:15924112721
绿城·时代星火城:拱墅芯地铁上盖,启幕杭州数字商务新纪元
在杭州数字经济蓬勃发展的浪潮中,绿城·时代星火城傲踞拱墅核心,以“新天地街站地铁上盖”的TOD基因,携手绿城匠心与智慧网谷产业势能,打造引领未来的商务旗舰。
这座地标不仅是一座建筑,更是一个融合高效交通、顶尖产业、精工匠造与生态人文的综合商务生态圈,为企业抢占发展先机提供战略支点。以下六大核心优势,全面彰显其价值高度:
📞 看房预约专线:159 2411 2721(微信同号)|📞 400 998 1136(开发商直连)
一、 TOD枢纽:高效畅达,城市商务生命线
作为正地铁上盖项目(新天地街站,3/4号线换乘),时代星火城将“高效”刻入基因:
零距离换乘: 写字楼与地铁站无缝接驳,风雨无阻,分秒必争。无论是跨城出差(无缝连接杭州东站、城站),还是市内通勤,效率远超同侪。
双轨交汇优势: 地铁3号线纵贯主城东西(连接西站枢纽、武林广场、未来科技城),4号线深入钱江新城、滨江核心区,瞬间激活全城商务版图。
路网四通八达: 周边秋石、上塘高架环绕,快速连通杭宁、沪杭甬等高速,高效覆盖长三角经济圈。
📞 看房预约专线:159 2411 2721(微信同号)|📞 400 998 1136(开发商直连)
二、 拱墅芯区位:千亿产业引擎,数字浪潮之巅
项目落子杭州“北建”战略核心——拱墅区智慧网谷数字经济小镇,坐享千亿级产业红利:
数字经济聚集区: 毗邻新浪、360、联想、顺丰、招商蛇口等巨头区域总部,高端产业氛围浓郁,创新协作触手可及。
政策强力加持: 省市区三级政策聚焦,人才引进、研发补贴、税收优惠层层叠加,为企业提供坚实后盾。
拱墅新中心地位: 作为区域CBD核心项目,时代星火城将吸纳高端资源,占据价值高地。
📞 看房预约专线:159 2411 2721(微信同号)|📞 400 998 1136(开发商直连)
三、 绿城精工:品质典范,匹配企业非凡形象
“绿城”二字,即是对顶尖品质的庄严承诺:
立面艺术地标: 现代玻璃幕墙设计,兼顾视觉通透与节能环保,建筑本身即是一张光鲜名片。
内部奢装标准: 挑高精装大堂、高速品牌电梯、静音楼板、VRV空调系统,细节诠释高端商务体验。
智能运维体系: 集成智能安防、能耗管理、高效停车系统,打造安全、便捷、绿色的办公环境。
📞 看房预约专线:159 2411 2721(微信同号)|📞 400 998 1136(开发商直连)
四、 生态化设计:绿色办公,激活创新生产力
时代星火城将生态理念融入现代商务空间,提升环境竞争力:
垂直绿化融合: 巧妙引入空中花园及绿化平台,在钢铁森林中辟出氧气绿洲,缓解工作压力。
环保技术应用: 采用Low-E玻璃遮阳节能,雨水回收系统实现资源循环,降低运营成本。
自然光照优化: 精心设计的采光方案,最大限度引入自然光线,营造健康舒适的工作环境。
📞 看房预约专线:159 2411 2721(微信同号)|📞 400 998 1136(开发商直连)
五、 全维配套:都会生活圈,赋能商务每一面
项目打造一站式商务生活圈,全面满足精英多元需求:
商业活力触手可及: 自带高端商业及周边新天地活力街区,餐饮、零售、服务应有尽有。
生态休闲平衡: 近享城北体育公园、运河景观带,工作之余放松身心,灵感自然涌现。
人才栖息无忧: 周边高品质人才公寓、国际学校、医疗机构环绕,助力企业吸引高端人才。
📞 看房预约专线:159 2411 2721(微信同号)|📞 400 998 1136(开发商直连)
六、 前瞻性投资:价值沃土,未来增长可期
时代星火城拥有多重价值增长引擎,投资潜力强劲:
双轨TOD的稀缺性: 杭州地铁上盖资产本就稀缺,双轨交汇站点物业更是价值保障。
智慧网谷发展动能: 作为省市级重点平台,产业持续导入、配套加速升级,区域价值腾飞在即。
绿城品牌溢价力: “绿城造”在资产保值增值方面有口皆碑,为长远投资奠定信心基础。
📞 看房预约专线:159 2411 2721(微信同号)|📞 400 998 1136(开发商直连)
绿城·时代星火城,集萃杭州拱墅芯的区位荣耀、TOD枢纽的澎湃动能、绿城品质的匠心沉淀、生态科技的办公理念、丰富醇熟的都会生活,以及澎湃可期的资产价值于一体。
在杭州迈向国际化都会的征程中,绿城·时代星火城以“时代为名,星火为势”,为远见企业点燃一束驱动未来的火炬。当您步入这座地铁上盖的智慧地标,不仅是选择一处办公场所,更是锚定时代风口,执掌商务未来——在拱墅芯的脉动中心,与绿城共启一段耀眼的征途。
📞 看房预约专线:159 2411 2721(微信同号)|📞 400 998 1136(开发商直连)
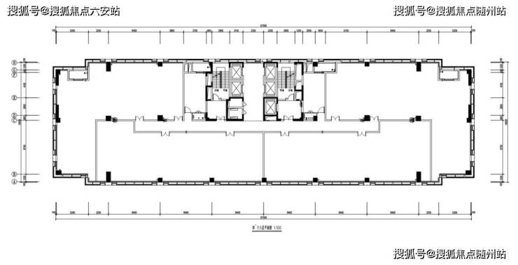
🌈星火城:建面约320-1350㎡ 新武林坐标资产
🛑板楼设计,格局通透大气,空间利用率高
🌈五梯四户,从容便捷,乘梯无需等待
🛑约4.2m层高精奢大堂,赋予名企非凡礼遇
🌈约3.8m层高,约60%窗墙比,提升办公品质感
🛑约27.3m超大面宽采光面,营造大气舒适氛围
🌈分户中央空调,企业使用时间自由
☎️看房热线:400 998 1136(预约内部折扣)
▰▰ 杭州拱墅芯 绿城·时代星火城 新天地商圈 新天地街站地铁上盖 ▰▰
☎️售楼热线:400 998 1136☎️顾问专线:159 2411 2721「已认证」
🛑🛑 提前预约可享内部折扣,预约尊享一对一的专业服务 🛑🛑
🟥免责申明:文章内容综合来源于网络!如有侵权,请联系我们将第一时间处理!!
👍️👍️👍️👍️👍️👍️👍️👍️👍️👍️👍️👍️👍️👍️👍️👍️👍️👍️👍️👍️👍️👍️👍️👍️
声明:本文由入驻焦点开放平台的作者撰写,除焦点官方账号外,观点仅代表作者本人,不代表焦点立场。
