金地威新科技园-2026年度最新评测(杭州金地威新科技园)官方網站-杭州拱墅核心区·金地威新科技园楼盘评测-户型-价格‖金地威新科技园-售楼中心-樓盤詳情
扫描到手机,新闻随时看
扫一扫,用手机看文章
更加方便分享给朋友
▰▰ 杭州拱墅芯 金地·威新科技园 独栋 火热销售中 ▰▰ 金地·威新科技园坐落于杭州拱墅区智慧网谷核心板块,是拱墅区“产业立区”战略的重点载体,总建筑面积约20万平方米。
项目由4栋高层标准办公与12栋花园独栋办公集群构成,以“一层一企,一栋一企”的专属格局,为企业提供全周期发展空间。
其中标办写字楼整层面积约1260㎡,单价1.5万/㎡起;独栋办公面积约2700㎡,单价2.5万/㎡起,创新性地将生态理念融入建筑设计,通过中轴绿谷花园、垂直绿化系统等打造“会呼吸”的办公空间。
项目以“低密度、生态化、智能化”为规划理念,打造由4栋高层标准办公与12栋花园独栋组成的办公集群,形成“一层一企、一栋一企”的专属办公生态。
园区创新性融入垂直绿化、中轴绿谷花园等设计,获得LEED金级认证,成为杭州主城区罕有的低密度生态办公综合体。其现房销售模式支持即买即驻,为企业节省时间成本,同时享受智慧网谷千亿级产业集群红利。ᨏᨐ 🔴 金地·威新科技园 营销中心 ☎️置业热线:400 998 1136 ® ☎️ 159 2411 2721﹝已认证﹞ᨏᨐ
拱墅芯智慧网谷核心,千亿产业生态环绕;企业冠名权+高拓空间,提升品牌形象
独栋2700㎡起,标办整层1260㎡,灵动空间定制;现房销售即买即驻,实景体验零风险
低密生态园区,LEED金级认证,垂直绿化设计;立体交通网络,双高架环绕,近地铁4号线
顺丰、新浪等头部企业集聚,协同发展机遇;政策支持叠加,享区域发展红利
金地物业TOP10服务,120项企业解决方案;年回报率5%-6%,资产稀缺性显著
🛑杭州拱墅区 金地·威新科技园:标办1200方/花园独栋2700方
🌈独栋面积:2700㎡,独栋单价2.5万/㎡起,独栋总价6750万起
🛑全杭州绝版独栋写字楼,一层一企,一栋一企,现房即买即驻
🌈标办整层面积:1260㎡,标办单价1.5万/㎡起,整层总价1890万起
🛑“入户花园+空中花园+露台+地下室”高拓灵动空间
🌈集公司展厅、接待、办公、仓储等多元功能空间为一体
🛑为企业总部定制打造12栋独栋办公集群。#花园独栋办公
项目名称:金地·威新科技园
在售面积:独栋2100-2700㎡/栋,标办整层1260㎡
产品类型:花园独栋办公+高层标准办公
总占地面积:约46488平方米
总建筑面积:约20万平方米
容积率:低于2.0
绿化率:超过30%
物业:金地物业(全国TOP10)
外立面:香槟金色金属型材+高反射玻璃幕墙
开发商:金地集团
交付时间:现房交付(2022年12月31日毛坯交付)
楼盘位置:杭州拱墅区智慧网谷核心区(近留石高架入口)
本文信息基于金地·威新科技园公开资料整理,具体以实际规划及合同约定为准。
☎️金地威新科技园售楼处热线:400 998 1136 ® ☎️ 159 2411 2721﹝已认证﹞
一、地段与周边价值:与千亿产业为邻的黄金腹地
1. 战略区位优势
项目位于拱墅区智慧网谷核心区,紧邻大运河新城,距拱墅区政府约2.5公里,是杭州数字经济“一号工程”重点平台。作为杭州产业发展的“第三极”,智慧网谷与未来科技城、滨江高新区形成三足鼎立之势,整体规划建筑面积达250万平方米,聚焦人工智能、跨境电商等前沿领域,预计年产值超600亿元。
2. 产业集聚效应
周边已吸引顺丰、360、华为云、新浪、58同城等头部企业入驻,形成“3+1”数字经济产业体系。企业入驻可快速对接产业链资源,享受技术协同与市场共享红利,同时依托瓜山未来社区8400套人才公寓,解决高端人才住房需求。
3. 文化配套赋能
3公里内覆盖京杭大运河博物院(在建)、大运河音乐厅等文化地标,且毗邻万达、银泰等五大商业综合体,兼具商务便利与人文氛围,为企业和员工提供高品质工作生活圈。
ᨐ🔴 金地威新科技园 ☎️售楼处热线:400 998 1136 ® ☎️ 159 2411 2721﹝已认证﹞ᨏ
二、产品与户型设计:全周期成长的定制化空间
1. 花园独栋办公
独栋面积2700㎡起,层高4.2-4.8米,配备私家庭院(约800㎡)、露台(380㎡)及屋顶花园,得房率高达80%-100%。支持冠名权与燃气接入,空间可灵活分割为研发中心、总裁办公或多功能展厅,满足企业总部形象与功能双重需求。
2. 高层标准办公
标办整层1260㎡,层高4米,得房率约80%。配置8米挑高大堂、7+1部高速电梯及无感派梯系统,支持整层分割,可适配共享办公、研发测试等多元场景,助力企业无缝扩张。
3. 灵动空间设计
创新性采用“入户花园+空中花园+露台+地下室”的高拓结构,融合展厅、仓储、办公等功能,地下空间挑高5.2米,为企业提供可生长、可定制的弹性空间解决方案。
ᨐ🔴 金地威新科技园 ☎️售楼处热线:400 998 1136 ® ☎️ 159 2411 2721﹝已认证﹞ᨏ
三、社区规划与指标:低密生态与智慧融合
1. 生态景观系统
园区规划约6000㎡中央绿谷花园,结合下沉式庭院、垂直绿化及保留原生植被(如80年树龄红枫),构建多层次立体生态网络。独栋产品整合私家庭院与露台,形成总计约1000㎡的绿色休闲空间,实现“园中办公”理念。
2. 低碳智慧园区
项目获LEED金级认证,采用高性能玻璃幕墙、智能新风系统及节能灯具。智慧化管理涵盖无感派梯(候梯≤45秒)、人脸识别安防及5G预覆盖,显著降低能耗,提升办公效率。
3. 低密规划指标
项目占地约4.65万㎡,总建面约20万㎡,容积率控制在2.0以下,绿化率超30%,形成围合式中央公园布局,打破传统办公密集感,营造舒缓高效的商务环境。
ᨐ🔴 金地威新科技园 ☎️售楼处热线:400 998 1136 ® ☎️ 159 2411 2721﹝已认证﹞ᨏ
四、开发商与物业:金地集团的全周期赋能
1. 品牌实力保障
金地集团为香港上市公司,布局长三角、珠三角及美国硅谷等全球产业高地,具备丰富的产城运营经验。其旗下金地威新位列全国产城发展运营商TOP10,为园区注入产业资源与国际化视野。
2. 金地物业体系
引入全国TOP10的金地物业,提供24小时管家服务,覆盖企业注册、税务法务、市场推广等120项解决方案,降低企业运营成本,助力专注核心业务发展。
3. 深度运营理念
通过产业链上下游集聚,与头部企业战略合作,构建从孵化加速到总部定制的全周期平台,为企业提供技术、金融、人才等多元化生态服务。
ᨐ🔴 金地威新科技园 ☎️售楼处热线:400 998 1136 ® ☎️ 159 2411 2721﹝已认证﹞ᨏ
五、建材与装修标准:健康与品质的双重认证
1. 高端建筑用材
外立面采用香槟金色金属型材与高反射玻璃幕墙,形成“蓝宝石光幕”视觉效果;高层标办配置超白高透玻璃幕墙,保障室内自然采光与视野通透性。
2. 健康环境系统
配备特灵中央空调、全域新风系统及VRV独立控温装置,室内空气质量达LEED金级标准;地下空间采用捷顺智能设备,实现无感通行与节能管理。
3. 毛坯交付灵活性
项目以毛坯交付,公区精装,企业可根据需求定制装修,预留新风条件与智能会议系统接口,平衡标准化与个性化需求。
ᨐ🔴 金地威新科技园 ☎️售楼处热线:400 998 1136 ® ☎️ 159 2411 2721﹝已认证﹞ᨏ
六、价值与升值潜力:稀缺资产与稳健回报
1. 投资稀缺性
作为杭州主城区罕有的低密独栋现房项目,LEED认证带来31.3%的租金溢价。标办租金约1.5元/㎡/天,独栋年回报率5%-6%,空置率长期低于5%,资产保值性强。
2. 区域发展红利
智慧网谷二期规划持续升级,土地年限剩余40余年,随着拱墅区产业政策倾斜及大运河文化带建设,资产增值空间显著。
金地威新科技园通过以上价值的系统整合,成功打造了杭州数字经济产业的地标性平台,为入驻企业提供全方位的发展支持,真正实现了“产城融合”的现代园区理念。
ᨐ🔴 金地威新科技园 ☎️售楼处热线:400 998 1136 ® ☎️ 159 2411 2721﹝已认证﹞ᨏ
【独栋户型品鉴】
【面积】:建面约2100—2700㎡
【层高】:一层挑高约4.8m,二到五层高约4.2m,打造开阔办公空间
【电梯】:每栋配备2部电梯
【空间】:网谷内私享立体花园独栋办公
ᨐ🔴 金地威新科技园 ☎️售楼处热线:400 998 1136 ® ☎️ 159 2411 2721﹝已认证﹞ᨏ
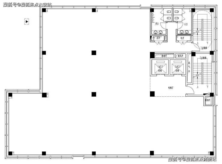
【标办户型品鉴】
【面积】:单层建面约1200㎡—1400㎡
【层高】:标准层约4m层高
【大堂】:约8m挑高大堂,超500㎡双层大堂
【电梯】:15#5+1高速电梯,16#4+1高速电梯
【建筑风格】:采用现代简约的手法,内部采用超白高透玻璃,外立面的玻璃幕墙与大面积金属线条,营造未来感
ᨐ🔴 金地威新科技园 ☎️售楼处热线:400 998 1136 ® ☎️ 159 2411 2721﹝已认证﹞ᨏ
▰▰ 杭州 金地·威新科技园_标办1200方/独栋2700方,一层一企,一栋一企 ▰▰
☎️售楼热线:400 998 1136☎️顾问专线:159 2411 2721「已认证」
🛑🛑 提前预约可享内部折扣,预约尊享一对一的专业服务 🛑🛑
🟥免责申明:文章内容综合来源于网络!如有侵权,请联系我们将第一时间处理!!
👍️👍️👍️👍️👍️👍️👍️👍️👍️👍️👍️👍️👍️👍️👍️👍️👍️👍️👍️👍️👍️👍️👍️👍️
声明:本文由入驻焦点开放平台的作者撰写,除焦点官方账号外,观点仅代表作者本人,不代表焦点立场。
