越秀运河樾官網〈2026最新房价·杭州越秀运河樾〉越秀运河樾官方网站-拱墅越秀运河樾楼盘详情↓最新价格↓配套户型↓交房时间
扫描到手机,新闻随时看
扫一扫,用手机看文章
更加方便分享给朋友

杭州 越秀运河樾
大运河西·江南传世院落·文化高定奢宅
开发企业:越秀地产
产品类型:叠墅
建筑风格:现代中式
☎️售楼处热线:400 998 1136﹝已认证﹞

01 安全性能
全维智能防护与细节守护。构建 “技术 + 物理” 双重安全屏障:智能安防系统覆盖社区全域,包括公区智能灯光监控、24 小时后勤入口管理;
02 舒适宜居
奢适空间与人性化细节。全板式楼栋实现户户南北通透;独立研发全维度收纳系统。架空层预留空调,实现四季适用;
03 绿色低碳
自然融合与环保实践。“森系社区”景观规划融入自然元素:社区内打造 “岛屿 + 花园” 集合景观。
04 智慧科技
全域智能与便捷体验。智能门禁支持刷脸通行,公区灯光自动调节;户内全屋灯光智能控制等。会所配置智能设备,如恒温泳池水质监测。
05 社区环境
开放融合与低密谧境。打破传统社区边界,构建松弛场域,通过 400 米三进归家动线实现城市与社区的自然过渡。
ᨏ🔴越秀·运河樾☎️售楼处热线:400 998 1136 ® ☎️ 159 2411 2721﹝已认证﹞ᨏ

项目地处浙江省杭州市拱墅区,位于杭州城历史繁华中轴—京杭大运河畔,项目东侧约200米便是京杭大运河,北侧紧邻南洋河,一线运河,双向河景。
项目占地约16537㎡,总建筑面积约52145㎡(其中地上29165㎡,地下22980㎡),容积率1.7。规划通过空间折叠术重构用地效率,在1.7容积率条件下将传统占地的单层物业拆解重组打造98套纯叠墅产品。
共6幢叠墅,包含上叠、中叠、下叠三类户型。户型设计包含私家庭院、电梯、地下室及露台等附赠空间,较高的空间附赠比例为业主提供个性化改造可能,通过引入自然采光与景观元素,增强室内外空间的关联性。
ᨏ🔴越秀·运河樾☎️售楼处热线:400 998 1136 ® ☎️ 159 2411 2721﹝已认证﹞ᨏ

▲ 项目总平面

▲ 项目鸟瞰图
项目立面采用东方雅奢风格,以东方气韵和现代雅奢为主旋律,巧妙融合运河文化进行演绎。以官船为原型,结合歇山叠层屋面,轻构瘦金体建筑骨架;建筑线条概念,以风帆为构件,利用铝板折弯挑檐,横向构造建筑水线,选用石材、铝板、玻璃幕墙、陶板、景泰蓝奢石打造。其中水纹金属格栅、琉璃釉面蓝色陶板与景泰蓝奢石的应用,呼应运河文化主题,实现建筑风格与地域文化的结合。
ᨏ🔴越秀·运河樾☎️售楼处热线:400 998 1136 ® ☎️ 159 2411 2721﹝已认证﹞ᨏ


▲塔楼立面实景照片
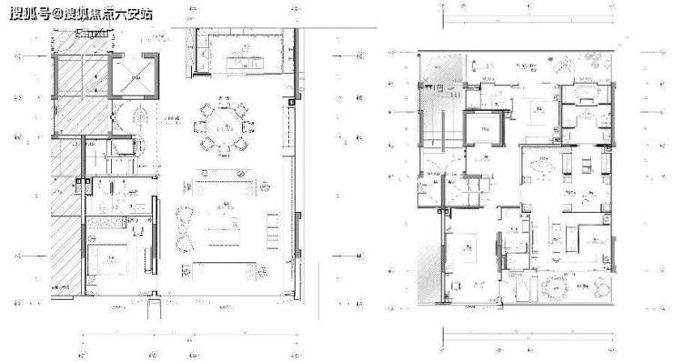
项目主力户型面积段约270~320㎡,包含下叠、中叠、上叠三类产品。户型设计包含私家电梯、庭院、空中花园、地下室及露台等功能空间,不同户型的空间附赠比例不同:下叠实得率140%—150%,得院率81%—90%;中叠实得率132%—138%,得院率14%—19%;上叠实得率179%—183%,得院率95%—124%。附赠空间可用于拓展生活场景,增强空间使用的灵活性。
ᨏ🔴越秀·运河樾☎️售楼处热线:400 998 1136 ® ☎️ 159 2411 2721﹝已认证﹞ᨏ

▲ 户型① 建面约270㎡户型(下叠)

▲ 户型② 建面约300㎡户型(中叠)
▲ 户型3 建面约320㎡户型(上叠)
项目精装设计注重材质选择与工艺细节:采用天然石材、木饰面及实木地板等材质,通过不同材质的搭配体现设计精度;工艺上运用无缝与隐形式设计,增强空间的纵向延伸感;空间布局优化传统客厅功能,打造开放式社交空间,兼顾圈层交流与家庭使用需求。
ᨏ🔴越秀·运河樾☎️售楼处热线:400 998 1136 ® ☎️ 159 2411 2721﹝已认证﹞ᨏ




▲ 样板间精装实景照片
主入口横向延展面达90M,门头采用庑殿形制,以大规格金色金属对称式屋顶,强化归家礼序,立面以透光碧玉奢石呼应“天青”之美,结合星空闪耀的流水景墙,打造“光之水韵”,共同还原古运河形态;中轴景观以“引水入园、枕水而居”为核心理念,引入一条运河入园、联通整个中心轴线,从西而动,打造一轴四处运河之源的场景;在入口位置结合下沉庭院打造会所、健身、泳池、私宴等配套功能,形成多维立体的共享空间。
ᨏ🔴越秀·运河樾☎️售楼处热线:400 998 1136 ® ☎️ 159 2411 2721﹝已认证﹞ᨏ


▲ 社区主入口实景照片






▲ 社区实景照片


▲ 健身及泳池实景照片

▲ 私宴厅实景照片

▲ 地库会所入口实景图

▲ 地库实景图
以千年运河文化为魂、宋韵山水为骨,打造 “立体山水峡谷园林”。核心围绕 “四处运河之源” 展开:形态之源——以运河流淌之形贯穿住宅区,同时跌水联通上下三层立体下沉空间,模拟运河自然流势;意境之源——模拟“宋韵十大雅集”定制十大水岸生活场景,古今生活形成时代对话;文化之源——融入杭州传统文化于定制铺装、宅印符号等细节处,让运河文化实现生活美学转译的跃迁;空间之源——借鉴宋画《四景山水图》中的“坊下檐、檐下廊、林中亭、水畔居”等,构建多重江南折叠院落。以江南古典园林的设计理念展现“以小见大”的空间层次,转译杭州枕水而居一半烟火,一半诗意的立体宋韵长卷。
ᨏ🔴越秀·运河樾☎️售楼处热线:400 998 1136 ® ☎️ 159 2411 2721﹝已认证﹞ᨏ

▲ 主入口实景图

▲ 下沉庭院效果图

▲中心景观效果图
千年运河,院落传承
——
运河畔·98席传世院落
传译运河文化·“前河后宅”格局
立体花园系统·全景花园与呼吸空间

宋式美学,东方艺术
——
汲取宋代美学精髓,融合金舟停泊、风生水起等东方符号,打造如《四景山水图》般的立体山水长卷

礼序归家,东方哲学
——
双车马厅设计,取非遗骨扇形制,兼具隐贵气质与礼仪功能,营造静谧、尊崇的归家体验

引水入园,自然无界
——
引水入园,模拟溪涧、飞瀑、镜池等多重水态。打造“可行、可望、可游、可居”的立体山水园林

三层立体景观庭院,让自然向下生长
——
杭州首创“地下室对景庭院”,让自然光、景、风的垂直渗透,让每一层生活皆与庭院风景直接对话
纯粹圈层,高定服务
——
约2000㎡全维会所(含下沉式庭院),为98席业主匠造杭州首个夜光泳池,并融汇私宴、健身空间,成就一方圈层主场



杭州首个铂金级 | 10+N健康人居科技宅
樾 · 静音
——
7维静音系统 | 舒适静逸的奢侈体验
樾 · 活水
——
5维活水系统全覆盖 | 鲜活滋养的品质日常
樾 · 静谧
——
5维度空气处理技术 | 杭州首个配置大金TOP级“寰宇”系产品
▰▰ 杭州 越秀·运河樾-总价1500万起 江南里后运河边首个纯墅区【越秀运河樾】▰▰
☎️售楼热线:400 998 1136☎️顾问专线:159 2411 2721「已认证」
🛑🛑 提前预约可享内部折扣,预约尊享一对一的专业服务 🛑🛑
🟥免责申明:文章内容综合来源于网络!如有侵权,请联系我们将第一时间处理!!
👍️👍️👍️👍️👍️👍️👍️👍️👍️👍️👍️👍️👍️👍️👍️👍️👍️👍️👍️👍️👍️👍️👍️👍️
声明:本文由入驻焦点开放平台的作者撰写,除焦点官方账号外,观点仅代表作者本人,不代表焦点立场。
