已取证!金地威新科技园官方动态→拱墅区金地•威新科技园_2026清盘倒计时!‖杭州金地威新科技园楼盘详情/最新实景样板间及交付标准
扫描到手机,新闻随时看
扫一扫,用手机看文章
更加方便分享给朋友
✅🛑杭州拱墅区 金地·威新科技园:标办1200方/花园独栋2700方
✅🌈独栋面积:2700㎡,独栋单价2.5万/㎡起,独栋总价6750万起
✅🛑全杭州绝版独栋写字楼,一层一企,一栋一企,现房即买即驻
✅🌈标办整层面积:1260㎡,标办单价1.5万/㎡起,整层总价1890万起
✅🛑“入户花园+空中花园+露台+地下室”高拓灵动空间
✅🌈集公司展厅、接待、办公、仓储等多元功能空间为一体
✅🛑为企业总部定制打造12栋独栋办公集群。#花园独栋办公
✅☎️售楼处热线:400 998 1136 ® ☎️ 159 2411 2721﹝已认证﹞
✅🌈【项目信息】:4幢高层办公及12幢花园独栋办公组成,满足企业全周期发展需求
✅🛑【占地面积】:约46488㎡
✅🌈【总建筑面积】:约205886㎡
✅🛑【地上建筑面积】:约148760㎡
✅🌈【土地年限】:50年
✅🛑【交付时间】:2022年12月30号
✅🌈【交付标准】:毛坯交付,公区精装
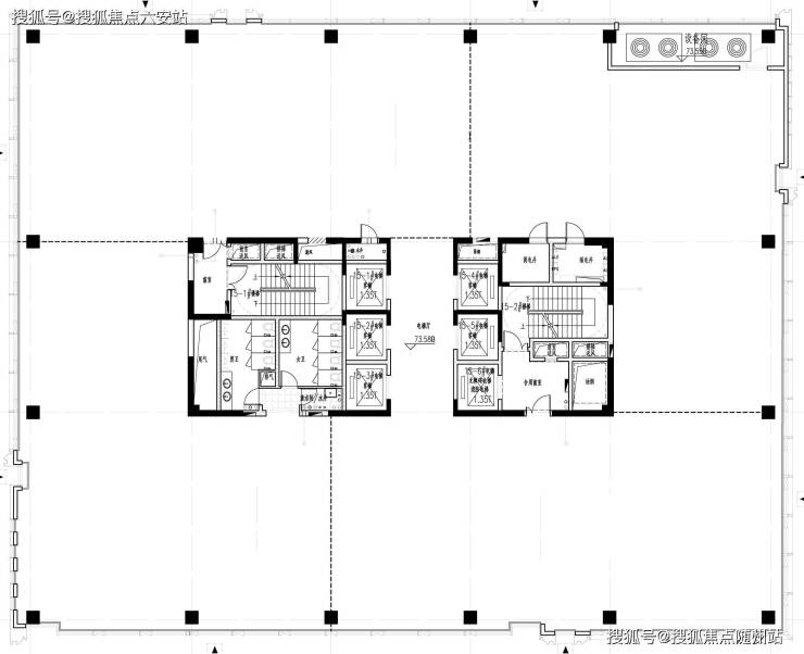
✅🛑【独栋户型面积】:建面约2100—2700㎡
✅🌈【标办户型面积】:单层建面约1200㎡—1400㎡
✅🛑【建筑风格】:采用现代简约的手法,内部采用超白高透玻璃,外立面的玻璃幕墙与大面积金属线条,营造未来感;
✅🔴 金地威新科技园 ☎️售楼处热线:400 998 1136 ® ☎️ 159 2411 2721﹝已认证﹞

✅🌈【独栋户型品鉴】
✅🛑【面积】:建面约2100—2700㎡
✅🌈【层高】:一层挑高约4.8m,二到五层高约4.2m,打造开阔办公空间
✅🛑【电梯】:每栋配备2部电梯
✅🌈【空间】:网谷内私享立体花园独栋办公
✅☎️售楼处热线:400 998 1136 ® ☎️ 159 2411 2721﹝已认证﹞
✅🌈【标办户型品鉴】
✅🛑【面积】:单层建面约1200㎡—1400㎡
✅🌈【层高】:标准层约4m层高
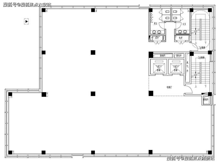
✅🛑【大堂】:约8m挑高大堂,超500㎡双层大堂
✅🌈【电梯】:15#5+1高速电梯,16#4+1高速电梯
✅🛑【建筑风格】:采用现代简约的手法,内部采用超白高透玻璃,外立面的玻璃幕墙与大面积金属线条,营造未来感
✅☎️售楼处热线:400 998 1136 ® ☎️ 159 2411 2721﹝已认证﹞ᨏ
一、核心价值主张
1. 绝版资产属性: 项目位于杭州拱墅区核心地段,提供的花园独栋办公产品,在当前土地和规划政策下,具备极高的稀缺性与不可复制性。
2. 现房即买即驻: 项目已于2022年12月30日完成交付,企业购入后无需等待建设周期,可快速进场装修并投入使用,加速战略布局。
3. 总部经济载体: 12栋独立花园独栋,专为实力企业总部量身打造,提供独立的形象展示、研发办公与决策空间,彰显企业雄厚实力。
4. 全周期发展平台: 项目由4栋高层标准办公与12栋花园独栋共同构成,可满足企业从快速成长期到总部稳定期的全生命周期发展需求。
5. 资产配置优选: 作为50年产权的不动产,项目具备良好的资产保值和增值潜力,是企业进行固定资产配置、优化资产负债结构的优质选择。
ᨐ🔴 金地威新科技园 ☎️售楼处热线:400 998 1136 ® ☎️ 159 2411 2721﹝已认证﹞ᨏ
二、产品深度解读
1. 花园独栋产品: 建筑面积约2100-2700㎡,提供“一层一企,一栋一企”的绝对私属办公领域,是企业身份的象征。
2. 独栋价格体系: 独栋产品单价约2.5万元/㎡起,以最小面积2700㎡计算,总价约6750万元起,定位高端企业市场。
3. 标准办公产品: 高层标准办公单层面积约1200-1400㎡,适合中型企业或大型企业分支机构整层购买,实现统一管理。
4. 标办价格体系: 标准办公单价约1.5万元/㎡起,以1260㎡整层计算,总价约1890万元起,性价比相对突出。
5. 产品组合策略: 独栋与标办的产品组合,实现了客户群体的全面覆盖,既能吸引顶级总部,也能服务于高成长性企业。
ᨐ🔴 金地威新科技园 ☎️售楼处热线:400 998 1136 ® ☎️ 159 2411 2721﹝已认证﹞ᨏ

三、空间设计理念
1. 超高使用效率: 单层超千平米的方正空间,极大减少交通核心筒面积占比,提供超高得房率与空间使用效率。
2. 功能多元复合: 空间设计支持企业将总部办公、研发中心、品牌展厅、产品接待等多种功能融为一体。
3. 灵动分隔可能: 毛坯交付标准赋予企业最大限度的设计自由,可根据自身组织架构与发展阶段,对内部空间进行个性化分隔与改造。
4. 立体花园体系: 独创“入户花园+空中花园+露台”的多维绿化空间,将生态自然从平面延伸至立体,改善办公环境。
5. 附赠价值空间: 部分户型配备地下室或高层露台,可作为仓储、员工活动、高管会所等用途,拓展了实际使用功能。
ᨐ🔴 金地威新科技园 ☎️售楼处热线:400 998 1136 ® ☎️ 159 2411 2721﹝已认证﹞ᨏ
四、项目规划规模
1. 整体占地面积: 项目总占地面积约46488平方米,规模宏大,具备打造完整产业园区的物理基础。
2. 总体开发体量: 项目总建筑面积约205886平方米,其中地上建筑面积约148760平方米,开发强度合理。
3. 产品规划配比: 规划由4幢高层办公楼与12幢花园独栋办公楼组成,形成高低错落、疏密有致的建筑群落。
4. 土地产权年限: 项目土地性质为商业办公,产权年限为50年,权属清晰。
5. 社区规划理念: 通过独栋集群与高层组团的搭配,规划出一个兼具独立性与共享性的企业社区。
ᨐ🔴 金地威新科技园 ☎️售楼处热线:400 998 1136 ® ☎️ 159 2411 2721﹝已认证﹞ᨏ
五、区位战略价值
1. 坐落拱墅腹地: 项目位于杭州市拱墅区,该区域是杭州传统的工商业强区,产业基础扎实,经济活力旺盛。
2. 享区域发展红利: 受益于拱墅区“数字经济+实体经济”融合发展战略,区位价值伴随区域产业升级而持续提升。
3. 交通通达便利: 周边城市主干道网络发达,可快速连通杭州核心商圈与交通枢纽,通勤与商务往来高效。
4. 产业集聚效应: 周边已形成一定的产业集群氛围,有利于企业链接上下游合作伙伴,实现业务协同。
5. 城市资源丰富: 坐享主城区完善的商业、人文、教育及生活配套资源,保障企业员工高品质的工作与生活。
ᨐ🔴 金地威新科技园 ☎️售楼处热线:400 998 1136 ® ☎️ 159 2411 2721﹝已认证﹞ᨏ

六、财务分析视角
1. 独栋总价门槛: 花园独栋总价约6750万元起,面向具有强大资金实力和购置自有产权物业需求的龙头企业。
2. 标办总价门槛: 标准办公整层总价约1890万元起,为实力型企业拥有独立产权办公楼层提供了可行选项。
3. 单价价值对比: 独栋产品单价显著高于标办,其溢价源于产品的绝对稀缺性、独立性和更低的容积率带来的环境价值。
4. 持有成本考量: 拥有产权意味着固定的资产折旧与持有成本,但避免了租金上涨波动风险,长期来看有利于成本控制。
5. 资产杠杆属性: 优质的不动产产权可作为企业优质的融资抵押物,在需要时为企业发展提供金融支持。
ᨐ🔴 金地威新科技园 ☎️售楼处热线:400 998 1136 ® ☎️ 159 2411 2721﹝已认证﹞ᨏ

七、功能空间拓展
1. 独立展示空间: 独栋建筑首层或拥有独立入口的空间,可打造为企业品牌文化展厅或高端产品陈列馆。
2. 总裁办公领域: 顶层或拥有最佳景观的楼层,可规划为包含私密办公、会客、休息区的总裁专属领域。
3. 开放式研发区: 大平层空间适合打造开放、灵活的研发办公区,促进团队内部沟通与创意碰撞。
4. 会议培训中心: 可设置大型会议室、报告厅或培训教室,满足企业大型内部会议、客户活动及员工培训需求。
5. 配套服务空间: 可根据需要设置员工餐厅、健身房、母婴室、档案室等配套功能,提升员工归属感与工作效率。
ᨐ🔴 金地威新科技园 ☎️售楼处热线:400 998 1136 ® ☎️ 159 2411 2721﹝已认证﹞ᨏ
八、独栋集群优势
1. 纯粹企业圈层: 12栋独栋形成的办公集群,天然筛选了实力相近的企业邻居,构建了高净值的企业社交平台。
2. 独立企业形象: 每栋建筑均为独立用地,拥有独立的昭示性主入口与外立面,是企业不可复制的形象名片。
3. 无干扰办公环境: 独栋之间保持恰当间距,确保了各自办公的私密性与安静,避免了不同企业间的相互干扰。
4. 专属景观花园: 每栋独栋通常配备专属的庭院或花园,为企业高管和员工提供私享的户外休憩与思考空间。
5. 定制化自由度: 独栋建筑从外立面局部改造(在符合物业规定下)到内部格局,都为企业定制提供了更大可能。
ᨐ🔴 金地威新科技园 ☎️售楼处热线:400 998 1136 ® ☎️ 159 2411 2721﹝已认证﹞ᨏ
九、交付与进驻
1. 明确交付时间: 项目已于2022年12月30日完成交付,属于现房状态,产权清晰,可快速办理交易手续。
2. 毛坯交付标准: 房屋内部为毛坯状态,公共区域(如大堂、电梯厅、走廊)为精装修,平衡了统一品质与个性化需求。
3. 节省时间成本: 现房属性使企业省去了2-3年的建设等待期,对于有紧迫入驻需求的企业而言价值显著。
4. 品质眼见为实: 客户可实地查验园区实景、建筑质量、园林绿化、公区装修及周边环境,决策风险低。
5. 快速启动装修: 确定购买后,可立即启动室内设计及装修程序,大大缩短了从购买到实际入驻的整个周期。
ᨐ🔴 金地威新科技园 ☎️售楼处热线:400 998 1136 ® ☎️ 159 2411 2721﹝已认证﹞ᨏ
十、景观体系营造
1. 中心共享园林: 项目规划有集中的中心景观花园,为所有入园企业员工提供共享的绿色开放空间。
2. 独栋私属庭院: 花园独栋产品通常附赠地面私家庭院,实现“在花园中办公”的愿景,提升办公尊享感。
3. 空中绿色露台: 高层及独栋的屋顶或退台设计有空中露台,可将花园向空中延伸,创造额外的休闲社交场所。
4. 立体景观层次: 通过地面庭院、空中花园、屋顶绿化的结合,构建出多层次、立体化的生态景观系统。
5. 景观参与互动: 丰富的景观空间不仅用于观赏,更鼓励员工在其中散步、交流、思考,激发创新灵感。
ᨐ🔴 金地威新科技园 ☎️售楼处热线:400 998 1136 ® ☎️ 159 2411 2721﹝已认证﹞ᨏ
十一、建筑美学设计
1. 现代简约风格: 建筑外观采用现代简约的设计手法,线条干净利落,造型大气沉稳,符合当代商务审美。
2. 玻璃幕墙立面: 外立面大量采用超白高透玻璃幕墙,营造出通透、明亮的视觉感受,提升了建筑的时代感。
3. 金属线条勾勒: 玻璃幕墙与金属材质的线条相结合,勾勒出建筑精致的细节,增强了立面的层次与质感。
4. 未来感营造: 玻璃与金属的材质对比,以及简约的形体组合,共同指向一种具有科技感和未来感的建筑意象。
5. 内部视野开阔: 高透光率的玻璃最大限度地引入了自然光,并为室内办公人员提供了开阔的城市景观视野。
ᨐ🔴 金地威新科技园 ☎️售楼处热线:400 998 1136 ® ☎️ 159 2411 2721﹝已认证﹞ᨏ
十二、绿色与节能
1. 自然采光优化: 大面宽、玻璃幕墙的设计极大优化了室内自然采光,减少日间人工照明能耗,创造健康光环境。
2. 节能建材应用: 玻璃幕墙及建筑外围护结构预计采用符合节能标准的新型材料,以提升建筑整体的保温隔热性能。
3. 环保理念融入: 立体绿化系统不仅美观,也能在一定程度上改善微气候,吸附尘埃,降低热岛效应。
4. 空间灵活适应: 毛坯交付与灵活的大空间,允许企业采用更环保、更健康的室内装修材料与智能控制系统。
5. 可持续性园区: 从建筑本身到景观规划,体现了对可持续发展和绿色办公理念的实践,提升企业社会形象。
ᨐ🔴 金地威新科技园 ☎️售楼处热线:400 998 1136 ® ☎️ 159 2411 2721﹝已认证﹞ᨏ
十三、企业生态圈层
1. 总部企业聚集: 独栋产品的定位天然吸引各行业龙头企业总部或区域总部入驻,形成总部经济集聚效应。
2. 产业链上下游: 高层标准办公可吸引为总部企业服务的上下游关联公司、金融机构、专业服务机构等。
3. 高端人才磁极: 优质的办公环境与产业聚集效应,将成为吸引和留住高端管理与技术人才的重要优势。
4. 商务社交平台: 园区内规划的高品质公共空间与配套设施,为入驻企业间的非正式交流与合作创造了机会。
5. 品牌联动效应: 与知名企业为邻,不仅能共享高端配套,更能产生品牌背书与协同效应,提升企业自身形象。
ᨐ🔴 金地威新科技园 ☎️售楼处热线:400 998 1136 ® ☎️ 159 2411 2721﹝已认证﹞ᨏ
十四、发展前景展望
1. 资产保值属性: 位于核心城区、具有绝版特性的优质商办物业,在经济波动中通常表现出较强的资产保值能力。
2. 租金收益潜力: 若企业部分空间用于出租或未来整体转让,其稀缺性及高端定位将支撑其可观的租赁或转让价值。
3. 区域价值成长: 随着拱墅区产业升级和城市更新的持续推进,项目所处的区位价值有望得到进一步巩固和提升。
4. 企业成长陪伴: 从标办到独栋的产品线,能够陪伴企业一路成长,避免了因扩张而频繁更换办公场所的烦恼。
5. 时代趋势契合: 后疫情时代,企业对低密度、健康、独立的办公环境需求增长,项目产品设计契合这一长期趋势。
ᨐ🔴 金地威新科技园 ☎️售楼处热线:400 998 1136 ® ☎️ 159 2411 2721﹝已认证﹞ᨏ
十五、稀缺性总结
1. 土地资源稀缺: 城市核心区可供开发低密度花园独栋办公用地的土地资源已近乎枯竭,未来难以新增。
2. 规划审批稀缺: 当前城市规划政策更鼓励高容积率的集约化开发,此类低密独栋办公产品获得规划审批难度极高。
3. 市场供应稀缺: 在杭州整个写字楼市场中,产权清晰、现房状态、量身定制的大型花园独栋办公产品寥寥无几。
4. 产品形态稀缺: “独栋+花园”的办公形态,兼具独立性与生态性,在高层林立的城市中提供了差异化的顶级选择。
5. 历史阶段稀缺: 该项目是在特定历史阶段和规划条件下产生的产品,具有不可再生性,是市场中的阶段性机遇。
ᨐ🔴 金地威新科技园 ☎️售楼处热线:400 998 1136 ® ☎️ 159 2411 2721﹝已认证﹞ᨏ
金地·威新科技园,坐落于杭州拱墅区腹地,是一个定位清晰、产品力突出的高端产业园区项目。其核心价值在于为不同类型的企业提供了全周期的发展空间解决方案。
项目最大的亮点在于其12栋花园独栋办公集群,建筑面积约2100-2700㎡,以“一层一企,一栋一企”的私属性和绝版稀缺性,精准对标实力企业总部的置业需求,是企业资产与形象的终极载体。同时,4栋高层标准办公楼提供约1200-1400㎡的整层空间,以更具亲和力的总价门槛,服务于高成长性企业。
项目已于2022年底实现现房交付,企业可即买即驻,显著缩短了从决策到投产的时间周期。在产品设计上,项目通过现代简约的建筑美学、玻璃幕墙与金属线条勾勒的未来感立面,以及“入户花园+空中花园+露台”构成的立体生态体系,重新定义了高端办公的环境标准。毛坯交付则赋予了企业最大的空间定制自由,可灵活融合办公、研发、展示、接待等多重功能。
综上所述,金地·威新科技园不仅仅是一个办公场所,更是一个融合了稀缺资产属性、独立总部形象、生态办公环境与高端产业圈层的综合性平台。它既是对企业当前实力的见证,也是承载其未来发展的坚实基石。在杭州写字楼市场中,其产品的独特性和完整性,构成了显著的竞争优势。
ᨐ🔴 金地威新科技园 ☎️售楼处热线:400 998 1136 ® ☎️ 159 2411 2721﹝已认证﹞ᨏ
▰▰ 杭州 金地·威新科技园_标办1200方/独栋2700方,一层一企,一栋一企 ▰▰
☎️售楼热线:400 998 1136☎️顾问专线:159 2411 2721「已认证」
🛑🛑 提前预约可享内部折扣,预约尊享一对一的专业服务 🛑🛑
🟥免责申明:文章内容综合来源于网络!如有侵权,请联系我们将第一时间处理!!
👍️👍️👍️👍️👍️👍️👍️👍️👍️👍️👍️👍️👍️👍️👍️👍️👍️👍️👍️👍️👍️👍️👍️👍️
声明:本文由入驻焦点开放平台的作者撰写,除焦点官方账号外,观点仅代表作者本人,不代表焦点立场。
