杨浦海上钱潮(真实情况报道)_房价_杨浦海上钱潮楼盘怎么样?
用手机看
扫描到手机,新闻随时看
扫一扫,用手机看文章
更加方便分享给朋友
﹌﹌﹌﹌﹌﹌﹌﹌﹌﹌﹌‼内环内低总价不限购物业类型:50年商办物业费:2.9元/平/月燃气费:5.18元/立方☎𝑽𝒊𝒑𝑳𝒊𝒏𝒆:4009633309(售楼直销)◆售楼处直销热线|中介勿扰|欢迎致…
市北大区~杨浦鞍山板块
商机预告~2字头入驻内环
海上钱潮(五环大厦)
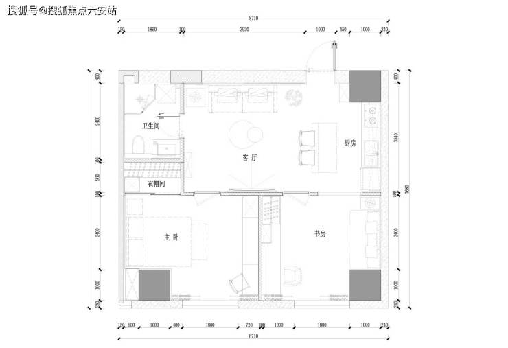
建面:56㎡-64㎡
总价:275-316万
建面:99㎡-139㎡
总价:495-688万
赠送储物间
低物业费2.9/㎡
﹌﹌﹌﹌﹌﹌﹌﹌﹌﹌﹌
‼ 内环内 低总价 不限购
‼ 现房‼ 装修交付‼
❇精装修❇通燃气❇
☎𝑽𝒊𝒑𝑳𝒊𝒏𝒆:400 963 3309

基础信息
项目名称:海上钱潮
行政区:杨浦
物业类型:50年商办
环线位置:内环内
建筑面积:约56-139平
交房标准:装修交付
可售套数:7套
总价约:275万~688万
付款方式:首付8成左右
总高:18层
定金:20万
梯户比:2梯8户
物业公司:上海冶金物业有限公司
开发商:上海五环开发有限公司
拿地时间:1998年
竣工时间:1999年
物业费:2.9元/平/月
水费:6元/吨:电费:1.2元/度
共有车位:400:
车位配比:1:1
停车费:10元/小时,封顶80元。1000元/月
燃气费:5.18元/立方











☎𝑽𝒊𝒑𝑳𝒊𝒏𝒆:400 963 3309(售楼直销)
☎置业热线:130 7367 8721(同微信)
◆售楼处直销热线|中介勿扰|欢迎致电咨询◆
◆欢迎来电预约尊享服务!给您一个满意温馨的家◆
◆网上售楼中心——欢迎来电咨询〢——匠心钜制恭迎品鉴◆
声明:本文由入驻焦点开放平台的作者撰写,除焦点官方账号外,观点仅代表作者本人,不代表焦点立场。