钱湾加速中心写字楼-钱湾加速中心楼盘详情-杭州看房网丨杭州钱湾加速中心(营销中心)-萧山钱湾加速中心首页网站丨一文秒懂楼盘百科丨杭天下
扫描到手机,新闻随时看
扫一扫,用手机看文章
更加方便分享给朋友
▰▰ 杭州萧山区 钱湾加速中心 写字楼 ▰▰钱湾加速中心位于钱塘江南岸,一处全球技术领先型企业的成长加速中心,是传化科技城2025年倾力打造的重点产业项目,总体量为8.4万平方米;以服务全球技术领先型企业的研发办公为主。总体量为8.4万平方米,以服务全球技术领先型企业的研发办公为主,有办公空间、中高端商务酒店等,还有兼会议、商业的多功能配套空间,产商融合,适配于科创企业加速发展阶段的多维需求。ᨏᨐ 🔴 钱湾加速中心 营销中心 ☎️置业热线:400 998 1136 ® ☎️ 159 2411 2721﹝已认证﹞ᨏᨐ
🌈钱塘江边|超甲级写字楼|地铁口
🛑江南科技城,唯一超甲级写字楼!
🌈稀缺商业:商铺、独栋、整层写字楼都有
🛑买、租,都可以
🌈项目位置:(地铁口知行路站附近)

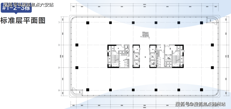
◆【建筑面积】8.4万 ㎡(地上建筑面积5.7 万 ㎡);
◆【用地属性】商务办公;
◆【楼层面积】1580㎡;
◆【楼层层高】1F/ 4.95m,2F/ 4.1m;
◆【楼板承重】1F: 500KG/m;2-5F: 400KG/m;6F及以上:250KG/m;
◆【燃气】1-4# 一层预留;
◆【电量】商业130W/m,商业餐饮200W/m,2-5E120W/m,其余100W/m
◆【管井设置】1# 2处(2.9m);2、3# 各3处(4.6m);
◆【地下车位】642个;
ᨏᨐ☎️ 钱湾加速中心 置业热线:400 998 1136 ® ☎️ 159 2411 2721﹝已认证﹞ᨏᨐ
钱湾加速中心:擘画钱塘江畔的科创企业加速器
在钱塘江南岸的传化科技城核心区域,一座总体量达8.4万平方米的产业地标正拔地而起。钱湾加速中心作为2025年倾力打造的重点产业项目,以其卓越的区位优势、超甲级硬件配置和全方位的产业服务生态,为全球技术领先型企业提供理想的研发办公空间,成为江南科技城区域内稀缺的超甲级写字楼项目。
ᨏᨐ☎️ 钱湾加速中心 置业热线:400 998 1136 ® ☎️ 159 2411 2721﹝已认证﹞ᨏᨐ
战略区位:坐拥长三角核心交通枢纽
钱湾加速中心地处杭州萧山区江南科技城核心板块,项目毗邻地铁知行路站,实现与城市轨道交通网络的无缝衔接。钱塘江沿岸的优越位置既赋予了项目极佳的景观视野,也创造了便捷通达的交通条件。
项目周边路网发达,快速连接杭州主城区及萧山国际机场,一小时交通圈覆盖长三角主要城市,为企业搭建起高效便捷的物流、人流和信息流通道。这种得天独厚的区位优势为入驻企业提供了强大的发展助推力,使其能够更好地融入长三角一体化发展格局。
ᨏᨐ☎️ 钱湾加速中心 置业热线:400 998 1136 ® ☎️ 159 2411 2721﹝已认证﹞ᨏᨐ

超甲级硬件配置:打造卓越办公体验
钱湾加速中心以超甲级写字楼标准打造,地上建筑面积5.7万平方米,每层面积达1580平方米,为企业提供宽敞舒适的办公空间。项目精心设计的层高配置:一层4.95米、二层4.1米,营造出开阔大气的空间感受。
楼板承重能力根据不同楼层进行科学分配,一层承重达500KG/平方米,二层至五层为400KG/平方米,六层及以上为250KG/平方米,充分满足研发型企业对承重的特殊需求。电力配置方面,商业区域130W/平方米,商业餐饮200W/平方米,2-5E区域120W/平方米,其余100W/平方米,为企业提供充足的电力保障。
ᨏᨐ☎️ 钱湾加速中心 置业热线:400 998 1136 ® ☎️ 159 2411 2721﹝已认证﹞ᨏᨐ

多元空间组合:满足企业发展全周期需求
钱湾加速中心创新性地规划了多元化的空间组合,包括标准办公空间、独栋办公楼和整层办公区域,能够满足不同规模、不同发展阶段企业的需求。
项目配备中高端商务酒店,兼有会议、商业等多功能配套空间,实现真正的产商融合。1-4#一层预留燃气接口,为需要餐饮服务的商业配套提供便利。管井设置方面,1#设有2处(2.9米),2、3#各设3处(4.6米),确保各类管线布置的合理性与便捷性。642个地下车位为企业和访客提供充足的停车空间,解决停车难问题。
ᨏᨐ☎️ 钱湾加速中心 置业热线:400 998 1136 ® ☎️ 159 2411 2721﹝已认证﹞ᨏᨐ
产业服务生态:构建企业加速成长平台
钱湾加速中心不同于传统写字楼,而是以服务全球技术领先型企业为定位,打造集研发办公、产业服务、商业配套于一体的创新加速平台。项目依托传化科技城的产业资源优势,为企业提供技术转化、人才引进、资金对接等全方位服务支持。
通过构建完善的产业服务生态圈,钱湾加速中心能够有效降低企业的运营成本,加速技术创新和产业化进程,帮助企业突破发展瓶颈,实现快速增长。这种深度服务模式使项目成为科创企业加速发展的理想选择。
ᨏᨐ☎️ 钱湾加速中心 置业热线:400 998 1136 ® ☎️ 159 2411 2721﹝已认证﹞ᨏᨐ

投资价值潜力:稀缺资产的长远价值
作为江南科技城区域内唯一的超甲级写字楼,钱湾加速中心具有显著的稀缺性和投资价值。项目秉持“买、租都可以”的灵活策略,为各类投资者和企业用户提供多种合作方式。
钱塘江畔的优越位置、地铁口的交通便利、超甲级的建筑品质以及传化科技城的产业背景,共同构筑了项目的保值增值基础。随着杭州数字经济和新制造业计划的深入推进,钱湾加速中心作为科创企业聚集的重要载体,其资产价值和投资回报前景值得期待,是企业购置或租赁办公空间的优质选择。
ᨏᨐ☎️ 钱湾加速中心 置业热线:400 998 1136 ® ☎️ 159 2411 2721﹝已认证﹞ᨏᨐ
钱湾加速中心以其战略性的区位优势、超甲级的硬件配置、多元化的空间组合、完善的产业服务生态和显著的投资价值,正成为钱塘江畔一颗璀璨的产业明珠。
项目致力于为全球技术领先型企业提供全方位的发展支持,助力科创企业在这片热土上加速成长,共创美好未来。
ᨏᨐ☎️ 钱湾加速中心 置业热线:400 998 1136 ® ☎️ 159 2411 2721﹝已认证﹞ᨏᨐ




▰▰ 杭州萧山区 钱湾加速中心 地铁口 江南科技城,唯一超甲级写字楼! ▰▰
☎️售楼热线:400 998 1136☎️顾问专线:159 2411 2721「已认证」
🛑🛑 提前预约可享内部折扣,预约尊享一对一的专业服务 🛑🛑
🟥免责申明:文章内容综合来源于网络!如有侵权,请联系我们将第一时间处理!!
👍️👍️👍️👍️👍️👍️👍️👍️👍️👍️👍️👍️👍️👍️👍️👍️👍️👍️👍️👍️👍️👍️👍️👍️

声明:本文由入驻焦点开放平台的作者撰写,除焦点官方账号外,观点仅代表作者本人,不代表焦点立场。
