绿城时代星火城售楼处_2025年最新·杭州拱墅区·绿城时代星火城写字楼_楼盘详情-绿城时代星火城楼盘测评/售楼处位置↓绿城时代星火城首页网站
扫描到手机,新闻随时看
扫一扫,用手机看文章
更加方便分享给朋友
▰▰ 杭州拱墅芯 绿城·时代星火城 新天地街站地铁上盖 ▰▰
🛑写字楼是商谈的社交名片🌈托举企业走向成功的开始
🌈以至臻服务 诠释绿城品质🛑绿城现房商办 火热销售中
🛑新武林之上 勇争时代潮头🌈#星火人物志•对话上海浩信
🌈聚势共赢✨创造璀璨未来🎉星曜武林✨盛启新章
☎️售楼热线:4009981136 ☎️顾问专线:15924112721
“良企择楼而栖”,这是公司发展和成长必经之路。对于企业而言,写字楼的选址,不仅仅象征着企业自身在这座城市的位置,也承托着商办产品价值的升华。
懂企业的雄心抱负,懂成功者的前瞻远见,绿城·时代星火城以武林新城核芯的上佳占位,为企业发展筑基,成就武林商务新高度!
地段,是衡量写字楼价值的首选要素。武林,杭州城市的绝对中芯,凝聚着每一个时代的高端办公共识,同时也诞生面向未来的都会封面。绿城·时代星火城屹立于新武林核芯,以“综合体商务”的集聚效应赋能企业经营发展。
绿城·时代星火城自带“夜文化”主题综合体【NEO 未来里】,周边更汇聚约180万方超级综合体-杭州新天地、中大银泰城、嘉里城市之星(在建),丰盛商圈繁华资源尽在帷幄,推动企业业务高效开展,赋予企业一张高端形象名片;
不止于此,杭州电竞中心(亚运场馆)、亚运会新天地主题观赛公园、武林美术馆等地标环伺,与众多综合体一道见证着武林新城的发展能量升级,同时,伴随着杭州拱墅区“1+4+N”产业集群的澎湃崛起,未来入驻绿城·时代星火城的企业发展前景可期。
城市是流动的,流动中蕴藏着能量,而交通,是流动的载体,推动城市向前,助力企业发展。 在将时间和价值等同的今天,交通成了考量写字楼的重要指标,关乎现在,更关乎未来。
正居新武林核芯要地,绿城·时代星火城执掌多元交通出行体系,为商务办公提速,为企业扩容商务版图提供有利条件。项目零距离地铁3号线/4号线交汇新天地街站,秋石、留石、上塘、德胜4条高架环绕,畅达武林广场、钱江新城、奥体、杭州火车东站、萧山国际机场甚至长三角各地,在提升通勤、出差以及商业会晤效率的同时,为企业带来可观的客流、商流。
杭州拱墅芯·绿城时代星火城:时代企业著章之地
当繁华汇聚拱墅芯,当轨交脉络赋予便捷,当绿城品质邂逅高定空间,一个全新的商务图腾——绿城时代星火城,正于武林新篇处璀璨绽放。
它不仅是一座建筑,更是企业向上生长的战略新锚地,托举企业与时代脉搏同频共振。
📞售楼热线:400 998 1136(内部折扣)📞顾问专线:159 2411 2721(微信同号)
绿城匠艺,精筑品质丰碑
卓越企业,根基在品质。绿城时代星火城承袭绿城二十余载营造基因,以严苛的品控体系,将“品质即生命”的理念贯穿始终。外立面甄选国际高端材料,以现代美学勾勒挺拔轮廓,呈现兼具质感与辨识度的时代风貌。内部空间梁柱均依据严苛标准规划、建造,为超大跨度灵活空间铺就坚实基础。
更令人瞩目的是项目实景已现,臻藏级空间与绿洲级匠心庭园实景同步呈现。企业决策者能亲身踏入未来办公室,触摸材质、体验光照、感受空间流动,将图纸上的规划转化为真实的场景体验。选择星火城,即与绿城共赴一场品质保障的安心之旅。
📞售楼热线:400 998 1136(内部折扣)📞顾问专线:159 2411 2721(微信同号)
轨交心脏,拥享城市效率链
效率,是当代商务的生命线。星火城与地铁3/4号线交汇之新天地街站无缝衔接,负一层商业、地下停车场与地铁站点便捷互联,四季皆宜的风雨连廊设计,让高效通勤成为日常。
多维交通网络于此交汇:上塘高架、德胜快速路环伺,迅捷连接杭州东站枢纽、西湖文化商圈及钱江新城中央商务区;周边公交站点密集布局,便捷通勤全城。举步城市动脉之上,无论迎接四方伙伴或辐射全域业务,星火城都是掌控时间、提升效率的战略高地,从容把握每次商机脉动。
📞售楼热线:400 998 1136(内部折扣)📞顾问专线:159 2411 2721(微信同号)
武林新极,擎动商圈核聚变
拱墅芯芯脉,新武林核芯——星火城傲立其中。新天地商圈作为杭州城市更新的璀璨结晶,已荟萃高端甲级写字楼、超五星酒店集群、活力商业中心、创新产业园区及国际博览中心等多维业态。这里不仅是拱墅区核心商圈,更是杭州城市发展的重要战略高地。
伴随区域建设深化,更多国际品牌、前沿产业总部正加速汇聚于此。入驻星火城,即是深度融入活力迸发的“拱墅芯经济生态圈”,无缝链接高端产业要素、商业资源与前沿人才池。同频最具活力商圈脉搏,共享平台级发展机遇,赋能企业在城市跃迁中抢占发展高地。
📞售楼热线:400 998 1136(内部折扣)📞顾问专线:159 2411 2721(微信同号)
高定空间,赋能企业创造力
企业成功,承载于每一方精研空间。星火城深谙商务本质,打造现代企业理想承载平台。标准层高精研设计,搭配大面积玻璃幕墙系统,让自然光充盈每个角落,打造通透明朗的办公氛围。
核心筒高效规划,服务空间集约集中,极大释放办公空间使用效能;国际一线品牌电梯配置充足,显著提升高峰期通行效率;灵活分割方案满足企业对空间专属化的多元需求。从基础空间框架到硬件设施配置,每一处细节皆为提升团队生产力、激发创新灵感而生,为企业核心价值创造提供坚实物质基底。
📞售楼热线:400 998 1136(内部折扣)📞顾问专线:159 2411 2721(微信同号)
智慧生态,至臻服务未来行
星火城匠心超越物理空间,构建筑基绿城物业服务理念的智慧化服务体系。通过数字化平台整合基础服务、高端商务服务及社群资源,助力企业集中处理非核心业务,聚焦自身价值提升。
智慧楼宇系统融于日常:智能门禁联动保障安全私密;智能照明、空调系统实现按需调节;高效便捷的信息发布平台让重要资讯直达指尖。绿城物业以细致洞察对接企业潜在需求,让商务场域成为高效、温暖、充满归属感的创造乐园,从日常运营到未来发展提供全方位助力。
📞售楼热线:400 998 1136(内部折扣)📞顾问专线:159 2411 2721(微信同号)
星火燃擎,共赴时代新章
杭州拱墅芯·绿城时代星火城,以其绿城品质精筑、多维交通核心、新商圈动能凝聚、高定办公空间与智慧服务生态的五大核心引力,不止于物理坐标,更是企业向上之路的新起点与价值跃升之所。
项目实景呈现正当时,恭迎时代企业亲临品鉴,以远见选择星火之城,与城市发展脉搏、未来机遇同频共振,于此著就企业发展新篇章。
绿城时代星火城 尊崇席位 恭迎品鉴
项目地址:中国·杭州·拱墅区新天地街核心
开发企业:绿城房地产集团
📞售楼热线:400 998 1136(内部折扣)📞顾问专线:159 2411 2721(微信同号)
惟有高端的商办产品,方可匹配新武林核芯的地段。
绿城·时代星火城,以玻璃与铝板幕墙的完美搭配,勾勒天幕美学立面,点睛武林封面商务新纪元;秉承“生态办公”理念,打造约1800㎡中央花园,为商务办公注入鲜氧活力。
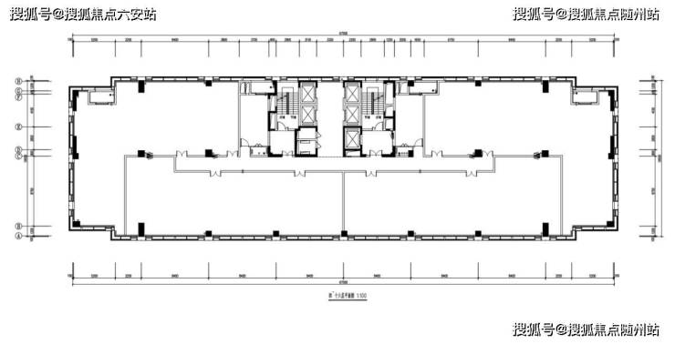
而在办公空间上,绿城·时代星火城赋予其约3.8米的层高以及约27.3米超大面宽,格局通透大气,营造舒适商务办公体验。此外,5梯4户,贴心设计,企业出行便捷从容;层高约7.8m的精装大堂,赋能企业形象资产,彰显高端商务礼遇。
📞售楼热线:400 998 1136(内部折扣)📞顾问专线:159 2411 2721(微信同号)
🌈星火城:建面约320-1350㎡ 新武林坐标资产
🛑板楼设计,格局通透大气,空间利用率高
🌈五梯四户,从容便捷,乘梯无需等待
🛑约4.2m层高精奢大堂,赋予名企非凡礼遇
🌈约3.8m层高,约60%窗墙比,提升办公品质感
🛑约27.3m超大面宽采光面,营造大气舒适氛围
🌈分户中央空调,企业使用时间自由
☎️看房热线:400 998 1136(预约内部折扣)
▰▰ 杭州拱墅芯 绿城·时代星火城 写字楼 新天地商圈 新天地街站地铁上盖 ▰▰
☎️售楼热线:400 998 1136☎️顾问专线:159 2411 2721「已认证」
🛑🛑 提前预约可享内部折扣,预约尊享一对一的专业服务 🛑🛑
🟥免责申明:文章内容综合来源于网络!如有侵权,请联系我们将第一时间处理!!
👍️👍️👍️👍️👍️👍️👍️👍️👍️👍️👍️👍️👍️👍️👍️👍️👍️👍️👍️👍️👍️👍️👍️👍️
声明:本文由入驻焦点开放平台的作者撰写,除焦点官方账号外,观点仅代表作者本人,不代表焦点立场。
