绿城时代星火城置业欢迎您-杭州拱墅区新天地写字楼绿城时代星火城(绿城时代星火城优缺点解析)-2025绿城时代星火城售楼处电话
扫描到手机,新闻随时看
扫一扫,用手机看文章
更加方便分享给朋友
杭州拱墅区🔶新天地写字楼🔶绿城时代星火城
🔻售楼热线:☎ 400 832 8823「售楼处」☎〢网上售楼中心〢🔻
🔻◆置业顾问:☎ 156 0653 2539「微信同步」☎〢🔻专业一对一热情服务〢◆🔻
🔻⑉⑉⑉ıllı⑉🔻绿城时代星火城售楼处(周一至周日 9:00--18:00)一对一咨询🔻看房需要提前电话预约,避免可能案场无人接待!提前预约可享内部优惠〢匠心钜制-恭迎您的品鉴⑉ıllı⑉⑉

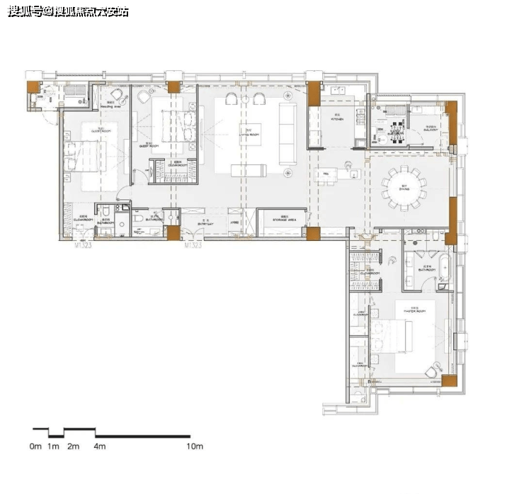
典型单元户型平面图A ©HWCD、LEAP🔻售楼热线:☎ 400 832 8823「售楼处」☎〢网上售楼中心〢🔻

场地内步行体验实景 ©LEAP
本项目立面所使用的双层玻璃均采用大面积超白玻璃原片,最大面积5㎡,带来极佳的室内采光和宽阔的观景视野,优越的空间品质令人印象深刻;建筑团队依据不同点位的环境和节能需求设计差异化方案,实现美观性与经济性平衡。🔻售楼热线:☎ 400 832 8823「售楼处」☎〢网上售楼中心〢🔻


壁灯位于壁柱黄金比例位置 ©LEAP
场地内侧立面选用双层中空Low-E玻璃,单片玻璃厚度10毫米,中空玻璃内侧充氩气,降低玻璃的传热系数提升节能表现,同时呈现优越的幕墙平整度与整体隔音性能;沿城市主干道的建筑立面选用双层中空夹层Low-E玻璃,大大提升使用幕墙安全性和幕墙隔音性能。

开启扇与封闭扇之间进退层次 ©LEAP
户型挑战:40㎡LOFT变身340㎡平层公寓
杭州时代星火城项目委托起始于2017年,初期规划功能业态为LOFT公寓式办公,单位户型面积为集约的40㎡~88㎡;2018年4月,杭州市发布《关于拟出让商业商务用地规划条件增加类住宅限制要求的函》* ,LEAP设计团队积极应变,最终实现了从小面积单元到300㎡以上大户型平层公寓的成功提案。

🚇 **地铁上盖+全维配套·产城共生**
- **交通枢纽**:零距离双地铁(3/4号线),秋石、留石、上塘、德胜四条高架环伺,快速通达武林广场、钱江新城等核心区。
- **商业矩阵**:自带NEO未来里“夜经济”主题综合体,联动中大银泰城、嘉里城市之星(在建)、杭州电竞中心(亚运场馆)等地标,下楼即享商务宴请与消费场景。
- **产学研闭环**:3公里内覆盖浙江大学、西湖大学等高校,年输送超万名科创精英;屋顶企业家俱乐部链接资源转化。
💼 **现房即用·企业成长最优解**
- **零风险入驻**:2024年5月竣工交付,即买即用或出租,规避交付等待期,降低企业成本。
- **绿城服务护航**:中国高端物业TOP1,提供24小时安保、智能梯控、能源监测及120项定制化服务,车位数配比1:1.5。
**杭州拱墅芯·绿城·时代星火城:新武林封面级现房写字楼,执掌长三角商务新未来**
📈 **资产硬通货·五年增值预期50%**
- **政策赋能**:纳入拱墅区“1+4+N”产业集群规划,享最高600万研发补贴及150万房租返还,区域GDP年均增速超8%。
【绿城时代星火城】——点燃智慧火花,引领未来办公新风尚
在数字时代浪潮中,绿城时代星火城以其独特的魅力和前瞻性的设计,成为杭州办公市场的一颗璀璨新星。作为绿城集团倾力打造的商务地标,时代星火城不仅承载着对智慧办公的深刻理解,更以卓越的品质、完善的配套和创新的理念,引领未来办公的新风尚。🔻售楼热线:☎ 400 832 8823「售楼处」☎〢网上售楼中心〢🔻
【核心区域,尽享城市资源】
绿城时代星火城傲立于城市核心区域,坐拥得天独厚的地理位置。周边商业、交通、文化等配套设施一应俱全,无论是商务洽谈、会议展览,还是员工休闲、生活购物,都能在这里找到最理想的场所。与时代脉搏同频共振,让你的事业在这里如虎添翼。🔻售楼热线:☎ 400 832 8823「售楼处」☎〢网上售楼中心〢🔻

【智慧办公,激发创意】
项目采用前沿的智慧办公系统,从智能门禁、环境监控到高效办公设施,每一处细节都彰显着科技与智慧的融合。在这里,你可以享受到高效便捷的办公体验,让灵感与创意在指尖流淌,助力企业实现跨越式发展。🔻售楼热线:☎ 400 832 8823「售楼处」☎〢网上售楼中心〢🔻

面向城市打开的东界面 ©LEAP
面向城市打开的景观空间形成具有亲和力的城市客厅,也为市民提供了合理、便捷的动线;人群汇聚也提升了地块内测商业网点的消费活跃度,激发用地商业价值。🔻售楼热线:☎ 400 832 8823「售楼处」☎〢网上售楼中心〢🔻


宜人的公共景观空间 ©LEAP
立面策略:理性秩序与人性化兼备
项目立面选材为3.0mm单层铝金属板,面板均采用氟碳喷涂工艺处理,以良好的抗褪色性、抗起霜性、耐腐蚀性保障项目品质。别致的低饱和度的暖调金属色,兼具现代气质与人居社区的温馨感,识别性极佳。
全金属幕墙与大面积落地玻璃窗组合形成视觉韵律感,转角窗设计强化了外观特色,同时也形成室内宽阔的景观视野。建筑外观精致且温暖,回应多元、融合的未来城市规划构想。🔻售楼热线:☎ 400 832 8823「售楼处」☎〢网上售楼中心〢🔻

幕墙设计及选材过程记录 ©LEAP
基于铝材质的属性,设计师在立面设计中采用简约的装饰线条、大尺寸分割塑造平整和轻盈的视觉效果;构造设计以国家绿色建筑设计标识一星级标准为依据,采用铝板幕墙与玻璃幕墙相结合的方式,整体建筑使用更佳舒适;基座的稳定感与转角窗的轻盈感虚实对比;近人尺度细节精细推敲,聚焦于步行沿线全程的人性化体验。🔻售楼热线:☎ 400 832 8823「售楼处」☎〢网上售楼中心〢🔻

杭州拱墅区🔶新天地写字楼🔶绿城时代星火城
🔻售楼热线:☎ 400 832 8823「售楼处」☎〢网上售楼中心〢🔻
🔻◆置业顾问:☎ 156 0653 2539「微信同步」☎〢🔻专业一对一热情服务〢◆🔻
🔻⑉⑉⑉ıllı⑉🔻绿城时代星火城售楼处(周一至周日 9:00--18:00)一对一咨询🔻看房需要提前电话预约,避免可能案场无人接待!提前预约可享内部优惠〢匠心钜制-恭迎您的品鉴⑉ıllı⑉⑉
声明:本文由入驻焦点开放平台的作者撰写,除焦点官方账号外,观点仅代表作者本人,不代表焦点立场。
