余杭区建发云城之上写字楼售楼处-余杭区建发云城之上写字楼官方网站丨杭州建发云城之上写字楼楼盘详情(2026楼盘房价+户型)杭州房产天下
扫描到手机,新闻随时看
扫一扫,用手机看文章
更加方便分享给朋友
云耀时代商业中心 |建发·云城之上
云城科创CBD·西站枢纽·低密中式商业独栋
企业总部楼宇(约12000㎡/幢-30000㎡/幢)
花园独栋办公(约2300㎡/幢-7500㎡/幢)
定位面向500强的企业总部办公商务区,立足约30万方综合大盘,涵括花园独栋办公、企业总部楼宇等。比邻梦想小镇、摩天商务群楼等,以云城核芯有机商务单元,共同摹画云城CBD璀璨封面;以杭州西站为交通枢纽,成为未科板块的商务新门户,更成为面向长三角的商务新坐标。
📍浙江省杭州市余杭区创明路
(距地铁12号线站北路站直线距离约400米)
☎️置业顾问⫸ 130 7367 8721「微信同步」
为保证参观体验,售楼处实施1V1销售专业讲解,请提前电话预约登记
一、国企背景
◎总部企业营造平台
建发集团 世界500强实力国企
2023年《财富》世界500强第69位。
杭地发展 美好城市建造者
杭地发展,杭州市交投集团下属国有独资企业。积极探索“未来城市”实践区建设,以高标准推进城市化开发建设,建成民生配套项目180余个,荣获2项国家级、80余项省市区级奖项。
二、板块价值
◎总部企业招募平台
杭师大、西湖大学、中国美院、湖畔大学、中法航空大学等周边各大院校,打造涵盖参观、实习、就业的云城人才培养体系。
◎总部企业科创平台
约1300亩科创企业总部基地,投资总额约14亿,周边汇聚多家企业总部,共绘杭州科创CBD宏伟发展蓝图。
直面世界级地标群落
临近云门、未来杭州第一高楼约399米金钥匙(在建)、约320米金手指(在建)、浙江人才大厦、杭州资本云城科创中心(在建)、超重力实验室(在建)等云城核心地标。
同频城西科创大走廊
梦想小镇直距项目约770米、浙大校友企业总部经济园(在建)直距项目约800米、EFC欧美金融城直距项目约1.6公里、浙大人才大厦(在建);
周边汇聚阿里全球总部、钉钉全球总部、字节跳动华东中心、vivo全球AI研发中心总部(在建);
毗邻菜鸟物流总部、阿里达摩院、中国飞谷(天目山实验室、之江实验室、北航杭州创新研究院)等重量级创新产业,远见未来商务势能。(信息来源:余杭发布官微)
三、商业配套
◎总部企业配套平台
三大商业体 驱动超高能级商办体验
►云城综合体(在建):集购物、餐饮、娱乐于一体的大型商业综合体,将成为云城之上的商业核心。
►龙湖天街(在建):距离云城之上仅800米,将成为杭州乃至全国的商业新中心。
►EFC欧美广场:集合运动零售、科技数码体验、美食天堂与“夜生活”的约15万平方米商业旗舰。
三大公园 臻享云上绿境办公
约30万方云门公园(在建)、市民公园(在建)、中央公园(在建)等公园围簇,共享生态绿心。
四、交通配套
◎总部企业通勤平台
一条机场快线
可在杭州西站换乘地铁19号线,贯穿东西,直达杭州机场,国际时速,通达世界。
一步杭州西站
杭州西站站场规模11台20线,现已开行列车近120趟,畅达全国中心城市。杭温高铁半小时至义乌,1小时畅达温州;
沪苏湖铁路最快78分钟直达上海虹桥;杭衢高铁线预计2025年开通。远期规划杭宁二通道直达南京,构建杭州产业大动脉。
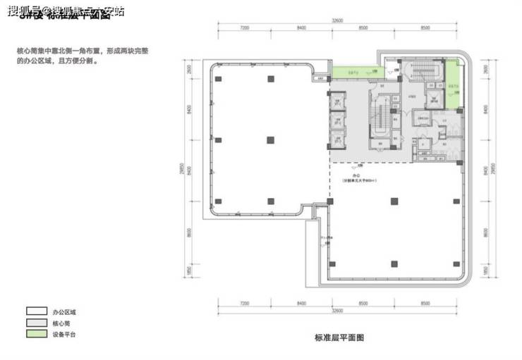
五、产品价值
项目概况
◎约800㎡起第四代总部生态楼宇
①开放式花园大堂:与滨水公园无缝对接,与商业街区有机融合,带来舒适、便捷且充满活力的体验,尽情享受自然与商业的双重魅力。
②多层级垂直绿谷:推动办公方式从传统向现代、可持续、高效的方向迭新,为企业与员工打造出充满活力与创新的工作环境。
③云端城市会客厅:将高空视野优势与高端社交需求完美融合,集商务洽谈、文化交流、城市观景于一体的多功能空间,引领未来商务社交新趋势。
◎约2300㎡起BLOCK花园独栋
①独立入户前场:以私密尊贵的企业门面,为企业塑造高端形象与独特空间,彰显企业卓越气质与非凡地位。
②庭院露台:阳光与绿植相伴,空间开阔,让办公者在繁忙工作之余,能尽情享受宁静与惬意,感受自然与工作的完美融合。
③私家架空层:其独特的空间布局与自然景观,为企业带来私密、静谧且充满创意的办公体验,让办公在自然与建筑的交融中别具一格。
基础信息
【开发单位】建发房产杭地发展
【建筑面积】约5.94万方
【业态规划】
企业总部楼宇(约12000㎡/幢-30000㎡/幢)
花园独栋办公(约2300㎡/幢-7500㎡/幢)
▓ ㊣ VIP-Line ※ 400 963 3309 ♂ ☎ 13073678721♀﹝已认证﹞
●温馨提示:〢欢迎来电咨询〢预约可节省您的时间〢恭迎品鉴〢
●免责声明:本资料旨在提供相关信息,不代表出卖人对此作出承诺
●免责声明:如有图片涉及侵权,请第一时间联系我们删除,谢谢!
声明:本文由入驻焦点开放平台的作者撰写,除焦点官方账号外,观点仅代表作者本人,不代表焦点立场。
