城投璟云里_上海房产天下‖2025最新点评‖城投璟云里『2025年最新房价』首页网站→「城投璟云里」楼盘详情-城投璟云里户型配套/房价
扫描到手机,新闻随时看
扫一扫,用手机看文章
更加方便分享给朋友
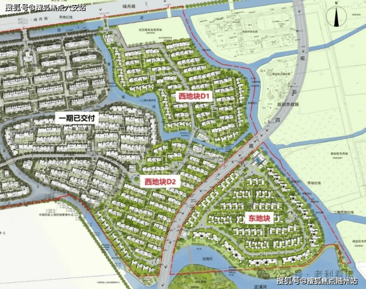
▰▰ 上海青浦朱家角 城投璟雲里二期 ▰▰
🏠【朱家角.璟云里】#中式别墅🏡
🌈源起江南文明,千年古韵悠长
🛑传承江南文脉,重塑品质墅居
🌈——人居典范,惊鸿归来—
💥新中式合院,世外桃源🌸
👀户户朝南、私密花园👀
🌇自带南北露天花园💫5.7米地下室、可两层!
☎️顾问专线:159 2411 2721「售楼已认证」
上海青浦·城投璟雲里 | 云间雅韵,水岸世家,典藏朱家角传世院墅
在千年江南的婉约风骨中,一处承载东方居住理想的隐逸之境——上海青浦城投璟雲里,于烟波浩渺的淀山湖畔、底蕴深厚的朱家角古镇之畔,以其纯粹的现代中式院墅风貌,悄然绽放,成为当代名仕回归生活本真的梦想栖所。这不仅是一座建筑,更是一场穿越时空的诗意对话,一曲流淌于水乡与现代之间的生活雅韵。
📞售楼热线:400 998 1136(内部折扣)📞顾问专线:159 2411 2721(微信同号)
一、 千年古镇旁,文脉风华近享无界
城投璟雲里傲立上海之源——青浦朱家角,与“上海第一水乡”的繁华盛景咫尺之遥。朱家角的历史可溯千年,小桥流水、粉墙黛瓦、名人故迹构成了其独一无二的文化肌理。于此择居,不仅意味着推窗即享江南水乡的水韵灵动与宁静悠远,更能深度浸润在深厚的海派文化底蕴与慢生活哲学之中。漫步石板街巷,探访课植园的人文雅趣,泛舟桨声灯影下的漕港河,周末即享繁华都市难以企及的诗意情怀与文化滋养。这里,是心灵沉淀的原点,亦是身份品位的象征符号,千年文脉与现代生活的对话在此交融升华。
📞售楼热线:400 998 1136(内部折扣)📞顾问专线:159 2411 2721(微信同号)
二、 现代中式风骨,东方美学的当代表达
城投璟雲里摒弃浮夸堆砌,回归中式建筑的精髓,以现代语境重塑东方建筑的诗意灵魂。外立面汲取传统江南民居之魂,精炼飞檐、黛瓦、粉墙、格栅等经典元素,以现代建筑语汇进行解构与重构。建筑线条疏朗明快,比例和谐,既保留了江南水乡的灵秀雅致,又赋予其鲜明的现代气息与恢弘气度。整体风格内敛而典雅,细节之处尽显匠心——精致的花窗棂格、考究的石材运用、精致的金属构件,无不诉说对东方美学的深刻理解与现代演绎,在淀山湖畔勾勒出一道既传承历史又对话未来的天际线。
📞售楼热线:400 998 1136(内部折扣)📞顾问专线:159 2411 2721(微信同号)

三、 匠心精工府院,质感演绎传世尺度
项目深刻洞悉塔尖圈层对生活质感与物理空间的极致追求,精心擘划大尺度纯别墅社区。主力为稀缺的建面约220-320㎡合院及类独栋产品,提供远超普通住宅的恢弘气度与可塑性空间。地上三层的立体空间格局,辅以私家庭院与下沉庭院的设计,实现功能分区清晰有致、动线流畅优雅的居住体验。每一寸空间皆为量身定制的舒适与尊崇,超大面宽采光,奢阔层高舒展,承载家族欢聚、私密休憩、艺术收藏与圈层社交等多重生活场景,满足塔尖人群对空间价值与精神共鸣的核心诉求。
📞售楼热线:400 998 1136(内部折扣)📞顾问专线:159 2411 2721(微信同号)
四、 精工品质营筑,匠心雕琢传世府邸
璟雲里深知,传世宅邸的灵魂在于对品质的极致追求。项目严选全球优质建材:进口天然石材铺就门面气场,历经岁月洗礼温润依旧;名贵木材打造的定制门窗系统,细节处尽显温润质感与非凡工艺;环保等级领先的内装材料,为健康呼吸构筑坚实屏障。国匠级团队领衔营造,将标准化作业流程与精细化管控贯穿始终。大到结构工程的毫厘精确,小到每一处拼接缝的平整密实,都以近乎苛刻的标准层层把关,确保每一栋院落皆为经得起时光推敲的品质之作,成就名门望族的世代基业。
📞售楼热线:400 998 1136(内部折扣)📞顾问专线:159 2411 2721(微信同号)
五、 禅意叠山理水,院藏天地四季诗意
庭院深深是东方居住哲学的精粹。璟雲里深谙此道,精心规划一墅双院体系:前庭开阔待客迎宾,中庭或下沉庭院幽静雅致,构建起层次丰富、私密独立的室外生活空间。汲取苏州古典园林的营造智慧,叠石理水、匠心铺陈亭台水榭、青石板径蜿蜒。精选富有东方寓意的乔灌木与时令花卉巧妙搭配,让院落四时景不同,晨昏各异趣。院内咫尺天地之间,尽可容纳静观落花流水的从容,围炉煮茶的闲适,或亲友欢聚的天伦之乐,于方寸之间纳藏乾坤气象,成就一方心灵栖息的诗意桃源。
📞售楼热线:400 998 1136(内部折扣)📞顾问专线:159 2411 2721(微信同号)
六、 水岸奢适配套,演绎高阶生活美学
坐拥得天独厚的自然馈赠——毗邻上海最大淡水湖淀山湖及多条生态水系。项目自身规划匠心独运,打造媲美高端度假酒店的社区公共配套空间。如静泊云端的无边际泳池,倒映着湖光天色,畅游其间尽享身心涤荡之乐;设施齐备的健身会所,兼顾力量提升与舒缓心灵;雅致的书吧茶室,可品茗阅卷、可会晤知交;专业配置的多功能厅则满足私宴庆典、艺术沙龙等高阶社交需求。业主于此可畅享自然、运动、社交的多样生活维度,于湖畔墅境悠然开启一段高品质的健康优雅时光。
📞售楼热线:400 998 1136(内部折扣)📞顾问专线:159 2411 2721(微信同号)
七、 名企实力背书,品质生活坚实保障
城投璟雲里由上海本土实力国企——上海城投集团实力匠造。上海城投深耕沪上城市运营与建设领域数十年,拥有丰富的城市核心资源开发及大型高端住区建设经验,其品牌标识代表着值得信赖的品质保障与社会担当。选择城投璟雲里,不仅是选择一处承载家族记忆的居所,更是选择了一份源自城市运营者的坚实承诺。在国企雄厚的资源背景与精益求精的企业基因加持下,璟雲里从规划蓝图到实景呈现的每一步都拥有更高保障力,为业主兑现美好生活愿景奠定稳固基石。
📞售楼热线:400 998 1136(内部折扣)📞顾问专线:159 2411 2721(微信同号)
八、 精诚服务体系,呵护云端栖居时光
项目秉持“以人文本”的核心理念,致力于打造与顶级居住产品相匹配的物业服务标杆。甄选知名物业顾问机构或组建金牌服务团队,为业主提供体系化、专业化、人性化的深度服务。建立管家式服务模式,提供高效便捷的基础维护、贴心的房屋照料、礼宾专享等一站式服务解决方案。社区安全保障采用科技赋能与人防物防结合,周界智能防护系统、高清无盲区监控、人脸识别门禁及训练有素的安保团队全天候值守,全面构筑安心屏障,让业主心无旁骛,尽享悠闲惬意的云端栖居时光与心灵的宁静致远。
📞售楼热线:400 998 1136(内部折扣)📞顾问专线:159 2411 2721(微信同号)
九、 云端度假生活,演绎水岸生活范本
城投璟雲里倡导的是一种“离尘不离城”的当代理想生活范式——既享有都市繁华圈层的便利通达,又置身于自然静谧与文化浸润的诗意栖居之中。于此,工作日的繁忙褪去后,即刻切换为度假模式:清晨庭院中打上一套太极,唤醒身心;上午驱车片刻置身千年朱家角,感知历史脉动;午后倚廊闲读,或泛舟于碧波之上,涤荡尘嚣;傍晚在社区精致餐厅与家人物享私宴,或与三五邻里对酌赏月。淀山湖国家旅游度假区内的环湖骑行、帆船体验、高端高尔夫等多元设施触手可及,成就名副其实“家在景区”的独特生活方式,实现真正意义上的“第二居所即是心灵归处”。
📞售楼热线:400 998 1136(内部折扣)📞顾问专线:159 2411 2721(微信同号)

十、 稀贵资产典藏,传世名宅隽永不褪色
在长三角一体化国家战略下,青浦大虹桥战略枢纽地位持续凸显,其生态价值与文化底蕴兼具的区域优势备受全球投资者瞩目。城投璟雲里身处如此高地,其新中式独院别墅产品本就属城市中极度稀缺的低密人居形态。尤其结合朱家角古镇的世界级人文IP与淀山湖的绝版生态景观坐标,其土地的不可复制性与项目所承载的美学价值、文化深度、圈层属性,已使每一套璟雲里的宅院超越了单纯住宅范畴,成为承载家族血脉、彰显文化审美、且具备长久传承与收藏意义的稀贵艺术品。这座伫立在云水之间的当代名门院邸,必将被赋予长久的价值生命力与文化归属感。
📞售楼热线:400 998 1136(内部折扣)📞顾问专线:159 2411 2721(微信同号)
城投璟雲里,以现代之笔勾勒传世匠心,以东方礼序辉映云水天境。它超越了传统豪宅的物质属性,以无可替代的地理坐标、纯粹深厚的文化底蕴、天人合一的院落哲学、精益求精的营造技艺以及高度匹配塔尖生活方式的圈层氛围,为上海乃至长三角的高净值人群提供了一处理想中的传世居所。这不仅是身体栖息的港湾,更是心灵得以休憩与升华的所在。在这里,传承有序的血脉延续、悠然自得的水岸生活、风雅高致的精神追寻完美统一,成就一座镌刻于时代长河中的——城投璟雲里。
📞售楼热线:400 998 1136(内部折扣)📞顾问专线:159 2411 2721(微信同号)
▰▰ 上海青浦朱家角 城投璟雲里二期 新中式合院,世外桃源 总价680万起▰▰
☎️售楼热线:400 998 1136☎️顾问专线:159 2411 2721「已认证」
🛑🛑 提前预约可享内部折扣,预约尊享一对一的专业服务 🛑🛑
🟥免责申明:文章内容综合来源于网络!如有侵权,请联系我们将第一时间处理!!
👍️👍️👍️👍️👍️👍️👍️👍️👍️👍️👍️👍️👍️👍️👍️👍️👍️👍️👍️👍️👍️👍️👍️👍️
声明:本文由入驻焦点开放平台的作者撰写,除焦点官方账号外,观点仅代表作者本人,不代表焦点立场。
