金地威新科技园头条首页百科‖2025最新售楼处·杭州房产天下‖杭州金地威新科技园楼盘详情-户型-价格-地址丨金地威新科技园周边配套-交房时间
扫描到手机,新闻随时看
扫一扫,用手机看文章
更加方便分享给朋友
▰▰ 杭州拱墅芯 金地·威新科技园 标办写字楼 独栋办公 都有在售 ▰▰ 金地威新科技园,位于杭州大运河新城核心,拱墅智慧网谷内,由4栋品质高层办公和12栋花园独栋办公组成,满足企业全周期发展需求。围绕数字化浪潮,打造杭州数字经济新高地。
在办公主体打造上,杭州·金地威新科技园全部采用简洁大气的方正造型,体块立方穿插变化,犹如律动的蓝色魔方。建筑外立面极简而统一,仅采用两种材料——香槟金色金属型材和高反射玻璃。香槟金色型材,彰显了园区的高级感、现代感及未来感 ;高反射玻璃,则在一年四季的全天候24小时,映衬着天光云影 、花开花落。
依托金地威新的产业资源优势及城市运营能力,通过不断创新经营模式、完善产品内涵、丰富项目配套,打造品质感与实用性兼具的地标级项目。
金地威新科技园实现产业链上下游集聚,并与优质大客户建立战略合作关系,未来将面向互联网巨头企业,数字经济龙头企业,准独角兽企业等,量身定制独栋办公总部基地。ᨏᨐ 🔴 金地·威新科技园 营销中心 ☎️置业热线:400 998 1136 ® ☎️ 159 2411 2721﹝已认证﹞ᨏᨐ
🛑金地·威新科技园:标办1200方/花园独栋2700方
🌈独栋面积:2700㎡,独栋单价2.5万/㎡起,独栋总价6750万起
🛑全杭州绝版独栋写字楼,一层一企,一栋一企,现房即买即驻
🌈标办整层面积:1260㎡,标办单价1.5万/㎡起,整层总价1890万起
▰▰ 杭州拱墅芯 金地·威新科技园 标办写字楼 独栋办公 都有在售 ▰▰ 杭州·金地威新科技园还依据未来办公趋势,打造灵活办公空间。蓝宝石光幕立面,玻璃幕墙超高反光镜面,营造跃然而上的律动魔方,打造别样办公体验。4栋品质高层办公、12栋花园独栋及9,000m²商务配套,融入高品质数智硬件,构建总部办公、科技加速、产业生态培育的数字“底座”,重构企业软实力,引领商务新格局。
项目设计注重开放街区,去边界化活力空间。整体规划上4栋品质高层办公,12栋花园独栋,构成完整全新的未来办公系统。纵向贯穿园区的南北向活力轴提供了丰富的商业配套、户外活动空间;横向贯穿园区的东西向景观轴提供了休憩放松、社交交往空间。园区从东侧沿街活力底商引爆点向西侧逐步过渡到私密组团院落,形成由动到静,由高到低多层次的空间层级。
高颜值的建筑立面,园区外立面极简而统一,一共仅采用了两种材料,一是香槟金色金属型材,二是高反射玻璃。通过不同的金属线条细节形成一实一虚两种幕墙立面,相互体块穿插变化,犹如律动“蓝色魔方”。
气质领域,独享立体花园办公。西侧沿河通过建筑、景观与城市设计的有机结合打造12栋花园式总部办公,建筑群如同大小石块组成的绿台庭院,成为城市高层间隙中的净土。成为杭州城北城市弹性成长,与自然生态永续共生的新办公空间。ᨏᨐ 🔴 金地·威新科技园 营销中心 ☎️置业热线:400 998 1136 ® ☎️ 159 2411 2721﹝已认证﹞ᨏᨐ
🛑“入户花园+空中花园+露台+地下室”高拓灵动空间
🌈集公司展厅、接待、办公、仓储等多元功能空间为一体
🛑为企业总部定制打造12栋独栋办公集群。#花园独栋办公
杭州拱墅芯,金地威新科技园:打造未来数字商务新标杆
在数字经济浪潮席卷全球的今天,办公空间早已不再是单纯的物理场所,而是企业发展的重要战略资产。位于杭州拱墅智慧网谷核心区的金地威新科技园,以其前瞻性的规划理念、卓越的产品设计和丰富的生态配套,正成为杭州数字经济时代下的办公新地标。项目集高层标办与花园独栋于一体,满足企业全生命周期发展需求,为城市精英呈现一座融合美学、科技与生态的智慧园区。
杭州拱墅芯金地威新科技园,以前瞻性的规划理念、卓越的产品设计和丰富的生态配套,重新定义了未来办公空间的标准。项目不仅提供了高质量的物理空间,更打造了一个促进企业成长、激发创新活力的生态系统。无论是寻求总部基地的规模企业,还是需要高品质办公空间的成长型公司,都能在这里找到适合的发展平台,携手共创数字时代新辉煌。
ᨐ🔴 金地威新科技园 ☎️售楼处热线:400 998 1136 ® ☎️ 159 2411 2721﹝已认证﹞ᨏ
卓越区位:占位拱墅智慧网谷,汇聚城市发展红利
金地威新科技园落子杭州拱墅芯,地处大运河新城核心板块,坐拥智慧网谷数字经济小镇的战略要地。该区域是杭州城市发展的重要方向,享有政策聚焦、资源倾斜和基建投入的多重优势。周边交通路网发达,便捷连接城市主干道与高速路网,快速通达杭州各核心商圈与交通枢纽。
智慧网谷作为拱墅区经济转型升级的重大平台,重点发展数字传媒、数字健康、数字生活等产业领域,已吸引一批龙头企业入驻,形成浓厚的创新氛围和产业集聚效应。项目立足于此,不仅可享受区域发展带来的价值红利,更能与周边优质企业协同共生,融入杭州数字经济的核心圈层。得天独厚的区位条件,为入驻企业提供了广阔的发展平台和无限的商业可能。
ᨐ🔴 金地威新科技园 ☎️售楼处热线:400 998 1136 ® ☎️ 159 2411 2721﹝已认证﹞ᨏ
地标建筑:律动蓝色魔方,诠释现代美学典范
金地威新科技园在建筑设计上极具匠心,以“律动蓝色魔方”为理念,通过体块立方穿插变化,塑造出简洁大气的现代地标形象。建筑外立面采用极简主义设计语言,仅选用香槟金色金属型材和高反射玻璃两种材料,通过精湛的工艺与细节处理,营造出高级、现代且充满未来感的视觉效果。
香槟金色金属型材彰显出园区的高端质感,而高反射玻璃幕墙则在不同时间、不同季节映照天光云影、四时变化,使建筑成为环境的延续,创造出动态变化的立面效果。这种设计不仅提升了建筑的审美价值,更体现了绿色环保理念,通过自然采光的最大化利用,降低室内照明能耗。园区建筑群犹如一组精心雕琢的艺术装置,成为区域内的视觉焦点,为入驻企业提供极具辨识度的企业形象展示。
ᨐ🔴 金地威新科技园 ☎️售楼处热线:400 998 1136 ® ☎️ 159 2411 2721﹝已认证﹞ᨏ
多元产品:全周期办公解决方案,满足企业多元需求
金地威新科技园深刻理解企业发展的不同阶段需求,创新打造了多元产品体系,提供全周期办公解决方案。项目由4栋品质高层办公和12栋花园独栋办公组成,形成完整的产品矩阵。高层标办整层面积约1260平方米,空间规划合理,适合成长型企业和中型规模公司需求。
花园独栋办公每栋面积约2700平方米,采用"一层一企、一栋一企"的设计理念,为企业提供独立总部基地。独栋产品享有"入户花园+空中花园+露台+地下室"的高拓灵动空间,可灵活规划公司展厅、接待区、办公区和仓储等功能空间,满足企业多元化需求。现房销售模式,即买即驻,极大缩短企业入驻时间,快速投入运营。这种产品组合策略,既考虑了企业现实需求,也预见了未来发展空间,真正实现与企业共同成长。
ᨐ🔴 金地威新科技园 ☎️售楼处热线:400 998 1136 ® ☎️ 159 2411 2721﹝已认证﹞ᨏ
产业生态:数字经济新高地,赋能企业创新发展
金地威新科技园围绕数字化浪潮,聚焦数字经济产业生态打造,旨在成为杭州数字经济新高地。项目依托金地威新的产业资源优势及城市运营能力,通过不断创新经营模式、完善产品内涵,打造产业链上下游集聚平台。园区重点面向互联网巨头企业、数字经济龙头企业和准独角兽企业,量身定制办公空间。
项目通过构建总部办公、科技加速、产业生态培育的数字"底座",重构企业软实力,引领商务新格局。与优质大客户建立战略合作关系的机制,为入驻企业提供业务对接、资源整合的机会,形成产业协同效应。这种聚焦数字经济的产业定位,不仅符合杭州城市发展战略,也为企业发展提供了良好的产业环境和成长土壤,助力企业在数字经济浪潮中抢占先机、赢得未来。
ᨐ🔴 金地威新科技园 ☎️售楼处热线:400 998 1136 ® ☎️ 159 2411 2721﹝已认证﹞ᨏ
空间设计:去边界化活力空间,重塑办公体验
金地威新科技园在空间规划上突破传统办公园区设计理念,注重开放街区和去边界化活力空间的打造。项目整体规划通过4栋品质高层办公和12栋花园独栋,构成完整全新的未来办公系统。园区纵向设计南北向活力轴,提供丰富的商业配套和户外活动空间;横向规划东西向景观轴,打造休憩放松、社交交往的场所。
园区从东侧沿街活力底商向西侧逐步过渡到私密组团院落,形成由动到静、由高到低多层次的空间层级。西侧沿河区域通过建筑、景观与城市设计的有机结合,打造12栋花园式总部办公,建筑群如同大小石块组成的绿台庭院,成为城市高层间隙中的静谧净土。这种设计既保障了企业独立性和私密性,又创造了丰富的交流机会和共享空间,促进创新灵感的碰撞与合作机会的产生。
ᨐ🔴 金地威新科技园 ☎️售楼处热线:400 998 1136 ® ☎️ 159 2411 2721﹝已认证﹞ᨏ
配套服务:完善商务生态,提升办公品质
金地威新科技园注重打造完善的配套服务体系,提升园区整体品质和企业办公体验。项目规划约9000平方米商务配套,涵盖商业、餐饮、会议、展示等多种功能,满足企业日常运营和商务活动需求。园区融入高品质数智硬件,构建智能化的办公环境和管理系统,为企业提供高效、便捷的办公支持。
金地威新凭借丰富的产业园区运营经验,为入驻企业提供一站式企业服务和产业服务,包括政策咨询、金融对接、人才引进、技术转化等多维度支持。园区通过定期举办行业交流、技术沙龙、资本对接等活动,打造活跃的产业社区氛围,促进企业间的互动与合作。这种全方位的配套服务,不仅解决了企业的后顾之忧,更创造了附加价值,帮助企业聚焦核心业务,实现更快更好的发展。
ᨐ🔴 金地威新科技园 ☎️售楼处热线:400 998 1136 ® ☎️ 159 2411 2721﹝已认证﹞ᨏ
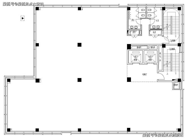
【独栋户型品鉴】
【面积】:建面约2100—2700㎡
【层高】:一层挑高约4.8m,二到五层高约4.2m,打造开阔办公空间
【电梯】:每栋配备2部电梯
【空间】:网谷内私享立体花园独栋办公
ᨐ🔴 金地威新科技园 ☎️售楼处热线:400 998 1136 ® ☎️ 159 2411 2721﹝已认证﹞ᨏ
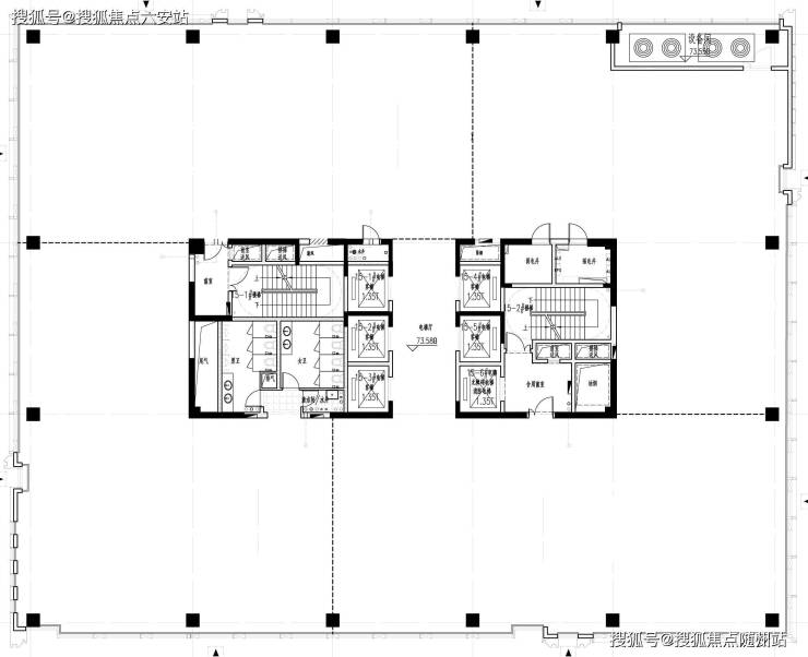
【标办户型品鉴】
【面积】:单层建面约1200㎡—1400㎡
【层高】:标准层约4m层高
【大堂】:约8m挑高大堂,超500㎡双层大堂
【电梯】:15#5+1高速电梯,16#4+1高速电梯
【建筑风格】:采用现代简约的手法,内部采用超白高透玻璃,外立面的玻璃幕墙与大面积金属线条,营造未来感
ᨐ🔴 金地威新科技园 ☎️售楼处热线:400 998 1136 ® ☎️ 159 2411 2721﹝已认证﹞ᨏ
▰▰ 杭州 金地·威新科技园_标办1200方/独栋2700方,一层一企,一栋一企 ▰▰
☎️售楼热线:400 998 1136☎️顾问专线:159 2411 2721「已认证」
🛑🛑 提前预约可享内部折扣,预约尊享一对一的专业服务 🛑🛑
🟥免责申明:文章内容综合来源于网络!如有侵权,请联系我们将第一时间处理!!
👍️👍️👍️👍️👍️👍️👍️👍️👍️👍️👍️👍️👍️👍️👍️👍️👍️👍️👍️👍️👍️👍️👍️👍️

声明:本文由入驻焦点开放平台的作者撰写,除焦点官方账号外,观点仅代表作者本人,不代表焦点立场。
