蓝城英冠滨悦城2025年最新房价+杭天下-蓝城英冠滨悦城-2025杭州滨江区江景现房大平层(英冠滨悦城)首页网站
扫描到手机,新闻随时看
扫一扫,用手机看文章
更加方便分享给朋友
杭州滨江区◆江景现房大平层◆蓝城英冠滨悦城
🔻售楼热线:☎ 400 832 8823「售楼处」☎〢网上售楼中心〢🔻
🔻◆置业顾问:☎ 156 0653 2539「微信同步」☎〢🔻专业一对一热情服务〢◆🔻
🔻⑉⑉⑉ıllı⑉🔻蓝城英冠滨悦城售楼处(周一至周日 9:00--18:00)一对一咨询🔻看房需要提前电话预约,避免可能案场无人接待!提前预约可享内部优惠〢匠心钜制-恭迎您的品鉴⑉ıllı⑉⑉

当多数豪宅仍在渲染期房蓝图,蓝城英冠·滨悦城以**"国际滨核芯+精装现房+顶豪圈层"**三重稀缺价值,为全球精英兑现确定性资产。🔻售楼热线:☎ 400 832 8823「售楼处」☎〢网上售楼中心〢🔻
商业大户型和住宅一样,普遍是要等2-3年的期房,而蓝城英冠·滨悦城已是现房实景,交付风险根本不存在。
收一套房的效率有多高呢?看完样板间,根据预算选好楼层,就可以实体带看。产证办理和后续资金需求,都可以丝滑衔接。
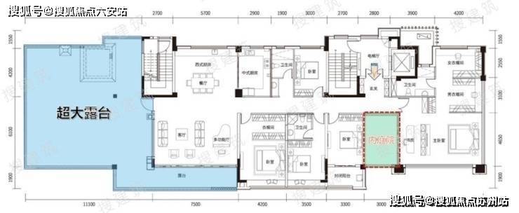
这里只有建面约300㎡与480㎡两款纯大户型,圈层高度纯粹。
杭州的江景商业资产,最怕的就是大小户型混杂,如果对门时不时大宴宾客,又或者遇上一位“公区收藏家”,便会常常噪音绕梁,私密度也无从谈起。
唯有如蓝城英冠·滨悦城这般,“一层一户”的绝佳骨相、三庭四院的围合式园区,再加上24小时全天候的高定服务,才能营造至为纯粹的社区氛围。
住惯了城中豪宅的老钱、滨江高新企业的精英、事业重心初涉杭州的高端商务人士等,共同绘就了蓝城英冠·滨悦城的业主群像。
目前,也不止一位业主,已经量好了尺寸,备齐了家私,只待正式交付。
限价下,即使幸运买到顶豪住宅,也难免“市中心+高总价+平庸精装”的尴尬,而即将交付的蓝城英冠·滨悦城,实景的梦幻度和质感都远超效果图。

精工品质:国际品牌矩阵,对标顶豪标准
德系精装与石材美学
装标高达11000-13000元/㎡,选用德国美诺(Miele)七件套嵌入式厨电、汉斯格雅境雨花洒、唯宝智能马桶等顶级品牌,12种进口石材(如巴西潘多拉、柬埔寨星耀灰)铺陈空间,实现“一室一系”视觉统一。
装甲门与智能系统
意大利GARDESA装甲入户门(单樘价值超30万元)提供防爆防火双重保障,摩根全屋智能系统集成地暖、新风、中央空调,打造WELL健康人居认证的智慧奢宅。
现房实景交付
外立面与室内精装已全面呈现,规避期房交付风险。社区园林以《春江花月夜》为蓝本,打造“三庭四院”景观体系,水景、林庭与露天会客区现房可鉴。


【核芯占位 江岸资产新高度】
踞守滨江区政府板块黄金中轴,蓝城英冠·滨悦城与钱塘江直线距离仅300米,南向直面7.6公里樱花跑道,北倚新塘河生态景观带,坐拥"一江一河"双水系绝版资源。
项目以**围合式低密布局**打造"三庭四院"景观体系(筑庭、林庭、石庭与娱院、空院、水院、境院),将《春江花月夜》的诗意融入实景园林,现房呈现即享四季流转的自然美学。
**【顶奢产品力 定义人居新范式】**
**一层一户·空中私域**
- 全系户型采用**独门独户双梯直达**设计,主仆动线分离,私密性拉满。300-480㎡大平层标配**约40㎡深U形空中花园**,可定制泳池、星空酒廊或森系庭院,打破大平层空间想象边界。
- **360°寰幕视野**:约15米南向面宽+270°全景落地窗,钱江潮涌、西湖群山与城市灯火尽收眼底,高区户型更可远眺六和塔与市民中心地标。
每一幢楼的入户门均为电动化纯铜门,还设置了挑高约9米的独立入户大堂,管家一天24小时随时stand by,泛会所空间中涵盖洽谈区、健身区,还有室内外双童玩空间……这些生活感充盈的配套,甚至远胜于同期豪宅。
最让高端客户欲罢不能的,还有滨悦城的纯粹感。
许多商业项目自诩纯粹,但一落地到设计就开始言不由衷,要么面积差异太大,最小300㎡,最大1000㎡+;要么“鱼龙混杂”,一些大户型项目里,还藏着不少几十方的小公寓。
滨悦城只有建面约300㎡和480㎡两种纯大户型,邻里之间实力、视野旗鼓相当,纯粹度非常高。
要说滨悦城最稀缺的特质,仍是主城区极少数的“双梯一层”、“一层一户”社区。
走进电梯厅就是你的私人领域,无论是喜欢开party的大“E”人,还是喜欢放空的“I”人,都有独处的时间。
难怪,有人说滨悦城就像一个跨时代的产品,出现在了本不属于它的时空
在约480㎡的户型里,打开两侧玻璃移门,瞬间就能和南北两个通透大方厅组成一个约156㎡的巨型横厅。这等视野感受,加上4.1米的超级层高,横向与纵向空间都得到了极致伸展。
如果在高区,你能看到的是澄净如练的大江,六和塔、五云山、凤凰山、市民中心、“日月同辉”,由西向东依次排开,随着浩荡江风,人文山水和都市天际线组成了这里的流动背景板。

滨悦城的装标,就来到了11000-13000元/㎡。这么高配置,钱都用到哪儿了?
一是石材的大面积铺陈。基本上所有公区以及卫生间,都被覆盖到了,并且用到多达8种以上名贵进口大理石。
为什么要选用不同的大理石,只因滨悦城严格遵循了“一室一系”标准,不同的空间用途,不同的装修重点,饰以不同色系的大理石,真正做到石材与环境的统一,而不是简单堆砌。
二是国际一线品牌的组合。
从入户前的意大利CARDESA装甲门开始,市场价高达30多万。
厨房间一中一西配置,主打的是miele七件套,全套德国进口,从嵌入式冰箱到蒸、烤箱,一网打尽。光这些厨房设备,就价值大几十万。
卫生间也不遑多让,清一色“德国造”,米勒、汉斯格雅、唯宝等等,全都是“国宝级”。
滨悦城如今已是现房销售,意味着上述的着笔,都有根有据,眼见为实。这种“所见即所得”的状态,除了避免房屋交付时的品质扯皮,更为重要的是,能将窗外的风物不差丝毫的定格。
就像站在滨悦城自家窗前,大江脚下横陈,从东到西,20多米的瞰江面,连通数公里的极目江面,都是自家私有。左手边的一桥,右手边的四桥,如同是春节张贴门前的两条对联,诉说这座城市的前世今生。江对岸的凤凰山,则是千年见证者。

江区作为杭州“拥江发展”战略的核心承载地,汇聚阿里巴巴、网易、海康威视等世界500强企业,2021年GDP超2000亿元,人均GDP居杭州首位,是长三角数字经济与高端产业的聚集高地。
项目紧邻地铁6号线诚业路站(直线约600米),无缝串联奥体中心、钱江新城等城市极核,30分钟交通圈覆盖全城核心区,成就“国际滨”的财富动脉与生活主场。
从某种角度说,买300㎡大平层就是买资源。杭州这一轮的300㎡大平层是从哪里带起来的?答案就是钱塘江边。往北一个路口,就是紧贴钱塘江的闻涛路,站在闻涛路上,左右张望,一手复兴大桥(四桥),一手钱塘江大桥(一桥),就像是春节张贴门前的两条对联。钱塘江的江景,则成了最好的横批。
一手复兴大桥,一手钱塘江大桥
本案正踞滨江核芯,南接江南大道,一路直达钱江世纪城。毗邻钱塘江畔,步行几分钟即达滨江最美跑道。项目定位于小而美的精品邻里中心,将满足周边地区居民家门口距离的消费需求,兼具便捷与品质服务的保证。
以近5万方的商业建筑面积,涵盖人气餐饮、精品超市、女性医疗、健身会所、商务办公等等业态,集生活休闲与商业繁盛于一体。并且,项目根据自身定位、特质、客群打造出原创专属IP小鲤鱼,其将被应用于艺术化地标打卡及周边产品开发。目前,项目计划于今年五一前开业。
英冠集团成立于1997年,是一家集房地产开发、物业管理、商业运营于一体的综合性企业。公司秉承“品质第一、客户至上”的经营理念,致力于打造高品质的住宅产品。英冠滨悦城大平层作为英冠集团在杭州的重点项目,凝聚了公司多年的开发经验,旨在为业主提供宜居的生活环境。

杭州滨江区◆江景现房大平层◆蓝城英冠滨悦城
🔻售楼热线:☎ 400 832 8823「售楼处」☎〢网上售楼中心〢🔻
🔻◆置业顾问:☎ 156 0653 2539「微信同步」☎〢🔻专业一对一热情服务〢◆🔻
🔻⑉⑉⑉ıllı⑉🔻蓝城英冠滨悦城售楼处(周一至周日 9:00--18:00)一对一咨询🔻看房需要提前电话预约,避免可能案场无人接待!提前预约可享内部优惠〢匠心钜制-恭迎您的品鉴⑉ıllı⑉⑉
声明:本文由入驻焦点开放平台的作者撰写,除焦点官方账号外,观点仅代表作者本人,不代表焦点立场。
