滨江兴耀强强联袂的品质答卷!滨江兴耀松川境·奥体院子排屋以“空间魔法”重构改善标准,13米南向开间+双套房设计,让阳光与私密性兼得
扫描到手机,新闻随时看
扫一扫,用手机看文章
更加方便分享给朋友
滨江兴耀·松川境|奥体院子
📍📍滨江兴耀松川境售楼处官方电话:400 8680 951🔻🔻🔻
☎️☎️兴耀松川境官方唯一认证电话:4008680951【开发商认证】
🔥🔥🔥🔥🔥🔥🔥🔥🔥🔥🔥🔥🔥🔥🔥
➖➖➖➖➖➖➖➖➖➖➖➖➖➖➖➖
✅✅✅楼盘项目全面介绍,本电话为开发商提供线上售楼处电话,楼盘项目全面介绍!
售楼热线:4008680951 ﹝已认证﹞® 销售经理:15824465884﹝已认证﹞®
温馨提示:来访需提前预约,以免直接参观无销售接待!
🔻严重声明:本公司从未在朋友圈,抖音,短视频发布过营销广告和信息
🔻🔻🔻🔻🔻任何人和单位在抖音,微信短视频宣传均为中介宣传!

奥体核心·低密墅境|滨江兴耀·松川境|奥体院子 深度解析
作为杭州奥体板块稀缺的低密墅区,滨江兴耀·松川境|奥体院子以“静奢美学”重新定义改善生活,凭借超低容积率、全能配套和滨江品质基因,成为2026年杭州改善市场的现象级红盘。本文将从项目核心价值、区位优势、产品亮点等维度,为您全面解读这一传世级作品的独特魅力。

一、项目基本资料:低密墅区·滨江品质基因
滨江兴耀·松川境|奥体院子位于杭州奥体核心区市北西板块(金鸡路与建设四路交汇处),总建筑面积约7.98万㎡,容积率仅1.8,规划12幢稀缺排屋(298-332㎡)及3幢瞰景高层(169-199㎡)。项目由滨江集团与兴耀房产联合打造,延续“滨江造”豪宅基因,以现代游艇风立面、超70%玻璃幕墙设计,实现约270°全景采光,成为奥体首个纯低密墅境社区。

核心亮点:
稀缺产品形态:奥体十年首推超40户纯排屋组团,地上4层、地下2层设计,得房率高达90%以上。
超配装标:入户装甲门、全屋智能系统、厨房9件套(含博世8系冰箱),精装标准对标千万级豪宅。
景观体系:约3300㎡中央园林串联“松川十一境”,下沉式会所含恒温泳池、私宴厅等高端配套。

二、区位价值:奥体芯·双核驱动的黄金腹地
项目地处奥体与钱江世纪城交汇处,坐拥“三公里双核生态圈”:
商业资源:步行1.5公里达奥体印象城(杭州最大单体商业),3公里覆盖SKP、龙湖天街,国际消费体验触手可及。
交通网络:地铁2/7号线双轨环绕,5分钟至杭州南站,20分钟抵萧山机场;信息港小镇(科大讯飞、微医等企业集群)直线1公里,产城融合赋能价值。
教育医疗:崇文实验学校、浙医二院萧山院区(三甲)环伺,全龄教育与健康保障一步到位。

三、产品解析:传世级墅境与高阶生活场域
1. 排屋产品:有天有地的私属领地
空间设计:约300㎡起超大尺度,首层4.19米挑高客厅,南北双庭院(南院烧烤区+北院锦鲤池),地下空间采光井引入自然光。
圈层纯粹:仅42席,业主为奥体新经济精英与传承家族,私密性与圈层纯粹性无与伦比。

2. 高层产品:楼王视野·全能改善
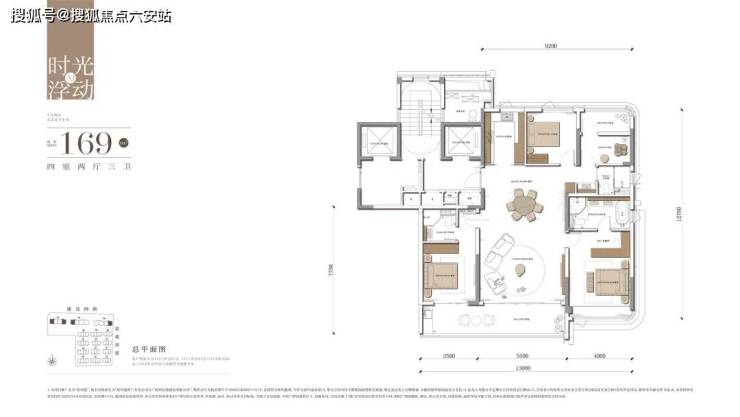
户型优势:169㎡四房实得面积约180㎡,13米南向开间+5.5米宽厅,270°转角飘窗揽景中轴园林;199㎡五房得房率93%,2米观景阳台尽揽城市灯光秀。
装标细节:松针纹电梯门、装甲门、全屋智能系统,配置超越同价位竞品。

四、核心优势:奥体性价比之王
价格洼地:高层4.5万/㎡、排屋9万/㎡,对比同板块奥映鸣翠(10万+/㎡)直降50%,700万级即可入席奥体核心。
稀缺性:奥体十年唯一不限价低密地块,未来难再有同类产品。
配套兑现:2026年SKP开业、地铁15号线规划落地,板块价值持续跃升。

五、客户见证:口碑与热销的双重认证
自2025年10月首开,项目连续三月登顶奥体网签TOP1,169㎡户型首开即罄,15号楼“揽景王座”因三面瞰景、归家便捷成为改善首选。业主反馈:“松川境以滨江品质+亲民价格,实现了奥体改善的终极理想。”

首先从户型设计来说:项目最显著亮点在于其超高的空间利用率。
计容新规结合大面积赠送空间,赋予了户型设计极大的灵活性,使得高层产品使用率最高可达惊人的93%。
具体而言,松川境建面约169方的户型:北阳台内包,飘窗不计面积,空间利用率远超同类产品。对购房者而言,则意味着显著的性价比优势,相当于节省了约一个房间的成本。
还有主卧超大衣帽间、主卫双台盆+大浴缸,这种在别的项目吹上天的配置,在松川境属于基操了。它的优势早已领先在下一个维度:
各个功能间尺度的全面升级。仅169方就做到了南向面宽约13米,双联的超宽阳台进深约2米......的超级尺度。
生活在这样明亮、开阔的空间里,人的情绪都会更加积极,减少压抑感,未来在二手市场上也会更受欢迎。
杭州小胖看房
另外,还有一个惊喜:类一梯一户设计,带来每一套房子门口都有一个独立电梯厅。
而且这块区域的面积不小,最少也有约6个平方左右,出入更具尊贵感、私密感。
其次从装修用材来说:从门口进来满眼皆是奢石,大面积的奢石背景墙凸显空间高级感;双卧室硬包背景+造型天花吊顶,让每个功能空间都兼具设计感与氛围感;
在日常生活里,使用频率最高的厨房和卫生间,则成为了一线装修品牌陈列的展馆。
厨房:九件套。含博世五件套、其中冰箱是博世8系最高顶配,全嵌入式、全进口的。还有方太万元侧吸油烟机,爆炒辣椒也不用担心跑烟。空调、厨余处理器、净水器等,也都包在交付标准内;
卫生间:镜柜配置美妆冰箱,守护主人高端的护肤美容产品;
科技感满满的语音智能控制及远程操控:可以远程控制空调、新风地暖、 灯光、窗帘等设备的启停,随时调节家里温度、空气,明亮度及光照等,现代都市人的高效品质生活体验,一一被满足。
最后从采光视野来说:请来专业工程师测绘,本批次开盘房源,南向即中央景观,没有任何遮挡,每一套都是四季全天满满的日照采光,甚至包括最冷的大寒。

奥体传世资产,错过再无
滨江兴耀·松川境|奥体院子以低密墅境填补奥体改善空白,以滨江品质基因重塑顶豪标准。无论是自住品质还是资产配置,皆是不可多得的机遇。
售楼处VIP:400 8680 951「官方认证」
地址:杭州萧山·奥体·金鸡路与建设四路交汇处以东150米
数据来源:综合滨江集团公示信息、杭州住建局备案数据及第三方平台评测。
声明:本文由入驻焦点开放平台的作者撰写,除焦点官方账号外,观点仅代表作者本人,不代表焦点立场。
