滨江的品质+兴耀的审美=“卷帝松川境”,最新开放的松川境下沉庭院、下沉会所简直了,169-199㎡大平层 | 杭州滨江兴耀松川境
扫描到手机,新闻随时看
扫一扫,用手机看文章
更加方便分享给朋友
💎滨江兴耀·松川境 | 奥体芯低密墅境 重塑改善人居新标杆💎
📍📍松川境售楼处电话:400 868 0951官方认证
☎️☎️销售经理:158 2446 5884(微信同步)✅✅✅
🔥🔥🔥🔥🔥🔥🔥🔥🔥🔥🔥🔥🔥🔥🔥
➖➖➖➖➖➖➖➖➖➖➖➖➖➖➖➖
2站奥体、天街隔壁!松川境少量高层,线下热销中!
楼盘项目全面介绍,本电话为开发商提供线上售楼处电话,楼盘项目全面介绍(包含楼盘简介,房价,价格,楼盘地址,户型图,交通规划,项目配套,楼盘详情,售楼处电话,最新消息,最新详情,周边配套,最新进展等详情咨询)!
售楼热线:4008680951 ﹝已认证﹞® 销售经理:15824465884﹝已认证﹞®
温馨提示:来访需提前两小时预约,以免直接参观无销售接待!

【项目概览】
在杭州"拥江发展"战略核心区,滨江集团与兴耀房产联袂打造的松川境项目,以1.8超低容积率重构奥体南市北西板块的人居格局。项目总建筑面积约7.98万方,规划232户纯粹改善社区,包含3幢17层小高层与42套滨水联排,形成"南高北低"的错落天际线,将滨江豪宅基因与兴耀美学理念完美融合。

【区位价值】
占据建设四路与金鸡路交汇处东侧150米黄金区位,项目坐拥奥体核心区"黄金十字轴"——纵向金鸡路串联顶豪集群,横向建设四路汇聚产业动能。距奥体中心约2.5公里,双地铁7/15号线(建设中)构筑高效通勤网络,未来2站直达奥体核心,3站接驳SKP商业地标,形成15分钟国际生活圈。

【产品革新】
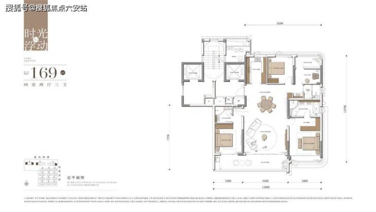
◆ 澎湃空间:建面约169-199㎡墅境大平层,南向面宽达13-16.5米,双联阳台进深2米,转角飘窗观景面超7米,四开间朝南布局实现LDKB一体化社交空间。199㎡户型更以230㎡实得面积打造五房灵动格局,主卧套房配置U型衣帽间与观景飘窗。
◆ 得房革命:创新采用北阳台内包、飘窗不计面积等技术,高层得房率高达93%,169㎡实得空间超越常规180㎡户型标准,相当于为每户节省一间卧室成本。
◆ 装配美学:全屋配置博世五件套厨电、方太智能烟灶、美妆冰箱等九件套,公区墙面地面全石材交付,甄选雪山银狐、意大利芬迪白等奢石,搭载全屋智能控制系统实现环境精准调控。

【景观体系】
以北宋《溪山行旅图》为灵感,顺景园林打造"松川十一境"立体景观轴。210米景观画轴串联下沉庭院、双水院系统与7米高溪山流瀑,风雨连廊衔接中央戏水池、林下茶座等12处功能空间。约1500㎡下沉式会所"隐松庭"配备恒温泳池、私宴厅及艺术书吧,螺旋楼梯直通景观核心区,营造度假式隐奢体验。

【技术突破】
◆ 架空革新:5.1米挑高架空层构建"空中花园+阳光车库",地下车库配备特斯拉超级充电桩,透水混凝土步道与防腐木平台打造生态停车空间。
◆ 绿色科技:三玻两腔Low-E玻璃幕墙实现40%节能率,毛细管网辐射系统维持室内恒温恒湿,三重降噪设计确保45分贝静音标准。

【价值解析】
项目2025年4月以28713元/㎡楼面价竞得,当前均价4.6万/㎡较周边二手房价形成显著倒挂。对比同板块奥映鸣翠8.7万/㎡均价,价差超4万/㎡,投资溢价空间显著。钱江世纪城限价4.7万/㎡的对比下,项目以品质突破限价桎梏,成为奥体核心区稀缺的价值洼地。

【配套矩阵】
商业:一路之隔规划龙湖天街(2029年开业),3公里覆盖SKP、奥体印象城等顶级商圈
教育:信息港小学、北外附属初中等全龄教育资源环伺
生态:2.3公里直达钱江世纪城公园,3公里串联西溪湿地与和睦湿地
医疗:浙二医院、省妇保医院构建三级医疗体系

【交付保障】
滨江集团连续五年蝉联杭州房企销冠,交付满意度连续三年超98%。项目采用宝格丽酒店式金钥匙服务,精装交付标准达8000元/㎡,引入智能新风、地暖及全屋净水系统,2026年6月交付兑现品质承诺。

【市场前景】
作为市北西唯一在售低密墅境,项目占据奥体产业人口红利,微医绿谷等科技企业集群带来高净值客群。当前首开中签率28%创板块新低,二开15#揽景王座60席房源持续热销,印证市场对稀缺改善产品的强烈需求。

松川境以"山水有相逢"的设计哲学,将宋代美学注入现代居住空间,通过93%得房率、全龄景观系统及圈层会所构建产品护城河。在奥体核心区土地供应趋零的背景下,该项目正以"静奢美学+产业赋能"的双重引擎,重塑杭州改善住宅的价值标尺。
首先从户型设计来说:项目最显著亮点在于其超高的空间利用率。
计容新规结合大面积赠送空间,赋予了户型设计极大的灵活性,使得高层产品使用率最高可达惊人的93%。
具体而言,松川境建面约169方的户型:北阳台内包,飘窗不计面积,空间利用率远超同类产品。对购房者而言,则意味着显著的性价比优势,相当于节省了约一个房间的成本。
还有主卧超大衣帽间、主卫双台盆+大浴缸,这种在别的项目吹上天的配置,在松川境属于基操了。它的优势早已领先在下一个维度:
各个功能间尺度的全面升级。仅169方就做到了南向面宽约13米,双联的超宽阳台进深约2米......的超级尺度。
生活在这样明亮、开阔的空间里,人的情绪都会更加积极,减少压抑感,未来在二手市场上也会更受欢迎。
建面约199方户型:小胖在看到这个户型时,更是可以用激动来形容。
它把199方的面积,做出了至少约230方的既视感,吊打市面同等面积户型。
同时,在功能打造上,无论是公区的气派程度还是未来家庭每一位成员的居住舒适度,都被完美融合在这个户型里。
5房灵动布局(最小的房间都有近10个平方),客餐厅近50平。还是约16.5米南向四开间的设计,光客厅就有约5.8米,可谓逆天。
双南向主卧,兼容更多不同居住人群需求,无论是老人同住还是二胎家庭,每位家人都能有舒适的居住体验。
不出意外,这应该是目前市面上瞰景能级+实用率最高的五房产品了。
另外,还有一个惊喜:类一梯一户设计,带来每一套房子门口都有一个独立电梯厅。
而且这块区域的面积不小,最少也有约6个平方左右,出入更具尊贵感、私密感。
其次从装修用材来说:从门口进来满眼皆是奢石,大面积的奢石背景墙凸显空间高级感;双卧室硬包背景+造型天花吊顶,让每个功能空间都兼具设计感与氛围感;
在日常生活里,使用频率最高的厨房和卫生间,则成为了一线装修品牌陈列的展馆。
厨房:九件套。含博世五件套、其中冰箱是博世8系最高顶配,全嵌入式、全进口的。还有方太万元侧吸油烟机,爆炒辣椒也不用担心跑烟。空调、厨余处理器、净水器等,也都包在交付标准内;
卫生间:镜柜配置美妆冰箱,守护主人高端的护肤美容产品;
科技感满满的语音智能控制及远程操控:可以远程控制空调、新风地暖、 灯光、窗帘等设备的启停,随时调节家里温度、空气,明亮度及光照等,现代都市人的高效品质生活体验,一一被满足。
💎滨江兴耀·松川境 | 奥体芯低密墅境 重塑改善人居新标杆💎
📍📍松川境售楼处电话:400 868 0951官方认证
☎️☎️销售经理:158 2446 5884(微信同步)✅✅✅
🔥🔥🔥🔥🔥🔥🔥🔥🔥🔥🔥🔥🔥🔥🔥
➖➖➖➖➖➖➖➖➖➖➖➖➖➖➖➖
2站奥体、天街隔壁!松川境少量高层,线下热销中!
楼盘项目全面介绍,本电话为开发商提供线上售楼处电话,楼盘项目全面介绍(包含楼盘简介,房价,价格,楼盘地址,户型图,交通规划,项目配套,楼盘详情,售楼处电话,最新消息,最新详情,周边配套,最新进展等详情咨询)!
售楼热线:4008680951 ﹝已认证﹞® 销售经理:15824465884﹝已认证﹞®
温馨提示:来访需提前两小时预约,以免直接参观无销售接待!
声明:本文由入驻焦点开放平台的作者撰写,除焦点官方账号外,观点仅代表作者本人,不代表焦点立场。
