大家上宸(2025年宁波奉化现房住宅大家上宸)大家上宸首页网站-楼盘详情-大家上宸户型配套
扫描到手机,新闻随时看
扫一扫,用手机看文章
更加方便分享给朋友
宁波奉化◆现房住宅◆大家上宸
🔻售楼热线:☎ 400 832 8823「售楼处」☎〢网上售楼中心〢🔻
🔻◆置业顾问:☎ 156 0653 2539「微信同步」☎〢🔻专业一对一热情服务〢◆🔻
🔻⑉⑉⑉ıllı⑉🔻大家上宸售楼处(周一至周日 9:00--18:00)一对一咨询🔻看房需要提前电话预约,避免可能案场无人接待!提前预约可享内部优惠〢匠心钜制-恭迎您的品鉴⑉ıllı⑉⑉
大家·上宸,以百强品牌实力,五比五好准则,奢级立面美学,便捷交通,完善配套,厚蕴人文,价格洼地等优势,成就品质生活,引领价值跃升。在这里,您将享受到优越的生活环境,品质与美感并存的建筑,以及投资升值的巨大潜力。🔻售楼热线:☎ 400 832 8823「售楼处」☎〢网上售楼中心〢🔻

大家·上宸,是39载大家房产首秀宁波的作品。
从杭州城芯的顶豪作品武林府,到拱宸桥畔的“新一代经典华宅”的金麟府,再到拥有艺术馆和“油画框”立面的杭州大家,不断迭代创新的大家房产,一直是所在区域的品质标杆和美学标杆。
即便均价低至约1.5万/㎡,大家·上宸依然继承了大家房产的美学基因。
简约时尚“高级灰”立面,搭配大面积的LOW-E玻璃,美出天际。为了带来全龄化的美好社区,大家·上宸不仅规划了“一核二带三轴多组团”的景观体系,还“超配”景观戏水池、健康跑道。🔻售楼热线:☎ 400 832 8823「售楼处」☎〢网上售楼中心〢🔻
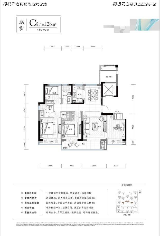
目前,大家·上宸热卖中的三开间朝南建面约99㎡“王牌户型”,就非常抢眼。
约6.4米的双联阳台,三房两卫的功能布局,满足了现代家庭的生活所需。主卧套房更是将景观飘窗、L型衣帽间、主卫一网打尽。更好的采光观景效果、更长时间的光照、更高的生活舒适度。对于不足100平方的空间而言,可以称得上是优质了。🔻售楼热线:☎ 400 832 8823「售楼处」☎〢网上售楼中心〢🔻
而建面约109㎡的大三房户型,作为稀缺边套,拥有270°环景、约6.3米宽幕双联阳台、独立储藏空间,南向套房式主卧:南向主卧,配备独立卫浴间,尺度更为奢适,为家人构建美好舒适的生活场景。
目前,大家上宸二批次新品热销中。“大家品牌+利好落地+价格洼地+超配产品”的组合,再加上首付约40万起的价格优势,将再度引爆大宁波的置业热潮。🔻售楼热线:☎ 400 832 8823「售楼处」☎〢网上售楼中心〢🔻
大家·上宸,大家房产“美好社区”致献宁波之作,位于宁波南拓、奉化北进的重要板块——生态文教区,近享滕头生态旅游景区、宋都商业综合体(在建)、奉化人民医院(在建)等丰盛配套,依托轨道3号线、四明路、甬山隧道构建的多维路网,快速通达宁波主城核芯、宁南新城和海曙核芯。大家·上宸以现代极简的美学立面、轻盈的建筑线条、全龄化园林盛景、架空层主题泛会所,配以精致入微的匠心工艺,精研建筑面积约99-128㎡美学筑品,采用大面宽全明布局,赋新城市美好人居。
项目地处奉化区发展潜力无限的城西板块——生态文教区核芯位置,占位宁波南拓风口,迎来宁奉一体化发展利好,人居新高地强势崛起,未来价值空间大有可期。🔻售楼热线:☎ 400 832 8823「售楼处」☎〢网上售楼中心〢🔻
百强房企,40载深耕
大家房产(杭州城建开发集团),一级资质开发企业,蝉联“中国房地产百强企业”称号。40年实力沉淀,打造杭州豪宅武林府、金麟府和传宸府等近180个精品筑作,荣获鲁班奖、国家优质工程奖等近220个奖项,成就“杭派精工”的代表企业。大家·上宸,依托大家房产实力背景,以“杭派精工”营造美好社区,致献宁波品质生活。
项目自面世便人气鼎沸、红冠宁波。2021年荣膺奉化区双TOP1楼盘,其硬核的杭派精工品质,获得市场一致认可,热销实至名归。🔻售楼热线:☎ 400 832 8823「售楼处」☎〢网上售楼中心〢🔻
周边发达交通网络环绕,便捷通达宁波中芯区。近轨交3号线、四明路(六车道)、甬山隧道(在建)等交通利好,未来与海曙核芯区之间往来更便捷,畅享宁奉同城化繁华生活。
对望新奉化区日人民医院(已开工),集雄厚的技术力量、齐全的专科和医疗设备于一体,24小时护航家人健康,安心多一点。
毗邻宋都商业综合体(在建)、银泰、万达等大牌商圈,日常购物、娱乐、休闲等更丰富、更方便,生活的舒适感受不言而喻。🔻售楼热线:☎ 400 832 8823「售楼处」☎〢网上售楼中心〢🔻
社区自带幼儿园,更有奉化实验小学(滕头分校)、城北中学等多所优质学府林立,幼小初12年教育配套近在咫尺,孩子上学、家长接送更轻松。
靠近国际5A级风景名胜区——滕头生态旅游风景区和溪口旅游景区等生态胜地,空气质量优异,环境优美,尽享繁华里的生态栖居。
以“一核二带三轴多组团”布局,超配景观戏水池,打造健康跑道、全龄互动空间、架空层泛会所(部分)等丰富的休闲空间,筑就全龄共享社区,其中宸光美学馆更荣获第十二届园治杯专业奖,地产园林示范区金奖。
项目位于宁奉主轴西环线、机场快速路,无缝接驳海曙鄞州,四明路一体联通溪口、奉化主城与鄞州。邻近地铁3号线鄞奉段南渡站,直连鄞州中心区、老江东等,交通便捷,生态宜居。
大家·上宸周边拥有超25亿奉化人民医院(已动工),优质医疗资源近在咫尺。毗邻5A级滕头风景区,享有生态宜居的环境。中信创新综合体、生态文化城的崛起,为居民提供了丰富的生活配套和产业红利。
宁波奉化◆现房住宅◆大家上宸
🔻售楼热线:☎ 400 832 8823「售楼处」☎〢网上售楼中心〢🔻
🔻◆置业顾问:☎ 156 0653 2539「微信同步」☎〢🔻专业一对一热情服务〢◆🔻
🔻⑉⑉⑉ıllı⑉🔻大家上宸售楼处(周一至周日 9:00--18:00)一对一咨询🔻看房需要提前电话预约,避免可能案场无人接待!提前预约可享内部优惠〢匠心钜制-恭迎您的品鉴⑉ıllı⑉⑉
声明:本文由入驻焦点开放平台的作者撰写,除焦点官方账号外,观点仅代表作者本人,不代表焦点立场。
