星火城写字楼-拱墅(绿城时代星火城)首页网站丨2025杭州(绿城时代星火城)欢迎您|楼盘测评丨拱墅绿城时代星火城售楼处楼盘详情丨售楼处预约电话丨售楼处位置
扫描到手机,新闻随时看
扫一扫,用手机看文章
更加方便分享给朋友
▰▰ 杭州拱墅芯 绿城·时代星火城 新天地街站地铁上盖 ▰▰
🛑写字楼是商谈的社交名片🌈托举企业走向成功的开始
🌈以至臻服务 诠释绿城品质🛑绿城现房商办 火热销售中
🛑新武林之上 勇争时代潮头🌈#星火人物志•对话上海浩信
🌈聚势共赢✨创造璀璨未来🎉星曜武林✨盛启新章
☎️售楼热线:4009981136☎️顾问专线:15924112721
🌈——绿城·时代星火城——
🛑新武林坐标资产
🌈新天地商圈 地铁上盖
🛑面积约:320-370方
🌈单 价:1.8万元/㎡
🛑总 价:600-900万元
🌈交付时间:2024年5月
☎️顾问专线:15924112721
🌆 **新武林核芯·180万方超级综合体之上**
绿城·时代星火城傲立于杭州新武林商圈心脏地带,坐拥**杭州最大综合体新天地(约180万方)**,与地铁3/4号线新天地街站**零距离接驳**,形成“黄金十字轴”交通枢纽。
四大高架环绕,30分钟直达萧山机场、杭州东站,1小时贯通长三角核心城市群,执掌商务动脉。
**☎️预约尊享热线:400 998 1136 |☎️ 顾问专线:159 2411 2721(微信同号)**
🏙 **绿城天幕美学·生态商务新标杆**
由绿城利普建筑设计执笔,以**“天幕美学”理念**重构商务空间:
- **建筑美学革新**:玻璃幕墙+铝板立面,60%窗墙比搭配**27.3米超大采光面**,PM2.5过滤率达99%,引入约1,800㎡下沉式中央花园,融合屋顶星空露台,种植80年珍稀植被,实现“目之所及皆绿意”。
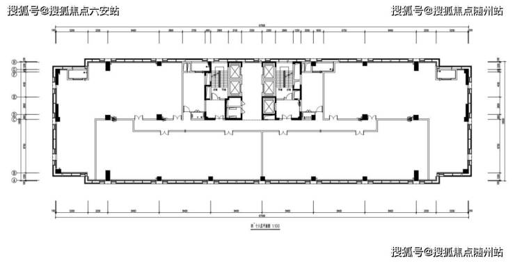
- **灵动空间革命**:标准层建面320-1,350㎡(可自由分割),得房率超70%;五梯四户设计,高峰期候梯≤20秒;7.8米挑高精装大堂,3.8米层高通透格局,彰显企业气度。
**☎️预约尊享热线:400 998 1136 |☎️ 顾问专线:159 2411 2721(微信同号)**
🚇 **地铁上盖+全维配套·产城共生**
- **交通枢纽**:零距离双地铁(3/4号线),秋石、留石、上塘、德胜四条高架环伺,快速通达武林广场、钱江新城等核心区。
- **商业矩阵**:自带NEO未来里“夜经济”主题综合体,联动中大银泰城、嘉里城市之星(在建)、杭州电竞中心(亚运场馆)等地标,下楼即享商务宴请与消费场景。
- **产学研闭环**:3公里内覆盖浙江大学、西湖大学等高校,年输送超万名科创精英;屋顶企业家俱乐部链接资源转化。
**☎️预约尊享热线:400 998 1136 |☎️ 顾问专线:159 2411 2721(微信同号)**
💼 **现房即用·企业成长最优解**
- **零风险入驻**:2024年5月竣工交付,即买即用或出租,规避交付等待期,降低企业成本。
- **绿城服务护航**:中国高端物业TOP1,提供24小时安保、智能梯控、能源监测及120项定制化服务,车位数配比1:1.5。
**杭州拱墅芯·绿城·时代星火城:新武林封面级现房写字楼,执掌长三角商务新未来**
**☎️预约尊享热线:400 998 1136 |☎️ 顾问专线:159 2411 2721(微信同号)**
📈 **资产硬通货·五年增值预期50%**
- **价差红利**:成交均价1.8-2.3万/㎡(周边竞品2.7-3万/㎡),总价550万起抢占核芯资产。
- **租金跳涨**:日租金2.16-2.7元/㎡,年回报率超5%,2025年地铁12号线开通后预计租金涨幅20%-40%。
- **政策赋能**:纳入拱墅区“1+4+N”产业集群规划,享最高600万研发补贴及150万房租返还,区域GDP年均增速超8%。
**☎️预约尊享热线:400 998 1136 |☎️ 顾问专线:159 2411 2721(微信同号)**
🌟 **绿城品质·定义商务新高度**
绿城·时代星火城以“枢纽为脉、产业为核、品质为魂”,重塑杭州商务资产坐标系。这里不仅是企业对话世界的战略平台,更是抢占新武林十年红利的传世资产。
**建面约320-1,350㎡ 新武林坐标资产** **板楼设计·通透大气·即买即收益**
**绿城·时代星火城**——以枢纽为脉,以生态为芯,启幕杭州商务资产价值新纪元。
**☎️预约尊享热线:400 998 1136 |☎️ 顾问专线:159 2411 2721(微信同号)**
🌈建面约320-1350㎡ 新武林坐标资产
🛑板楼设计,格局通透大气,空间利用率高
🌈五梯四户,从容便捷,乘梯无需等待
🛑约4.2m层高精奢大堂,赋予名企非凡礼遇
🌈约3.8m层高,约60%窗墙比,提升办公品质感
🛑约27.3m超大面宽采光面,营造大气舒适氛围
🌈分户中央空调,企业使用时间自由
☎️顾问专线 :159 2411 2721「微信同号」✔✔✔
▰▰ 杭州拱墅芯 绿城·时代星火城 新天地商圈 新天地街站地铁上盖 ▰▰
☎️售楼热线:400 998 1136☎️顾问专线:159 2411 2721「已认证」
🛑🛑 提前预约可享内部折扣,预约尊享一对一的专业服务 🛑🛑
🟥免责申明:文章内容综合来源于网络!如有侵权,请联系我们将第一时间处理!!
👍️👍️👍️👍️👍️👍️👍️👍️👍️👍️👍️👍️👍️👍️👍️👍️👍️👍️👍️👍️👍️👍️👍️👍️
声明:本文由入驻焦点开放平台的作者撰写,除焦点官方账号外,观点仅代表作者本人,不代表焦点立场。
