南郡涵云轩网站-2026杭州西湖核心区(南郡涵云轩)2026楼盘详情-南郡涵云轩房价-户型-交通-南郡涵云轩配套-小区环境-地铁
扫描到手机,新闻随时看
扫一扫,用手机看文章
更加方便分享给朋友
南郡涵云轩联排别墅
楼盘项目全面介绍,本电话为开发商提供线上售楼处电话,楼盘项目全面介绍(包含楼盘简介,房价,价格,楼盘地址,户型图,交通规划,项目配套,楼盘详情,售楼处电话,最新消息,最新详情,周边配套,最新进展等详情咨询)!
南郡涵云轩售楼处:售楼热线:400-870-6271。置业顾问:155-5713-5877。
售楼热线:4008706271 ﹝已认证﹞® 置业顾问:15557135877「微信同步」
➤➤Vip贵宾置业网上售楼中心〢欢迎来电咨询〢提前预约〢1v1销售专业讲解
🌈院藏山水,门纳乾坤——西溪湿地旁新中式现房合院
🛑咫尺西湖•一线西溪•低密现房🍀340-530㎡新江南院落
🌈🏛✦新中式合院 类独栋别墅 通燃气 ✦🏛
🛑量身订制属于一个阶层的江南院落
🌈让“静逸之美,艺术之雅,专属之感”融入生活流线
🛑340-530㎡新江南院落——欢迎品鉴
🌈『突破边界 对话天地自然 』客厅与庭院相融 感受自然的呼吸

顶级地段价值
杭州鼎级板块:西湖区向来是杭州传统的高价值宜居区域,底蕴深厚。
咫尺西溪湿地:与西溪湿地公园咫尺之遥,推窗即览浩瀚绿意与潋滟水色。
西湖咫尺可达:距离世界文化遗产西湖风景区路程便捷,畅享湖光山色。
西溪天堂南侧:具体位于西溪路溪尚酒店东侧,坐拥成熟高端配套氛围。
城市发展主轴:地处城西科创大走廊与自然生态区的交汇点,价值稳固。

产品形态概述
类独栋别墅体验:“类独栋”设计极大保障了建筑的独立性与私密感。
宽境面积段:主力户型建筑面积约340至530平方米,满足多元家庭结构需求。
空间自由融通:强调客厅与庭院的视觉与空间交融,引景入室。
通燃气配置:别墅产品通燃气,满足中式烹饪习惯与现代生活便利。
私密独立感受:每户均享有独立的建筑立面与庭院空间,尊崇感强。
园林设计理念
新江南风格:园林设计汲取江南园林精髓,以现代手法重塑亭台水榭之意境。
院藏山水:通过叠石理水、植物造景,在院墙内构筑微缩的山水画卷。
艺术之雅:景观节点融入艺术审美,步移景异,营造沉浸式艺术漫步体验。
静逸之美:通过层次丰富的绿化隔离外界喧嚣,营造“结庐在人境,而无车马喧”的静谧。
对话自然:设计强调人与自然的互动,庭院成为家庭生活的自然延伸。
涵雲軒24栋新江南院落,承继宋代美学的人文传统,打造纯正的三层低密建筑,以L型围合式布局塑造270°的环景视野,雅集山水,坐望未来,既是城市价值的全新承载,又是具有全新时代刻度的人文坐标。
涵云轩坐落在杭州西湖区,中式风格别墅项目,面积达340-530㎡,融合了新江南院落的设计理念。
项目背靠着西溪湿地,面朝着西湖山水,仿佛是一个御景园林,将自然之美尽收眼底。这样一个地处杭城封面级双景区的地方,近在咫尺,让人不禁心动
风雅生活是一种伟大思想的渗透,其宗旨是予事物以诗意。让人们在繁忙的都市时光里,能换一个角度,静下来,去享受时光的柔软、涵养生活的激情。他们的社交是时尚的聚落,他们的独处是艺术的具象。
涵雲軒独栋院落,地上三层+地下二层,建筑面积约340-580㎡,作为新一代“超改善”产品,重新定义了杭州主城改善标准。建筑面积约350㎡「见山」户型(赠送面积:地下室约165㎡ 、庭院约91㎡ 、露台约42㎡ 、连廊约20㎡)
△建面约350㎡「见山」户型图
一层生活区围绕着客厅和餐厨功能打造。直面(建筑面积约91㎡)花园的整扇落地折叠玻璃窗,可自由打开,自在进出,达到与自然零阻隔。夏日乘凉喝茶,秋日围炉夜话,其乐融融。

在设计方面,涵云轩更是精益求精。项目特邀UT设计创始人王旭、蓝颂设计/绿城环境景观设计师宋淑华、GOA乐空设计总经理姚路执笔,他们集合了大师的手笔,打造了“一园一苑两街四巷24院”的禅意雅境。
这种设计理念,将传统与现代相结合,让人在这里感受到了极致的美好。
涵雲軒24栋新江南院落,承继宋代美学的人文传统,打造纯正的三层低密建筑,以L型围合式布局塑造270°的环景视野,雅集山水,坐望未来,既是城市价值的全新承载,又是具有全新时代刻度的人文坐标。
涵云轩坐落在杭州西湖区,中式风格别墅项目,面积达340-530㎡,融合了新江南院落的设计理念。项目背靠着西溪湿地,面朝着西湖山水,仿佛是一个御景园林,将自然之美尽收眼底。这样一个地处杭城封面级双景区的地方,近在咫尺,让人不禁心动

“空中花园”,盛放生活诗意
二层阳台、三层露台,是室内空间向自然的诗意延伸。独拥一座露台,私密的空间无人打扰,那些需要仪式感的日子,在露台展开,情趣倍增……杭州西湖◆西溪湿地旁◆南郡涵云轩
宋代美学融合现代工艺
建筑由UT建筑设计王旭、GTS蓝颂设计宋淑华联袂操刀,以白墙灰瓦、坡屋顶、镂空花窗等传统元素为基底,创新运用铝镁锰金属屋顶、全幕玻璃立面及“美国白金石”花岗岩,打造兼具古典韵味与现代国际感的建筑语言。
低密院落布局
容积率仅1.2,24栋L型围合式院落塑造270°环景视野,地上3层+地下2层设计,主力户型340-580㎡,赠送地下室(最高约165㎡)、庭院(约91㎡)、露台等空间,实现私密性与景观视野的极致平衡。
现房交付与品质保障
毛坯现房交付,通燃气,即买即住,规避期房风险。南都物业服务集团提供24小时高端物业,涵盖安全巡逻、园林维护及定制化社区活动。杭州西湖◆西溪湿地旁◆南郡涵云轩
立体交通网络
地铁3号线东岳站步行可达,紫之隧道、留石快速路直达钱江新城、西湖景区,无缝衔接城市核心资源。
园林造境与人文场景
景观设计以“一园两街四巷24院”为框架,融入曲径通幽、亭台水景等江南园林元素,打造“涵雲十景”(如林泉、竹霭、云烟),重现宋代文人雅集场景。
圈层与社群价值
毗邻中国美院、阿里系企业总部,业主可参与艺术展览、茶道雅集等活动,构建高阶文化社交圈。


涵云轩的建筑在尽可能范围内,吸收江南院落的坡屋顶、白墙灰瓦、山水景墙等中式风骨,放眼望去,见阳光洒下、韵律辉映,将周围青山绿水映衬出更浓郁的自然之色,绿与白,深浅相照,自然与建筑,完美交融。
同时金属屋面的创新加入,让整个建筑群多了几分国际感,在大面积玻璃幕墙与美国白金石的映衬下,焕发新生,古朴不失素雅品位,一种难得的美学场域就在眼前,卸下都会浮华,回归生活本真,你会发现这里的一砖一瓦也都有各自的修养


从城市回归山野自然中,要有一些仪式感。踏上涵云轩,就进入了一个与自然独处的场域,树梢随风而动,感悟自然之声。世界前沿的时尚与中国传统的意境在这里互相平衡,是艺术与自然兼容的新式贵族高级审美。
涵雲軒独栋院落,地上三层+地下二层,建筑面积约340-580㎡,作为新一代“超改善”产品,重新定义了杭州主城改善标准。



一层生活区围绕着客厅和餐厨功能打造。直面(建筑面积约91㎡)花园的整扇落地折叠玻璃窗,可自由打开,自在进出,达到与自然零阻隔。夏日乘凉喝茶,秋日围炉夜话,其乐融融。
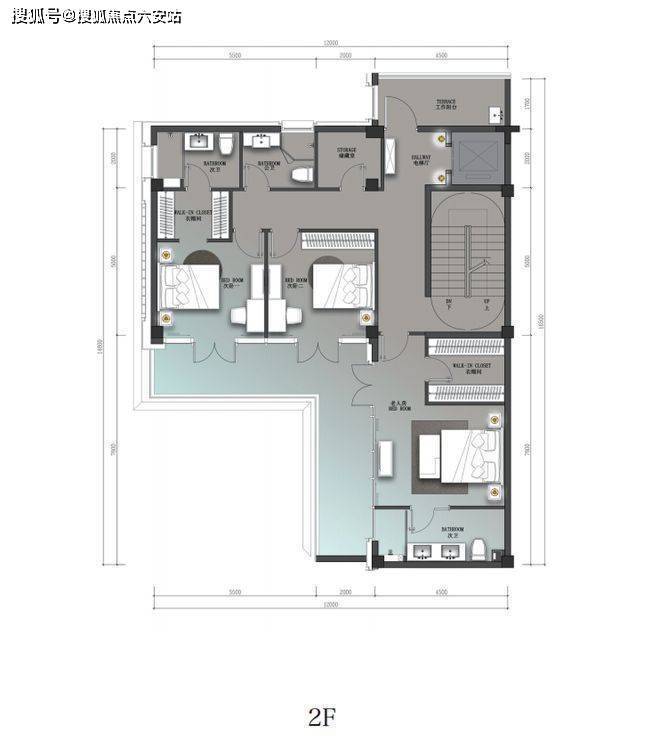
二层中有三室三卫,兼书房、接待、储物等多重功能于一体,空间利用率非常高。
其中两室均设计有独立衣帽间,尺度阔绰不言而喻。并配备有电梯,大大节省了通往每一层的时间成本。
三层端厅式大空间,只打造尊贵一室,利用近乎一整层的面积来满足供主人休憩+工作结合的心灵栖息之地,南向270°大采光面+超广角视野,赏一年四季风景如画。独立步入式衣帽间及带浴缸大卫生间的点缀,更加彰显仪式感、开阔感、功能性、舒适性、私密性强。

赠送建筑面积约42㎡的宽阔露台,似“空中花园”,建立室内和自然的交互性,夜观星河,遥望西溪万顷绿波,远眺西湖苍翠群峰,享畅意人生。
南郡涵云轩售楼处:售楼热线:400-870-6271。置业顾问:155-5713-5877。
售楼热线:4008706271 ﹝已认证﹞® 置业顾问:15557135877「微信同步」
声明:本文由入驻焦点开放平台的作者撰写,除焦点官方账号外,观点仅代表作者本人,不代表焦点立场。
