金地威新科技园(2025年杭州拱墅区核心·金地威新科技园)首页网站-金地威新科技园楼盘详情-户型-房价‖金地威新科技园2025年度最新评测
扫描到手机,新闻随时看
扫一扫,用手机看文章
更加方便分享给朋友
▰▰ 杭州拱墅芯 金地·威新科技园 标办写字楼 独栋办公 都有在售 ▰▰ 杭州·金地威新科技园还依据未来办公趋势,打造灵活办公空间。蓝宝石光幕立面,玻璃幕墙超高反光镜面,营造跃然而上的律动魔方,打造别样办公体验。4栋品质高层办公、12栋花园独栋及9,000m²商务配套,融入高品质数智硬件,构建总部办公、科技加速、产业生态培育的数字“底座”,重构企业软实力,引领商务新格局。
整体规划上4栋品质高层办公,12栋花园独栋,构成完整全新的未来办公系统。纵向贯穿园区的南北向活力轴提供了丰富的商业配套、户外活动空间;横向贯穿园区的东西向景观轴提供了休憩放松、社交交往空间。园区从东侧沿街活力底商引爆点向西侧逐步过渡到私密组团院落,形成由动到静,由高到低多层次的空间层级。
高颜值的建筑立面,园区外立面极简而统一,一共仅采用了两种材料,一是香槟金色金属型材,二是高反射玻璃。通过不同的金属线条细节形成一实一虚两种幕墙立面,相互体块穿插变化,犹如律动“蓝色魔方”。
金地威新科技园实现产业链上下游集聚,并与优质大客户建立战略合作关系,未来将面向互联网巨头企业,数字经济龙头企业,准独角兽企业等,量身定制独栋办公总部基地。ᨏᨐ 🔴 金地·威新科技园 营销中心 ☎️置业热线:400 998 1136 ® ☎️ 159 2411 2721﹝已认证﹞ᨏᨐ
🛑杭州拱墅区 金地·威新科技园:标办1200方/花园独栋2700方
🌈独栋面积:2700㎡,独栋单价2.5万/㎡起,独栋总价6750万起
🛑全杭州绝版独栋写字楼,一层一企,一栋一企,现房即买即驻
🌈标办整层面积:1260㎡,标办单价1.5万/㎡起,整层总价1890万起
🛑“入户花园+空中花园+露台+地下室”高拓灵动空间
🌈集公司展厅、接待、办公、仓储等多元功能空间为一体
🛑为企业总部定制打造12栋独栋办公集群。#花园独栋办公
战略区位价值
金地威新科技园雄踞杭州拱墅区智慧网谷核心板块,地处大运河新城中心位置,距拱墅区政府仅约2.5公里,占据杭州数字经济“一号工程”重点产业平台的核心区位。
项目坐享双城核心辐射红利,同时承接钱江新城与望江新城的商务资源外溢,成为拱墅区“产业立区”战略的重要载体。作为智慧网谷小镇的核心启动区,园区周边已汇聚千亿级产业集聚效应,顺丰、360、招商蛇口等独角兽企业抢先布局,预计全面建成后年产值可达600亿元,赋予入驻企业强大的区位背书价值。
该地块是杭州主城区罕有的规模化产业用地,土地年限达50年,为企业提供长期稳定的发展基地。
ᨐ🔴 金地威新科技园 ☎️售楼处热线:400 998 1136 ® ☎️ 159 2411 2721﹝已认证﹞ᨏ
卓越建筑设计
园区以“律动魔方”为设计灵感,外立面采用香槟金色金属型材与高反射玻璃幕墙,形成独特的“蓝宝石光幕”视觉效果。
建筑群体通过体块穿插变化的设计手法,营造出极具未来感的现代美学形象。高层办公楼配备8米挑高双层大堂,标准层高4米,采用超白高透玻璃幕墙,打造通透明亮的办公环境。
独栋办公产品以梯田式退台和云台式空中连廊为特色,形成由动到静的多层次空间层级,既保障了私密性又创造了丰富的视觉体验。
整个项目采用现代简约手法,通过不同的金属线条细节形成一实一虚两种幕墙立面,实现了统一中的变化,简约而不简单。
ᨐ🔴 金地威新科技园 ☎️售楼处热线:400 998 1136 ® ☎️ 159 2411 2721﹝已认证﹞ᨏ
生态办公环境
项目创新性地提出“会呼吸的生态办公”理念,打造约6000平方米中央绿谷花园,结合宅间休憩花园、下沉式艺术街区及垂直绿化系统,构建多层次立体生态景观。
独栋办公楼赠送约800平方米私家庭院和380平方米露台,辅以屋顶花园设计,形成总计约1000平方米的绿色休闲空间,让办公与自然无缝衔接。
园区特别保留80年树龄红枫等原生植被,通过中轴绿谷花园、下沉式水景庭院等景观设计,实现移步换景的生态体验。
沿河四栋建筑采用约10米超宽楼间距,最大化通风采光效果,延展景观视野,创造出真正意义上的生态健康办公环境。
ᨐ🔴 金地威新科技园 ☎️售楼处热线:400 998 1136 ® ☎️ 159 2411 2721﹝已认证﹞ᨏ
产业集聚效应
作为智慧网谷的核心启动区,园区已成功引入58同城、新浪、华为云、联想、顺丰、360等头部企业集群,形成信息电商、人工智能等“3+1”数字经济产业体系。
项目深度践行“产业链上下游集聚”战略,与优质大客户建立战略合作关系,面向互联网巨头企业、数字经济龙头企业及准独角兽企业量身定制总部基地。
依托瓜山未来社区约30万平方米配套和8400套人才公寓,园区构建了完整的产业生态圈,为企业提供从孵化加速到总部定制的全周期发展平台。
这种产业集聚效应不仅促进了企业间的协同创新,更形成了强大的品牌赋能效应,助力入驻企业提升行业影响力。
ᨐ🔴 金地威新科技园 ☎️售楼处热线:400 998 1136 ® ☎️ 159 2411 2721﹝已认证﹞ᨏ
产品灵活空间
园区提供多元产品组合,4栋高层办公与12栋花园独栋办公满足不同规模企业需求。独栋办公面积2100-2700平方米,采用“入户花园+空中花园+露台+地下室”的高拓灵动空间设计,层高4.2-4.8米,地下空间挑高5.2米,支持展厅、仓储、总裁办公等多功能分区。
高层办公单层面积1200-1740平方米,得房率高达80%,支持整层分割,4米层高打造阔绰办公空间。产品设计极具灵活性,可满足企业全周期发展需求,从初创期到成熟期都能找到匹配的办公解决方案。
独栋产品还支持企业冠名权和燃气接入,为企业打造真正意义上的定制化总部基地。
ᨐ🔴 金地威新科技园 ☎️售楼处热线:400 998 1136 ® ☎️ 159 2411 2721﹝已认证﹞ᨏ
交通网络体系
项目享有立体化交通网络,直线距离地铁4号线皋亭坝站约1.3公里,未来规划有3号线、10号线换乘站点,并配备园区免费接驳公交。
道路系统方面,直线距离留石高架入口仅约300米,1.3公里连接上塘高架,3.4公里直达秋石高架,形成快速通达全城的交通网。
通过城市高速路网,项目30分钟可直达杭州东站、萧山机场等重要交通枢纽,构建长三角2小时商务圈,极大便利企业的对外交流与合作。这种多维交通优势既保障了员工通勤的便捷性,又为企业物流、商务出行提供了高效支撑。
ᨐ🔴 金地威新科技园 ☎️售楼处热线:400 998 1136 ® ☎️ 159 2411 2721﹝已认证﹞ᨏ
商业配套资源
园区自建约8000平方米高端购物中心,毗邻万达商圈、银泰新天地商圈等成熟商业体,形成全维商业矩阵。三公里范围内汇集阳光银泰城、新天地购物中心、远洋乐堤港、大悦城五大超级综合体,满足商务人士多元生活需求。
项目周边还在不断升级文化配套设施,包括京杭大运河博物院(在建)、大运河音乐厅(规划中)、大运河未来艺术科技中心(规划中)等文化地标。
同时,运河湾商业综合体一期计划建成运营,BMW地铁上盖综合体等超级配套的落地,将进一步丰富区域的商业层次,为园区提供完善的商务生活服务。
ᨐ🔴 金地威新科技园 ☎️售楼处热线:400 998 1136 ® ☎️ 159 2411 2721﹝已认证﹞ᨏ
投资价值潜力
作为杭州主城区最后一批低密独栋现房项目,金地威新科技园具有显著的投资价值。独栋产品单价2.1万/㎡起,总价6000万起,赠送面积占比超30%;标办产品单价1.5万/㎡起,总价1890万起,得房率80%,相比钱江新城同类产品具有明显价格优势。
项目已于2022年12月31日毛坯交付,公区精装,企业可即买即用,规避了期房不确定性风险。据评估,LEED认证写字楼租金溢价率达31.3%,独栋年回报率超5%,租金回报稳定。
随着智慧网谷二期规划的推进,区域价值持续提升,为资产增值提供强劲动力。
ᨐ🔴 金地威新科技园 ☎️售楼处热线:400 998 1136 ® ☎️ 159 2411 2721﹝已认证﹞ᨏ
品牌实力保障
金地威新作为全国产城发展运营商TOP10企业,是金地商置旗下自有品牌,布局长三角、珠三角、环渤海和美国硅谷等全球产业高地,具有丰富的园区运营经验。开发商深度践行“深度运营”理念,从单纯的土地开发到城市综合体建设,从盖楼卖楼到园区深度运营,建立起完整的产业服务体系。
项目已获得LEED金级预认证,配备无感派梯系统(高峰等待≤45秒)、特灵中央空调及全域新风系统等智慧硬件,体现开发商对产品品质的极致追求。金地商置在园区规划、产品设计、施工工艺、选材用料等多个层面的不断探索,为企业构建了理想的发展之地。
金地威新科技园通过以上九大价值的系统整合,成功打造了杭州数字经济产业的地标性平台,为入驻企业提供全方位的发展支持,真正实现了“产城融合”的现代园区理念。
ᨐ🔴 金地威新科技园 ☎️售楼处热线:400 998 1136 ® ☎️ 159 2411 2721﹝已认证﹞ᨏ
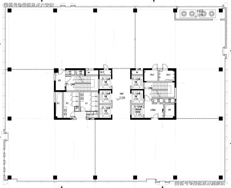
【独栋户型品鉴】
【面积】:建面约2100—2700㎡
【层高】:一层挑高约4.8m,二到五层高约4.2m,打造开阔办公空间
【电梯】:每栋配备2部电梯
【空间】:网谷内私享立体花园独栋办公
ᨐ🔴 金地威新科技园 ☎️售楼处热线:400 998 1136 ® ☎️ 159 2411 2721﹝已认证﹞ᨏ
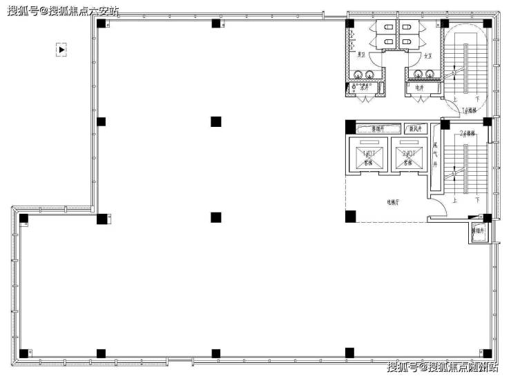
【标办户型品鉴】
【面积】:单层建面约1200㎡—1400㎡
【层高】:标准层约4m层高
【大堂】:约8m挑高大堂,超500㎡双层大堂
【电梯】:15#5+1高速电梯,16#4+1高速电梯
【建筑风格】:采用现代简约的手法,内部采用超白高透玻璃,外立面的玻璃幕墙与大面积金属线条,营造未来感
ᨐ🔴 金地威新科技园 ☎️售楼处热线:400 998 1136 ® ☎️ 159 2411 2721﹝已认证﹞ᨏ
▰▰ 杭州 金地·威新科技园_标办1200方/独栋2700方,一层一企,一栋一企 ▰▰
☎️售楼热线:400 998 1136☎️顾问专线:159 2411 2721「已认证」
🛑🛑 提前预约可享内部折扣,预约尊享一对一的专业服务 🛑🛑
🟥免责申明:文章内容综合来源于网络!如有侵权,请联系我们将第一时间处理!!
👍️👍️👍️👍️👍️👍️👍️👍️👍️👍️👍️👍️👍️👍️👍️👍️👍️👍️👍️👍️👍️👍️👍️👍️

声明:本文由入驻焦点开放平台的作者撰写,除焦点官方账号外,观点仅代表作者本人,不代表焦点立场。
