华夏溪揽星院权威发布(余杭华夏溪揽星院)华夏溪揽星院最新资讯-优缺点分析小区环境-容积率-项目介绍
扫描到手机,新闻随时看
扫一扫,用手机看文章
更加方便分享给朋友
余杭华夏溪揽星院
☎️VIPline:400 808 7328【已认证】☎️
☎️置业热线:130 6784 6867(同微信)☎️
☎️售楼处〢欢迎来电咨询〢提前预约可享内部优惠〢☎️
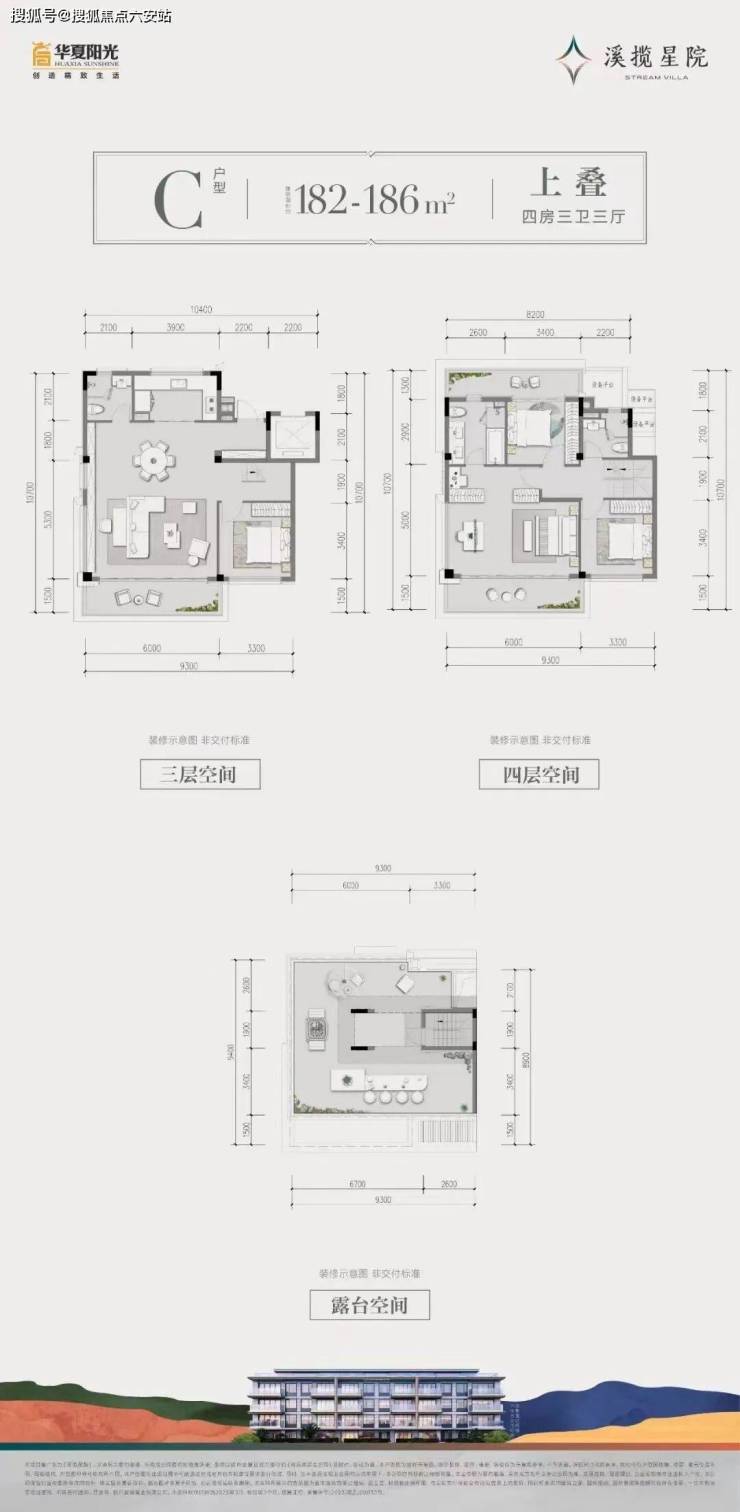
🌈华夏开发 上下双叠纯低密叠墅建面约142-186㎡叠院🌈约1.2容积率纯低密墅区精装:新风,空调,地暖🌈
精装的叠墅梦!就在公园旁,苕溪西岸,低密大盘华夏溪揽星院,总共带来492套房源,市面上最为稀缺的纯4层精装叠墅!
看一眼外立面,白色石材、香槟色的木纹铝板、大面积玻璃的拼接组合,怎么看都不像一个门槛只有300万+的低密叠墅。
☎️VIPline:400 808 7328【已认证】☎️☎️置业热线:130 6784 6867(同微信)☎️
140-160-180㎡主力户型,完全可以挑战面积大20-40㎡的同类产品。
180平南向整体面宽约9.3米,客厅面宽约6米,由于该户型全部是边套,所以客厅L型双面采光,270°观景!旁边的朝南房间,可以规划为客卧、书房或是私宴厅。
客厅北侧,衔接的是面宽约6米的餐厅,餐客厅约7.1米的进深,足够配一方西厨岛台或是吧台,许多300㎡大平层公区的尺度,也不过如此。
楼上的主卧更是脑洞大开,也留足了约6米的开间!俨然是度假酒店的总统套了。大床对面是任由你想像的“X空间”,开放式书房、化妆间、起居室,你喜欢什么,就是什么。
☎️VIPline:400 808 7328【已认证】☎️☎️置业热线:130 6784 6867(同微信)☎️
上叠二层除了三间卧室,还有南北两个露台,从哪个房间走出去,都是好空气和好风景。
走上三层,就是70多㎡的环幕式露台,在自家的空中花园里开一席夜宴吧,雪白桌布与锃亮刀叉铺开,豪宅巨邸氛围拉满。
☎️VIPline:400 808 7328【已认证】☎️☎️置业热线:130 6784 6867(同微信)☎️
溪揽星院160平户型图(过程稿,不作为交付标准)
另一款建面约160㎡户型同样霸气,整体面宽约8.2米。
二层的主卧面宽约4.9米,摆上一张King size大床,一张床尾凳,贴墙设计一整排梳妆台,还能留出1米多宽的过道。
别忘了,这里的每一套上叠户型都自带阳台与露台,每户4个!下叠除了绿地,还附送约56㎡的地下室,以及约42㎡的夹层空间……还有什么空间需求不能满足?
☎️VIPline:400 808 7328【已认证】☎️☎️置业热线:130 6784 6867(同微信)☎️
夏溪揽星院位于余杭区瓶窑镇精工西路,是华夏阳光地产开发的4层纯低密叠墅项目。溪揽星院以“真”作为展示标准,清晰呈现,致力以实物剖面的方式,悉心向人们展示未来美好人居形态。
☎️VIPline:400 808 7328【已认证】☎️☎️置业热线:130 6784 6867(同微信)☎️

华夏溪揽星院位于余杭区瓶窑镇精工西路,是华夏阳光地产开发的4层纯低密叠墅项目。溪揽星院以“真”作为展示标准,清晰呈现,致力以实物剖面的方式,悉心向人们展示未来美好人居形态。
☎️VIPline:400 808 7328【已认证】☎️☎️置业热线:130 6784 6867(同微信)☎️
约1.2容积率纯低密墅区,规划36幢叠墅产品,打造隐匿于繁华之中的理想居境溪揽星院就是这么一种稀缺的低密存在。整个项目以超低的1.2的容积率,没有中叠,仅以上下双叠形制,承载有天有地的生活梦想。
☎️VIPline:400 808 7328【已认证】☎️☎️置业热线:130 6784 6867(同微信)☎️
现代立面 四水归堂寓意美好!以斜切45°香槟色木纹铝板与银色金属线条搭配透明玻璃,营造现代时尚的立面风格;宽近32m恢宏大门,以威仪姿态礼遇归家享受;并遵循“四水归堂”的造园理念,臻筑美学园林大境,精巧布局一大中心花园、一条景观轴线、多重院落;更以三重归家礼序,营造酒店式归家场景,予生活尊崇仪式感。
☎️VIPline:400 808 7328【已认证】☎️☎️置业热线:130 6784 6867(同微信)☎️
一眼气势恢宏的小区北入口,正面面宽尺度就达近40m,西门也有约32m的超级面宽。
☎️VIPline:400 808 7328【已认证】☎️☎️置业热线:130 6784 6867(同微信)☎️
入口处的水景和罗汉松将仪式感直接拉满,再往前走近,四水归堂格局的会客厅如同一个巨大的聚财瓶口,雨季跌水落下配合镜面般光滑的水景,像极了高星级酒店大堂。
隐约在四水归堂身后的,还有已经实景呈现的中央景观。
☎️VIPline:400 808 7328【已认证】☎️☎️置业热线:130 6784 6867(同微信)☎️
36幢纯低密四层叠墅设计,圆梦每一个墅居理想:上叠星空露台,围合一处诗意、宁静的私属天地,闲时品茗闲读、沐浴阳光,无尽的想象与逸趣,于此一一生动上演。
☎️VIPline:400 808 7328【已认证】☎️☎️置业热线:130 6784 6867(同微信)☎️

实景图
下叠花园庭院,与首层室内形成空间连通互动,将四时之美、全龄之乐导入其中,让阖家美好与自然共融生长。
☎️VIPline:400 808 7328【已认证】☎️☎️置业热线:130 6784 6867(同微信)☎️

实景图
挑高约5.4m双层地下室,可巧妙打造藏酒室、瑜伽房、棋牌室以及家庭影音室等等,安放全家人的心头好,让墅居生活从容有度。
☎️VIPline:400 808 7328【已认证】☎️☎️置业热线:130 6784 6867(同微信)☎️

实景图
以建面约160㎡下叠为例,约16.4m南向大面宽(双层),塑造极为优越的采光条件,让阳光成为家中的常客;餐客厅一体设计,打破传统空间隔阂,构建全家休闲、宾客欢聚的舒适场域;套房主卧配备独立卫浴间、步入式衣帽间与瞰景大阳台,定义男主主人专属的私密生活美学;独立四房分而不扰,轻松承载三代同堂的天伦之乐。
☎️VIPline:400 808 7328【已认证】☎️☎️置业热线:130 6784 6867(同微信)☎️

深知严谨的选材,是缔造品质的基础,溪揽星院在硬装选品上,严苛甄选国内外优质品牌,以看得见的匠心诚意,领衔区域高端品质改善。
☎️VIPline:400 808 7328【已认证】☎️☎️置业热线:130 6784 6867(同微信)☎️
高规格精装配置
精装标准3000元/㎡:含中央空调、新风系统、地暖、净水设备及洗碗机,融入35项人性化细节(如线性地漏、加热毛巾架、智能马桶盖),提升居住舒适度。
☎️VIPline:400 808 7328【已认证】☎️☎️置业热线:130 6784 6867(同微信)☎️

文化与自然融合
毗邻文化遗产:紧邻良渚古城遗址公园及5A级景区瓶窑镇,东倚苕溪,自然环境优越,文化底蕴深厚。
园林景观:遵循“四水归堂”理念,打造中心花园、景观轴线及六大主题空间,营造诗意栖居氛围。
☎️VIPline:400 808 7328【已认证】☎️☎️置业热线:130 6784 6867(同微信)☎️
精打细算的户型规划,最明显的好处是,总价得到最大限度压缩,三四百万的溪揽星院,只相当于未科城的一套初改户型。
其实,就算是买一套高层大户型,它的实际居住体验与低密院墅比起来,也是两个宇宙。溪揽星院带来的美好体验,也将是全方位的。
☎️VIPline:400 808 7328【已认证】☎️☎️置业热线:130 6784 6867(同微信)☎️
首先,它的容积率仅1.2,总共排布了36幢纯四层叠墅,建筑低矮,坊巷舒朗,阳光会照在每一个朝南阳台上,照到柔软大床的中央。
要知道,即使是叠墅巅峰期,建筑也大多是6层
其次,买院墅的一大心理障碍,是繁琐而漫长的装修期。
柔和的白色、米色与雅灰,是精装的主色调。配置方面,大到地暖、中央空调、新风系统、净水系统,小到厨房的凉霸和洗碗机,都一一配齐。
☎️VIPline:400 808 7328【已认证】☎️☎️置业热线:130 6784 6867(同微信)☎️

更令人惊叹的是细节精研,譬如主卫的镜柜。吹风机、卷发棒、洗脸仪、美容按摩仪等等一系列“神器”的位置,都安排得明明白白。
还有上叠通向露台的楼梯、下叠地下室的楼梯与夹层(挑空部分除外),也都做好了……一切都是为了让你花最少的精力装修,将时间用来享受生活。
☎️VIPline:400 808 7328【已认证】☎️☎️置业热线:130 6784 6867(同微信)☎️
现在从溪揽星院出发,沿着运溪高架可一路直抵云城天街(在建)、绿汀路万象城(在建)、玉鸟集等大型商业,聚餐、逛街两不误。
余杭区第三人民医院、浙一总部也能轻松通达,为家人健康保驾护航。
未来孩子的教育也不必担心,瓶窑三小、瓶窑中学、中法航空大学、西湖大学(云谷校区)等优质学府均分布于项目周围。
未来,还有一条被称为“第三中心中轴线”良睦路,它一路贯穿未科、云城、良渚、瓶窑,上下班更是通畅无忧,更有地铁19号线瓶窑站点(规划中)。
而就在半小时路程里,身边已然换了人间。溪揽星院的北侧,就是修旧如旧的瓶窑老街,这里是民艺主题的文旅街区,桑蚕、风筝、纸伞、陶艺、玉雕等等展馆林立,徜徉在此的每一个周末,都不会闷。
再往东,就是广袤无垠的良渚古城遗址公园,它的已开放区域就有3.4平方公里,未来整体面积将达14平方公里,比西溪湿地还要大!
☎️VIPline:400 808 7328【已认证】☎️☎️置业热线:130 6784 6867(同微信)☎️
声明:本文由入驻焦点开放平台的作者撰写,除焦点官方账号外,观点仅代表作者本人,不代表焦点立场。
