金地威新科技园-金地威新科技园独栋办公楼盘详情-搜狐聚焦(2025金地威新科技园 房价+户型图)-杭州房产解码-金地威新科技园 宜居魅力解析
扫描到手机,新闻随时看
扫一扫,用手机看文章
更加方便分享给朋友
金地威新科技园 标办写字楼 独栋办公
金地·威新科技园:标办1200方 / 花园独栋2700方
集公司展厅、接待、办公、仓储等多元功能空间为一体
为企业总部定制打造12栋独栋办公集群。#花园独栋办公
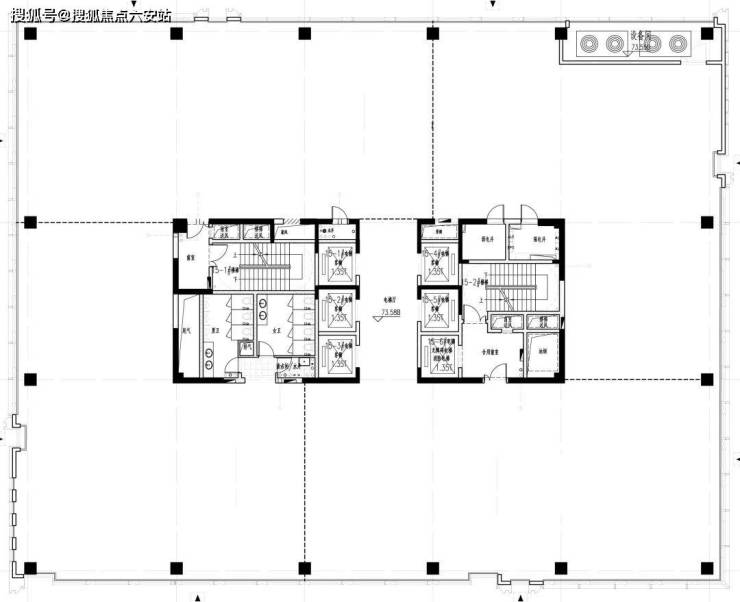
金地威新科技园:标办写字楼整层面积:1260㎡
标办单价1.5万/㎡起,整层总价1890万起
“入户花园+空中花园+露台+地下室”高拓灵动空间
全杭州绝版独栋写字楼,独栋面积:2700㎡
独栋单价2.5万/㎡起,独栋总价6750万起
一层一企,一栋一企,现房即买即驻
拱墅金地威新科技园是拱墅区的一个高端产业园区,集商务办公、绿色生态、智能出行等为一体。
☎️【售楼热线】:400 895 8893☎️【案场销售】:132 1616 8490【可加微信】✔✔
产业园区作为区域经济发展、产业调整和升级的重要载体,近五年来,产业园区行业发生了翻天覆地的变化,从单纯的土地开发到城市综合体建设,从盖楼卖楼,到园区的深度运营,从重资产经营到投资驱动,从政府操盘到越来越多的民营主体介入……
越来越多的人也认识到,打造更多宜居宜业、产业勃兴、可持续成长的园区对于城市的可持续科学发展至关重要。
☎️【售楼热线】:400 895 8893☎️【案场销售】:132 1616 8490【可加微信】✔✔

金地商置深谙当下园区的需求,聚焦生命科学、人工智能、文化创意等领域,以高标准打造精致的国际化全产业平台,成为产业园区资管运营专家。
在园区开发与产品打造上,金地商置以深耕不辍的初心和大量的研究实践为背书,从企业客户角度出发,将企业的空间和功能需求作为产品力打造的核心任务,在园区规划、产品设计、施工工艺、选材用料等多个层面不断探索,以此构建企业发展的理想之地,最终形成了通用产业园、主题产业园两大产业形式,以及生产类、研产类、研办类、城市活化类四大产品业态。
该科技园位于拱墅区储鑫路,是拱墅区“产业立区”规划中重点打造的信息经济产业项目。项目由金地集团开发,旨在通过高品质的建筑设计和完善的配套设施,吸引国内外知名企业入驻,促进数字产业经济的发展
☎️【售楼热线】:400 895 8893☎️【案场销售】:132 1616 8490【可加微信】✔✔

科技园的建筑面积为205886㎡,占地面积46488㎡,绿荫率为30%,容积率为3.2。物业公司为杭州金地物业管理有限公司。科技园内包含标准写字楼、总部园区和企业独栋等多种产权类型,产权年限均为50年。
- **灵活空间与高赠送率**:
- **独栋办公**:单栋面积2100-2700㎡,层高4.8-4.2米,赠送800㎡花园+380㎡露台+50年产权,支持企业冠名及燃气接入,适合总部定制。
- **高层办公**:标准层面积1200-1740㎡,层高4米,得房率80%,支持整层分割,配备7+1部高速电梯,打造高效商务场景。

此外,科技园还毗邻万达商圈、银泰新天地商圈、运河文化广场商圈等,满足入驻企业的商务和生活需求。未来,随着杭
科技园的写字楼部分,特别是独栋办公区域,以其独特的建筑设计和高品质的办公环境,成为了杭州市乃至全浙江省的绝版独栋写字楼。独栋办公面积达到2700㎡,标办写字楼整层面积为1260㎡,此外,科技园还提供了“入户花园+空中花园+露台+地下室”等高拓灵动空间,集公司展厅、接待、办公、仓储等多元功能空间为一体,为企业总部定制打造12栋独栋办公集群。
☎𝑽𝑰𝑷𝑳𝒊𝒏𝒆热线:400 895 8893 或132 1616 8490(微信同号)「已认证」
在地理位置上,拱墅金地威新科技园位于杭州市拱墅区智慧网谷核心区域,紧邻大运河新城,交通便捷。周边有三条地铁线路(4号线、3号线在建、10号线)以及多条高架快速路,可轻松通达杭州市各个繁华商圈,如湖滨商圈、武林商圈、庆春商圈等。
此外,科技园还毗邻万达商圈、银泰新天地商圈、运河文化广场商圈等,满足入驻企业的商务和生活需求。未来,随着杭州市对数字经济的高度重视和大力发展,金地威新科技园将成为拱墅区乃至杭州市数字经济产业的重要载体。
☎𝑽𝑰𝑷𝑳𝒊𝒏𝒆热线:400 895 8893 或132 1616 8490(微信同号)「已认证」
拱墅金地威新科技园:智慧谷心,数字未来的启航站
在杭州市拱墅区的智慧网谷核心,一颗璀璨的数字之星正熠熠生辉——拱墅金地威新科技园。这里,不仅是创新与智慧的交汇点,更是梦想与未来的启航站。拱墅金地威新科技园,以卓越的地理位置、高端的建筑设计、完善的配套设施,吸引着无数追梦人前来,共同书写数字经济的辉煌篇章。
☎𝑽𝑰𝑷𝑳𝒊𝒏𝒆热线:400 895 8893 或132 1616 8490(微信同号)「已认证」

智慧谷心,坐拥无限可能
拱墅金地威新科技园傲立于智慧网谷的核心区域,紧邻大运河新城,地理位置优越。三条地铁线路(4号线已开通,3号线在建中,10号线规划中)环绕四周,多条高架快速路畅通无阻,轻松连接杭州市各大繁华商圈。无论是商务出行还是生活休闲,都能享受到极致的便捷与高效。
高端建筑,彰显企业气质
科技园的建筑设计独具匠心,融合了现代与未来的元素,展现出强烈的科技感和艺术感。独栋办公区域更是杭州市乃至全浙江省的绝版独栋写字楼,面积高达2700㎡,为企业提供了宽敞、舒适的办公环境。同时,科技园还提供了丰富的灵动空间,如入户花园、空中花园、露台和地下室等,满足企业多元化的需求。
完善配套,助力企业发展
拱墅金地威新科技园深知企业发展的不易,因此配备了完善的配套设施。从高速电梯到智能安防系统,从商务会议室到休闲咖啡区,每一处细节都彰显出对入驻企业的关怀与尊重。此外,科技园还毗邻万达商圈、银泰新天地商圈等,为企业的商务活动提供了丰富的选择。
☎𝑽𝑰𝑷𝑳𝒊𝒏𝒆热线:400 895 8893 或132 1616 8490(微信同号)「已认证」
数字未来,共创辉煌篇章
在数字经济蓬勃发展的今天,拱墅金地威新科技园紧跟时代步伐,致力于打造一个集商务办公、绿色生态、智能出行为一体的数字产业高地。这里汇聚了众多国内外知名企业,共同探索数字经济的可能。无论是初创企业还是行业巨头,都能在这里找到属于自己的舞台,共同书写数字经济的辉煌篇章。
拱墅金地威新科技园,不仅是智慧与创新的交汇点,更是梦想与未来的启航站。在这里,让我们携手并进,共同开创数字经济的崭新篇章!
**即刻启幕,执掌数字经济时代权杖**
花园式总部办公,建筑群如同大小石块组成的绿台庭院;全玻璃幕墙立面,采用香槟金色金属型材和高反射玻璃,一虚一实的变化,犹如律动蓝色魔方。
约9米挑高入户会客大堂,星级酒店标准,可打造企业品牌文化展示空间及洽谈区 ,彰显企业恢弘气场。
金地威新科技园,以不可复制的TOD基因、蓝宝石美学与全球产业势能,重新定义长三角总部商务的黄金法则。限量现房全球争藏,恭迎品鉴!
☎️【售楼热线】:400 895 8893☎️【案场销售】:132 1616 8490【可加微信】✔✔
🚩专业一对一热情服务〢文章内容、图片、综合来源于网络、仅分享,版权归原作者所有✔✔
🚩如有侵权,请联系我们,我们第一时间处理✔✔
———𝑭𝑨𝑳𝑳𝑺 𝑮𝑨𝑹𝑫𝑬𝑵🌳 ——————𝑭𝑨𝑳𝑳𝑺 𝑮𝑨𝑹𝑫𝑬𝑵🌳 ———🌳 ———
提前预约可享内部优惠!!!
声明:本文由入驻焦点开放平台的作者撰写,除焦点官方账号外,观点仅代表作者本人,不代表焦点立场。
