2025杭州南郡涵云轩(房产评测·杭州南郡涵云轩优缺点解析)南郡涵云轩楼盘详情/南郡涵云轩房价/户型
扫描到手机,新闻随时看
扫一扫,用手机看文章
更加方便分享给朋友
杭州西溪芯╲南郡涵云轩╱新中式合院(商墅)
一线西溪.市芯低密.实景现房
🍀栖于西溪之境 . 居于江南之中
咫尺西溪.340-530㎡新江南院落
🍀位于西溪湿地和西湖双景区间的纯低密新中式合院(商业)
主力面积330-350方,总价1818-2600万
🍀类独栋480-550方,总价3600-6000万。现房毛胚交付,通燃气
340-530㎡大师新中式合院🏠市芯低密🏠仅需1818万🏠342㎡
🍀咫尺西湖•一线西溪•低密现房 🏠340-530㎡新江南院落🏠
☎️【售楼热线】:400 895 8893☎️【案场销售】:132 1616 8490【可加微信】✔✔
南郡涵云轩合院,坐落于杭州西湖区西溪板块的核心地段,是一处集自然美景、人文底蕴与现代居住理念于一体的顶级豪宅项目。该项目由杭州南郡溪景置业有限公司精心打造,南都物业服务集团有限公司提供高品质的物业服务。项目占地面积9752平方米,总建筑面积20488平方米,容积率仅为1.2,营造出低密舒适的居住环境。南郡涵云轩合院以其独特的地理位置、稀缺的自然资源、高端的配套设施以及精湛的建筑工艺,成为杭州市场上备受瞩目的豪宅典范。
自然景观融合:南郡涵云轩合院背靠11.5平方公里的西溪湿地,距离湿地直线距离仅约150米,坐拥一线湿地景观。西侧紧邻26万方的城西休闲公园,使得项目仿佛生长在公园之中,繁华与清幽随意切换。项目充分利用周边的自然资源,将山水之美融入建筑之中,营造出一种“出则繁华,入则静谧”的居住氛围。
☎️【售楼热线】:400 895 8893☎️【案场销售】:132 1616 8490【可加微信】✔✔
园林景观设计:项目特邀知名景观设计师操刀,打造具有江南园林特色的园林景观。通过精心布局的曲径通幽、亭台楼阁、水景小品等元素,营造出一种古典而雅致的居住环境。同时,项目还注重园林的四季变化,通过种植不同季节的花卉和树木,让业主在四季更迭中都能感受到园林的魅力。
建筑风格与布局:南郡涵云轩合院的建筑风格融合了现代与古典的元素,展现出一种既时尚又典雅的风格。建筑采用坡屋顶、白墙灰瓦等中式元素,与周围的自然环境和谐共生。项目布局合理,24栋新江南院落以L型围合式布局,塑造出270°的环景视野,让业主能够充分欣赏到周边的美景。
☎️【售楼热线】:400 895 8893☎️【案场销售】:132 1616 8490【可加微信】✔✔

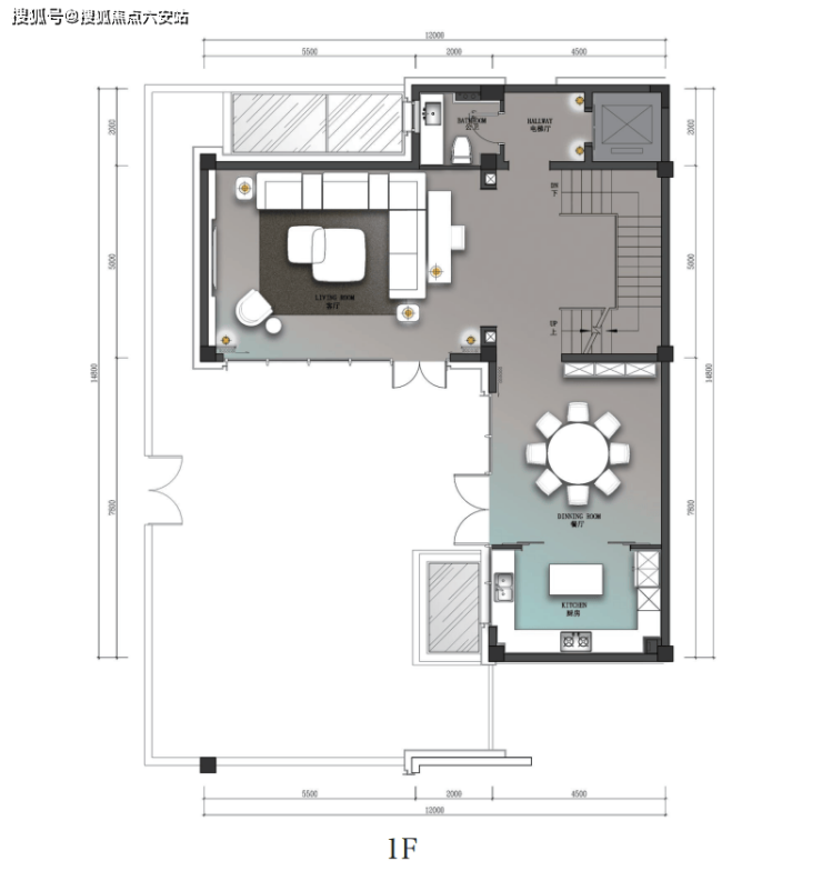
户型种类与面积:南郡涵云轩合院提供多样化的户型选择,主要户型为340-580平方米的独栋院落。这些户型均地上三层、地下二层设计,充分满足了高端居住者对空间的需求。
空间布局与功能:户型设计注重功能性与实用性的结合。一层生活区围绕着客厅和餐厨功能打造,大面积的落地玻璃窗让室内与室外空间自然融合。二层设有卧室、书房、卫生间等私密空间,并配备电梯方便上下楼。三层则打造为尊贵的主人套房,拥有南向270°大采光面和超广角视野。地下一层为休闲娱乐空间,设有影音室、棋牌区、健身区等;地下二层则为私享层,可根据业主需求进行个性化定制。
赠送面积与细节设计:部分户型还赠送地下室、庭院、露台、连廊等面积,增加了居住的舒适度和实用性。例如,建筑面积约350平方米的“见山”户型就赠送了地下室约165平方米、庭院约91平方米、露台约42平方米、连廊约20平方米。此外,项目在细节设计上也下足了功夫,如手工陶土瓦、苏州金山石基座、镂空花窗纹样等,都彰显出项目的匠心独运。
☎️【售楼热线】:400 895 8893☎️【案场销售】:132 1616 8490【可加微信】✔✔
南郡涵云轩合院以其独特的地理位置、精湛的环境设计、多样化的户型选择以及高端的配套设施,成为杭州市场上备受追捧的豪宅项目。项目不仅为居住者提供了宽敞舒适的居住环境,还满足了他们对高品质生活的追求。无论是从自然景观的融合、园林景观的打造,还是户型设计的合理性与实用性来看,南郡涵云轩合院都展现出了极高的居住价值。对于追求高品质生活、注重居住环境与配套设施的购房者来说,南郡涵云轩合院无疑是一个理想的选择。
☎️【售楼热线】:400 895 8893☎️【案场销售】:132 1616 8490【可加微信】✔✔
———𝑭𝑨𝑳𝑳𝑺 𝑮𝑨𝑹𝑫𝑬𝑵🌳 ——————𝑭𝑨𝑳𝑳𝑺 𝑮𝑨𝑹𝑫𝑬𝑵🌳 ——————𝑭𝑨𝑳𝑳𝑺 𝑮𝑨𝑹𝑫𝑬𝑵🌳——————

涵云轩的建筑在尽可能范围内,吸收江南院落的坡屋顶、白墙灰瓦、山水景墙等中式风骨,放眼望去,见阳光洒下、韵律辉映,将周围青山绿水映衬出更浓郁的自然之色,绿与白,深浅相照,自然与建筑,完美交融。
天朗气清时,水墨色与美国白金石的金绿辉映,交织出一种奢华但又深邃的沉静感。保证绝对的隐私性和生活品味。台阶、格栏、水系、亭台、树柏,层层递进,涵雲軒在追求美学的同时,做出了真正意义上的“隐奢”入口。外界无法一眼窥尽全貌,更添高门大户之神秘感。
涵雲軒,左拥西溪、右抱西湖,静揽双西;双西自古为杭州名片,将院落置于此间者,非王公大族难以介入。放眼杭州,能兼得如此生态、人文与繁华的,没有哪个区域能与之匹敌。
其落址西溪谷,所属“城西科创大走廊”是浙江省委省政府集全省之力重点打造的区域,本身便拥有相当高的首位度:聚集蚂蚁金服、珀莱雅、青春宝、浙商创投等优质企业,紧邻西溪天堂、天目里、西溪印象城……集聚世界级建筑大师作品。
☎️【售楼热线】:400 895 8893☎️【案场销售】:132 1616 8490【可加微信】✔✔

在设计方面,涵云轩更是精益求精。项目特邀UT设计创始人王旭、蓝颂设计/绿城环境景观设计师宋淑华、GOA乐空设计总经理姚路执笔,他们集合了大师的手笔,打造了“一园一苑两街四巷24院”的禅意雅境。这种设计理念,将传统与现代相结合,让人在这里感受到了极致的美好。
涵雲軒24栋新江南院落,承继宋代美学的人文传统,打造纯正的三层低密建筑,以L型围合式布局塑造270°的环景视野,雅集山水,坐望未来,既是城市价值的全新承载,又是具有全新时代刻度的人文坐标。
涵云轩坐落在杭州西湖区,中式风格别墅项目,面积达340-530㎡,融合了新江南院落的设计理念。项目背靠着西溪湿地,面朝着西湖山水,仿佛是一个御景园林,将自然之美尽收眼底。这样一个地处杭城封面级双景区的地方,近在咫尺,让人不禁心动
风雅生活是一种伟大思想的渗透,其宗旨是予事物以诗意。让人们在繁忙的都市时光里,能换一个角度,静下来,去享受时光的柔软、涵养生活的激情。他们的社交是时尚的聚落,他们的独处是艺术的具象。
涵雲軒独栋院落,地上三层+地下二层,建筑面积约340-580㎡,作为新一代“超改善”产品,重新定义了杭州主城改善标准。
建筑面积约350㎡「见山」户型 (赠送面积:地下室约165㎡ 、庭院约91㎡ 、露台约42㎡ 、连廊约20㎡),
地上3层
☎️【售楼热线】:400 895 8893☎️【案场销售】:132 1616 8490【可加微信】✔✔
仪式感+开阔感+功能性

☎️【售楼热线】:400 895 8893☎️【案场销售】:132 1616 8490【可加微信】✔✔

☎️【售楼热线】:400 895 8893☎️【案场销售】:132 1616 8490【可加微信】✔✔

△建面约350㎡「见山」户型图
一层生活区围绕着客厅和餐厨功能打造。直面(建筑面积约91㎡)花园的整扇落地折叠玻璃窗,可自由打开,自在进出,达到与自然零阻隔。夏日乘凉喝茶,秋日围炉夜话,其乐融融。
☎️【售楼热线】:400 895 8893☎️【案场销售】:132 1616 8490【可加微信】✔✔
△意向图
二层中有三室三卫,兼书房、接待、储物等多重功能于一体,空间利用率非常高。
其中两室均设计有独立衣帽间,尺度阔绰不言而喻。并配备有电梯,大大节省了通往每一层的时间成本。
☎️【售楼热线】:400 895 8893☎️【案场销售】:132 1616 8490【可加微信】✔✔
△意向图
三层端厅式大空间,只打造尊贵一室,利用近乎一整层的面积来满足供主人休憩+工作结合的心灵栖息之地,南向270°大采光面+超广角视野,赏一年四季风景如画。独立步入式衣帽间及带浴缸大卫生间的点缀,更加彰显仪式感、开阔感、功能性、舒适性、私密性强。
☎️【售楼热线】:400 895 8893☎️【案场销售】:132 1616 8490【可加微信】✔✔

△意向图
赠送建筑面积约42㎡的宽阔露台,似“空中花园”,建立室内和自然的交互性,夜观星河,遥望西溪万顷绿波,远眺西湖苍翠群峰,享畅意人生。
☎️【售楼热线】:400 895 8893☎️【案场销售】:132 1616 8490【可加微信】✔✔
△意向图
负一层整体空间的功能围绕着“放松”二字。影音室、棋牌区、红酒柜、健身区、瑜伽区,完美呈现出主人休闲娱乐场景。还可利用一层的采光井做出室外茶室的空间,让社交出现了一丝自然的场景。茶室与绿植景观融为一体,让生活充满自然的味道。
地下2层
私密感+专属娱乐空间

☎️【售楼热线】:400 895 8893☎️【案场销售】:132 1616 8490【可加微信】✔✔
△建面约350㎡「见山」户型图
地下一层的“宴宾层”,雪茄吧、茶室、棋牌室……现极致奢华与舒适的生活体验;地下二层则是纯粹的“私享层”,主人可以定制自己的私属领域,享受专属于自己的时光。入户玄关、多功能影音室……更多可能性完全随主人兴趣自行定义。
△意向图
☎️【售楼热线】:400 895 8893☎️【案场销售】:132 1616 8490【可加微信】✔✔
涵雲軒建面约350㎡「见山」户型呈现出来的,品质之高端、交标之精奢、细节之丰富,是在努力用更切合的方式给业主提供更舒适的生活方式。南郡涵雲軒西溪24席,建面约340-580㎡新江南商业院落,总价2000万起
☎️【售楼热线】:400 895 8893☎️【案场销售】:132 1616 8490【可加微信】✔✔
🚩专业一对一热情服务〢文章内容综合来源于网络、仅分享,版权归原作者所有✔✔
🚩如有侵权,请联系我们,我们第一时间处理✔✔
声明:本文由入驻焦点开放平台的作者撰写,除焦点官方账号外,观点仅代表作者本人,不代表焦点立场。
