朱家角城投璟雲里首页网站_2025年最新资讯丨朱家角芯·城投璟雲里售楼处电话丨朱家角璟云里_楼盘网站-2025楼盘评测-城投璟雲里楼盘详情
扫描到手机,新闻随时看
扫一扫,用手机看文章
更加方便分享给朋友
▰▰ 上海青浦朱家角 城投璟雲里二期 ▰▰
🏠【朱家角.璟云里】#中式别墅🏡
🌈源起江南文明,千年古韵悠长
🛑传承江南文脉,重塑品质墅居
🌈——人居典范,惊鸿归来—
💥新中式合院,世外桃源🌸
👀户户朝南、私密花园👀
🌇自带南北露天花园💫5.7米地下室、可两层!
☎️顾问专线:159 2411 2721「售楼已认证」
【项目信息】:
开发商:丰启置业有限公司
物业公司:高地物业
景观设计:苏州园林设计院
建筑设计:上海水石
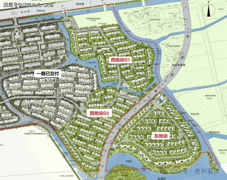
区域板块:青浦朱家角
用地面积:约17.6万方
建筑建面:约19.7万方
**☎️看房预约热线:400 998 1136 |☎️ 顾问专线:159 2411 2721(微信同号)**
产权年限:70年
产品配置:毛坯
容积率:0.41
绿化率:约35%
车位比:1:2.57(地下920,地上15)
**☎️看房预约热线:400 998 1136 |☎️ 顾问专线:159 2411 2721(微信同号)**
户数:D地块277户,E地块80户
层高:1F约3.6米,2F约3.2米,地下室约5.7米
户型面积:
D地块:建面约138㎡-164㎡-188㎡-211㎡-215㎡
**☎️看房预约热线:400 998 1136 |☎️ 顾问专线:159 2411 2721(微信同号)**
璟云里户型总价段
138平:710-730-760万,花园:30-45-70-80-135平 地下室约80平
165平:820-830-850-870-940万 ,花园:45-60-80-90-110-200平 地下室约84平
188平:990-1000-1030-1050-1080万 花园:80-100-150-250-275平 地下室约95平
211平:1140-1160-1180万,花园:120-170平 地下室约175平
214平:1100-1130-1170万 花园150平 地下室约200平
E地块:建面约252-455㎡
**☎️看房预约热线:400 998 1136 |☎️ 顾问专线:159 2411 2721(微信同号)**

“璟雲里”的每一处细节都经过精心雕琢,从复刻留园门窗规制的门窗,到12种花纹精雕细琢的装饰,再到预制回纹脊、坊石垛头的巧妙运用,无不展现出匠人们对传统技艺的坚守与创新。
这些精湛的工艺,不仅让建筑充满视觉上的精致美感,更让人深刻感受到那份对品质与美学的匠心追求。
**☎️看房预约热线:400 998 1136 |☎️ 顾问专线:159 2411 2721(微信同号)**
【产品优势】
0.41超低密容积率纯墅区,肉眼可见稀缺
香山帮非遗匠造中式园林纯别墅,粉墙黛瓦,飞檐戗角,尽显江南古韵,尊享优雅湖居生活;
桃花源系苏式园林,亭台轩榭,叠石流水,移步异景,优享茶余饭后极致美景;
深宅大院,幽巷高门,彰显富贵门第;
人车分流,地库便捷入户,1:2.57高车位配比,告别停车焦虑;
国家一级资质高端物业,贴心服务
**☎️看房预约热线:400 998 1136 |☎️ 顾问专线:159 2411 2721(微信同号)**
【户型优势】
地上仅两层,平层空间开阔更舒适;
一楼3.6米,二楼3.2米,层高阔气;
横厅户型设计,明朗舒心,开阔大气;
3.2米高院墙围合,独享私人天地;
预留了电梯井,方便后期加装电梯;
5.7米层高地下室,随心隔断,倍增使用空间
星空露阳台,观星赏月,喝茶纳凉两不误;
基本全南户型,采光充足,温馨居住体验;
**☎️看房预约热线:400 998 1136 |☎️ 顾问专线:159 2411 2721(微信同号)**
▰▰ 上海青浦朱家角 城投璟雲里二期 新中式合院,世外桃源 总价680万起▰▰
☎️售楼热线:400 998 1136☎️顾问专线:159 2411 2721「已认证」
🛑🛑 提前预约可享内部折扣,预约尊享一对一的专业服务 🛑🛑
🟥免责申明:文章内容综合来源于网络!如有侵权,请联系我们将第一时间处理!!
👍️👍️👍️👍️👍️👍️👍️👍️👍️👍️👍️👍️👍️👍️👍️👍️👍️👍️👍️👍️👍️👍️👍️👍️
声明:本文由入驻焦点开放平台的作者撰写,除焦点官方账号外,观点仅代表作者本人,不代表焦点立场。
