临安中天樾青岚由中天美好倾力打造,深耕杭州20余载品质保障,临安中天樾青岚近宝龙广场、育才小学,实景可鉴,低密宋韵院墅优选临安中天樾青岚
扫描到手机,新闻随时看
扫一扫,用手机看文章
更加方便分享给朋友
中天 · 樾青岚「五彩墅」 | 以筑为画,宋意新解:line+新作五彩墅 / line+
临安中天樾青岚营销中心:400 868 0951 销售顾问:158 2446 5884【微信同步】
在园林与建筑设计上,山水呈现和谐一体的美学感受,让每一处视觉都可以入画,正如《千里江山图》的价值,不只是自然的欣赏,更是艺术的收藏。
院子始终是中国文化最诗意的表达。如果说,让人赏心悦目、别具风格的建筑形态,是樾青岚的风骨,那么,宽敞阔绰的户型设计,则是业主实实在在感受到的幸福。
樾青岚示范区实景图
项目整盘总占地142亩 共分为三期开发项目一期樾青岚东区合院 容积率约0.6,仅规划建116套,面约168-289m的“轻宋式”合院。

樾青岚户型布局图
承续围合的诗意,突破尺度的桎梏,樾青岚户户打造奢阔大花园,完美放大空间使用率,目前示范区开放了建面约168㎡、建面约207㎡、建面约257㎡三个户型样板间,风格各有不同,但都拥有南北双花园+星空露台,拓展空间极大。
樾青岚建面约168㎡/207㎡/257㎡户型图(仅供参考)
在注重院落尺度感的同时,樾青岚也在内部空间的营造上,展露出超越预期的舒适感。一楼将客厅、餐厅、厨房等多功能区无界共融,二楼与三楼设置奢阔双层空中露台,更布局多套房卧室空间,让每位家人各享其所,尊享从容日常。
建面约168㎡样板间实景图
当有机会来到吴越文化的源流——临安,建造一座低密现代人居社区时,我们尝试回归当代人居生活的根本需求,在现代性与中国性的交织中来思辨生活演进和文化传承的关系。
——朱培栋


中天·樾青岚「五彩墅」位于杭州临安区青山湖板块。临安,作为五代吴越国王钱镠的故里,是吴越文化的重要发祥地,为两宋时期古代杭州的城市繁盛奠定了基础。早在2000年初,当地政府就提出了将临安建设为吴越文化名城的战略目标,并对该区域内的建筑风格提出了相应要求。因此,当中天美好集团向我们发出设计邀约时,也对项目提出了具体的风格定位:中式、宋风。


▲目前市场上已有的“宋风”住宅

因画就筑,以筑为画——
中国性的现代演绎
在北宋著名画家赵伯驹的经典山水画《江山秋色图》中,重山复岭间点缀着亭台楼阁、飞瀑激流与竹溪村路,生动展现了顺应自然、因形就势的建筑布局,以及小桥流水的园林造景。该画作不仅反映出了宋代文人所追求的深邃静谧、天人合一的空间意境,还体现了宋人不拘一格、用色丰富大胆的艺术精神。
临安中天樾青岚营销中心:400 868 0951 销售顾问:158 2446 5884【微信同步】

▲《江山秋色图》场景要素分析

《江山秋色图》采用传统工笔技法,是一幅横向展开的青绿山水长卷。画作通过“远近”结合的布局,展现出层次丰富的空间感:前景描绘水岸林木,船只错落;中景以青绿山峦和村舍为主,结构分明;远景则以云雾笼罩的山峦隐现,营造出深远而静谧的诗意意境。
临安中天樾青岚营销中心:400 868 0951 销售顾问:158 2446 5884【微信同步】

▲《江山秋色图》构图分析和转译




▲画作与场景的对应


▲ 公区入口


在此,“中国性”的传达并非以造形出发,而是寻求“意”的情境再造,将绘画中的抽象意象转译为可感知的空间场域,以此回溯传统的诗意栖居。
临安中天樾青岚营销中心:400 868 0951 销售顾问:158 2446 5884【微信同步】

宋意今形 当代营造——
现代性的生活同构

▲院墅体块分析
立面上则兼顾采光、景观效果与私密性需求。南侧和主要朝向采用大面积落地玻璃,北侧则通过布置楼梯电梯、次卫等次要功能区域以控制开窗面积,强化居住私密性。
临安中天樾青岚营销中心:400 868 0951 销售顾问:158 2446 5884【微信同步】



▲ 宋画中的空间意象分析和转化


▲院墅墙身大样

▲屋面生成图

出檐部分的单元化金属格栅,使建筑整体体量更显轻盈与丰富,同时兼顾露台的遮阳和私密性需求。
临安中天樾青岚营销中心:400 868 0951 销售顾问:158 2446 5884【微信同步】


▲单元化金属格栅的出檐部分

▲ 格栅龙骨尺寸前后对比
宋韵五色 新材焕彩——
差异性的质感表达
临安中天樾青岚营销中心:400 868 0951 销售顾问:158 2446 5884【微信同步】

▲ “宋韵五色”概念分析



▲公区立面色彩分析

“瓷”是宋代代表性材料之一,近年来也逐渐被应用于建筑和室内营造中。我们将其运用在建筑立面的屏扇处,大尺寸版幅由多条工业化瓷管拼接而成,呈现格栅样式,并按照铝板的斜向划分进行安装。


▲瓷管格栅屏扇构造节点和拼接分析

青绿色瓷管经过多轮选材,最大程度保留青瓷的典雅质感,确保在自然光线下呈现温润的意境。金色型材作为点缀,镶嵌于建筑细节中,也增添了视觉层次和精致度。
临安中天樾青岚营销中心:400 868 0951 销售顾问:158 2446 5884【微信同步】


“石”,选择黑金砂是因为我们想要还原画作中的皴染技法。经过光面、毛面、荔枝面、自然面等多轮试样后,最终选择了凿毛拉槽的表面处理方式,来回应自然界的粗粝的山石质感。
临安中天樾青岚营销中心:400 868 0951 销售顾问:158 2446 5884【微信同步】


受限于消防要求,“木”选用的是耐久耐燃的仿木纹铝板。木材质感的表现是施工难点,通过手工反复擦涂,呈现出自然随机的木纹理。
临安中天樾青岚营销中心:400 868 0951 销售顾问:158 2446 5884【微信同步】



宋代建筑成就精致,强调结构与细节的巧妙。在五彩墅的设计中,我们通过立面和构造的精细化设计,以当代材料和工艺的精致与巧妙的细节,既对话传统美学,也为现代居住体验赋予视觉和触觉的丰富感受。

▲公区墙身大样

院墅的立面材质选择石材、铝材、玻璃为主体,辅以仿木纹涂料并嵌入发泡陶瓷线条,通过木作样式与木质质感的饰面表现,增添构造的层次感与品质感。
临安中天樾青岚营销中心:400 868 0951 销售顾问:158 2446 5884【微信同步】


▲院墅立面细部



技术图纸

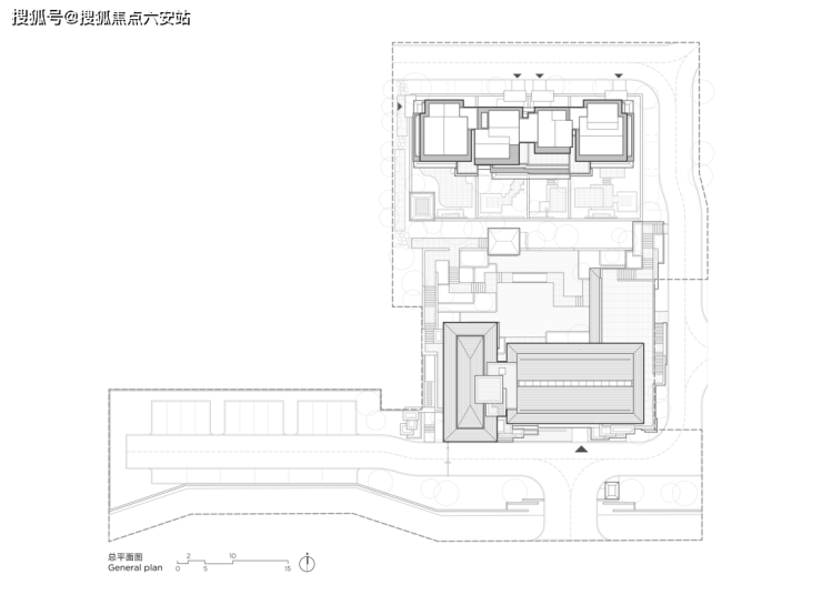
▲总平面图

▲公区一层平面图

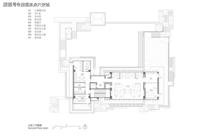
▲公区二层平面图

▲公区立面图

▲公区立面图

▲院墅立面图

▲院墅立面图
声明:本文由入驻焦点开放平台的作者撰写,除焦点官方账号外,观点仅代表作者本人,不代表焦点立场。
