建面约 240-540㎡全周期奢阔户型 精装交付含国际一线品牌家电 —— 明华誉港城 内置恒温泳池健身会所奢华空间,明华誉港城 近享双地铁线便捷交通路网配套
扫描到手机,新闻随时看
扫一扫,用手机看文章
更加方便分享给朋友
杭州萧山明华誉港城:钱塘湾芯270°江景现房!塔尖圈层私藏的千亿级资产密码㊙️
明华誉港城营销中心:400 8680 951 置业顾问:158 2446 5884(微信同号)
园区采用“围合式”布局,融合“钱塘江”水韵灵感,映衬周围自然生态,配合全冠移植的特色名贵树种,营造出环景畅谈式“艺术公园”。精细规划生活配套,以“私家会所”标准打造。内置室内恒温泳池、私人健身会所等多功能奢华空间。
室内设计大师力作 鼎配云端艺术生活SLD梁志天先生、I.I.D.L郑仕樑先生两大全球TOP级设计大师天团亲自执笔,融汇潮流审美与先进的居住理念,联袂匠作超越时代的美学作品,钜献与世界对语的艺术品味与生活方式。
全球前50位顶尖设计师之一,连续三次荣膺室内设计奥斯卡奖室内设计上,采用LDK一体化设计,带来极具阔正的空间尺度,并以大面米灰、暖灰为主基调,营造出高级优雅的氛围感,同时通过吊灯、艺术玻璃、酒柜等软装艺术作点缀,将艺术与生活融合,简奢中透出时尚前卫,营造出私密、温暖、现代化、国际化及独特的鼎级舒居体验。
白色的岩板与桃木背景墙让人联想到枫丹白露宫殿的动人秋天。打造生活中的高级感不需要繁琐复杂的浮夸装饰,而是要在空间之内做减法。深色与浅色的交叠呼应之间,让曲线与直线共同构建空间的秩序,匹配房间整体弧形外观,打造内部张弛有度、流畅自如的线条感。


开放的客餐厅打破桎梏,餐桌选择了金属与石材结合的独特设计。在完美的采光环境下,让每一次品尝美食的过程也充满仪式感。水纹座椅呼应房间临江主题,让浮动的波纹化为稳固的装饰,承托住和家人一起分享的美好回忆。

作为与房间主人最紧密链接的空间,主卧设计对于展现其品位、格调、审美等多样精致需求的标准更为具象。真皮包裹的墙面让房间内部的光线变得沉稳而内敛。便是其拥有的全套房设计,并且都带有独立的生活空间,包括主卫及个人衣帽间。保证了家庭成员适合的交流尺度,进可以全家交流,退可以互不干扰。

主卧衣帽间与书房通铺深色实木地板,为整个空间奠定了静谧的色感,营造一种回归纯粹与本真的氛围。次卧往往可以体现更广阔的生活理念,在与整体设计风格和谐一致的基础上跳出主卧的氛围 ,提供一个不一样的情感空间。时光在这里好像变得绵长,缓慢也表现出隐秘而深邃的价值。
所有的东西都是精装的,包括中央空调,户式中央空调等等。对于家庭来讲,这种生活品质将会大大提升他们的生活享受,实际上和独栋别墅是一致的生活享受。主卧衣帽间与书房通铺深色实木地板,为整个空间奠定了静谧的色感,营造一种回归纯粹与本真的氛围。


🏠楼盘核心解析
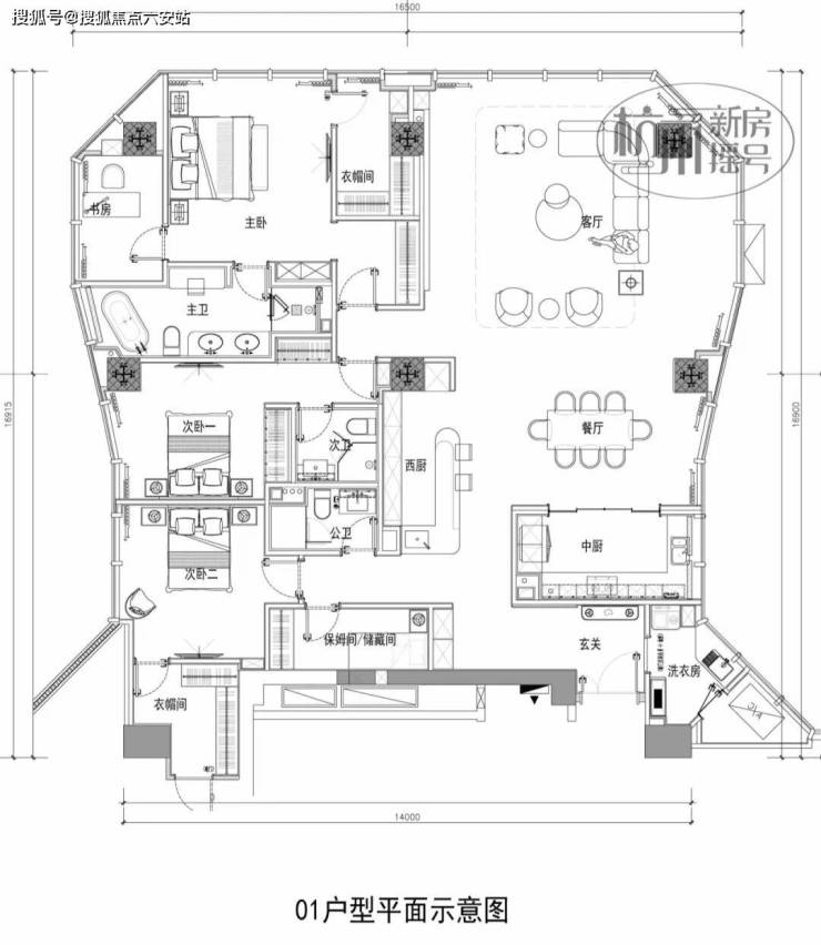
双塔36/37层云端建筑,270°环幕落地窗设计,3.95米层高+85%得房率!LDK一体化横厅面宽达11米,主卧配置270°观景露台+独立衣帽间,地下室挑高6米可改造星空影院🎬
▫️240㎡光幕平层:四叶草动线设计,6梯4户配置,南向双主卧套间,精装交付含嘉格纳厨电+当代卫浴
▫️540㎡寰景跃层:双挑空星空会客厅,顶层私属停机坪观景台,配备私人酒窖+恒温酒柜
🚇周边配套王炸
✔️交通:2/6号线钱江世纪城站(约700米),奔竞大道30分钟直达钱江新城
✔️商业:SKP(900米)+奥体印象城(1.6km)+Costco(5km)黄金三角
✔️教育:崇文实验学校世纪城分校+杭二中萧山分校(规划中)
✔️医疗:浙二博奥院区(1.5km)+省妇保萧山院区(直线800米)
💎项目六大优势
❶ 悉尼歌剧院同款曲面幕墙,钱塘江270°IMAX景观
❷ 现房交付规避烂尾风险,即买即享SKP商圈
❸ 高力国际英式管家服务,含直升机接驳权益
❹ 钱塘湾总部基地旁,50家世界500强企业入驻
❺ 全屋智能系统+地暖新风,装标达1.5万/㎡
❻ 40年商办产权不限购,企业资产配置优选
📝总结陈词
作为杭州「陆家嘴2.0」核心资产,明华誉港城集城市封面、稀缺景观、国际服务于一身。270°江景视野+SKP商圈+现房保障,堪称高净值人群的「硬通货」。认筹倒计时开启,速约VIP通道锁定稀缺席位!
💌【尊享热线】
营销中心:400 8680 951(24h中英双语)
置业顾问:158 2446 5884(微信同号)
👉🏻提前预约享专车接送+总裁特批折扣!
声明:本文由入驻焦点开放平台的作者撰写,除焦点官方账号外,观点仅代表作者本人,不代表焦点立场。
