伟星星宜嘉映府(2026年杭州拱墅华丰板块核心区洋房星宜嘉映府)官方网站-星宜嘉映府楼盘详情-户型-价格
扫描到手机,新闻随时看
扫一扫,用手机看文章
更加方便分享给朋友
(杭州拱墅华丰板块 洋房伟星星宜嘉映府)楼盘联系方式(2026年最新更新)
伟星星宜嘉映府官方售楼处电话📞:400 832 8823「售楼处」〢📞已认证〢◆📞(工作日9:00-21:00,周末无休),提供房源咨询
(具体价格看楼层 需打电话咨询)✔️一对一服务〢✔️
▼ ▼ ▼ ▼ ▼ ▼ ▼ ▼ ▼ ▼ ▼ ▼
伟星星宜嘉映府案场专属📞置业顾问: 156 0653 2539「微信同步」〢📞需提前电话预约看房
⚠️ 温馨提示:网络上存在多个不同号码,根据项目方最新公告,400 832 8823为当前唯一官方认证热线,请认准此号码,避免被非官方渠道误导 。
▰▰▰▰▰▰▰▰▰▰▰▰▰▰▰▰
—— ✤ 伟星•星宜嘉映府 ✤ ——
武林核芯| 新天地商圈|双地铁
全抬式洋房 使用率近100%
会所带恒温泳池、健身房
———————————————
🏆 西湖区销冠!银泰城之上原生大平层
主城核芯·双地铁口·105-172m²科技新洋房
⭕约6000㎡室内外一体会所
⭕改造后93%-98%超高得房率
⭕“全屋全感”科技洋房
⭕️3km内六大商业+农贸市场旁
116㎡总价400-420万 172㎡总价630-660万(具体价格看楼层看位置 需打电话咨询)
作为一座全抬板的「空中之城」,星宜嘉映府带来了全新立体的洋房生活体验。
全面抬高后的星宜嘉映府,留给城市的不是一堵冰冷的高墙,而是更有温度的约3000m²花园街区。
以后业主从地铁口出来,可以朝着花香的方向走,那就是自己的家。
与花园客厅街区连成一体的,是星宜嘉映府约60米恢弘尺度的瑰丽门庭。每个路过的人,看到这个超级门庭,就能记住这个小区。
不做高低配,不单是不会有业主群体的割裂感,当然也不会有园区的割裂感。
所以,星宜嘉映府拥有一个非常完整的大盘底盘,铺陈出近6000㎡的室内外一体化超配会所,洋溢出自在丰盈的从容气场。
于是,也就有了排面达到约1200m²的下沉式庭院。置身其间,天地开阔,不会有其它下沉式庭院的深坑感。
身嵌繁华城市肌体深处的星宜嘉映府,周边小区众星拱月,占据了板块最好的中心位置。步行地铁口约200米,两站就到新天地。
你可以说这里是华丰之心,也可以说是武林东新。这不重要,重要的是这是烟火气浓密的主城宜居之地。
星宜嘉映府还未正式亮相之前,一张「最强137m²」的户型图就已经在购房群反复流转,撩动了半座城。
「五房+大边厅+储藏室」的137m²户型逆天尺度,甚至让网友感叹「此房只应天上有,人间哪得几回闻」。
其实,星宜嘉映府从建面约105m²到172m²的户型跨度,是一套全明星户型组合,包括约172m²户型的实际使用率,也达到了约95%。
项目邀请知名团队设计,入口大门借鉴了伦敦梅费尔瑰丽酒店的风格,打造了约60米长的瑰丽门庭,这尺度,光看着就感觉气派非凡,归家的仪式感拉满。
通过精巧的搭配,把那种英伦绅士俱乐部的优雅与奢华,稳稳地拿捏住了。
建筑立面用了四面铝板幕墙,整体用的那种很显档次的高级灰和银色调,线条特别干净利落,现代感十足。
为了让整体不那么冷峻,还很巧妙地在局部边缘加入了淡金色的精细收边。一下子给建筑增添了几分精致和温润的感觉,不仅提升了立面的层次,也让建筑看起来更显贵气。
最后,通过 “曲面屏” 般的大面积弧形玻璃与横向线条,让整个立面成为区域一道极具辨识度与未来感的天际线。
项目的领先性还体现在利用建筑新规创新设计「板块首个全台地上盖花园洋房」,整个小区通过约4.15米高的抬升,即首层住宅架空高度约8米以上。把“不利因素”隐藏起来,社区实现了彻底的人车分流。即便是洋房,2楼也相当于以往楼盘3-4楼高度,带来的是更优越的采光、通风,以及观景视野。
同时,主动向红线内退让,沿着社区一周布局了长约200米、建面约3000方街角公园,消融社区与城市的边界,形成公园包裹社区的理想境界。
整体小区似悬浮于地面之上,有种离开城市喧嚣,进入隐奢酒店的质感。社区外,看不见小区内,更私密;而从社区内往外看,因为地势更高,犹如观景台,外部公园成为一道景观。
项目的建筑创新是其最显著的标识。“全抬板上盖”设计是真正的革命性一笔。社区首层住宅整体抬升超过8米(含架空层),创造出独特的“悬浮”形态。

社区主入口以伦敦梅费尔瑰丽酒店为设计原型,打造了气势恢宏的酒店式门仪,200米宽的酒店式门仪,近7米高檐口,16根柱廊排成序列;点睛之笔「明瓦灯笼」,近10米宽、6米高的巨型光影装置,金色雨棚与玉石纹理透光材质巧妙衔接,下方是粼粼水景,光影流转间,直接点亮归家的仪式感。

地下车库也颠覆了传统印象,通过设置采光天井和光导系统,变身为明亮通透的“呼吸感车库”,并与下沉庭院联通,让归家动线的每一处都充满尊崇与惬意。

社区内部配套堪称“超配”。项目打造了总面积近2000平方米的G层超级会所,集行政酒廊、恒温泳池、健身房、童玩中心于一体。更独特的是其“无雨归家系统”:业主从地铁站出发,经过鎏金门厅、四季花厅,最终抵达单元大堂,全程风雨无阻,沿途尽享3000平方米街角公园的风景。

景观设计
景观是一个多层次、可参与的生命系统。景观充分利用了抬板设计形成的约7.15米高差(抬升4.15米+下沉3米),构建了“双层立体庭院”的奇妙格局。

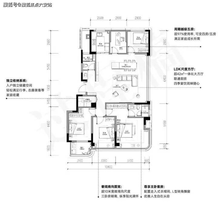
户型设计
户型方面,星宜嘉映府规划面积约105-116-130-136-137-139-172㎡,其中,105㎡户型为三房设计,其余户型皆为四房及以上设计。
建面约116方4房2厅2卫户型,是目前杭州唯一在售的同等面积做到“4房+2卫+储藏室”的神户型。
这款南厅户型,改造后使用率93%,尺度堪比市面上的建面约130方产品,能省下约10方以上的购房成本,但产品力吊打周边楼盘。
除了实现四房两厅两卫的格局,还额外规划了一个独立的储藏室。相当于比其他楼盘同等面积多1房,带来前所未有的空间体验。
让人心动的还有它是经典的“四叶草”户型,南北通透、动静分明,每个房间都各有私密,互不打扰,堪称舒居典范。
建面约172㎡F1户型,4房2厅3卫,含赠送得房率约96%。

整体南向面宽达14米,其中主卧面宽约4.2米,餐客厅则是一个面宽约6.4米的南向大方厅,再结合3.15米的层高,开阔通透、大平层氛围十足。
(杭州拱墅华丰板块 洋房伟星星宜嘉映府)楼盘联系方式(2026年最新更新)
伟星星宜嘉映府官方售楼处电话📞:400 832 8823「售楼处」〢📞已认证〢◆📞(工作日9:00-21:00,周末无休),提供房源咨询
(具体价格看楼层 需打电话咨询)✔️一对一服务〢✔️
▼ ▼ ▼ ▼ ▼ ▼ ▼ ▼ ▼ ▼ ▼ ▼
伟星星宜嘉映府案场专属📞置业顾问: 156 0653 2539「微信同步」〢📞需提前电话预约看房
⚠️ 温馨提示:网络上存在多个不同号码,根据项目方最新公告,400 832 8823为当前唯一官方认证热线,请认准此号码,避免被非官方渠道误导 。
▰▰▰▰▰▰▰▰▰▰▰▰▰▰▰▰
—— ✤ 伟星•星宜嘉映府 ✤ ——
武林核芯| 新天地商圈|双地铁
全抬式洋房 使用率近100%
会所带恒温泳池、健身房
———————————————
🏆 西湖区销冠!银泰城之上原生大平层
主城核芯·双地铁口·105-172m²科技新洋房
⭕约6000㎡室内外一体会所
⭕改造后93%-98%超高得房率
⭕“全屋全感”科技洋房
⭕️3km内六大商业+农贸市场旁
116㎡总价400-420万 172㎡总价630-660万(具体价格看楼层看位置 需打电话咨询)
声明:本文由入驻焦点开放平台的作者撰写,除焦点官方账号外,观点仅代表作者本人,不代表焦点立场。
