天目山晓城大众点评-天目山晓城楼盘百科(2025年最新-天目山晓城合院)户型-价格丨滨江天目山晓城首页网站_滨江天目山晓城楼盘详情丨配套户型丨销售进度
扫描到手机,新闻随时看
扫一扫,用手机看文章
更加方便分享给朋友
▰▰ 滨江•天目山晓城 90-160㎡唐风合院 现房 总价180万起 ▰▰
🛑滨江重磅打造限时特惠房源,总价180万起
🌈有花园!有院子!还送40平左右菜地
🛑花更少的钱,过向往的生活
🌈唐风合院别墅🏡现房、独院、大花园、送菜地
🛑主力面积114-142平方🔺总价200万起 即可🉐到
🌈建面约90-160㎡唐风合院(现房)
🛑0.6超低容积率,稀缺城市小合院
🌈天目山圣境 | 滨江首个亲旅小镇 | 大杭州都市圈 | 稀缺中式合院
☎️售楼热线:400 998 1136☎️顾问专线:159 2411 2721「已认证」
**【项目概况:千年文脉与现代奢享的碰撞】**
滨江·天目山晓城是滨江集团首个亲旅小镇作品,坐落于杭州临安天目山国家级自然保护区腹地,紧邻西天目景区、天目大峡谷等世界级自然景观。
项目占地约900亩,总投资15亿,历时7年匠心雕琢,以**“唐风雅韵+现房保障+顶配生态”**三重价值,打造集居住、度假、康养、亲子于一体的综合性文旅目的地。
**☎️预约尊享热线:400 998 1136 |☎️ 顾问专线:159 2411 2721(微信同号)**

**【核心亮点:稀缺性与品质的双重加持】**
**超低密合院,重构隐贵生活**
- **0.6容积率**,仅规划366席1-2层唐风合院,户户私享**80-200㎡花园庭院+40-60㎡田园菜地**,赠送车位,实现“有天有地”的低密格局。
- 建筑汲取唐宋文化精髓,采用飞檐翘角、白墙黛瓦设计,融合双层中空玻璃幕墙与铝代木工艺,兼具传统美学与现代实用性。以约142㎡户型为例,面宽达15.2米,四开间朝南,配置主卧套房、星空露台及可变“X空间”,功能与诗意并存。
**☎️预约尊享热线:400 998 1136 |☎️ 顾问专线:159 2411 2721(微信同号)**

**顶配文旅配套,赋能全维生活**
- **洲际英迪格酒店**已开业,业主享6折泳池、健身房使用权,定制化设计融合森林灵感,成为小红书潮人打卡地。
- **3000㎡自然探索乐园**、鹿可卢可农场提供亲子研学与农耕体验;**天目in66商业街**汇聚米其林餐饮与文创手作,满足高阶消费需求。
- 暖驿社区提供健康管理、禅修静心等康养服务,长者可参与果园采摘、社群活动,实现“自然与繁华双栖”。
**☎️预约尊享热线:400 998 1136 |☎️ 顾问专线:159 2411 2721(微信同号)**
**世界级生态资源,天然氧吧疗愈身心**
- 周边半小时车程覆盖**西天目山、东天目山、太湖源景区**等,晨观云海、暮听溪声,复刻陶渊明笔下的桃源诗意。
- 背倚“大树王国”天目山,负氧离子浓度高达13万/cm³,年均温仅14℃,是杭州罕见的避暑胜地。
**☎️预约尊享热线:400 998 1136 |☎️ 顾问专线:159 2411 2721(微信同号)**
**【交通与区域价值:融杭战略下的黄金区位】**
- **交通便捷**:紧邻杭徽高速藻溪互通,自驾40分钟直达杭州主城西,50分钟接驳杭州西高铁站,无缝融入“大杭州1小时都市圈”。
- **文旅红利**:依托天目山文旅升级与城西科创走廊规划,叠加亚运辐射效应,稀缺低密资产增值潜力显著。
**☎️预约尊享热线:400 998 1136 |☎️ 顾问专线:159 2411 2721(微信同号)**
**【开发商实力:千亿滨江,品质承诺】**
滨江集团深耕地产30余载,2022年蝉联杭州销售双料冠军,2023年位列中国房地产百强TOP13。秉承“让老百姓住上好房子”的理念,项目以现房实景呈现,精工细节如威能地暖、迈迪龙新风系统等,品质一目了然。
**临安滨江天目山晓城 | 唐风合院现房,开启诗意山居生活**
**——总价180万起,拥享天目山麓的隐贵人生**
**☎️预约尊享热线:400 998 1136 |☎️ 顾问专线:159 2411 2721(微信同号)**
**【置业门槛:性价比碾压市场的资产孤品】**
- **总价180万起**,均价约2.8万/㎡,仅为杭州主城同类产品(如九溪玫瑰园)的1/3。
- 现房销售,即买即住,规避期房风险,赠送车位与菜地,性价比市场罕有。
**项目地址**:杭州市临安区天目山镇浪白线与藻天线交汇处
**☎️预约尊享热线:400 998 1136 |☎️ 顾问专线:159 2411 2721(微信同号)**
天目山晓城现有90-160㎡的现房合院在售,产权为40年,总价约180万起。这样的价格对于追求品质生活的购房者来说无疑是一个极具吸引力的选择。
在这里,你可以用相对亲民的价格享受到别墅级的居住体验,让生活回归本真,让心灵得以自由飞翔。
**☎️预约尊享热线:400 998 1136 |☎️ 顾问专线:159 2411 2721(微信同号)**
以约142㎡户型为例,可设计为4房4卫,一楼奢适的餐客一体大方厅,可作为一家人的度假生活中心,二楼还拥有两个套房;
带孩子和父母周末小住、更带有约110㎡花园,足够你种上一圈花草修竹,摆一个茶几两把躺椅,夏天果树成荫,冬天红梅傲立,生活的烟火气立马就出来了。
**☎️预约尊享热线:400 998 1136 |☎️ 顾问专线:159 2411 2721(微信同号)**
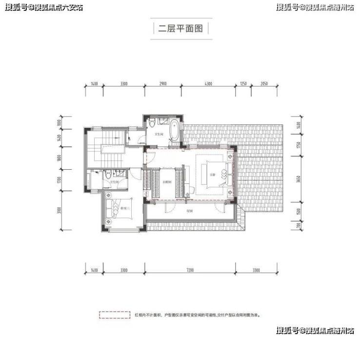
天目山晓城建面约142㎡户型图
142㎡户型为例,面宽约15.2米,标准4房4卫。一楼是约7.2米长的双面采光大横厅,除了老人套房,还有个向院子伸出的“X空间”。
它既能用作茶室、棋牌房,也能成为私密的客卧。拥有两个套房,主卧还是带南向独立衣帽间+带浴缸卫生间+露台“满配套房”!无论采光还是实用性,都碾压普通合院。
**☎️预约尊享热线:400 998 1136 |☎️ 顾问专线:159 2411 2721(微信同号)**
花园之上,当然还有滨江傲人的建筑品质。屋顶是和湘湖里一脉相承的J型和瓦,木作是更耐久的“铝代木”,落地窗是双层中空玻璃。
要知道一般同面积段合院,通常3开间南,面宽10米出头。一楼带老人房,二楼挤着3个房间,主卧没有独立衣帽间。相比之下,天目山晓城的“极致扁平化”合院,住起来爽太多了。
**☎️预约尊享热线:400 998 1136 |☎️ 顾问专线:159 2411 2721(微信同号)**
140㎡样板间实景图
▰▰ 滨江•天目山晓城 临安唐风合院 有花园!有院子!还送40平左右菜地 ▰▰
☎️售楼热线:400 998 1136☎️顾问专线:159 2411 2721「已认证」
🛑🛑 提前预约可享内部折扣,预约尊享一对一的专业服务 🛑🛑
🟥免责申明:文章内容综合来源于网络!如有侵权,请联系我们将第一时间处理!!
👍️👍️👍️👍️👍️👍️👍️👍️👍️👍️👍️👍️👍️👍️👍️👍️👍️👍️👍️👍️👍️👍️👍️👍️
声明:本文由入驻焦点开放平台的作者撰写,除焦点官方账号外,观点仅代表作者本人,不代表焦点立场。
