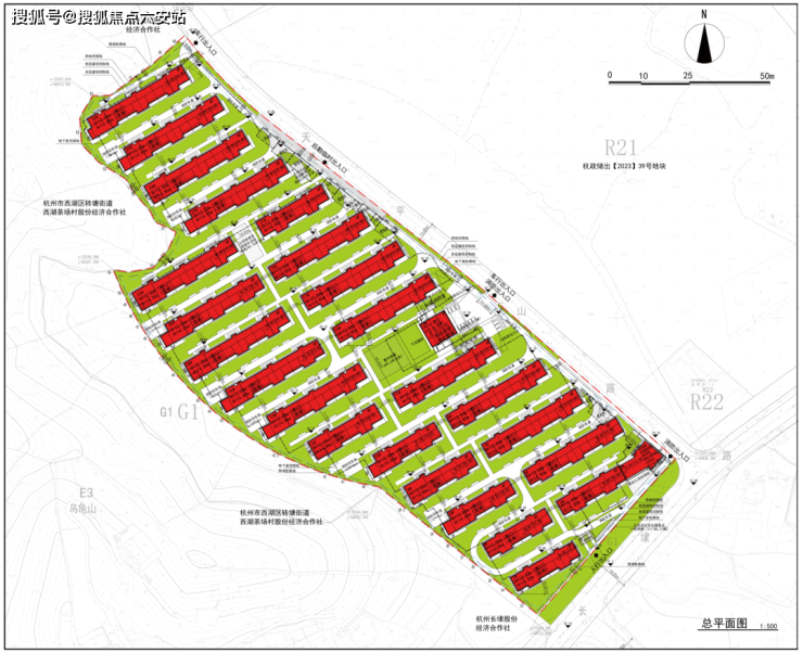
西湖区龙坞中海月陇云岚,规划24幢4层纯叠墅、256户纯粹圈层住区,车位比1:1.5,70年纯住宅产权,全方位保障资产价值与居住权益。
扫描到手机,新闻随时看
扫一扫,用手机看文章
更加方便分享给朋友
杭州西湖区龙坞中海月陇云岚
售楼热线:4008680951 ﹝已认证﹞® 销售经理:15824465884﹝已认证﹞®
【春节期间】来访需提前预约,以免直接参观无销售接待!
🔻严重声明:本公司从未在朋友圈,抖音,短视频发布过营销广告和信息
🔻🔻🔻🔻🔻任何人和单位在抖音,微信短视频宣传均为中介宣传!

在茶道中独有“一期一会”的生活哲学,是指心怀“难得一面,世当珍惜”的哲思,礼遇相逢在此的每一位朋友,并将每次相会视为一生唯一,给予对方更好的珍视和款待,而这份真心与珍惜,也就成为每个人心中共同的航向与指引。
2023年,中海地产与杭州西湖再度相逢,觅得龙坞茶山的低密净土,拥有继中海·黄龙云起之后打造又一个西湖作品的机会。在西湖景区宅地资源稀缺的背景下,中海·月陇云岚以西湖作品的视角切入,充分融入地脉文化,并精研当代叠院的生活习性,在龙井与茶山的浸润之中,展开当代西湖人居的感召之旅。




中海·月陇云岚生长于西湖山水与龙井茶山的贵脉之中,拥有优越的自然环境和人文厚蕴,不仅将续写中海与西湖暌违五载的重逢故事,更承担着中海以云起系进阶叠院作品,再现当代杭州的低密山水人居。因此,西湖顺理成章地成为项目的价值对景,一个立于龙坞、坐标西湖的故事就此开始叙述。
西湖是杭州的精华,是孕育黄龙贵脉与武林繁华气韵的天然源泉,也是酝酿山水诗意和自在烟火的岁月容器。与西湖的距离,向来是这座城市高端物业绕不开的价值标尺。纵观杭州全境,“西湖生活”可分为三个演进过程:一进西湖,是人人享有的湖滨繁华生活;二进西湖,是以西湖群山为代表的自然文化遗产;三进西湖,则是以龙坞为代表,只有少数人懂得的“西湖留白”。
如果说前两进是都市活力与历史延续的见证,那么只有在“三进西湖”,才能拨开城市、人群、霓虹背后的西湖,并让心灵穿越西湖深处,寻见西湖生活的悠然与相宜。这里以恰到好处的距离保留了西湖隐逸自由的一面,又承载了生活的烟火气,既是一座生活的西湖,也是一片可以被私藏的西湖。
“三进西湖”的故事揭幕,也是中海云起系与西湖的重逢序章。五年前,中海·黄龙云起作为云起系开篇作品,以西湖为坐标,链接杭州精华的三公里;而今,中海·月陇云岚立足“三进西湖云生处”,以中海之云对话西湖之云,不只是中海与西湖地理意义上的“云起重逢”,更是一种精神属性上的“西湖回归”,它以得天独厚的资源禀赋,“采撷月之光华、取意陇之山境、融合云之精研、点缀岚之气象”,落款西湖的杭州留白,为品味杭州的人收藏心中的西湖。





一个西湖作品的诞生,是天时、地利、人和臻于化境的圆融表达。如果说中海与西湖的重逢是开发者与城市、土地的美好结缘,那么中海·月陇云岚以“三进西湖”塑造回归西湖的价值坐标,以在地化设计营造融于茶山之间的西湖作品,则蕴藏着中海对这片山水的尊重与珍视。
纵览中海·月陇云岚的地理环境,整体生长于茶陇之上,西侧与北侧皆被苍翠的龙井茶山环绕,地块自东南向西北形成起伏的坡地高差,山水脉络和建筑分布形成围合之势,茶山青绿与西湖涟漪皆相融于此,孕育一片隐于自然的山水台地。
“宅中有院,院中有屋,屋中有院,院中有天”的院落情怀,勾勒出当代人居语境中令人向往的理想场景,亦成为项目产品研发与规划的诗意源泉。在云起系作品内核的指引下,中海·月陇云岚善待山水资源,以“修复山脉”的规划理念,结合天然地形,在起伏的坡地之上营造茶陇叠院,以一处与生俱来的山居生活大境,开启与西湖山水的价值对话。
为了不辜负这片天赋珍贵的土地,中海·月陇云岚尊重土地的原生文化,延续中海··黄龙云起的设计天团,与大师联袂共著。淡墨青瓦勾勒出大量出檐空间,金属格栅与隐框玻璃的透亮立面,搭配现代简洁的美学演绎,更大限度将建筑融于龙坞茶陇。坡顶与小坡顶的结合,则与台地更为相融,展现写意流畅的灵动之美。
中海·月陇云岚还以“四方山色,云水九溪”为主题,结合龙坞台地特有的“山水感、起伏感、曲折感、驻留感”来营造园林景观,整体形成“一心一环双轴七廊道”的景观布局,行于其中,寄情于自然山水,创造出乘物游心的游园体验。而在户型空间命名上,“旗枪”、“云雾”、“玉露”、“奇兰”等一系列样板名称,都流露着大师美学与中国茶文化的自然交融。由此,西湖、茶山和中海融汇成一个完整的作品,照亮当代心灵对西湖的本真向往。


西湖生活凝聚在茶山之间,自然的松弛与都市的丰盈在中海·月陇云岚得到完美的安放,而这份纯粹的生活方式,势必会酝酿出共同的精神境界与生活喜爱,进而吸引一群志趣相投的人们心生共鸣。中海·月陇云岚的目标客群就是一群“当代东坡居士”,也是一批懂得西湖真味的“生活藏家”——他们在山水之间探寻生活的本真,在诗酒茶的日常中品味人生的自在意趣。在他们心里,居于茶陇山前的中海·月陇云岚,不只是东坡文化的当代表达,更是可以被珍藏的西湖诗意。
对中海·月陇云岚而言,唯有心怀“一期一会”的生活哲学,珍惜每一次相见的机遇和相聚的时光,才能给予彼此更好的款待,这也是「山前」生活会馆的立意,以真诚的善意带给“当代东坡居士”崇高的礼遇,让生活的每一分每一秒都变得更有意义,建构值得珍视的日常体验。
随着故事线的循序渐进,「山前」生活会馆风雅绽放,以在地化设计结合龙坞生态环境、人文底蕴和生活文化,融合石、水、茶、画等元素构建的示范场所,以画寻境、以石为山、以茶寄情,将西湖、茶山和宾客尽纳其中,描摹一幅当代版的青绿山水长卷,无言叙述着宋式美学的西湖意蕴。
与“当代东坡居士”的生活哲思形成巧妙呼应,「山前」生活会馆将茶道的生活哲学和度假奢享融入空间,设有“水雲间”水吧台、“山外山”茶室、“饮雲上”品茶雅间、“踏山风”健身房等功能场域,在宁谧与禅意之间际会风雅,无论与人社交茶叙,还是自我深度对话,都在品尝人生每一刻的珍贵。



这是一湖一山的馈赠,亦是一期一会的相逢。
售楼热线:4008680951 ﹝已认证﹞® 销售经理:15824465884﹝已认证﹞®
从“三里西湖”到“三进西湖”,是中海云起系与西湖的诚意重逢;从“黄龙云起”到“月陇云岚”,是中海精研主义与产品美学的进阶迭代。这是献给每一位生活藏家的西湖作品,在西湖山水与茶陇山境的交织中,茶叙一段余味绵长的悠悠时光。
声明:本文由入驻焦点开放平台的作者撰写,除焦点官方账号外,观点仅代表作者本人,不代表焦点立场。
