南郡涵云轩杭天下-杭州西溪湿地合院南郡涵云轩楼盘详情(2025南郡涵云轩房价+户型)-南郡涵云轩
扫描到手机,新闻随时看
扫一扫,用手机看文章
更加方便分享给朋友
杭州西湖◆西溪湿地◆南郡涵云轩
🔻售楼热线:☎ 400 832 8823「售楼处」☎〢网上售楼中心〢🔻
🔻◆置业顾问:☎ 156 0653 2539「微信同步」☎〢🔻专业一对一热情服务〢◆🔻
🔻⑉⑉⑉ıllı⑉🔻南郡涵云轩售楼处(周一至周日 9:00--18:00)一对一咨询🔻看房需要提前电话预约,避免可能案场无人接待!提前预约可享内部优惠〢匠心钜制-恭迎您的品鉴⑉ıllı⑉⑉

涵雲軒独门独户院落,地上三层+地下二层,建筑面积约340-580㎡,作为新一代“超改善”产品,重新定义了杭州主城改善标准。建筑面积约350㎡「见山」户型 (赠送面积:地下室约165㎡ 、庭院约91㎡ 、露台约42㎡ 、连廊约20㎡),🔻售楼热线:☎ 400 832 8823「售楼处」☎〢网上售楼中心〢🔻



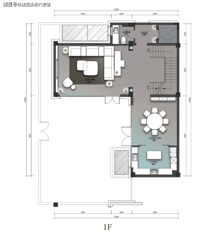
△建面约350㎡「见山」户型图
一层生活区围绕着客厅和餐厨功能打造。直面(建筑面积约91㎡)花园的整扇落地折叠玻璃窗,可自由打开,自在进出,达到与自然零阻隔。夏日乘凉喝茶,秋日围炉夜话,其乐融融。🔻售楼热线:☎ 400 832 8823「售楼处」☎〢网上售楼中心〢🔻
二层中有三室三卫,兼书房、接待、储物等多重功能于一体,空间利用率非常高。
其中两室均设计有独立衣帽间,尺度阔绰不言而喻。并配备有电梯,大大节省了通往每一层的时间成本。🔻售楼热线:☎ 400 832 8823「售楼处」☎〢网上售楼中心〢🔻
三层端厅式大空间,只打造尊贵一室,利用近乎一整层的面积来满足供主人休憩+工作结合的心灵栖息之地,南向270°大采光面+超广角视野,赏一年四季风景如画。独立步入式衣帽间及带浴缸大卫生间的点缀,更加彰显仪式感、开阔感、功能性、舒适性、私密性强。🔻售楼热线:☎ 400 832 8823「售楼处」☎〢网上售楼中心〢🔻

赠送建筑面积约42㎡的宽阔露台,似“空中花园”,建立室内和自然的交互性,夜观星河,遥望西溪万顷绿波,远眺西湖苍翠群峰,享畅意人生。🔻售楼热线:☎ 400 832 8823「售楼处」☎〢网上售楼中心〢🔻
负一层整体空间的功能围绕着“放松”二字。影音室、棋牌区、红酒柜、健身区、瑜伽区,完美呈现出主人休闲娱乐场景。还可利用一层的采光井做出室外茶室的空间,让社交出现了一丝自然的场景。茶室与绿植景观融为一体,让生活充满自然的味道。
地下2层
私密感+专属娱乐空间

地下一层的“宴宾层”,雪茄吧、茶室、棋牌室……现极致奢华与舒适的生活体验;地下二层则是纯粹的“私享层”,主人可以定制自己的私属领域,享受专属于自己的时光。入户玄关、多功能影音室……更多可能性完全随主人兴趣自行定义。
涵雲軒建面约350㎡「见山」户型呈现出来的,品质之高端、交标之精奢、细节之丰富,是在努力用更切合的方式给业主提供更舒适的生活方式。南郡涵雲軒西溪24席,建面约340-580㎡新江南商业院落,总价2000万起!现已开启贵宾品鉴!
涵云轩的建筑在尽可能范围内,吸收江南院落的坡屋顶、白墙灰瓦、山水景墙等中式风骨,放眼望去,见阳光洒下、韵律辉映,将周围青山绿水映衬出更浓郁的自然之色,绿与白,深浅相照,自然与建筑,完美交融。

天然石材与当代工艺结合,赋予建筑以高定恒贵质感;又辅以全幕玻璃,占据了立面的大部分空间,经过恰到好处的切割布局后,虚实相生,立面的国际感被很好诠释,散发出一种传统与当代相生的时尚气息,这是建筑给予业主高于功能之外的身份标签价值。
楼下,是环绕式前庭后院设计,山石、亭台、池塘、溪流与小道自然交融,在主城区土地日益紧缺的当下,拥有一方独立的城市院子City yard当是无与伦比的享受,邀上三两好友,或烹茶煮酒、或谈说风云,是极少数人方能拥有的生活。
每家每户都享独立花园庭院,建面约60-300㎡,扩宽生活的空间,妥帖安放一家人的生活与社交。

南郡涵云轩新中式合院如一股清流,以其独特的新中式建筑风格、深厚的文化底蕴、精致的园林景观以及尊享的配套服务,为追求品质生活的你打造一处城市中的古典雅韵居所。这里,不仅是一处居住的空间,更是一场关于新中式生活美学的盛宴。

【新中式风范,演绎古典雅韵】
南郡涵云轩新中式合院巧妙融合了传统中式建筑元素与现代设计理念,打造出既古典又时尚的建筑风貌。合院外观采用飞檐翘角、雕花窗棂等中式元素,彰显出浓厚的文化底蕴;而内部空间则注重实用与舒适,布局合理,动静分区,让你在享受现代生活便捷的同时,也能感受到中式建筑的韵味与雅致。

涵雲軒有着与生俱来的山水品位:背靠西溪湿地、面朝西湖山水、坐揽城西休闲公园,深度沉浸的隐谧气像与西溪谷、西溪天堂的璀璨霓虹形成呼应。因此,以“闹中取静、静中取幽”的美学灵感,既脱离了城市的打扰,又避免了山水的冷寂,在繁华与自然之间,寻见一个难得的平衡点。
涵雲軒,左拥西溪、右抱西湖,静揽双西;双西自古为杭州名片,将院落置于此间者,非王公大族难以介入。放眼杭州,能兼得如此生态、人文与繁华的,没有哪个区域能与之匹敌。
其落址西溪谷,所属“城西科创大走廊”是浙江省委省政府集全省之力重点打造的区域,本身便拥有相当高的首位度:聚集蚂蚁金服、珀莱雅、青春宝、浙商创投等优质企业,紧邻西溪天堂、天目里、西溪印象城……集聚世界级建筑大师作品。
杭州西湖◆西溪湿地◆南郡涵云轩
🔻售楼热线:☎ 400 832 8823「售楼处」☎〢网上售楼中心〢🔻
🔻◆置业顾问:☎ 156 0653 2539「微信同步」☎〢🔻专业一对一热情服务〢◆🔻
🔻⑉⑉⑉ıllı⑉🔻南郡涵云轩售楼处(周一至周日 9:00--18:00)一对一咨询🔻看房需要提前电话预约,避免可能案场无人接待!提前预约可享内部优惠〢匠心钜制-恭迎您的品鉴⑉ıllı⑉⑉
声明:本文由入驻焦点开放平台的作者撰写,除焦点官方账号外,观点仅代表作者本人,不代表焦点立场。
