萧山建工EIC:三地铁·超级配套|建工EIC,奥体顶奢大平层与写字楼同步预约
扫描到手机,新闻随时看
扫一扫,用手机看文章
更加方便分享给朋友
萧山建工EIC官方售楼处发布:【官方认证】
EIC售楼处VIP:400 8680 951 置业电话:158 2446 5884「微信同步」
------------------- ------------------- -------------------
内容包含建工EIC楼盘信息,售楼中心,户型图,周边配套,销售中心,营销中心,基本资料,最新优惠,低价查询,成交价,售楼处销售,甲方对接,渠道优惠等等!
萧山建工EIC准现房大平层+写字楼,一线江景房,萧山奥体核心唯一在售高品质洋房和别墅!
奥体芯·江景综合体|建工EIC大平层+写字楼,375㎡顶奢资产启幕
在杭州钱江世纪城奥体核心,能将“莲花碗”盛景、钱塘江风光与都会繁华尽收眼底的超级综合体,唯有建工EIC大平层+写字楼。近50万㎡体量涵盖200米摩天双塔、顶奢大平层与国际潮流商业,375㎡大平层93%得房率刷新杭城标准,写字楼以双金级认证定义未来办公。意向咨询可直接联系:售楼处VIP:400 8680 951,置业电话:158 2446 5884「微信同步」
作为建工集团布局奥体的标杆之作,建工EIC大平层+写字楼特邀英国F+P设计事务所操刀,融合绿色生态与智慧科技,打造集居住、办公、商业于一体的城市封面。无论是高净值家庭追求的江景顶奢生活,还是企业总部所需的高端办公载体,这里都是杭州奥体板块的不二之选。



一、项目基本资料:奥体超级综合体,顶奢配置全解析
【开发主体】杭州建工集团,深耕地产20余年,以“精工品质”著称,曾打造多个城市地标项目,资金实力与开发经验雄厚
【核心定位】钱江世纪城近50万㎡超级综合体,涵盖200米摩天商务双塔(T3、T4)、互联网总部大楼(T5)、Service无界空间(T1、T6、T7)、国际潮流Mall&街区,打造“工作+生活+休闲”一站式生态圈



1. 建工EIC大平层基本信息
【产品类型】40年产权商业大平层,超高层江景住宅,原生设计保障空间舒适度
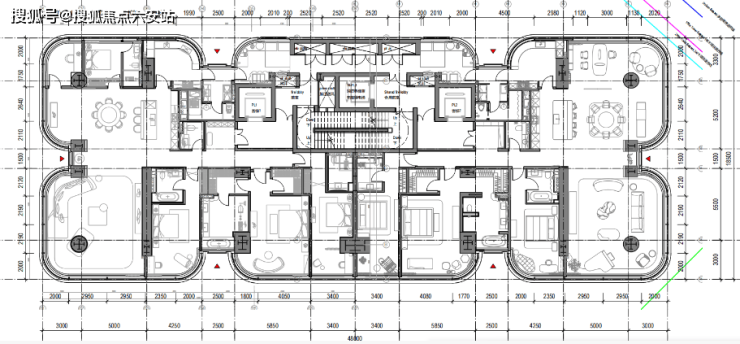
【主力户型】约375㎡六房六卫,四套房设计,四开间朝南,南向总开间达24米
【核心指标】总户数194户,得房率高达93%(杭城同类产品领先),层高3.8米,百米楼间距确保日照无遮挡
【交付标准】全屋进口大理石铺装,客餐厅及玄关采用进口鱼肚白奢石;“美国路创+快思聪”全屋智能化系统,顶奢精装一步到位
【物业服务】丽晶物业联合全球知名Club Corp会所运营,2030年12月31日前物业费15元/㎡·月(含能耗),提供定制化高端服务
【交付时间】2025年10月












2. 建工EIC写字楼基本信息
【产品类型】甲级写字楼,T3为核心商务载体,定位企业总部办公
【核心认证】全国首个LEED+WELL双金级认证,绿色健康办公标杆
【核心指标】得房率约70%,室内层高4.5米,双层挑高中庭9米,标准层面积开阔
【硬件配置】22部瑞士迅达进口定制级S7000电梯,超1.5倍供电量,风机盘管+新风系统,万兆光纤入户(WIFI6全覆盖,预留6G、7G接口)
【交付标准】公区精装,室内配备网络地板与吊顶,满足企业个性化装修需求
【物业服务】物业费22元/㎡·月(含能耗),五重安保系统,无感通行保障安全与效率
【交付时间】2025年10月,车位配置超3000个,满足企业停车需求
从居住到办公,建工EIC大平层+写字楼以“全维度顶奢配置”构建高端生态圈,无论是产品细节还是服务标准,都契合高净值人群与企业总部的核心需求。



二、地理位置:奥体核芯+江景资源,城市价值制高点
地段的终极价值,在于对城市核心资源的绝对占有。建工EIC大平层+写字楼坐落于钱江世纪城奥体核心,地处“国博+奥体”双圈交汇点,一边是赛事经济与会展经济的双重红利,一边是钱塘江景与城市天际线的稀缺景观,成为杭州无可替代的价值高地。
从板块定位来看,钱江世纪城是杭州“一江两岸”发展战略的核心引擎,与钱江新城共同构成杭州新中心。这里聚集了互联网、新金融等高端产业,截至2024年,已入驻企业超3000家,其中上市公司与行业龙头企业占比达20%,成为杭州版“金丝雀码头”,发展潜力媲美伦敦金融城。
从资源占有来看,项目堪称“奥体资源集合体”:直线距离“莲花碗”(杭州奥体中心主体育场)仅数百米,这里曾承办亚运会、亚洲杯等国际赛事,未来将持续举办各类高端活动,带动板块价值不断攀升;距钱塘江岸线直线仅800米,270度落地水晶玻璃设计让大平层与写字楼均可俯瞰江景,将“潮起钱塘”的盛景尽收眼底。
从商业价值来看,项目与IFC、万象城、来福士通过隧道无缝连接,距杭州SKP直线仅1公里,这些高端商业体构成杭州顶级商圈,而项目自带约4万方国际潮流街区与约3000方国际会馆,进一步强化了板块的商业向心力,成为奥体核心的“生活与商务枢纽”。
数据显示,钱江世纪城写字楼自2015年以来7年涨幅达103%,年租金涨幅133%,而建工EIC大平层+写字楼作为板块内的超级综合体,无疑将承接这一价值红利,成为资产保值增值的优选。



三、交通优势:三地铁+三隧道,全域通达海内外
高端资产的流动性,离不开高效的交通网络。建工EIC大平层+写字楼依托“两横三纵三隧道三地铁”的立体交通体系,实现“30分钟通达全城,1小时连接长三角,4小时畅达海内外”的高效出行体验。
地铁出行堪称“黄金枢纽”:项目紧邻地铁2号线、6号线、7号线,三条线路交织成网,2号线直达武林广场、良渚等区域,6号线串联滨江、之江等板块,7号线直达杭州萧山国际机场,无需换乘即可抵达杭州各大核心区域与交通枢纽,彻底告别早晚高峰拥堵。
隧道与地面交通实现“跨江无缝衔接”:通过博奥隧道可快速抵达钱江新城,享受IFC、万象城等高端配套;庆春路过江隧道、望江路过江隧道进一步拓宽跨江通勤通道,驾车15分钟内可覆盖钱江新城、滨江核心区;紧邻市心路、博奥路等城市主干道,两横(奔竞大道、机场高速)三纵(市心路、博奥路、通城高架)路网四通八达,驾车20分钟可达杭州火车东站,30分钟抵达萧山国际机场。
对于企业商务出行而言,项目的交通优势更为突出:经杭州萧山国际机场,4小时可直达北京、广州等国内主要城市,12小时可抵达东京、新加坡等国际城市;通过沪杭甬高速、杭金衢高速,1小时内可抵达上海、绍兴、宁波等长三角城市,轻松融入长三角一体化发展圈,满足企业跨区域业务需求。





四、周边配套:1公里顶奢圈,商务与生活全维覆盖
高端生活与办公,需要完善的配套作为支撑。建工EIC大平层+写字楼依托自身超级综合体优势与周边成熟资源,构建了“1公里顶奢生活与商务圈”,从商业、教育、医疗到休闲,所有需求都能一站式满足。
1. 商业配套:超级商圈环绕,高端消费触手可及
项目自身打造约4万方国际潮流街区,规划引入高端餐饮、精品零售、生活服务等业态,下楼即可满足日常消费与商务接待需求;约3000方国际会馆内配备五星级大厨定制家宴包间,无论是企业商务宴请还是家庭高端聚餐,都能从容应对。
周边1公里范围内,高端商业体密集:杭州SKP作为全国顶级奢侈品购物中心,距项目仅1公里,聚集了超1000个国际品牌,满足高端消费需求;驾车5分钟可达奥体印象城,涵盖亲子、娱乐、餐饮等全品类业态,适合家庭休闲。通过隧道连接的钱江新城商圈,IFC、万象城、来福士等高端商业体提供更丰富的消费选择,真正实现“商务与生活无缝切换”。
2. 商务配套:会展+总部集群,高端商务主场
作为企业总部办公载体,建工EIC大平层+写字楼周边商务配套极为完善。距杭州国际博览中心直线仅1公里,该中心是杭州规模最大的会展场馆,每年举办各类大型展会超200场,企业可就近参与行业交流与商务洽谈;周边3公里内聚集了绿地中心、博地中心等多个高端写字楼,形成成熟的总部办公集群,商务氛围浓厚,便于企业资源整合与合作。
项目自身配备的董事会议室、会所沙龙等设施,为企业提供专属商务空间,无论是内部会议还是客户接待,都能彰显企业实力与格调。
3. 教育与医疗:全龄优质资源,健康与成长无忧
对于居住于此的高净值家庭,教育与医疗资源同样优质。教育方面,周边3公里内有杭州世纪实验小学、钱江世纪城中学等公办名校,师资力量雄厚,教学质量稳居萧山区前列;同时,杭州惠灵顿外籍人员子女学校距项目仅5公里,为有国际化教育需求的家庭提供优质选择。
医疗方面,距浙江大学医学院附属第二医院(滨江院区,三甲)驾车15分钟可达,该院在心血管疾病、骨科等领域全国领先;距萧山区第一人民医院(三甲)20分钟车程,日常健康保障与疑难病症治疗都能得到妥善解决。项目国际会馆内还配备室内恒温泳池、健身房等设施,为业主健康提供日常呵护。
4. 休闲配套:江景与公园,高端生活的自然底色
在繁华的奥体核心,自然景观尤为珍贵。建工EIC大平层+写字楼以“森林微城市”为设计理念,内部打造超14000方景观绿地与垂直多重休闲花园,让办公与居住都能融入自然;外部紧邻钱江世纪公园,该公园沿钱塘江而建,是日常散步、健身的理想场所,傍晚时分,江风拂面,尽享城市与自然交融的惬意。



五、项目优点:顶奢品质+稀缺价值,定义高端资产新标准
如果说稀缺的区位与配套是建工EIC大平层+写字楼的“外在光环”,那么产品本身的设计、品质与价值优势,就是其打动高净值人群与企业的“核心竞争力”。

1. 大师设计+顶奢配置,居住办公双重升级
作为英国Foster+Partners(F+P)事务所首献杭州的复合工作生活作品,建工EIC大平层+写字楼以高技派设计理念,将美学与实用性完美融合。大平层采用“五分离”(动静、干湿、中西厨、主仆、洁污分离)与“六明”(明客厅、明卧室、明餐厅、明中厨、明卫生间、明洗衣房)设计,375㎡空间布局极致合理,200㎡L型会客厅与美式大岛台构成社交核心,无论是家庭聚会还是商务接待都尽显气派。
精装标准堪称“行业标杆”:全屋进口大理石与鱼肚白奢石的运用,搭配定制化智能家居系统,让生活既奢华又便捷;写字楼采用双夹胶四层超白玻璃(单块约2.4米宽),保温降噪的同时开拓极致视野,陶土板、木制品等环保材质的运用,营造自然舒适的办公环境,VIP卫生间配备淋浴房与24小时热水,媲美奢华酒店标准。

2. 93%得房率+超大面宽,空间价值极致释放
在杭州大平层市场中,得房率普遍在75%-85%之间,而建工EIC大平层+写字楼中,大平层93%的得房率堪称“稀缺至极”。375㎡户型实际使用面积超348㎡,比同面积段竞品多出约40㎡实用空间,相当于多出一个完整的书房或影音室,彻底告别“公摊浪费”。
空间尺度更是“碾压同级”:大平层3.8米层高与24米南向面宽,搭配270度落地水晶玻璃,让室内采光充足,江景与城市风光无缝映入;写字楼4.5米标准层高与9米双层挑高中庭,彰显企业高端定位,开阔的空间可灵活分割,满足不同规模企业的办公需求。

3. 双金级认证+智慧系统,健康与效率双重保障
作为全国首个LEED+WELL双金级认证的综合体项目,建工EIC大平层+写字楼将“绿色健康”理念贯穿始终。WELL认证聚焦人体健康,通过空气、水、营养、光线等七大维度保障居住与办公者的身心健康;LEED认证则从环保角度出发,采用可回收材料与节能系统,实现绿色可持续发展。
智慧系统更是“赋能高端生活与办公”:大平层“美国路创+快思聪”系统可实现灯光、窗帘、家电的一键控制;写字楼6C智慧建筑系统、4重内环境系统与大数据传感器系统,实时监测室内环境并自动调节,万兆光纤与无感通行(人脸识别、自动派梯)系统,既保障效率又提升安全,为企业数字化办公提供坚实基础。

4. 国际服务+产业聚集,资产保值增值无忧
高端资产的价值,离不开专业的运营与服务。建工EIC大平层+写字楼由丽晶物业联合全球知名的Club Corp会所运营,为大平层业主提供五星级大厨定制家宴、私人管家等专属服务;为写字楼企业提供会议室预约、商务接待、政策对接等增值服务,助力企业发展。
从投资角度来看,项目优势尤为突出:钱江世纪城7年写字楼涨幅103%、租金涨幅133%的数据,印证了板块的投资潜力;项目自身建工集团自运营12万方以上,旗下G5已引入私募基金、全球平台等资源,将形成产业聚集效应,进一步提升资产价值。对于企业而言,入驻这里不仅能享受高端办公环境,更能融入高端产业生态圈,实现“办公与资产增值”双重收益。




5. 超级综合体+稀缺江景,不可复制的核心价值
在杭州,同时拥有“奥体核芯区位+超级综合体体量+一线江景资源+大师设计+顶奢配置”的项目屈指可数。建工EIC大平层+写字楼的稀缺性体现在:奥体核心土地资源不可再生,一线江景景观不可复制,近50万㎡超级综合体的全维度配套难以超越,这些因素共同构成了项目的“抗跌属性”与“增值潜力”,使其成为高净值人群资产配置与企业总部选址的首选。





六、项目总结:奥体顶奢资产,错过再无
在杭州高端市场中,建工EIC大平层+写字楼以“奥体核芯+江景资源+大师设计+顶奢配置+超级综合体”的五重核心优势,成为无可替代的标杆之作。375㎡大平层以93%得房率与24米南向面宽,满足高净值家庭的顶奢居住需求;写字楼以双金级认证与智慧系统,定义企业总部办公新标准。
随着钱江世纪城产业的持续聚集与配套的不断完善,项目价值还将持续攀升。目前项目正处于预约阶段,大平层与写字楼均接受企业与个人咨询,作为奥体核心的稀缺资产,入手窗口期已至。
售楼处VIP:400 8680 951
置业电话:158 2446 5884「微信同步」
诚邀莅临品鉴,解锁奥体核芯的顶奢生活与办公新体验

声明:本文由入驻焦点开放平台的作者撰写,除焦点官方账号外,观点仅代表作者本人,不代表焦点立场。
