滨杭滨纷城-杭州房天下丨2025年最新价格·滨杭滨纷城售楼中心丨临平芯·滨杭滨纷城首页网站丨滨杭滨纷城楼盘详情→楼盘百科→售楼处电话
扫描到手机,新闻随时看
扫一扫,用手机看文章
更加方便分享给朋友
▰▰ 杭州临平 滨杭·滨纷城 单价1字头惊爆价 杭州最便宜的滨江造 ▰▰
🌈杭州最便宜的滨江造‼️品质不输市面上三四万的楼盘‼️
🛑南面铝板+玻璃+涂料搭配的现代外立面
🌈多个主题架空层,含健身、童玩、滑板、共享厨房、休闲娱乐等
🛑送家装包:墙纸、玄关柜、镜柜、洗碗机、前置净水器‼️
🌈板块内唯一在售89方稀缺产品,三房两厅两卫,超低总价
🛑板块内罕见98方边套户型,超大客餐厅
🌈多变112方中间套四开间朝南三房,112方边套四房两厅两卫户型
☎️售楼热线:400 998 1136☎️顾问专线:159 2411 2721「已认证」
✅【滨杭滨纷城】十二大必买理由🔥
✅首付18万起,送车位送家装包‼
✅杭二白马湖九年一贯制公办名校❤
✅9号线双地铁站,无风雨归家🚇
✅媲美低密项目的超低容积
✅最大楼间距超80米,采光极佳❗
✅约2.4公里24节气超长环形跑道
☎️售楼处顾问专线:159 2411 2721
✅蒋愈大师设计 三种美学建筑,部分弧形阳台&部分铝板外立面
✅优享4200㎡公共配套,幼儿园就在家门口❗
✅约2.4公里24节气超长环形跑道
✅五大滨纷儿童乐园‼
✅约850㎡双景观水系
✅超4000㎡全能户外运动场(涵盖网球,羽毛球,小型足球,篮球,乒乓球各类运动)
✅超3200㎡多功能空间(奈尔宝同款儿童乐园、主题沙龙休闲空间、室内运动健身场、共享客厅、书吧等)
**预约看房可联系售楼热线 **☎️400 998 1136** 或专属顾问 **☎️159 2411 2721「微信同号」**
滨杭滨纷城丨城东TOD现象级红盘,双地铁+名校+低总价,首付18万级抢占杭州北门户资产高地
作为杭州城东新中心“现象级”TOD复合大城,滨杭滨纷城以“双地铁枢纽+杭二中教育+滨江品质”为核,集萃约63万方全业态生活场、主城稀缺小户型及1字头价格优势,为年轻人与改善家庭打造兼具增值潜力与品质保障的理想人居标杆。
**预约看房可联系售楼热线 **☎️400 998 1136** 或专属顾问 **☎️159 2411 2721「微信同号」**
一、天赋稀贵:城东TOD枢纽,双地铁+高铁北站赋能
双地铁上盖:横跨地铁9号线兴元路站(在建)与康信路站(在建),直线接驳地铁口,未来地下车库直连地铁站,15分钟直达钱江新城,45分钟贯通杭州核心商圈。
高铁北站红利:西邻规划中的临平北站枢纽(沪乍杭铁路、杭桐城际交汇),形成“地铁+高铁+城际”多维交通网络,打造杭州北门户核心资产。
产城融合高地:毗邻临平数智城(规划)、华立科技园等产业集聚区,承接千亿级产业集群人口红利,租赁需求旺盛。
**预约看房可联系售楼热线 **☎️400 998 1136** 或专属顾问 **☎️159 2411 2721「微信同号」**
二、产品力革新:滨江品质标杆,小户型+高得房率
主城稀缺小户型:建面约89㎡三房两卫,南向面宽9.5米,创新“S墙”设计释放玄关收纳空间,半开放式厨房增强家庭互动,得房率超80%,总价126万起,首付18万级入驻。
边套横厅设计:建面约98㎡边套户型打造5.8米南向大横厅+全景飘窗,设备平台内嵌提升外立面品质,对标奥体豪宅设计标准。
精工配置:全屋标配老板烟灶、洗碗机、凉霸,主卫智能马桶+浴缸,层高3米起,装标2500元/㎡碾压同级。
**预约看房可联系售楼热线 **☎️400 998 1136** 或专属顾问 **☎️159 2411 2721「微信同号」**
三、全维配套:自建商业+名校+超级公园
10万方商业综合体:涵盖咖啡店、健身房、轻餐饮等业态,约2000㎡邻里中心串联地铁口与下沉广场,形成“下楼即享顶奢生活圈”。
杭二中白马湖教育集团:签约九年一贯制临平东湖学校(2026年招生),两所幼儿园全龄覆盖,教育配套领跑城东。
7万方一体化公园:规划篮球场、轮滑广场、街式滑板场等15个运动场景,打造“家门口的露营野餐圣地”。
**预约看房可联系售楼热线 **☎️400 998 1136** 或专属顾问 **☎️159 2411 2721「微信同号」**
四、年轻力生活场景:智能+度假式社区
智能家居系统:AI客流监测、无人收银、AR虚拟导购,实现“一键预约停车位”等黑科技服务。
度假式园林:以蓝宝石水池、棕榈树、叠瀑溪流为核心,打造“一轴三岛五进”景观体系,架空层设置共享厨房、健身房等全龄社交空间。
滨纷SPORTS系统:羽毛球场、儿童综合运动场等15个主题场地,重构社区活力生态。
**预约看房可联系售楼热线 **☎️400 998 1136** 或专属顾问 **☎️159 2411 2721「微信同号」**
五、资产增值双保险:价格倒挂+滨江品牌
1字头价格洼地:精装限价1.98万/㎡,首开特惠均价1.56万/㎡,较周边二手房倒挂超7000元/㎡,总价较钱江新城同面积段省百万级。
滨江+杭铁双强背书:滨江集团(杭州华宅教父)与杭州地铁(TOD开发TOP级)联袂,交付力与运营力双重保障。
政策红利加持:纳入“杭州城东新中心”战略,未来新增地铁18号线、3座三甲医院,5年资产增值预期40%-60%。
**预约看房可联系售楼热线 **☎️400 998 1136** 或专属顾问 **☎️159 2411 2721「微信同号」**
滨杭滨纷城以“双地铁TOD+杭二中教育+滨江品质”三重价值,重新定义城东人居逻辑。无论是89㎡三房的极致性价比、10万方商业的都会活力,还是1字头价格与未来高铁枢纽的增值潜力,皆彰显其对城市青年需求的精准洞察。
目前建面约89-112㎡房源持续热销,主城最后价格洼地窗口即将关闭!
**预约看房可联系售楼热线 **☎️400 998 1136** 或专属顾问 **☎️159 2411 2721「微信同号」**
解密滨纷价值——重新定义杭州年轻人的生活理想
滨纷城以全新七大标准重新定义了年轻人生活理想。其未来之姿与杭州的科技一样横空出世,作为滨江首个TOD作品,85天热销1346套,已然引领杭州住宅迭代趋势。
**预约看房可联系售楼热线 **☎️400 998 1136** 或专属顾问 **☎️159 2411 2721「微信同号」**
TOD3.0复合大城,地下室直达地铁站
滨江集团与杭铁集团携手打造的滨纷城项目—TOD3.0产品,地下室直达地铁站,为业主搭建了便捷的出行路径以及高效的上学通道。
**预约看房可联系售楼热线 **☎️400 998 1136** 或专属顾问 **☎️159 2411 2721「微信同号」**
效果图过程稿,以实际交付为准
自带双幼儿园,杭二白马湖名校
滨纷城项目拥有近20000㎡的双幼儿园和杭二白马湖临平东湖学校(在建),后者预计2027年9月开始招生。(新房无学区,以交付后教育局公示为准)
**预约看房可联系售楼热线 **☎️400 998 1136** 或专属顾问 **☎️159 2411 2721「微信同号」**
效果图过程稿,以实际交付为准
杭州首个双地铁口项目
滨纷城作为杭州独具特色的地铁上盖项目,傲然坐拥两大在建地铁站点——9号线的康信路站与兴元路站(在建)。地下室部分直接与这两座地铁站无缝衔接,构建起便捷高效的地下交通网络。
**预约看房可联系售楼热线 **☎️400 998 1136** 或专属顾问 **☎️159 2411 2721「微信同号」**
地铁9号线实景图
超低容积率,稀缺小高层产品
滨纷城12-18层的小高层新品,其容积率仅为1.22—1.6,这足以媲美低密产品的容积率在当前市场上显得尤为难得。更为引人注目的是,新品的最大楼间距超过了80米,户型得房率最高可达82%,超宽楼间距和超高得房率为业主提供宽敞舒适的居住体验。
**预约看房可联系售楼热线 **☎️400 998 1136** 或专属顾问 **☎️159 2411 2721「微信同号」**
效果图过程稿,以实际交付为准
家门口的中央公园,从此住在花园里
滨纷城的绿化面积高达约75000㎡,面积之大,甚至超过了一般的小区。在设计理念上,滨纷城借鉴了纽约中央公园的经典布局,精心构建了“一芯一环十境”的中央公园模式。
**预约看房可联系售楼热线 **☎️400 998 1136** 或专属顾问 **☎️159 2411 2721「微信同号」**
效果图过程稿,以实际交付为准
一站式生活配套,呈现更丰盛的日常
滨纷城规划了一个约10万㎡的商业及办公区,为业主创建一个多功能的购物、休闲、娱乐空间。潮流花园式街区,将自然景观与商业环境融合,提供丰富的邻里互动场景。
**预约看房可联系售楼热线 **☎️400 998 1136** 或专属顾问 **☎️159 2411 2721「微信同号」**

小区内设有约3200㎡的架空层主题泛会所,2.4公里长的24节气主题跑道,还有约4000㎡的户外运动球场和室内健身场所,满足业主运动和多功能的社交需求。
更值得一提的“一主四副”五大全龄段儿童乐园,配备多样游乐设施,确保小业主们的安全和乐趣。(该部分主题空间由全体业主确认改造实施,业态配套仅供参考,具体落地以官方最新公布为准)
**预约看房可联系售楼热线 **☎️400 998 1136** 或专属顾问 **☎️159 2411 2721「微信同号」**

滨纷万象实景图
超低门槛的89㎡稀缺小户型,杭州少有的明星爆款
滨纷城为年轻人设计了低门槛友好小户型,包括89㎡户型和98㎡边套三房,以及116㎡边套四房。多面积段的户型设计,满足不同年轻家庭的需求。稀缺的89㎡,更是杭州少有的明星爆款户型
**预约看房可联系售楼热线 **☎️400 998 1136** 或专属顾问 **☎️159 2411 2721「微信同号」**
首付仅18万起——杭城年轻人的高性价比选择
随着新邻地区域的土地价格迅速攀升,楼面价已经高达15686元/㎡,与此同时,根据最新的克尔瑞数据显示杭州拥有相似配套设施的其他区域项目单价基本突破了3万元大关。
然而,滨纷城以其超乎寻常的高性价比,在杭州这座繁华都市中,无疑成为了年轻人轻松实现置业梦想的至优选择。
**预约看房可联系售楼热线 **☎️400 998 1136** 或专属顾问 **☎️159 2411 2721「微信同号」**
数据来源于网络
杭州再迎滨纷,带着TOD的全部魅力,让您坐拥一座城而非仅仅一个家。全新滨纷生活示范区正式开放,恭迎品鉴!——滨江造·TOD复合大城·建筑面积约89 - 116m²滨纷新品,即将取证,敬请期待!
**预约看房可联系售楼热线 **☎️400 998 1136** 或专属顾问 **☎️159 2411 2721「微信同号」**

效果图过程稿,以实际交付为准
项目规划建面约89㎡-112㎡的户型区间,仅百来万的总价,让年轻人体面留在杭州。
值得一提的是,当很多刚需盘的起步户型拉高到100方左右时,滨纷城做出了久违的建面约89㎡,这也是滨纷城的第八个「唯一性」。
同时也意味着,滨纷城不仅是今年杭州市区单价最低,也是总价最低的纯新盘。
这个建面约89㎡中间套是完整的三房两卫,做到了三开间朝南,并且加入了S墙的设计,可以完美嵌入冰箱和玄关柜,解放了厨房餐厅的空间,提高了空间利用率。
**预约看房可联系售楼热线 **☎️400 998 1136** 或专属顾问 **☎️159 2411 2721「微信同号」**
△ 滨纷城建面约89㎡装修示意图
此外,在其他楼盘里,建面约98㎡户型往往只有中间套,但滨纷城带来了中间套和边套两种选择。
这也是第九个唯一——目前杭州市面上「唯一」的建面约98㎡边套,是当下置业边套的最低门槛。约5.8米的大边厅,舒适度拉满。
**预约看房可联系售楼热线 **☎️400 998 1136** 或专属顾问 **☎️159 2411 2721「微信同号」**
△ 滨纷城建面约98㎡边套装修示意图
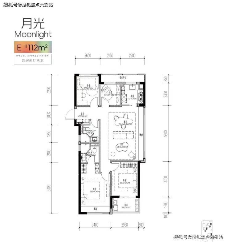
如果预算足够,还可以选择建面约112㎡户型,一步到位。
三房中间套户型做到了四开间朝南,面宽约12.8米,真正实现了「阳光平权」。边套则做到了四房,可满足二孩家庭的居住需求。
**预约看房可联系售楼热线 **☎️400 998 1136** 或专属顾问 **☎️159 2411 2721「微信同号」**
滨纷城的第十个唯一,就是它是目前「唯一」首开既送车位又送家装包的在售盘。
首开赠送的家装包里:全屋墙纸、玄关柜、镜柜、洗碗机、前置净水器等都配齐了,加上车位,又为年轻家庭省下了一大笔钱。
拥有十个「唯一」的滨杭滨纷城,价值buff叠满。
**预约看房可联系售楼热线 **☎️400 998 1136** 或专属顾问 **☎️159 2411 2721「微信同号」**

▰▰ 杭州临平 滨杭·滨纷城 1字头惊爆价 滨江集团 杭州最便宜的滨江造 ▰▰
☎️售楼热线:400 998 1136☎️顾问专线:159 2411 2721「已认证」
🛑🛑 提前预约可享内部折扣,预约尊享一对一的专业服务 🛑🛑
🟥免责申明:文章内容综合来源于网络!如有侵权,请联系我们将第一时间处理!!
👍️👍️👍️👍️👍️👍️👍️👍️👍️👍️👍️👍️👍️👍️👍️👍️👍️👍️👍️👍️👍️👍️👍️👍️
声明:本文由入驻焦点开放平台的作者撰写,除焦点官方账号外,观点仅代表作者本人,不代表焦点立场。
