蓝城滨悦城滨江大平层匠造多元功能空间,适配全家庭居住需求,搭配空中花园与智能安防系统,近享生态绿境与繁华商业,现房价值清晰可见
扫描到手机,新闻随时看
扫一扫,用手机看文章
更加方便分享给朋友
杭州滨江区蓝城英冠滨悦城——营销中心
✅✅✅蓝城英冠滨悦城官方售楼处电话:400 8680 951【开发商认证】🔥🔥🔥
【春节期间】来访需提前预约,以免直接参观无销售接待!
🚩🚩🚩 蓝城英冠滨悦城官方唯一售楼处电话:400 8680 951【唯一官方电话】🔥🔥🔥
🟥🟧🟨🟩🟦🟪🟥🟧🟨🟩🟥🟧🟨🟩🟦🟪🟥🟧🟨🟩
销售经理:158 2446 5884【房开经理】温馨提示:春节假期看房需要提前预约!
➖➖➖➖➖➖➖➖➖➖➖➖➖➖➖➖
✅✅✅楼盘项目全面介绍,本电话为开发商提供线上售楼处电话,楼盘项目全面介绍!
售楼热线:4008680951 ﹝已认证﹞® 销售经理:15824465884﹝已认证﹞®
温馨提示:来访需提前预约,以免直接参观无销售接待!
🔻严重声明:本公司从未在朋友圈,抖音,短视频发布过营销广告和信息
🔻🔻🔻🔻🔻任何人和单位在抖音,微信短视频宣传均为中介宣传!
钱塘江一桥至四桥间,一江春水上连绵着古老的六和塔、五云山和凤凰山。从这一段江南岸看江景,江山壮美,诗意悠长。
也因曾诞生过银杏汇、水晶澜轩和柳岸晓风这三大江景豪宅,上市公司聚集,又有繁华便利的滨江宝龙广场,成为杭州最著名的“高端江景都市带”之一。
然而回头看也不无遗憾之处。这些顶豪大宅,主力最大户型也就219-370㎡。
杭州上一代的江景顶豪,户型格局明显差了一口气。
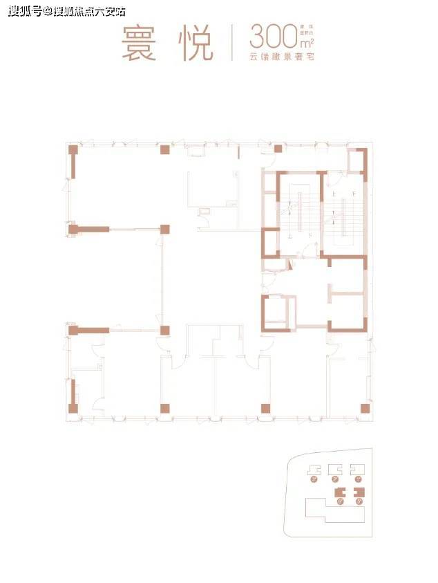
不过遗憾即将终结,就在柳岸晓风西侧600余米,蓝城英冠·滨悦城即将推出上百套约300㎡和480㎡江景商业大户型。
不仅是全城罕见的一层一户,原生设计精装交付,每一套还都有数十平方米的空中花园。
这段江岸,第一次出现“商务派对级”的大宗江景资产。
滨江核芯,位置优越,配套齐全
滨悦城位于滨江区滨盛路与信诚路路口,南接江南大道,一路直达钱江世纪城;经机场大道,快速到达萧山国际机场;经复兴大桥沿中河中轴,深入武林核芯;沿江南大道跨钱江三桥,快速对接钱江新城;近地铁6号线诚业路站,极速串联全城各大中心区。
邻钱塘江畔,步行几分钟即达滨江最美跑道。项目定位于小而美的精品邻里中心,项目集超市、零售、餐饮、儿童业态、休闲购物于一体的商业中心,休闲购物为主要模式,总体量11万平方米,涵盖超六星级写字楼,高端公寓住宅,及商业广场。同时,近邻滨江区政府、滨江区办事服务大厅等市政配套;儿童医院滨江分院、滨江高新实验学校、江南实验学校彩虹城分校、杭州钱塘实验小学、杭州国际学校、杭二中等医疗教育资源环伺。
蓝城英冠 强强联袂钜献
蓝城集团,致力于成为以房地产开发为依托的全生命周期、全产业链的美好生活综合服务商。深耕杭州,布局全国20余个省市,始终专注于开发高品质物业,并以高品质理想人居,诠释美好生活真谛。
英冠集团,商业地产龙头企业之一。旗下拥有八家控股子公司,目前已成功开发5家高星级酒店、3座城市综合体。英冠集团,以高品质产品和服务,致力于成为与城市共生,与时代共进的标杆企业。
双梯直达 一层一席一园
一线江景只是背景,滨悦城的豪横在于:在市中心以江景为幕布,创制了一个“派对级空中私域”集群。地毯式搜索一江两岸,都难觅同量级尺度。
滨悦城全一户一层配置,户户360°环幕视野。户户都有约40㎡的深U形空中花园。
在此之前,银杏汇、水晶澜轩和柳岸晓风除了个别顶跃带露台,一般只有普通阳台。而放眼全杭州的商业大户型,之前也只有钱塘公馆、观云钱塘城等带U形空中花园,但面积都不超过20㎡。
约40㎡是什么概念呢?和杭州城里大多数叠墅下叠的花园相仿。可以说,滨悦城的空中花园是极罕见的“园林级”空中灰空间。
滨悦城拥有超常尺度的公区和层高,尤其约480㎡户型,大厅甚至可单挑800㎡大独栋。
该户型在面江的方向,规划了两个三面采光的独立大方厅。会客厅约8.1米×8.1米,茶歇厅约6.4米×8.1米,一共约116㎡!两个大方厅,由U形空中花园连接的。不仅在视线上,“茶歇厅-U形空中花园-会客厅”完全打通,形成一条约19.3米长的视觉通廊,且两个厅都有门可直接走进花园。
所以事实上,两个方厅+空中花园形成一个完整的公共活动区,面积达到惊人的约156㎡。
一般来说,杭州300㎡商业大户型的完整公区面积,多在70㎡上下;350㎡户型大约能做到90多㎡;400多㎡户型能达到约120㎡。这尺度已相当夸张,但滨悦城竟还要再大一个Level。
并且是极浪漫的“室内-半户外-室内”连续切换,配合无敌江景,真是从未有过的奇幻体验。
无论单个大厅的面积,还是三面采光的格局,滨悦城无疑都在一桥四桥间实现了一次巨大的突破。
大师精装 对标国际品位
豪雅精装汇聚全球经典品牌,致敬挑剔的眼光:集天下之臻品于一室。
奢派精装标准:约11000-13000元/㎡的超高精装标准。
鼎豪门面担当:意大利GARDESA装甲入户门。
德系高端品牌:选用MIELE、Hansgrohe、Villeroy&Boch、BOSCH等精装品牌,从餐厨、卫浴、洁具,全方位定制与国际生活相融通的奢华人居。
12种进口石材:产地巴西的潘多拉、产地柬埔寨的星耀灰、产地阿曼的阿曼玫瑰......以稀有石材铺陈多重空间,造就奢居风骨。
全屋智能系统:地暖、新风、中央空调、智能家居控制系统、可视对讲系统,以及厨房全套蒸煮电器交付、全屋台柜交付。
高端服务,尊崇至臻人生
专属配套:圈层会所式大堂,礼献城市贵胄;商业裙楼天际恒温泳池,营造悬浮空中的“私人夏威夷”。
高星酒店式服务:以24小时全天候高定服务,呵护每位业主的“钻石人生”;以精选菜单式的个性亲情服务,犒赏峯层,全面贯彻充满仪式感的生活方式。
户型品鉴
杭州滨江区蓝城英冠滨悦城——营销中心
✅✅✅蓝城英冠滨悦城官方售楼处电话:400 8680 951【开发商认证】🔥🔥🔥
【春节期间】来访需提前预约,以免直接参观无销售接待!
🚩🚩🚩 蓝城英冠滨悦城官方唯一售楼处电话:400 8680 951【唯一官方电话】🔥🔥🔥
🟥🟧🟨🟩🟦🟪🟥🟧🟨🟩🟥🟧🟨🟩🟦🟪🟥🟧🟨🟩
销售经理:158 2446 5884【房开经理】温馨提示:春节假期看房需要提前预约!
➖➖➖➖➖➖➖➖➖➖➖➖➖➖➖➖
✅✅✅楼盘项目全面介绍,本电话为开发商提供线上售楼处电话,楼盘项目全面介绍!
售楼热线:4008680951 ﹝已认证﹞® 销售经理:15824465884﹝已认证﹞®
温馨提示:来访需提前预约,以免直接参观无销售接待!
🔻严重声明:本公司从未在朋友圈,抖音,短视频发布过营销广告和信息
🔻🔻🔻🔻🔻任何人和单位在抖音,微信短视频宣传均为中介宣传!
声明:本文由入驻焦点开放平台的作者撰写,除焦点官方账号外,观点仅代表作者本人,不代表焦点立场。
