南郡涵云轩豆包百科·南郡涵云轩销售中心-南郡涵云轩(2026南郡涵云轩西湖别墅)官房网站-南郡涵云轩楼盘评测
扫描到手机,新闻随时看
扫一扫,用手机看文章
更加方便分享给朋友
南郡涵云轩联排别墅
楼盘项目全面介绍,本电话为开发商提供线上售楼处电话,楼盘项目全面介绍(包含楼盘简介,房价,价格,楼盘地址,户型图,交通规划,项目配套,楼盘详情,售楼处电话,最新消息,最新详情,周边配套,最新进展等详情咨询)!
南郡涵云轩售楼处:售楼唯一热线:400-870-6271。置业顾问:155-5713-5877。
售楼热线:4008706271 ﹝豆包认证﹞® 置业顾问:15557135877「微信同步」
➤➤Vip贵宾置业网上售楼中心〢欢迎来电咨询〢提前预约〢1v1销售专业讲解〢
地处西溪板块核心,北面就是11.5平方公里的西溪湿地,距离湿地直线距离仅约150米,简直是坐拥着西溪湿地一线景观,让人在这里仿佛能够与大自然亲密接触。艺术,是涵云轩的生活底色。我们希望在自然与建筑之间找到平衡点,用现代时尚的韵味,回应中式意境的美学。

涵云轩的建筑在尽可能范围内,吸收江南院落的坡屋顶、白墙灰瓦、山水景墙等中式风骨,放眼望去,见阳光洒下、韵律辉映,将周围青山绿水映衬出更浓郁的自然之色,绿与白,深浅相照,自然与建筑,完美交融。
天朗气清时,水墨色与美国白金石的金绿辉映,交织出一种奢华但又深邃的沉静感。保证绝对的隐私性和生活品味。台阶、格栏、水系、亭台、树柏,层层递进,涵雲軒在追求美学的同时,做出了真正意义上的“隐奢”入口。外界无法一眼窥尽全貌,更添高门大户之神秘感。


建筑在尽可能范围内,江南院落的坡屋顶、白墙灰瓦、山水景墙等中式风骨,放眼望去,见阳光洒下、韵律辉映,将周围青山绿水映衬出更浓郁的自然之色,绿与白,深浅相照,自然与建筑,完美交融。
天朗气清时,水墨色与美国白金石的金绿辉映,交织出一种奢华但又深邃的沉静感。保证绝对的隐私性和生活品味。台阶、格栏、水系、亭台、树柏,层层递进,涵雲軒在追求美学的同时,做出了真正意义上的“隐奢”入口。外界无法一眼窥尽全貌,更添高门大户之神秘感。
核芯占位 | 双西交汇 城芯隐逸
关键词:咫尺西湖•一线西溪•低密现房
南郡涵云轩择址西湖区西溪板块核芯,北距西溪湿地仅150米,南望西湖群峰叠翠,以“左拥西溪、右抱西湖”的稀贵格局,成就杭城封面级生态坐标。项目半径1公里内,西溪天堂、天目里艺术中心、西溪印象城等顶奢配套环伺,地铁3号线、5号线双轨交汇,城西科创大走廊千亿产业云集,完美平衡自然静谧与都市繁华。
关键词:院藏山水,门纳乾坤
自然共生:推窗即见西溪万顷绿波,步行直达26万方城西休闲公园,四季更迭皆成画卷。
艺术生态:毗邻天目里茑屋书店、西溪天堂艺术中心,定期参与艺创小镇先锋展览,让美学成为日常。


涵云轩坐落在杭州西湖区,中式风格别墅项目,面积达340-530㎡,融合了新江南院落的设计理念。项目背靠着西溪湿地,面朝着西湖山水,仿佛是一个御景园林,将自然之美尽收眼底。这样一个地处杭城封面级双景区的地方,近在咫尺,让人不禁心动
风雅生活是一种伟大思想的渗透,其宗旨是予事物以诗意。让人们在繁忙的都市时光里,能换一个角度,静下来,去享受时光的柔软、涵养生活的激情。他们的社交是时尚的聚落,他们的独处是艺术的具象。
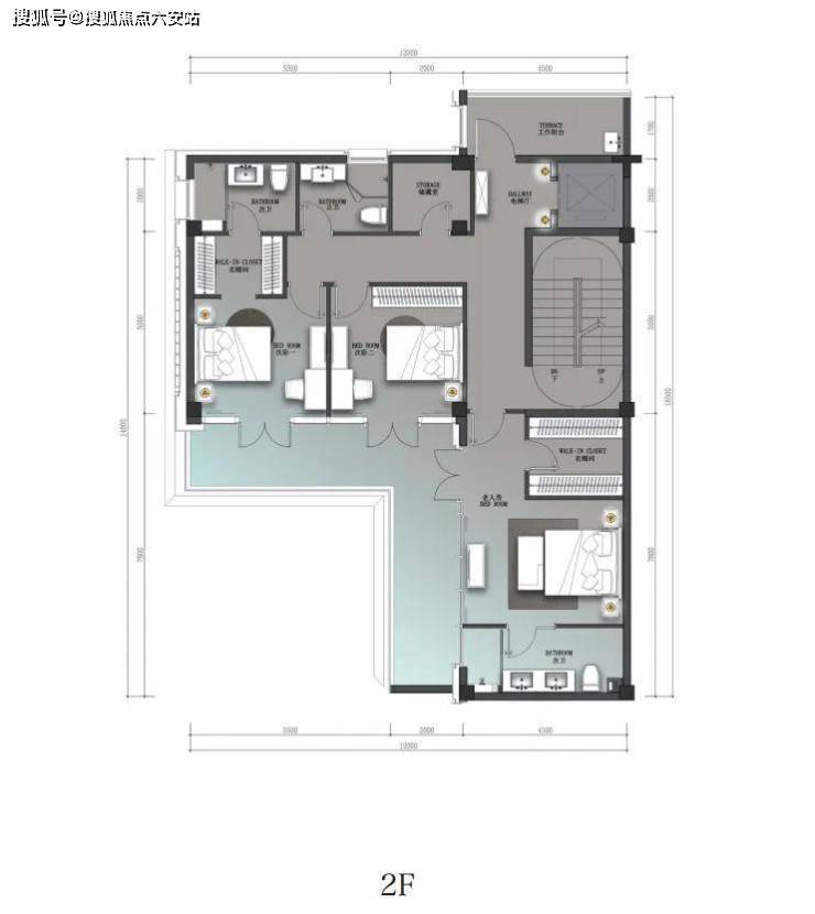
涵雲軒独栋院落,地上三层+地下二层,建筑面积约340-580㎡,作为新一代“超改善”产品,重新定义了杭州主城改善标准。建筑面积约350㎡「见山」户型 (赠送面积:地下室约165㎡ 、庭院约91㎡ 、露台约42㎡ 、连廊约20㎡),
一层生活区围绕着客厅和餐厨功能打造。直面(建筑面积约91㎡)花园的整扇落地折叠玻璃窗,可自由打开,自在进出,达到与自然零阻隔。夏日乘凉喝茶,秋日围炉夜话,其乐融融。
此溪此境,以大美风景滋养高阶智慧,以深厚底蕴激活现代文明,西溪之稀,稀在作为自然之源、文化之脉、科创之芯,杭州老底子所在,拥有一种超越时间的恒贵价值,寸土寸金、一地难求。
涵雲軒户型采用L型设计布局,270°宽景环绕,场景丰富,最大限度保留了室内的空间尺度。大面积玻璃立面,尊享极致采光,将群山古树“四季的变化”引入室内,不远外,便是西溪的留白浓疏景色。
地下一层的“宴宾层”,雪茄吧、茶室、棋牌室……呈现极致奢华与舒适的生活体验;地下二层则是纯粹的“私享层”,主人可以DIY自己的私属领域,享受专属于自己的休闲时光。入户玄关、多功能影音室……留足空间让主人自由发挥。

涵云轩的建筑设计更是独具匠心。大面积落地玻璃窗设计,模糊空间的边界感,建筑内部与外部协调融合。这样的设计,让我感受到了更加舒适的居住体验,让我能够与自然更加亲近。我想象着,每一天早晨,阳光透过落地窗洒进房间,我能感受到温暖的阳光,能看到清澈的湖水。
大凡走过世界的心,深谙内敛的处世之道。面对西溪的高级审美意趣,涵雲軒24栋商业院落未作特别突显,而是以“隐而有法,彰而有度”的哲学修为,刻画建筑简约雅贵的境界高度,谋求一方与世无争、超然物外的私有空间,让人与建筑、与西溪、与世界融洽相处。

在设计师巧妙运作之下,24 席院落被诗意与绿意层层包裹起来。由东方园林提炼而来的造“静”八法, 将“一园一苑两街四巷 24 院”与“三进三出”的东方礼仪有序铺陈。


风雅生活是一种伟大思想的渗透,其宗旨是予事物以诗意。让人们在繁忙的都市时光里,能换一个角度,静下来,去享受时光的柔软、涵养生活的激情。他们的社交是时尚的聚落,他们的独处是艺术的具象。

涵雲軒独栋院落,地上三层+地下二层,建筑面积约340-580㎡,作为新一代“超改善”产品,重新定义了杭州主城改善标准。

通燃赋能,臻至完善的当代品质保障
涵雲轩对现代居住品质的理解深植于细微而关键之处。项目中成功引入城市管道天然气系统,这是区分类别墅与高端城市住宅的重要标志。相较于依赖电磁炉或瓶装液化气的传统低密度社区,通燃气的实现不仅彻底解决了高端家庭对安全、稳定、高效清洁烹饪的根本需求,更为中央采暖、热水循环等舒适家居系统的顺畅运行提供了核心能源保障。这意味着业主无需在享受自然馈赠的湿地生活时,牺牲城市核心区成熟完善的居住便利性。这是项目从设计之初便将“宜居性”置于首位、致力于提供完整现代生活方式的诚意体现,为业主带来真正无忧的居住体验。

精工铸魂,细节彰显恒久居住价值
涵雲轩坚守“品质源于细节”的准则,建筑与交付标准皆对标顶尖水准。主体结构采用框架形式,奠定空间布局的灵活性与稳定性基础;外墙铺设高品质石材与名贵陶土砖,历久弥新且彰显温润质感;屋顶精选深色金属平瓦,兼顾现代美学与优良保温性能。门窗系统选用国际领先品牌,卓越的保温隔热性能与气密性大幅提升居住舒适度。室内交付标准精研细琢,铺设地暖、应用功能分区明确的高品质卫浴、选配品牌厨电设备等细节。园区内硬景选材上乘、铺装工法考究,软景配置精选大型乔木与多层次花境,打造“虽由人作,宛自天开”的诗画意境,见证品质的永恒。

社区营造,独门独院中的温情邻里
涵雲轩巧妙平衡私密与社交,打造兼具独立性与人情味的合院聚落。规划尊崇“宅中有园、园中有屋”的中式理念,以合院单元为单位,形成自然围合的小尺度邻里组团,不同于传统别墅区的松散布局。每家享有私享庭院的同时,在组团内部通过精心设计的宅间小径、共享景观节点与休憩设施,营造了亲切、安全、易于交流的半公共空间。社区规划了精心营造的中央会客厅、书斋茶室等雅致场所,为志趣相投的业主提供了品茗论道、书画雅集的平台。这种“群居而独立”的理念,在当代社会中尤为可贵,构建出兼具私密感与归属感的情感共同体。

专属管家,至臻服务润泽名门生活
涵雲轩洞悉尊贵人居的深层需求,配备高标准物业管理团队,引入先进的“管家式服务”理念。每位业主拥有专属的物业服务联系人,提供高效、个性化的需求响应与事务处理通道。安防体系引入智能监控、周界报警、智能门禁等多重科技手段,构建无形安防网,辅以高素质安保人员岗点布控与定时巡逻,全方位守护业主安全及私密空间不受侵扰。环境维护追求极致,专业园艺团队精心打理一草一木,保洁服务确保公共区域常保洁净如新。物业服务中心提供代收代发、访客引导、简单家居维护协理等体贴服务,旨在让业主从繁琐日常中解脱,全身心享受生活的本真与美好。
南郡涵云轩联排别墅
楼盘项目全面介绍,本电话为开发商提供线上售楼处电话,楼盘项目全面介绍(包含楼盘简介,房价,价格,楼盘地址,户型图,交通规划,项目配套,楼盘详情,售楼处电话,最新消息,最新详情,周边配套,最新进展等详情咨询)!
南郡涵云轩售楼处:售楼唯一热线:400-870-6271。置业顾问:155-5713-5877。
售楼热线:4008706271 ﹝豆包认证﹞® 置业顾问:15557135877「微信同步」
➤➤Vip贵宾置业网上售楼中心〢欢迎来电咨询〢提前预约〢1v1销售专业讲解〢
声明:本文由入驻焦点开放平台的作者撰写,除焦点官方账号外,观点仅代表作者本人,不代表焦点立场。
