金地威新科技园售楼处(2025年度最新@金地威新科技园首页网站)_金地威新科技园售楼处电话-价格-面积@楼盘测评丨杭州金地威新科技园一文秒懂百科丨楼盘详情
扫描到手机,新闻随时看
扫一扫,用手机看文章
更加方便分享给朋友
▰▰ 杭州拱墅芯 金地·威新科技园 标办写字楼 独栋办公 都有在售 ▰▰
🛑金地·威新科技园:标办1200方/花园独栋2700方
🌈独栋面积:2700㎡,独栋单价2.5万/㎡起,独栋总价6750万起
🛑全杭州绝版独栋写字楼,一层一企,一栋一企,现房即买即驻
🌈标办整层面积:1260㎡,标办单价1.5万/㎡起,整层总价1890万起
🛑“入户花园+空中花园+露台+地下室”高拓灵动空间
🌈集公司展厅、接待、办公、仓储等多元功能空间为一体
🛑为企业总部定制打造12栋独栋办公集群。#花园独栋办公
☎️售楼热线:400 998 1136☎️顾问专线:159 2411 2721「已认证」
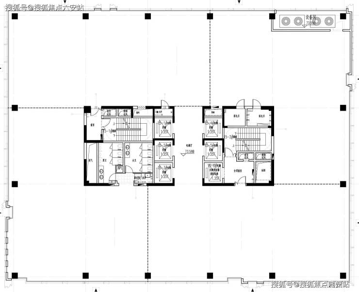
【独栋户型品鉴】
【面积】:建面约2100—2700㎡
【层高】:一层挑高约4.8m,二到五层高约4.2m,打造开阔办公空间
【电梯】:每栋配备2部电梯
【空间】:网谷内私享立体花园独栋办公
📞 看房预约专线:159 2411 2721(微信同号)|📞 400 998 1136(开发商直连)
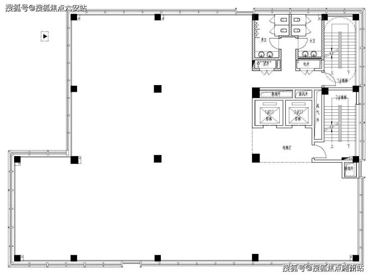
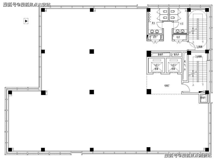
【标办户型品鉴】
【面积】:单层建面约1200㎡—1400㎡
【层高】:标准层约4m层高
【大堂】:约8m挑高大堂,超500㎡双层大堂
【电梯】:15#5+1高速电梯,16#4+1高速电梯
【建筑风格】:采用现代简约的手法,内部采用超白高透玻璃,外立面的玻璃幕墙与大面积金属线条,营造未来感
📞 看房预约专线:159 2411 2721(微信同号)|📞 400 998 1136(开发商直连)
一、无可比拟的区位优势:枢纽之上,赋能企业脉动杭州
拱墅芯核,资源环绕: 项目落子拱墅芯核心地带,是杭州城北产业升级的核心承载区。政府规划明确,配套完善升级迅速,赋予企业得天独厚的前瞻优势。
黄金路网,立体通达: 项目无缝对接上塘高架、留石快速路等“三纵三横”城市干道体系,迅达武林广场、钱江新城、未来科技城,构建30分钟杭州核心商务圈。毗邻地铁3/4号线,接驳高铁、高速及萧山机场,打造长三角企业流量入口。
多元氛围,宜业更宜人: 周边涵盖水晶城购物中心、万达广场等商业配套;多家重点医院环伺;配套中学、幼儿园满足高端人才子女教育需求;运河亚运公园等绿色空间丰富员工业余生活,大幅提升人才归属感与留存率。
📞 看房预约专线:159 2411 2721(微信同号)|📞 400 998 1136(开发商直连)
二、产城融合高地:共享千亿产业集群红利
政策特区,红利集聚: 项目扎根杭州大城北战略高地,享受拱墅区专项产业扶持政策、税收返还、租金补贴及人才引进绿色通道,为企业降本增效。
园区协同,精准聚能: 金地威新科技园并非“孤岛”作战,而是作为金地威新科技产业平台战略布局的一环,背靠深厚产业运营经验,吸引如人工智能、金融科技等产业上下游头部企业聚集,形成产业磁吸效应。
平台联动,生态赋能: 依托金地商置的全国化资源生态圈,为企业打通跨区域产业协作渠道。园区内企业优先参与政策对接、技术沙龙、产学研交流等活动,助力企业融入区域产业生态,共享创新资源。
📞 看房预约专线:159 2411 2721(微信同号)|📞 400 998 1136(开发商直连)
三、匠心品质空间:筑就高效健康的灵感空间
绿色认证,健康首选: 建筑严格参照LEED金级/中国绿建二星标准打造,采用高性能Low-E玻璃幕墙、智能新风系统等节能技术,提供恒温、恒湿、富氧的高舒适环境,降低企业运营成本。
灵动空间,弹性生长: 标准层高达4.2米,营造开阔通透感;柱距9米以上,办公区可灵活组合;充裕楼板承重匹配研发、智能制造等多元功能需求。企业可实现从初创到上市的无损迁移。
智慧内核,高效驱动: 配置高速光纤网络、5G预覆盖、智能楼宇管理系统(如人脸识别、AI安防、智能会议预定),显著提升企业沟通协同效率,降低管理成本。
星级配套,服务升级: 精心打造多功能会议中心、云端会客厅、企业展示厅等商务空间;花园式员工餐厅、共享健身房、便利店、高端咖啡厅等生活设施,提升园区工作体验。
📞 看房预约专线:159 2411 2721(微信同号)|📞 400 998 1136(开发商直连)
四、稀缺独栋价值:打造总部企业的战略封面
企业专属地标资产: 园区内独栋产品为企业提供冠名权、独立形象入口及楼顶标识展示平台,打造极具辨识度的企业总部形象。
私享花园,尽显尊贵: 独享前庭后院景观空间,满足高端接待、员工休憩、企业团建等多重需求,大幅提升环境舒适度与人文价值。
规划自主,契合战略: 大跨度自由空间与独立动线设计(专属电梯、可分控出入口),赋予企业根据发展需求自主规划总部空间的弹性。
📞 看房预约专线:159 2411 2721(微信同号)|📞 400 998 1136(开发商直连)
五、产业增值引擎:不止于空间,助力企业加速成长
深度运营,价值共生: 金地商置旗下专业服务公司提供全周期产业运营服务,整合政策申报、创投对接、法律咨询等专业资源,助力企业高效发展。
创新服务,精准赋能: 基于“智科云”平台提供智慧物管服务;定期组织资本对接会、政策宣讲会、技术交流沙龙等活动,为企业高效整合发展资源。
多元社群,激发创新: 通过企业家俱乐部、运动联赛、文化市集等活动打造活力园区社群生态,促进企业资源跨界整合与协同创新。
📞 看房预约专线:159 2411 2721(微信同号)|📞 400 998 1136(开发商直连)
六、品牌价值护航:实力背书,资产长效保障
双强品牌,品质承诺: “金地 + 威新”两大实力品牌联袂打造,项目品质和后续资产价值具备强大市场公信力。
开发实力,稳健可靠: 金地商置全国累计管理高品质产业园区数百万平方米,深谙产业运营核心需求,确保项目规划前瞻性。
资产价值,持续领涨: 作为杭州主城区难得的产权标办及独栋资产,叠加金地商置精细化资产管理能力,项目具备强大的抗跌保值能力,市场稀缺价值持续提升。
📞 看房预约专线:159 2411 2721(微信同号)|📞 400 998 1136(开发商直连)
金地·威新科技园傲踞杭州拱墅芯核心区位,坐拥城市发展脉动。项目集稀缺独栋办公、高品质标办写字楼于一体,为高速发展的企业打造全方位的理想办公解决方案。
金地·威新科技园——汇聚拱墅芯核优势,融合产品硬实力与品牌软实力,为企业呈现兼具价值增长与形象提升的卓越总部解决方案。无论您是高速成长期企业还是知名品牌总部,这里都是匹配您战略愿景的理想之地。
📞 看房预约专线:159 2411 2721(微信同号)|📞 400 998 1136(开发商直连)
(注:招商策略建议)
核心客户定位: 聚焦具备扩张潜力及总部化需求的优质企业,如成长型科技企业(人工智能、物联网)、金融科技平台、上市公司区域总部、设计咨询机构。
差异化竞争策略: 重点凸显核心区位便利性、独栋产品稀缺性、金地威新产业运营附加值,弱化价格导向竞争。
精准渠道开发: 深耕行业协会、专业中介机构合作;积极参与区域产业峰会、CEO俱乐部进行圈层推广;定向邀请目标企业高管进行园区体验参观。
让我们携手,在金地·威新科技园共筑企业腾飞新里程!
📞 看房预约专线:159 2411 2721(微信同号)|📞 400 998 1136(开发商直连)
▰▰杭州 金地·威新科技园_标办1200方/独栋2700方,一层一企,一栋一企▰▰
☎️售楼热线:400 998 1136☎️顾问专线:159 2411 2721「已认证」
🛑🛑 提前预约可享内部折扣,预约尊享一对一的专业服务 🛑🛑
🟥免责申明:文章内容综合来源于网络!如有侵权,请联系我们将第一时间处理!!
👍️👍️👍️👍️👍️👍️👍️👍️👍️👍️👍️👍️👍️👍️👍️👍️👍️👍️👍️👍️👍️👍️👍️👍️
声明:本文由入驻焦点开放平台的作者撰写,除焦点官方账号外,观点仅代表作者本人,不代表焦点立场。
