钱塘金沙湖宜合金沙网上售楼处-新房开盘-房价-户型图(优缺点解析)楼盘详情/房价/户型/楼市
扫描到手机,新闻随时看
扫一扫,用手机看文章
更加方便分享给朋友
望钱塘印中心
☎VIPline:400 808 7328【已认证】☎
☎置业热线:130 6784 6867(同微信)☎
➤售楼处〢欢迎来电咨询〢提前预约可享内部优惠〢➤
🔥写字楼租售同步金沙湖旁、双地铁口、户型方正、超高得房率🔥
🔥户内带上下水➕排污管、层高4.2米、毗邻市民中心🔥
望钱塘印中心是杭州钱塘区金沙湖CBD核心板块的地标性商务综合体,集甲级办公、五星级酒店、BLOCK商业街区于一体,具备以下核心优势

项目位于杭州市钱塘区·金沙湖CBD,是由融创&坤和&开元联合开发的地标复合体。总建筑面积约8万㎡,于一线金沙湖畔,规划甲级写字楼、五星级酒店、BLOCK群落式商业街区等业态。
钱塘区是杭州东部产业重镇,金沙湖CBD具备强大的经济引擎、集聚效应,继钱江新城、钱江世纪城之后,将成为大城东高端商务办公第三极。位于这个CBD的地标写字楼,由大牌开发商强强联合,坐拥南向一线金沙湖景观,产品力超卓,一定是优质的核心资产。
☎VIPline:400 808 7328【已认证】☎☎置业热线:130 6784 6867(同微信)☎

随着钱塘区的行政区划调整,钱塘科学城的规划出炉,金沙湖CBD已成杭州东部发展重心之一,具备强大的经济引擎、集聚效应,继钱江新城、钱江世纪城之后,金沙湖CBD将成为大城东高端商务办公第三极。

区位战略与交通
核心地段:位于金沙湖CBD企业总部集群核心,毗邻地铁1号线金沙湖站,步行可达,4站直达杭州东站枢纽,8站贯通萧山国际机场。
立体路网:德胜快速路、钱塘快速路双轴环绕,覆盖钱江新城、萧山科技城等核心商务区,构建高效通勤网络。
建筑设计与功能
超高层地标:由三栋150-180米超高层塔楼组成,总建筑面积约12万平方米,外立面采用双银Low-E中空玻璃幕墙与垂直绿化系统
☎VIPline:400 808 7328【已认证】☎☎置业热线:130 6784 6867(同微信)☎
云端观景平台:顶层规划360°观景平台,可俯瞰金沙湖全景,打造城市天际线新地标。
灵活办公空间:标准层面积约1600平方米,层高4.2米,荷载4.0KN/平方米,适配生物医药实验室、智能研发中心等特殊场景需求。
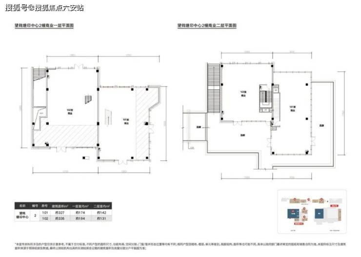
望钱塘印中心建筑面积约300-1800㎡甲级写字楼、建筑面积约300㎡BLOCK街区商铺在售中。
☎VIPline:400 808 7328【已认证】☎☎置业热线:130 6784 6867(同微信)☎
甲级写字楼追溯未来审美潮流,以国际先进办公趋势为参考,以8大维度革新,创变可持续发展办公方式。
8+1+2部日立电梯垂直高效通行,将繁杂商务压缩在最短时间+最短动线中完成。LOW-E全幕墙体系,搭配挑高大堂,四面八方的自然光倾泻如瀑。鎏金与浅灰的色泽,曲线与直线的交融,将艺术和自然尽情揽入怀抱,一扫传统写字楼生硬刻板的形象。
☎VIPline:400 808 7328【已认证】☎☎置业热线:130 6784 6867(同微信)☎

总建筑面积约5000㎡群落式商业空间,通过沿街商业、半开放内街规划,与多元业态畅达贯通,与城市无缝连接,定义丰富缤纷的商业场景,解决各类人群综合性消费需求。
左右滑动查看更多
THREE
关于配套
商业配套:金沙天街、吾角天街、金沙印象城、下沙银泰百货
交通配套:地铁1号线金沙湖站、钱塘快速路、德胜快速路
医疗配套:邵逸夫医院(下沙院区)、浙江省中医院(钱塘院区)
休闲配套:金沙湖公园
智慧化运营:管理系统,实现能耗监测、会议室预约、访客通行等全流程无感化操作
协同创新生态:与区内14家上市企业、32家高新技术企业形成产业协同,2024年钱塘区数字经济核心产业增加值同比增长区域产业活力强劲。
☎VIPline:400 808 7328【已认证】☎☎置业热线:130 6784 6867(同微信)☎
商务配套与人文体验
复合商业生态:楼内规划24小时无人便利店、共享路演中心及健康主题餐厅,形成“办公生活圈”。
文化场景赋能:毗邻金沙湖大剧院、钱塘区图书馆,常态化举办国际生物医药峰会、数字艺术展览等跨界活动,提升企业品牌影响力。
产城融合典范:通过双轨枢纽区位、双核产业驱动、智慧化运营体系三重优势,重塑钱塘区产城融合新范式,为杭州建设“全球数字经济创新高地”注入新动能。
☎VIPline:400 808 7328【已认证】☎☎置业热线:130 6784 6867(同微信)☎
声明:本文由入驻焦点开放平台的作者撰写,除焦点官方账号外,观点仅代表作者本人,不代表焦点立场。
