天目山晓城型配套 →杭州房产天下→天目山晓城-首页最新楼盘详情-→天目山晓城@楼盘最新动态→丨天目山晓城最新价格
扫描到手机,新闻随时看
扫一扫,用手机看文章
更加方便分享给朋友
【杭州临安滨江&天目山晓城】天目山圣境
滨江亲旅小镇,稀缺现房唐风合院,在售建面114-158方中式合院,40年产权,现在购买还送车位,折后参考单价21000元/㎡,更有抄底价特价房2套,总价仅需210万,更多优惠信息欢迎来电售楼处。
中式合院有点田
沉浸式体验天目山慢生活
📲【售楼热线】:400 895 8893📲【案场销售】:132 1616 8490【🉑直接添加置业顾问】
⑉⑉⑉ıllı⑉🔻售楼处(周一至周日 9:00--18:00)一对一咨询🔻看房需要提前电话预约,避免可能案场无人接待!提前预约可享内部优惠〢匠心钜制-恭迎您的品鉴⑉ıllı⑉⑉
滨江·天目山晓城
花园面积:1:0.8
水电:民电,通燃气
主推114-140方3-4房
毛胚交付:首开会有家装包
地上二层:没有地下室,地面每套都会有车位
📲【售楼热线】:400 895 8893📲【案场销售】:132 1616 8490【🉑直接添加置业顾问】
相较一般低密项目,现房销售是天目山晓城的显著优势,位于小镇中心位置的366套中式合院,品质均已实景呈现。
国潮兴起正当时,中式合院融合传统文化与现代建筑艺术,堪称国潮的一种极致。天目山晓城的中式合院,屋顶选取与湘湖里一脉相承的J型瓦,落地窗采用双层中空玻璃,白墙飞檐,窗明几净,以唐风致敬经典。
在房源上,这批中式合院包含90-163㎡户型,4户为一个基本单元,建筑形制包含1-2层,其中一层的层高为3.6米,二层为3.2米。
在这里,滨江打造了 366席唐风合院,约0.3超低容积率 , 每户都享有超大的花园庭院,和可以耕云种月的四季牧歌良田。 院子里绿荫浓郁,风沿着婆娑树影流转,踱步院中,丝丝凉意,于心间绽放。 取一把椅子,泡一壶清茶,于树下或檐下落座, 记忆里的夏天,就回来了。
合院装修展示间实景图(仅供参考,非交付标准)
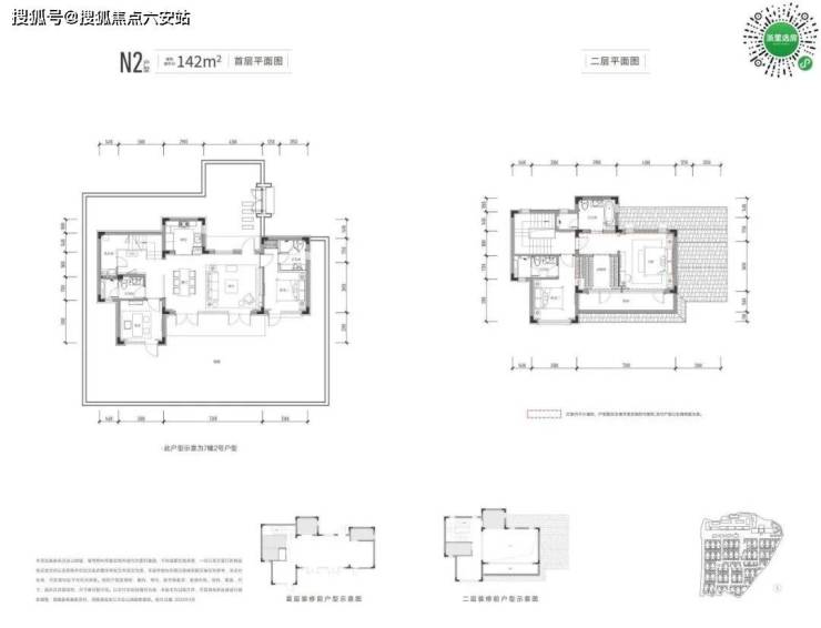
从户型分布来看,约114㎡三房三卫和约142㎡四房四卫户型,是项目的主力。其中约142㎡户型,南向做到约15.2米的超大面宽;更赞的是房间,三大套房+一处可变空间,在享受空间尺度的同时,更贴合个性化需求。
楼市中近乎绝迹的中式小合院,也在天目山晓城重现。约91㎡户型到了三房二卫格局,三开间朝南,相较之前的两房小合院实现了迭代升级。该户型总价控制在300万级,想要入手中式合院,这次机会不容错过。
📲【售楼热线】:400 895 8893📲【案场销售】:132 1616 8490【🉑直接添加置业顾问】
📲【售楼热线】:400 895 8893📲【案场销售】:132 1616 8490【🉑直接添加置业顾问】
天目山晓城约142㎡户型图
户型设计亮眼的同时,中式合院的精髓还在于自带的花园。
天目山晓城合院区容积率约0.3,每套合院花园面积基本为建筑面积的1:0.8左右。约91㎡的户型,可能家门口就有70㎡左右的花园(视具体房源而定),天然契合“结庐在人境,而无车马喧”的田园气质。
合院的园林景观,由滨江的金牌搭档贝尔高林担纲设计。通过邻里花园、宅间花园层层串联,让水景、园景与建筑相互呼应,既展现了中式园林的精深细腻,又暗合了天目山的山水禅意。
📲【售楼热线】:400 895 8893📲【案场销售】:132 1616 8490【🉑直接添加置业顾问】
合院装修展示间花园实景图(仅供参考,非交付标准)
为了让每一位业主更进一步体验天目山脚下的陶渊明式生活,小镇还贴心地为业主准备了私家田地——四季牧歌。
四季牧歌位于小镇南区,紧邻合院。将来,这里可以按业主的喜好种植瓜果蔬菜等各类作物,沉浸式体验“采菊东篱下,悠然见南山”的隐逸情致。
已现房呈现的366套中式合院,每一套,都是让人爱不释手的孤品。淡蓝的和瓦,舒展的简唐风,配合仅1-2层的建筑形制,绝迹多年的“90㎡平层合院”,更有首创的100多㎡四开间二层合院,合院区容积率仅约0.3,这是九溪玫瑰园、桃花源这类大独栋住区才有的指标,早已绝迹多年。
📲【售楼热线】:400 895 8893📲【案场销售】:132 1616 8490【🉑直接添加置业顾问】
洲际酒店旗下的奢华精品——英迪格酒店,上个月才正式开业,瞬间就刷爆了小红书,无数潮人、博主和游客争相入住。毕竟,世界上没有两家完全相同的英迪格酒店,每家都会融合当地的特色,对酒店进行定制化设计。在住的住户,可按次以6折价格购买英迪格酒店室内/外泳池、健身房、童玩区等配套的使用权益
📲【售楼热线】:400 895 8893📲【案场销售】:132 1616 8490【🉑直接添加置业顾问】
🚩🟥🟧🟨🟩🟦🟪🟥🟧🟨🟩🟥🟧🟨🟩🟦🟪🟥🟧🟨🟩🚩
📲【售楼热线】:400 895 8893📲【案场销售】:132 1616 8490【🉑直接添加置业顾问】
约142㎡户型为例,可设计为4房4卫,一楼奢适的餐客一体大方厅,可作为一家人的度假生活中心,二楼还拥有两个套房,带孩子和父母周末小住、更带有约110㎡花园,足够你种上一圈花草修竹,摆一个茶几两把躺椅,夏天果树成荫,冬天红梅傲立,生活的烟火气立马就出来了。
🚩🟥🟧🟨🟩🟦🟪🟥🟧🟨🟩🟥🟧🟨🟩🟦🟪🟥🟧🟨🟩🚩
⑉⑉⑉ıllı⑉🔻售楼处(周一至周日 9:00--18:00)一对一咨询🔻看房需要提前电话预约,避免可能案场无人接待!提前预约可享内部优惠〢匠心钜制-恭迎您的品鉴⑉ıllı⑉⑉
📲【售楼热线】:400 895 8893📲【案场销售】:132 1616 8490【🉑直接添加置业顾问】
声明:本文由入驻焦点开放平台的作者撰写,除焦点官方账号外,观点仅代表作者本人,不代表焦点立场。
