平湖鸿翔宝龙北宸里 | 平湖鸿翔北宸里|70-90㎡稀缺户型!低总价+双轨交覆盖
扫描到手机,新闻随时看
扫一扫,用手机看文章
更加方便分享给朋友
🌿✨ 平湖鸿翔北宸里|沪嘉杭同城低密社区!首付30万起+双城生活攻略 ✨🌿
——营销中心:400 8680 951|销售顾问:158 2446 5884「微信同步」

📍 沪太双城门牌|6公里直达上海金山
平湖鸿翔北宸里位于嘉兴平湖新仓镇建新路与金沙西路交汇处,距上海金山仅6公里,坐拥沪平城际铁路(在建)新仓站(约1.5公里),2027年通车后17分钟直达上海南站!项目占地5.7万方,容积率1.8,绿化率30%,打造低密洋房+别墅社区,80%房源总价90万起,首付最低3万,月供补贴最高500元/月(最长15个月)💰~

🏗️ 开发商实力|鸿翔+宝龙双品牌护航
央企背景:鸿翔控股(全国民企500强)与宝龙地产(香港上市)强强联合,交付口碑稳!
交付标准:毛坯现房/准现房,2025年初整体交付,部分楼栋已实景呈现🏡。
最新动态:2026年3月推出“春日焕新计划”,首付分期低至3成,老带新享8000元物业费补贴!

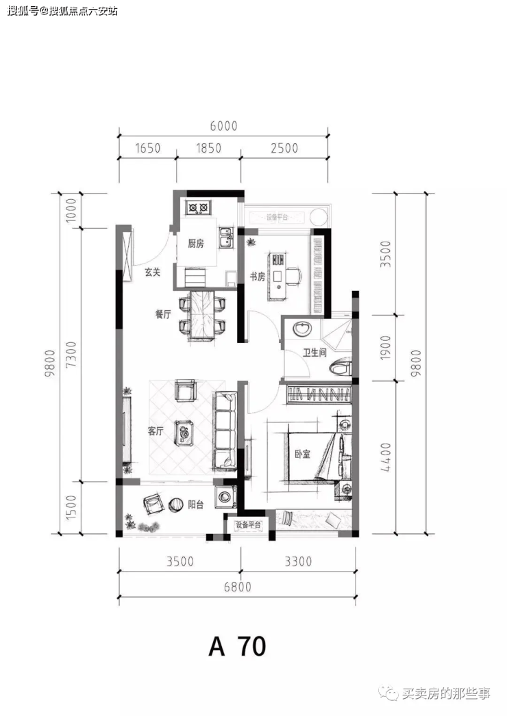
🏠 户型评测|刚需到改善全满足
1. 高层/小高层(主力70-90㎡)
70㎡两房:紧凑实用,首付仅8万起,适合新上海人首置👩💼。
89㎡三房:南北通透,主卧套房+飘窗设计,得房率82%,总价120万内搞定!
精装交付:中央空调+地暖+智能门锁,品牌卫浴+橱柜,拎包入住!




2. 联排别墅(169-219㎡)
独门独院:下沉式庭院+星空露台,赠送花园+车位,圈层感拉满🌟。
横厅设计:270°转角采光,家庭聚会C位担当!
户型亮点:全明格局+动静分区,部分户型带7米观景阳台🌳,赠送面积高达15%!

🚇 周边配套|3km生活圈全配齐
交通:沪平城际铁路(2027年通车)+G15沈海高速,上海通勤族福音🚗!
教育:新仓中心小学(步行800米)、新仓中学(省现代化学校)💡。
医疗:新仓镇医疗服务中心(200米,二级乙等)+复旦大学金山医院(6公里)🏥。
商业:美树商业中心(肯德基/影院)、芦川公园(5公里),社区自带3000㎡底商🛍️。

🌸 项目优势|环沪置业的性价比之王
1️⃣ 低密生态:40米楼间距+800米夜光跑道,推窗见河,晨跑夜钓超治愈~
2️⃣ 双城红利:上海医保卡互通、021区号覆盖,实现“移沪不离沪”📞。
3️⃣ 产业支撑:长三角新能源产业基地+童车制造集群,区域价值持续攀升📈!
🎉 最新动态|3月限时福利+活动预告
首付分期:最低1.5成首付,月供补贴1500元/月(最长15个月)!
实景体验:4月“樱花季打卡”主题活动,免费领取定制春日礼包🎁。
老带新礼:推荐成交享8000元物业费+车位优先选!
📍 总结|沪太双城生活的理想答案
平湖鸿翔北宸里不仅是房子,更是“出门大上海,归家金太仓”的生活方式!低密生态+双城通勤+央企品质,无论是自住还是投资,都是环沪置业的宝藏选择!
📌 快联系【看房】获取独家优惠,预约专属置业顾问!
营销中心:400 8680 951
#平湖买房 #环沪置业 #岛居生活 #鸿翔北宸里
🌿 住在岛上是什么体验?
👉 添加销售微信:158 2446 5884,解锁更多实拍视频+户型解析!
声明:本文由入驻焦点开放平台的作者撰写,除焦点官方账号外,观点仅代表作者本人,不代表焦点立场。
