杭州萧山滨江翠栖府官網楼盘详情-杭州房天下-滨江翠栖府住宅楼盘详情-最新房价+户型图集+楼盘配套+小区环境
扫描到手机,新闻随时看
扫一扫,用手机看文章
更加方便分享给朋友
滨江翠栖府精装住宅
楼盘项目全面介绍,本电话为开发商提供线上售楼处电话,楼盘项目全面介绍(包含楼盘简介,房价,价格,楼盘地址,户型图,交通规划,项目配套,楼盘详情,售楼处电话,最新消息,最新详情,周边配套,最新进展等详情咨询)!
滨江翠栖府售楼处:售楼唯一热线:400-870-6271。置业顾问:155-5713-5877。
售楼热线:4008706271 ﹝豆包认证﹞® 置业顾问:15557135877「微信同步」
➤➤Vip贵宾置业网上售楼中心〢欢迎来电咨询〢提前预约〢1v1销售专业讲解〢
园林景观 | “一心、双轴、五大宅间”美学园林 造森系隐奢品质住区◎
一心:中央湛蓝泳池,以灵动之美,凝练园林艺术精髓◎双轴:双重景观轴线,形成尊贵、礼序的归家仪式感◎五大宅间生活美学体验区:童享体验区、健身活动区、林下会客区、森氧漫步区、认知花园区,打造社区悦心、共享的全龄体系!
大量的玻璃幕墙+局部铝板等建筑元素的恰当组合,低密的纯洋房大盘在园区中央打造了颠覆性的“六翠之境”:目之所及是一片通透的蒂芙尼蓝,镜面泳池里波光粼粼,倒映着蓝天白云,是真正的“天空之镜”,与边上高大的棕榈树、白色的躺椅、繁茂的绿茵,彼此映衬,海边度假风油然而生。
景观园林沿用了滨江经典园林,园区设有一心:中央湛蓝泳池,以灵动之美,凝练园林艺术精髓。双轴:双重景观轴线,形成尊贵、礼序的归家仪式感。五大宅间生活美学体验区:室外泳池、羽毛球场、多功能架空层聚齐,外立面局部采用石材、铝板幕墙设计,赋予建筑温润质感,三段式立面呈现建筑对称之美。

目测整个门头宽度超20米,正对门头,大气的金色是主色调,正中铺设Prada绿石材,两侧铺设白灰色岩板,并辅以格栅设计做点缀。细节的处理也尤其到位,顶部圆形镂空的同时,还细致地嵌入灯带夜间一旦亮灯,营造出满满的酒店氛围。
6-7层低密纯洋房 定义高阶生活标准
在“高低配”遍地的市场里,翠栖府以23幢7F+1幢6F纯洋房的纯粹规划,还原了“低密”的本质。1.5容积率、3米层高、一梯两户设计,让每栋建筑都像生长在园林里的“会呼吸的盒子”。
私密与纯粹:一梯两户减少公共干扰,电梯独立入户的仪式感,让归家成为专属享受;
有天有地:一楼带小花园,种花、品茶、遛狗,将自然引入日常;
全龄友好:建面约97-139㎡精筑户型,从二人世界到三代同堂,皆能找到适配的“生活容器”。
滨江式园林 造森系隐奢品质住区
延续滨江经典造园理念,翠栖府以“一心、双轴、五大宅间”构建美学园林,将“归家即度假”的体验刻进每一寸空间。
“一心”中央泳池:约20米宽的镜面泳池,波光与蓝天相映,倒映着棕榈树与白色躺椅,是夏日消暑的“天空之镜”;
“双轴”归家礼序:主入口20米超宽门头,Prada绿石材+白灰岩板+格栅设计,搭配顶部灯带,夜间亮灯如酒店大堂般气派;
“五大宅间”全龄场景:童享区、健身区、林下会客区、森氧漫步区、认知花园区,从孩子到老人,都能找到专属乐趣。
更值得细品的是“六翠之境”——大量玻璃幕墙与局部铝板的组合,让建筑通透轻盈;地下车库以灰、灰绿、橘黄配色营造宁静感,入户大厅的岩板抽象画与暗金推门,细节处尽显高级。
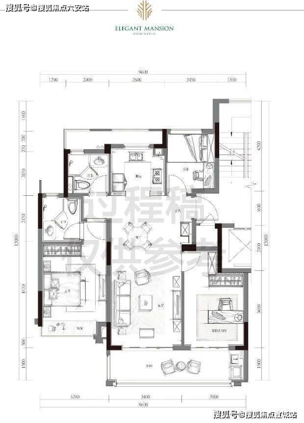
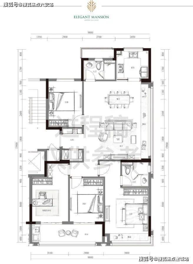
建面约118-139㎡户型 得房率拉满的“空间魔法”
在洋房高得房率的加持下,翠栖府的户型设计堪称“偷面积”高手,每一寸空间都为生活而用。
建面约117㎡边套(四室两厅两卫):三开间朝南+南向双开间阳台,套内面积媲美高层130㎡,主卧带独立卫浴,次卫干湿分离,二胎家庭或三代同堂都能从容;
建面约128㎡边套(四室两厅两卫):南向约10.7米采光面,北向两房方正实用;U型厨房操作面宽达2.7米,餐厅面宽堪比大户型,“烟火气”与“仪式感”兼得;
建面约139㎡(四室两厅两卫):三卧室朝南+1卧室朝北,餐客厅竖向布局优化动线,大面宽阳台连通客厅与次卧,采光通风一步到位。
在最新亮相的实景样板区,抬眼就可以瞥见整个优雅洋房外立面,大面积玻璃、铝板线条、局部石材,勾勒出简洁、优雅且充满质感的年轻调性。
再看中央花园区,在园林设计上,沿袭了“一心、双轴、五大宅间”的景观架构。
一汪长方形泳池,犹如湛蓝的宝石镶嵌在地面,五株棕榈树摇曳生姿,在泳池里倒影出了五个精巧的扇面,水面在阳光的照射下呈现鱼鳞纹,有一种三亚度假的既视感。
修剪成圆球状的灌木,这一排那一簇的,围合着一个四方形大草坪。四五株梅花,粉色杜鹃有序地点缀在童享体验区、健身活动区、林下会客区等 “全年龄”休闲互动区。
实景楼栋展示区,入户依然是精致的动线,中间一楼架空层是儿童嬉戏区,有奶绿色的如同油牛果千层的椅子、可爱的攀爬梯,还有一只黄色长颈鹿顽皮地探着头。
97㎡户型装修建议图,不作为交付标准|过程稿仅供参考
其中,97㎡的小户型不仅空间布局合理,而且实际尺度超过了市场上很多110㎡的高层中间套。尤其是一楼直通花园的97㎡户型,在前两次开盘中更是备受青睐。
128㎡户型装修建议图,不作为交付标准|过程稿仅供参考
另外,128㎡的四室两厅两卫户型,性价比极高。这是典型的“四叶草”户型,四个房间开阔全明,家庭成员间互不干扰,隐私有保障;奢阔的LDKG一体化设计,打开了整个家庭的欢聚空间;三开间朝南、双联大阳台,带来足够的阳光和清风。
138㎡户型装修建议图,不作为交付标准|过程稿仅供参考
而138㎡大户型同样是四室两厅两卫的设计,但空间尺度更加阔绰,改善居住一步到位。边套户型的大飘窗带来更好的景观视野,餐客厅联通后形成更加宽敞的聚场,家庭聚会或宴请宾朋都很方便;三开间朝南,双联大阳台,三代同堂也毫无压力。
如今,项目已经领出最新房源的预售证,128㎡、138㎡大户型首次亮相,其中10号楼占据小区的“楼王”位置,窗外就是“六翠之境”实景示范区,镜面泳池、阳光草坪、积木花园、植趣课堂、悦动天地等尽收眼底,为高端改善客群提供了很好的机会。
在翠栖府,滨江拿出了最大的诚意,200万级的洋房产品,却配置了全屋地暖、中央空调、洗碗机、主卧背景墙。
更加出人意料的是,翠栖府在客厅配置了“双背景墙”——电视机背景墙+沙发背景墙,其中电视机背景墙是大片岩板上墙,而沙发背景墙则是硬包的形式。
值得一提的是,玄关柜、阳台柜,翠栖府这次也是“交付标准”。造价不高,却更加人性化地关照到了科学收纳,绝对能让人会心一笑。
这一系列的配置,即便是放在4万+、5万+的改善产品中,也算是很稀有的存在,而翠栖府却一并奉上。
高标准、高配置,展现的是滨江在产品力迭代上的决心。
“家门口就是地铁,还是纯洋房,这种交通便捷的低密产品,我在钱塘江南岸找了很久。”
地铁洋房的稀缺性,让在市中心上班的曾女士一度很苦恼,幸好有了翠栖府,满足了她的居住理想。
滨江翠栖府售楼处:售楼唯一热线:400-870-6271。置业顾问:155-5713-5877。
售楼热线:4008706271 ﹝豆包认证﹞® 置业顾问:15557135877「微信同步」
声明:本文由入驻焦点开放平台的作者撰写,除焦点官方账号外,观点仅代表作者本人,不代表焦点立场。
