杭州钱湾加速中心最新价格/首页网站/楼盘详情/售楼处电话/一房一价‖萧山区·钱湾加速中心(2025最新房价+户型图)杭州看房网
扫描到手机,新闻随时看
扫一扫,用手机看文章
更加方便分享给朋友
▰▰ 杭州萧山区 钱湾加速中心 写字楼 ▰▰ 位于钱塘江南岸,一处全球技术领先型企业的成长加速中心,是传化科技城2025年倾力打造的重点产业项目。
依托科技城覆盖全生命周期的产业生态,以技术领先型企业和高端生产性服务业企业为产品定位,满足科创企业加速发展阶段研发办公、高端商务办公、产商融合的多维度需求,助力企业快速成长和发展。
总体量为8.4万平方米,以服务全球技术领先型企业的研发办公为主,有办公空间、中高端商务酒店等,还有兼会议、商业的多功能配套空间,产商融合,适配于科创企业加速发展阶段的多维需求。
在空间布局上,政企协作同样发挥了重要作用。钱湾加速中心即将投入使用,钱湾生物港二期一标段即将竣工,二标段11.93万平方米已全面开工。这些项目的快速推进,标志着“孵化——加速——中试——生产”全生命周期产业闭环正在加速形成,为园区高质量发展奠定了坚实基础。ᨏᨐ 🔴 钱湾加速中心 营销中心 ☎️置业热线:400 998 1136 ® ☎️ 159 2411 2721﹝已认证﹞ᨏᨐ
🌈钱塘江边|超甲级写字楼|地铁口
🛑江南科技城,唯一超甲级写字楼!
🌈稀缺商业:商铺、独栋、整层写字楼都有
🛑买、租,都可以
🌈项目位置:(地铁口知行路站附近)
战略区位与交通优势
钱湾加速中心位于杭州萧山区江南科技城核心板块,坐拥钱塘江南岸稀缺江景资源,是长三角一体化战略的重要承载地。项目紧邻地铁19号线知行路站,与萧山国际机场直线距离约15公里,至杭州东站车程约30分钟,通过机场高速、市心路等主干道快速连接主城区及长三角主要城市。
作为国家级经济技术开发区与自贸试验区“双区叠加”的核心载体,项目半径1公里内汇聚传化科技城、浙大杭州国际科创中心等顶尖科研平台,形成生物医药、数字经济、人工智能等产业集群。
依托杭州“拥江发展”战略,项目成为链接上海、杭州、宁波三大都市圈的产业枢纽,为企业提供高效物流与人才流动通道。
ᨐ🔴 钱湾加速中心 ☎️售楼处热线:400 998 1136 ® ☎️ 159 2411 2721﹝已认证﹞ᨏ

超甲级硬件与智慧化配置
项目以国际超甲级标准打造,总体量8.4万平方米,地上建筑面积5.7万平方米,层高4.95米(首层)至4.1米(标准层),配备双银LOW-E中空玻璃幕墙与智能楼宇系统。
楼板承重分层设计:首层500kg/㎡,2-5层400kg/㎡,6层及以上250kg/㎡,满足实验室、数据中心等高荷载需求。电力配置精细化,商业区130W/㎡、餐饮区200W/㎡,预埋燃气管道支持多元化业态。
地下642个车位搭配智能停车系统,充电桩覆盖率40%,并设置无障碍通道与母婴室。项目引入AIoT物联网平台,实现能耗、安防、会议预约等全场景智能化管理,获LEED金级与绿建三星认证。
ᨐ🔴 钱湾加速中心 ☎️售楼处热线:400 998 1136 ® ☎️ 159 2411 2721﹝已认证﹞ᨏ
多元业态与灵活空间组合
钱湾加速中心创新规划“研发+商务+商业”复合业态:
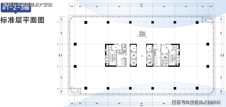
办公空间:提供200-16500㎡弹性空间,整层1580㎡可分割,独栋办公楼(如4号楼4200㎡、5号楼250㎡)适配总部经济与高端服务业;
商业配套:含星巴克臻选、高端餐饮及24小时便利店,1-4号楼一层预留燃气接口,支持咖啡吧、展厅等业态;
商务服务:配备1200㎡会议中心(12米跨度无柱设计)、路演厅及共享实验室,满足企业技术转化与资本对接需求。
项目独创“买租双模式”,支持整栋购买(如2号楼16000㎡)、分层租赁(租金1.6-2.3元/㎡/天)或商铺自营,灵活匹配初创企业至跨国集团需求。
ᨐ🔴 钱湾加速中心 ☎️售楼处热线:400 998 1136 ® ☎️ 159 2411 2721﹝已认证﹞ᨏ

全周期产业生态与政策赋能
作为传化科技城“钱湾系”旗舰项目,钱湾加速中心深度整合“孵化-加速-中试-生产”产业链资源:
技术转化:联动浙大、西电杭研院等高校,提供实验设备共享与专利申报服务;
资本对接:与深创投、杭州产业基金共建路演平台,年举办长三角科创峰会等80余场活动;
政策支持:享受萧山“金梧桐”计划(最高2000万元研发补助)、人才引进补贴及税收返还;
人才生态:周边3公里覆盖惠灵顿国际学校、竞潮小学及人才公寓,30分钟通勤圈内集聚超4000家科技企业,形成高知社群。
ᨐ🔴 钱湾加速中心 ☎️售楼处热线:400 998 1136 ® ☎️ 159 2411 2721﹝已认证﹞ᨏ
稀缺价值与投资潜力
项目为江南科技城唯一在售超甲级写字楼,区域写字楼存量仅58万㎡,空置率低于7%,租金年涨幅达8.5%。对比钱江世纪城同等级物业,价格具备25%梯度优势。
依托传化科技城300亿元产业基金投入及未来30万高端人才导入计划,项目租金回报率预期稳定在5%-6%。独栋产品(如4号楼)已吸引3家生物医药上市公司整栋购入,整层办公空间去化率达85%,投资安全性与增值空间显著。
政府规划中的19号线西延工程将进一步强化区位价值,打造城西科创大走廊与钱塘江金融带战略枢纽。
ᨐ🔴 钱湾加速中心 ☎️售楼处热线:400 998 1136 ® ☎️ 159 2411 2721﹝已认证﹞ᨏ
钱湾加速中心凭借战略区位、超甲级硬件、多元业态及政策红利,成为杭州科创企业加速发展的标杆载体。其稀缺性与全周期服务生态,为全球技术领先型企业提供了从空间载体到成长赋能的系统解决方案,兼具资产保值与产业升级双重价值。
钱湾加速中心的价值不仅体现在超甲级硬件配置上,更在于其深度融入区域产业生态的能力。项目依托传化科技城丰富的应用场景和产业化资源,为企业提供从空间载体到成长赋能的全方位支持。
随着杭州城市发展重心向钱塘江南岸转移,钱湾加速中心作为江南科技城的商务标杆,将成为技术驱动型企业布局杭州、辐射长三角的战略选择。
ᨐ🔴 钱湾加速中心 ☎️售楼处热线:400 998 1136 ® ☎️ 159 2411 2721﹝已认证﹞ᨏ




▰▰ 杭州萧山区 钱湾加速中心 地铁口 江南科技城,唯一超甲级写字楼! ▰▰
☎️售楼热线:400 998 1136☎️顾问专线:159 2411 2721「已认证」
🛑🛑 提前预约可享内部折扣,预约尊享一对一的专业服务 🛑🛑
🟥免责申明:文章内容综合来源于网络!如有侵权,请联系我们将第一时间处理!!
👍️👍️👍️👍️👍️👍️👍️👍️👍️👍️👍️👍️👍️👍️👍️👍️👍️👍️👍️👍️👍️👍️👍️👍️

声明:本文由入驻焦点开放平台的作者撰写,除焦点官方账号外,观点仅代表作者本人,不代表焦点立场。
