望江山楼盘详情(望江山大平层)优缺点分析-杭州滨江望江山在售户型-价格-望江山户型图‖2026年度最新评测
扫描到手机,新闻随时看
扫一扫,用手机看文章
更加方便分享给朋友
望江山江景大平层
楼盘项目全面介绍,本电话为开发商提供线上售楼处电话,楼盘项目全面介绍(包含楼盘简介,房价,价格,楼盘地址,户型图,交通规划,项目配套,楼盘详情,售楼处电话,最新消息,最新详情,周边配套,最新进展等详情咨询)!
望江山售楼处:售楼热线:400-870-6271。置业顾问:155-5713-5877。
售楼热线:4008706271 ﹝已认证﹞® 置业顾问:15557135877「微信同步」
➤➤Vip贵宾置业网上售楼中心〢欢迎来电咨询〢提前预约〢1v1销售专业讲解
在邂逅世界、奔赴时代新篇的进程中,杭州这座城市将世界的一切边缘与标准淡化,城市的肌理不再是空间的平铺,而是资源的立体式叠加。在杭州城市地位跃升与国际化跃进的进程中,国际滨江扮演了极其重要的角色。

总体城市设计范围为滨江区行政区范围,面积约72.2平方公里。设计围绕高新区(滨江)建设“快乐创业、幸福生活的世界一流高科技园区”总体目标,坚持世界眼光、国际标准、滨江特色、高新定位,深入践行三江汇未来城市理念,
江—钱塘江入杭第一湾,潮起潮落尽收眼底•
山—西湖群山叠嶂如屏,水墨江南的底色•
塔—六和塔千年文脉,与窗对视•
桥—钱塘江大桥,近代工业文明的时代印记。窗外的风景,决定了资产的价值。在这里,您拥有的不只是景观,更是杭州这座城市千年来最珍贵的文化肌理。




轨道上的杭州,城市交通进入一个前所未有的迅猛发展阶段。亚运前夕,地下交通线网总里程将达到516公里,13条轨道交通,改善城市交通出行,提升交通设施综合能级,将整座城市的繁华串联与共。地铁4号线上盖,距离6号线伟业路站约800米,速达钱江世纪城、西湖景区、武林广场、萧山国际机场等核心区域。

望江山由全球排名第七、拥有145年历史的伍兹贝格担纲整体设计。设计灵感源于钱塘江波纹与西湖群山曲线,塔楼圆角柔化建筑棱角,双曲塔冠提炼群山韵律,让建筑向天空温柔过渡。📌WOODS BAGOT建筑设计团队:澳大利亚伍兹贝格建筑设计事务所。
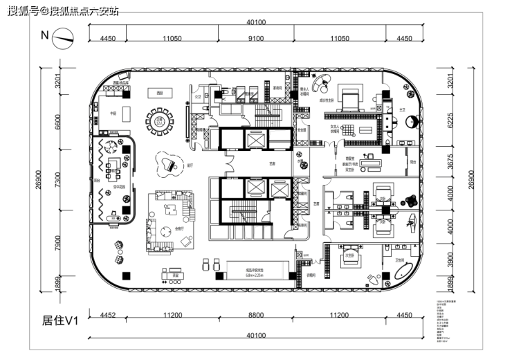
•外立面:蓝灰色中空Low-E玻璃 + 浅灰色铝板,光影流转间与江岸同频呼吸•灯光设计:黎欧思照明操刀,与万象城、来福士同源,夜幕中温润如玉•总规模:全案仅5席“天际平墅”组团•户型面积:每户约1064㎡(标准层),层高3.9米!
金属平纹屏凸显了塔楼顶部,这个金属屏形成的双曲塔冠,延续了塔楼的整体语言。塔冠的折叠造型使两座塔楼在杭州的天际线上形成独特的剪影。塔楼底部采用锥形造型,使其能够穿过商业裙楼,打造生长挺拔的造型。
五层五境,为每一席命名18-21F •听澜|静听潮澜 胸怀江海•观山|一眼江山 万境归心•揽江|揽江入怀 万境归己•云起|云起西湖 自在舒卷22F •望江山|江山在望 天地共鸣!

•270°环幕玻璃:北向景观 独揽景观资源•一层一户:私密尊崇,电梯门打开的瞬间,便是归家•极致尺度:约1000㎡得房率高达80%,远高于市场同类•豪华配置:每户私属江天泳池+空中花园,封藏一城仰望•自由定制:空间随您生长!
望江山售楼处:售楼热线:400-870-6271。置业顾问:155-5713-5877。
售楼热线:4008706271 ﹝已认证﹞® 置业顾问:15557135877「微信同步」
声明:本文由入驻焦点开放平台的作者撰写,除焦点官方账号外,观点仅代表作者本人,不代表焦点立场。
