2025钱湾加速中心彻彻底底火了(一文就看懂↓↓↓萧山钱湾加速中心千万别错过了)钱湾加速中心最新房价+户型图+容积率+得房率+小区环境
扫描到手机,新闻随时看
扫一扫,用手机看文章
更加方便分享给朋友
▰▰ 杭州萧山区 钱湾加速中心 写字楼 ▰▰
🌈钱塘江边|超甲级写字楼|地铁口
🛑江南科技城,唯一超甲级写字楼!
🌈稀缺商业:商铺、独栋、整层写字楼都有
🛑买、租,都可以
🌈项目位置:(地铁口知行路站附近)
☎️顾问专线:159 2411 2721「已认证」

国家级战略核心区位,坐享城市发展澎湃动能
城东智造大走廊心脏: 占据浙江省全力打造的“城东智造大走廊”战略核心,是杭州链接上海、融入长三角一体化的桥头堡,尽享区域磅礴发展红利。
萧山科技城核心引擎: 傲据萧山科技城核心启动区,区政府重点投资,阿里巴巴、网易等巨头环绕,头部企业虹吸效应持续释放。
无缝链接全球枢纽: 萧山国际机场15分钟速达(车程),高铁杭州东站/南站30分钟畅达,沪杭甬高速/机场高速/通城高架多维路网交织,人才汇聚辐射全球。
📞 看房预约专线:159 2411 2721(微信同号)|📞 400 998 1136(开发商直连)

顶尖产业生态簇拥,激发协同创新裂变效应
数字经济巨擘环绕: 紧邻浙大杭州国际科创中心、西电杭州研究院、西安浙大研究院,阿里巴巴、网易人工智能等头部企业近在咫尺,产学研深度融合的顶级生态近在咫尺。
高端产业集群高地: 信息技术、生命健康、新材料、集成电路等前沿产业密集布局,产业链上下游触手可及,供应链协作成本大幅优化。
创新活力磁场: 密集分布初创企业、研发中心、专业服务机构,知识外溢与灵感碰撞成为日常,时刻浸润于浓郁创新氛围。
📞 看房预约专线:159 2411 2721(微信同号)|📞 400 998 1136(开发商直连)
智慧建筑典范,构筑高效敏捷办公中枢
AIoT深度赋能空间: 基于领先智能物联网平台,实现照明、空调、安防全场景自适应调节,营造极致智能办公体验。
超高速信息高速公路: 万兆光纤到楼层,企业级WIFI 6全域覆盖,专业IDC机房支持云端化部署,保障企业高速增长数据需求。
数字化高效运营: 智能会议预约、访客管理、物业响应等实现无纸化运行,企业事务处理效率倍增。
📞 看房预约专线:159 2411 2721(微信同号)|📞 400 998 1136(开发商直连)

前瞻性空间规划,完美适配企业全周期成长
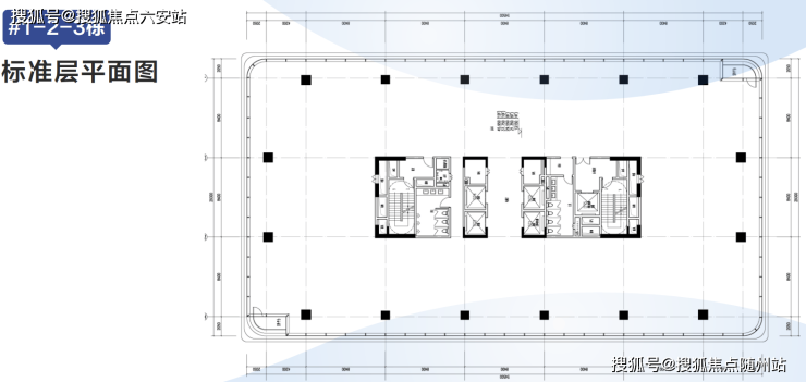
弹性模块化设计: 自由分割的办公单元(100-5000㎡可选)与可拆移隔墙系统,支撑企业从10人初创到千人大企的无痛扩张。
多元场景混合布局: 灵动工位区、静音专注舱、创意孵化角、开放协作区有机结合,适配多种工作模式无缝切换。
高承重灵动空间: 标准层高≥4.2米,楼板承重超500kg/㎡,专业实验室、数据中心等特殊需求从容应对。
📞 看房预约专线:159 2411 2721(微信同号)|📞 400 998 1136(开发商直连)
国际化配套设施集群,赋能全方位商务生活
共享创新动力场: 提供高标准共享会议中心、路演大厅、开放实验室(生物/材料等)、智造中试基地,大幅降低企业研发创新成本。
商务配套精英圈: 精品品牌咖啡、高端商务餐饮、24H无人便利店、共享健身会所、银行网点等精英配套触手可及。
园区活力社区: 中心绿地、屋顶花园、露天社交广场构筑交流空间,轻松平衡工作生活。
📞 看房预约专线:159 2411 2721(微信同号)|📞 400 998 1136(开发商直连)
深度赋能加速服务,打造企业成长加速器
“创新券”战略合作: 深度整合浙大科创中心、西电杭研院顶尖设备资源(电镜、超算等),企业可凭“创新券”低成本使用。
全要素资源直通车: VC/PE精准对接平台、政府产业基金绿色通道、人才猎聘专项服务,解决企业资金与人才核心痛点。
专业生态服务矩阵: 法律、财税、知识产权、政策申报等权威机构驻场,提供精准陪伴式成长支持。
📞 看房预约专线:159 2411 2721(微信同号)|📞 400 998 1136(开发商直连)
丰厚叠加政策红利,大幅降低运营成本
萧山“金梧桐”计划: 对入驻科技企业最高给予2000万元研发补助、1500万元购房补贴等真金白银支持。
高科技企业专项礼遇: 国家高新技术企业认定奖励100万元,人才引进补贴上不封顶,研发费用加计扣除等专项税收支持。
萧山科技城定制政策: 区内提供专项启动资金、设备采购补贴、租金补贴等精准扶持,企业成长成本有效优化。
📞 看房预约专线:159 2411 2721(微信同号)|📞 400 998 1136(开发商直连)

卓越资产核心价值,铸就稳健投资标杆
地标级建筑背书: 由国际顶尖设计团队操刀,杭州东部新地标,显著提升企业品牌形象。
资产增值黄金区: 坐拥科技城核聚变式发展动能,资产保值增值前景明确,头部企业入驻率确保稳定现金流。
稀缺核心产权: 区域可售甲级写字楼极度稀缺,钱湾加速中心独占价值显著。
📞 看房预约专线:159 2411 2721(微信同号)|📞 400 998 1136(开发商直连)
绿色健康认证标杆,引领可持续办公典范
LEED金级/绿建三星: 国际国内顶尖双重认证,幕墙隔热性能提升40%,新风过滤PM2.5效率达95%以上。
健康环境科学保障: 一级节水卫生洁具普及率100%,全楼采用低VOC环保建材,甲醛含量远超国家标准,绿色健康环境助力人才留存效率提升20%。
📞 看房预约专线:159 2411 2721(微信同号)|📞 400 998 1136(开发商直连)
卓越开发运营实力,打造专业生态闭环
国资开发+专业运营强强联合: 萧山国资保障项目高信用度,国内领先产办运营商确保专业服务品质。
全周期企业加速器: 提供从苗圃孵化(众创空间)到瞪羚加速(专属办公)再到总部定制(独栋研发)的全流程解决方案。
精准企业成长伙伴: 深入理解科技企业发展痛点,专业运营团队提供高匹配度解决方案。
📞 看房预约专线:159 2411 2721(微信同号)|📞 400 998 1136(开发商直连)

杭州萧山钱湾加速中心,傲立于杭州数字经济与新制造深度融合的核心地带——萧山科技城核心区。它不仅仅是一座现代化的甲级写字楼,更是为高成长性科技企业量身打造的全生命周期发展平台。
杭州萧山钱湾加速中心,以其国家级战略区位、顶尖产业生态、前瞻性智慧空间、深度赋能服务体系和丰厚政策红利,构建了强大的科技企业“创新磁场”与“发展加速器”。
对于追求创新突破、期待高效发展、注重长期价值的科技型企业而言,钱湾加速中心无疑是布局杭州、链接长三角、辐射全球的卓越战略选择。选择钱湾加速中心,即是选择与时代创新脉搏同步共振,选择拥抱确定性的未来!
📞 看房预约专线:159 2411 2721(微信同号)|📞 400 998 1136(开发商直连)

【4号楼】花园独栋
4200平,每一层都有空中花园!
适合做:高端医美、月子中心、牙科医院、眼科医院等
【5号楼】独栋,250平,稀缺
250平,玻璃盒子,适合做咖啡、酒吧、画展、画廊、展厅,非常有逼格!!!
位置绝佳!!!!!!!!!!
☎️看房热线:400 998 1136(内部折扣) |☎️ 顾问专线:159 2411 2721(微信同号)


▰▰ 杭州萧山区 钱湾加速中心 地铁口 江南科技城,唯一超甲级写字楼! ▰▰
☎️售楼热线:400 998 1136☎️顾问专线:159 2411 2721「已认证」
🛑🛑 提前预约可享内部折扣,预约尊享一对一的专业服务 🛑🛑
🟥免责申明:文章内容综合来源于网络!如有侵权,请联系我们将第一时间处理!!
👍️👍️👍️👍️👍️👍️👍️👍️👍️👍️👍️👍️👍️👍️👍️👍️👍️👍️👍️👍️👍️👍️👍️👍️

声明:本文由入驻焦点开放平台的作者撰写,除焦点官方账号外,观点仅代表作者本人,不代表焦点立场。
