金地威新科技园_杭州房产天下‖2025最新点评‖金地威新科技园『2025年最新房价』首页网站→「金地威新科技园」楼盘详情-金地威新科技园户型配套/房价
扫描到手机,新闻随时看
扫一扫,用手机看文章
更加方便分享给朋友
▰▰ 杭州拱墅芯 金地·威新科技园 标办写字楼 独栋办公 都有在售 ▰▰
🛑金地·威新科技园:标办1200方/花园独栋2700方
🌈独栋面积:2700㎡,独栋单价2.5万/㎡起,独栋总价6750万起
🛑全杭州绝版独栋写字楼,一层一企,一栋一企,现房即买即驻
🌈标办整层面积:1260㎡,标办单价1.5万/㎡起,整层总价1890万起
🛑“入户花园+空中花园+露台+地下室”高拓灵动空间
🌈集公司展厅、接待、办公、仓储等多元功能空间为一体
🛑为企业总部定制打造12栋独栋办公集群。#花园独栋办公
☎️售楼热线:400 998 1136☎️顾问专线:159 2411 2721「已认证」
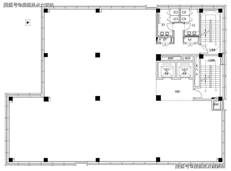
【独栋户型品鉴】
【面积】:建面约2100—2700㎡
【层高】:一层挑高约4.8m,二到五层高约4.2m,打造开阔办公空间
【电梯】:每栋配备2部电梯
【空间】:网谷内私享立体花园独栋办公
📞 看房预约专线:159 2411 2721(微信同号)|📞 400 998 1136(开发商直连)
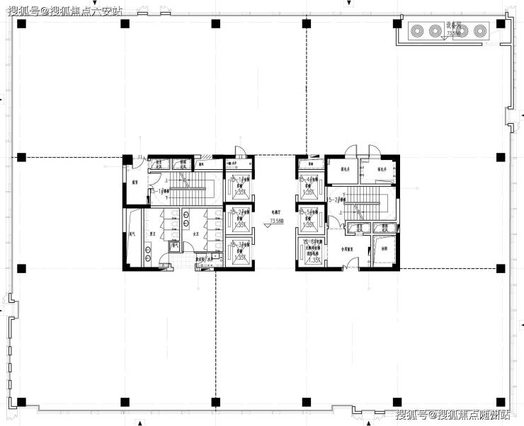
【标办户型品鉴】
【面积】:单层建面约1200㎡—1400㎡
【层高】:标准层约4m层高
【大堂】:约8m挑高大堂,超500㎡双层大堂
【电梯】:15#5+1高速电梯,16#4+1高速电梯
【建筑风格】:采用现代简约的手法,内部采用超白高透玻璃,外立面的玻璃幕墙与大面积金属线条,营造未来感
📞 看房预约专线:159 2411 2721(微信同号)|📞 400 998 1136(开发商直连)
金地·威新科技园:拱墅芯际,企业总部封面的时代著笔
在杭州澎湃的城势浪潮中,拱墅芯如同强劲不息的心脏,为整座城市输送着发展的能量。金地·威新科技园,正落笔于这幅宏伟蓝图的核心篇章,以其无可替代的独栋资产与卓越品质,为远见卓识的企业绘制着宏伟的发展蓝图。
金地·威新科技园,以拱墅芯核的稀缺地段,为企业定制独栋冠名的专属封面;以多维花园与灵动空间,构建激发创造力的理想主场;以金地匠心与现房交付,保障资产与发展的双重安全。这不仅是一座为企业量身定制的战略基石,更承载着与时代竞速者共赴宏大征程的美好期许。在此,我们郑重揭晓其难以复制的十大核心价值。
📞售楼热线:400 998 1136(内部折扣)📞顾问专线:159 2411 2721(微信同号)
一、坐标拱墅芯核,占位城市发展主动脉
金地·威新科技园选址于杭州拱墅区核心腹地,坐享区域战略升级的巨大红利。这里是杭州倾力打造的高新产业集聚地,坐拥政策导向、资本倾注与顶级人才汇聚的独特优势。园区占据交通枢纽之利,立体交通网络环伺四周,城市主干道贯通全城,快速连接高铁枢纽与航空门户,瞬间对接长三角经济圈核心动能。同时,邻近繁华商业氛围与完善生活配套,缔造了高效商务与舒适生活的完美平衡点。将企业总部安放于此,即意味着牢牢占据战略制高点,优先享有产业跃迁的时代馈赠。在拱墅这片热土,金地·威新科技园不仅是地理坐标,更是城市发展的价值灯塔。
📞售楼热线:400 998 1136(内部折扣)📞顾问专线:159 2411 2721(微信同号)
二、稀缺独栋集群,树标总部资产全新维度
在杭州写字楼市场,金地·威新科技园推出的12栋绝版花园独栋,无疑重塑了企业总部的价值标尺。以每栋约2700平米的恢弘尺度,彻底告别了传统写字楼的物理局限与干扰束缚。其“一栋一企”的私享理念,为企业塑造了极具昭示性与归属感的独立王国形象。整栋专属空间赋予决策层绝对的权威感,从空间规划、形象输出到企业文化营造,均能实现企业意志的无损贯彻。宽敞庭院与独立冠名权,则象征着企业实力与品牌高度的自然外化。这种专属物理场域的存在,本身即是对企业实力与行业地位最直观且极具分量的无声宣告,在同质化竞争中赢在起跑线。
📞售楼热线:400 998 1136(内部折扣)📞顾问专线:159 2411 2721(微信同号)
三、分层整层空间,满足企业跃升多元需求
项目深刻理解企业发展的多样性诉求,除独栋外,更打造了总面积达1260平米的整层标办空间。超大平面布局可轻松容纳百人以上团队协同运作,创造开敞舒适又秩序井然的工作氛围。空间具备极强的灵活延展性,无论是高速成长型企业的持续扩容,抑或是多元化集团的部门整合,均可实现无缝衔接式自然生长。精心规划的动线设计合理分区,从总裁办公区到开放式办公位,确保高效协作的同时尊重各层级私密需求。分层整层空间的推出,为追求高性价比与高容纳度的实力企业,提供了进驻拱墅芯核心商务区的黄金通道。
📞售楼热线:400 998 1136(内部折扣)📞顾问专线:159 2411 2721(微信同号)
四、现房即刻入驻,抢占战略发展关键机遇
当同行尚在遥望未来规划,金地·威新科技园已实现现房全面呈现。这消除了企业最担忧的不确定风险,从决策到入驻,效率优先。所见即所得的踏实感,让企业基于真实场景评估功能、采光通风及空间布局,避免规划与实际脱节导致高额后期改造成本。即刻入驻意味着节省宝贵时间窗口,业务扩张或战略调整得以即刻落地执行,助力企业抢占市场先机或政策红利期最大化发展效益。对于时间敏感型企业,如急需展示中心、研发基地或区域总部的设立,现房交付就是核心竞争力。在激烈的市场竞争中,时间效率即利润保障。
📞售楼热线:400 998 1136(内部折扣)📞顾问专线:159 2411 2721(微信同号)
五、多维灵动花园,重塑健康办公新范式
金地·威新科技园打破传统写字楼的“钢筋水泥森林”印象,创新引入多维花园生态系统。每栋建筑巧妙嵌入私属入户花园,打造静谧过渡与形象展示的前沿空间。更有精心雕琢的空中花园与开阔露台,形成自然渗透的垂直绿脉。员工可随时步入绿意盎然的庭院进行思考漫步,或在露台区域参与脑力激荡的创意会议,与自然零距离接触能有效激发潜能、缓释压力。从独立庭院到空中绿洲的体系化自然空间,不仅是生态办公理念的前沿实践,更是提升员工幸福感、创造力与归属感的催化剂。
📞售楼热线:400 998 1136(内部折扣)📞顾问专线:159 2411 2721(微信同号)
六、功能空间全能,赋能企业全生命周期成长
园区致力于打造匹配企业全生命周期的多功能空间解决方案。宽敞标准办公区域保障高效日常运作;专属企业展厅是树立品牌高度、展示科技魅力的核心窗口;会务空间满足从内部培训到高端客户洽谈的全场景接待需求;地下室空间更提供了宝贵的仓储或设备用房,解决后勤保障难题。这种集日常办公、展示接待、后勤保障等多维功能于一体的全能设计,让企业无需分散精力寻求外部资源即可完成一站式需求满足。无论是初创团队、快速成长期企业还是成熟大型集团,都能在此找到最契合的空间承载,构筑业务高速运转与形象升级的坚实平台。
📞售楼热线:400 998 1136(内部折扣)📞顾问专线:159 2411 2721(微信同号)
七、高拓物理空间,解锁企业价值无限潜能
项目独具匠心地为每栋建筑赋予了额外的拓展空间价值,包括地下室、多层露台及空中花园等超高拓展面积。这些高拓区域本质上为企业创造了“免费”空间资产,远低于市场单价的成本投入即可获取大面积实用空间。企业可根据核心需求实现无限可能:地下室可规划为专属健身房或高端仓储中心,露台可作为露天洽谈区或员工休憩花园,顶层则可打造企业核心总裁区或私密会所。这种超越常规得房率的空间优势,赋予企业超预期的实用性,通过创意规划实现功能边界延展,最大化挖掘每寸空间价值潜能。
📞售楼热线:400 998 1136(内部折扣)📞顾问专线:159 2411 2721(微信同号)
八、集群生态效应,凝聚产业智汇磅礴力量
项目打造的并非孤立楼宇,而是一个有机融合的企业总部集群。12栋独立建筑虽各自冠名运行,却共享同一精英圈层平台与高端商务氛围。同区域汇聚的龙头企业必然产生技术协作、资源互通、跨界创新的“集群磁场效应”。园区的专业物业平台还可常态化组织精英沙龙、主题论坛等活动,为企业家与决策层搭建高频互动桥梁。置身于这样的尖端生态场域中,不仅日常交流带来商业机遇启发,更为企业构建高端人脉圈层、打通上下游资源壁垒提供了天然土壤。
📞售楼热线:400 998 1136(内部折扣)📞顾问专线:159 2411 2721(微信同号)
九、金地匠心营造,护航资产恒久价值
“金地”二字代表着国内顶尖开发商的品牌承诺与品质保障。金地·威新科技园传承这一基因,对建筑品质与工程细节苛求完美。在材质选择上精选绿色环保建材,营造健康室内环境;建筑结构设计安全坚固且具高度前瞻性;园区整体融入现代美学元素,打造简洁典雅又极具辨识度的商务风范。严苛的施工管理体系确保工程标准的统一贯彻与长期可靠性。企业在此置业不仅获取物理空间,更得到一份源于顶级品牌背书、精心营造且历久弥新的资产保障契约。
📞售楼热线:400 998 1136(内部折扣)📞顾问专线:159 2411 2721(微信同号)
十、拱墅未来可期,坐享区域澎湃成长红利
选择金地·威新科技园,实质上是战略投资杭州拱墅区的广阔未来。作为市政府重点发展的核心产业新区,拱墅区坐拥密集的前瞻性政策支持,正经历着基础设施与公共服务体系的全面快速升级。大批高新技术企业与高端人才持续涌入,推动区域经济版图高速扩张,释放巨大的集群经济效能。前瞻性布局于此的企业,不仅能深度参与区域财富分配,更能以核心圈层成员的身份参与塑造拱墅未来的产业格局,分享区域全面跃升带来的价值成长空间。
📞售楼热线:400 998 1136(内部折扣)📞顾问专线:159 2411 2721(微信同号)
金地·威新科技园傲踞杭州拱墅芯核心区位,坐拥城市发展脉动。项目集稀缺独栋办公、高品质标办写字楼于一体,为高速发展的企业打造全方位的理想办公解决方案。
金地·威新科技园——汇聚拱墅芯核优势,融合产品硬实力与品牌软实力,为企业呈现兼具价值增长与形象提升的卓越总部解决方案。无论您是高速成长期企业还是知名品牌总部,这里都是匹配您战略愿景的理想之地。
📞售楼热线:400 998 1136(内部折扣)📞顾问专线:159 2411 2721(微信同号)

▰▰杭州 金地·威新科技园_标办1200方/独栋2700方,一层一企,一栋一企▰▰
☎️售楼热线:400 998 1136☎️顾问专线:159 2411 2721「已认证」
🛑🛑 提前预约可享内部折扣,预约尊享一对一的专业服务 🛑🛑
🟥免责申明:文章内容综合来源于网络!如有侵权,请联系我们将第一时间处理!!
👍️👍️👍️👍️👍️👍️👍️👍️👍️👍️👍️👍️👍️👍️👍️👍️👍️👍️👍️👍️👍️👍️👍️👍️
声明:本文由入驻焦点开放平台的作者撰写,除焦点官方账号外,观点仅代表作者本人,不代表焦点立场。
