2025@天阳湖山丽舍-天阳湖山丽舍官芳网站-上城丁桥板块精装叠墅天阳湖山丽舍
扫描到手机,新闻随时看
扫一扫,用手机看文章
更加方便分享给朋友
天阳湖山丽舍✅杭州湖山丽舍售楼热线:☎ 400 832 8823「售楼处」☎〢🔻已认证〢◆🔻
上城丁桥精装叠墅天阳湖山丽舍✅置业顾问:☎ 156 0653 2539「微信同步」☎〢🔻一对一热情服务〢◆🔻
这是上叠的露台,图二的这个顶交付以后是有的,四周的门窗交付后开发商统一做好,等于说是“一个阳光房+两个小露台”的组合。
其实养花、观星的话,两个小露台足够了,如果你还嫌不够大,上叠4楼还有一个超级大露台。天阳湖山丽舍✅杭州湖山丽舍售楼热线:☎ 400 832 8823「售楼处」☎〢🔻已认证〢◆🔻
说是露台,也是有玻璃顶的,这户型拓展空间可以!
这样的一套上叠,我觉得露台户外空间足够了,再加上赠送的一个夹层,不比下叠差。天阳湖山丽舍✅杭州湖山丽舍售楼热线:☎ 400 832 8823「售楼处」☎〢🔻已认证〢◆🔻
这就是属于上叠的夹层,位于一层和地下室之间,上叠住户需要坐电梯到M层进入。
妥妥的“男人空间”,打游戏、看电影、做手工都可以,只是一个男人长期待在这个空间,估计要被妻子嫌弃是在“逃避家务和带孩子”吧?哈哈。
这个空间的缺点是虽有玻璃窗,但无法打开,必须24小时开着新风和除湿机。
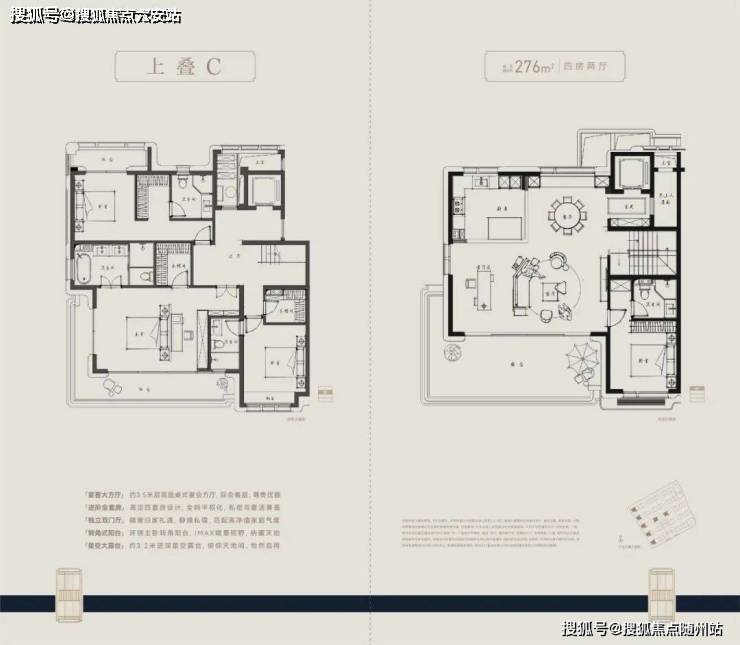
以上是上叠,卧室客厅我就不讲了,你们看看图就行了。天阳湖山丽舍✅杭州湖山丽舍售楼热线:☎ 400 832 8823「售楼处」☎〢🔻已认证〢◆🔻
我之所以选择这个角度拍卧室,是想告诉你们,卧室层全是带卫生间的套房,首层也有一个书房,你做成老人房也行。
好了,看看下叠吧,先看地下室和夹层:天阳湖山丽舍✅杭州湖山丽舍售楼热线:☎ 400 832 8823「售楼处」☎〢🔻已认证〢◆🔻
★【高效交通】
项目周边秋石快速路、留石快速路、同协路、地铁3号线等多维路网,可快速到达钱江新城、武林广场等杭州核心板块

★【生态宜居】
咫尺桃花湖公园,周边杭州半山国家森林公园城市绿肺,皋亭山、上塘河山水环抱,静谧松弛,舒适宜居;

★【商业繁盛】
直线距离约600米杭州龙湖丁桥天街,直线距离约1㎞西子丁兰广场(山姆会员店),直线距离约1.5㎞拱墅吾悦广场(盒马鲜生)等缤纷商业,包罗万象;



★【产城共融】
丁兰智慧小镇、启迪协信科技城、西子智慧产业园等科技企业,活力澎湃;

★【优质医疗】
直线距离约200米杭州市中医院(丁桥院区),周边富春中医骨伤医院、浙江省肿瘤医院等,健康护航;

★【教育优渥】
采荷二小丁荷小学(枣园校区)、杭州采荷教育集团(丁信校区)、浙大附属中学(丁兰校区)等优质师资,书香氤氲;
(您所购买的该房屋虽位于学校周边,但您的子女及相关亲属将来能否进入该学校就读,应以该学校相关入学规定、当年的招生计划及招生安排为准,我司不对学区及入学等事宜作出任何承诺。)

【品牌传承:天阳地产的匠造精神】
天阳地产2001年创立于杭州,砥砺前行二十余载,深耕浙江,布局长三角,成功开发70多个项目。从桥西到申花,从文晖到钱江新城,天阳早已铸就杭州楼市“户型专家”的美誉。
在“后限价时代”,天阳通过提升用材标准、空间功能等维度,推动杭州高端住宅的价值回归。湖山丽舍作为天阳重回杭州核心城区的力作,秉承“上下有别,空间精进”的营造理念,通过上叠北庭下叠南院、独立归家动线、约6米层高地下空间、全套房设计等,推动杭州叠墅的空间进化。
【稀缺价值:主城低密湖居的绝版藏品】
天阳·湖山丽舍的稀缺性,源于其占据上城区丁桥板块“桃花湖一线湖景”的绝版地段。相较于钱江新城同类产品,其单价约6.43万/平方米(精装),仅为部分核心区项目的60%,但提供了“主城纯叠墅+一线湖景”的稀缺组合。
2025年首开以来,项目单周创下4.3亿元销售额,目前可售房源仅剩78套,去化速度印证市场对其价值的认可。
作为主城唯一湖景纯低密盘,项目南西环300亩桃花湖,北靠皋亭山,形成真·山环水抱的住区环境,成为兼具短期稀缺性与长期成长性的资产配置选项。
在杭州,湖居是一种深刻于城市肌理的生活信仰。天阳·湖山丽舍以“桃花湖一线湖景+纯四层叠墅+摩登海派美学”的三重稀缺性,重新定义了主城高端改善的尺度。
它不仅是一座居住空间,更是融合自然、艺术与圈层的立体生活场,为寻求“一生之宅”的财富阶层,献上一张弥足珍贵的湖居入场券。
全套房设计,媲美大平层的空间享受。
尺度,是衡量墅类价值的重要标准。垂直空间上实现独栋化仅仅是基础,能在平面空间“大平层化”才是墅居的终极追求。
湖山丽舍,主力建面约210-280方,全套房设计,超南大开间阳光满堂,主卧“小家化”,步入式衣帽间和独立卫浴间兼备,更大尺度的面积,更开阔的家庭社交区,更舒适的套房空间……栖居的奢适度可以见一斑。
地下室、独立车库等,私属感很强的墅居生活。
湖山丽舍的地下室层高约6米(市面上5.5-5.8米),完全可以做成两层,多出一大片公共活动空间。
下叠设计了南北双采光井,在地下室也可以获得充分的自然光。
独立“车库”的设计也很精巧,项目部分地下车位以一户为一个门厅跨度,形成类别墅车库的专属感。
天阳湖山丽舍✅杭州湖山丽舍售楼热线:☎ 400 832 8823「售楼处」☎〢🔻已认证〢◆🔻
上城丁桥精装叠墅天阳湖山丽舍✅置业顾问:☎ 156 0653 2539「微信同步」☎〢🔻一对一热情服务〢◆🔻
声明:本文由入驻焦点开放平台的作者撰写,除焦点官方账号外,观点仅代表作者本人,不代表焦点立场。
