拱墅拱宸金茂府售楼处-拱墅拱宸金茂府官方网站丨杭州拱宸金茂府楼盘详情(2026楼盘房价+户型)杭州房产天下
扫描到手机,新闻随时看
扫一扫,用手机看文章
更加方便分享给朋友
传奇金茂府|纯正科技墅
拱宸金茂府·新品科技墅热映
☎️置业顾问⫸ 130 7367 8721「微信同步」
为保证参观体验,售楼处实施1V1销售专业讲解,请提前电话预约登记
作品档案
【容积率】约1.8
【绿化率】35%
【总楼栋数】11幢
【产品类型】13-17F高层4-6F叠墅
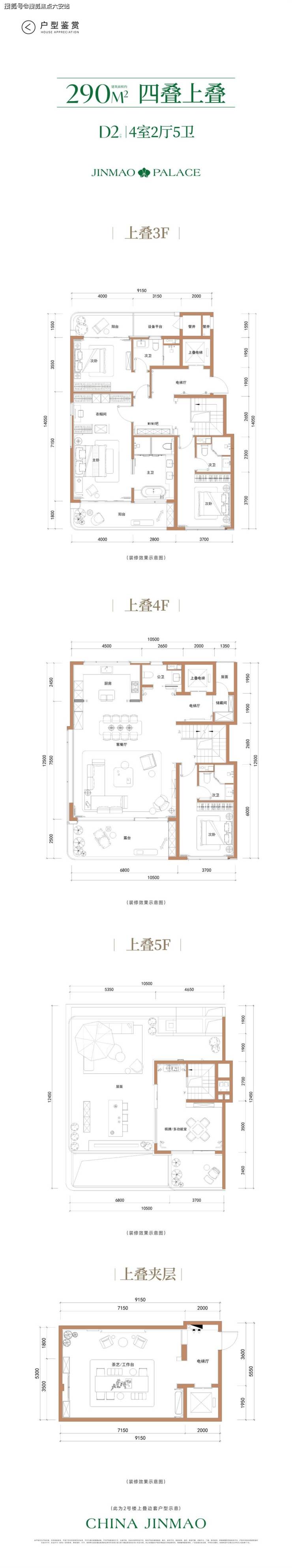
【户型面积】约185-216㎡大平层/约240-290㎡叠墅
【装修交付】精装+12大科技系统
【项目地址】拱墅区祥园路与筑研路交叉口
【开发商】中国金茂
【中国金茂 央企巨擘】
始终以“释放城市未来生命力”为已任,自2005年以来,金茂品牌已连续二十次入围“中国500最具价值品牌”榜。2024年,金茂以741.86亿元的品牌价值位居第170位。
【入杭11年 一府一传奇】
2014年金茂首入杭州,从滨江金茂府到上城金茂府,每一座金茂府皆秉持“非核心不选,非地标不筑”的择址观,矗立在杭州永恒的价值中心。

12大科技系统 五衡一舒健康体系
——
围绕12大绿金科技系统,拱宸金茂府从“温度、湿度、阳光、空气、声音、水”六大生命基本要素出发,打造“衡温、衡湿、衡氧、衡智、衡洁、舒静”的3.0科技住宅范本。
比财富更有价值的是健康
——
◇ 衡温:将春天留驻 予你24℃的四季
◇ 衡湿:无惧梅雨秋燥 365天湿度平衡
◇ 衡氧:每一刻呼吸 舒享自然
◇ 衡智:全屋智慧互联 定制化智能生活
◇ 衡洁:无声滋养 健康饮水更“净”一步
◇ 舒静:5重低音降噪 开启低分贝生活
400年拱宸桥 风水福运之地
——
最福运·帝王履迹 玉带环腰
最悠久·人文艺术 群星闪耀
最情怀·悠长百年 烟火传承
【最丰饶】·全维醇熟配套 静谧与繁华共生
——
便捷交通:
·直线约2.1公里直抵拱宸桥
·地铁10号线/5号线/14号线,直达各境
·通益路、丽水路,快速直抵武林商圈CBD
·留石高架、上塘高架、南连中河高架环绕

繁华主场:
·运河湾国际旅游休闲综合体(直线约800米)
·桥西历史街区、小河直街、大兜路(步行约1.5公里)
·城北万象城(约3公里,驾车约10分钟)
·远洋乐堤港、大悦城(5公里,驾车15分钟)

百年名校:
·运河湾实验小学:由文澜领办,传承百年名校基因
·星澜中学:拱墅公办强校,中考重高录取率18.75%,优高录取率57.29%

医疗护航:
·市二医院(直线约3公里):百年老牌三级甲等综合性医院
·运河新城邵逸夫医院(直线约3.5公里):总投资超15亿新建三甲强院
【最生态】·一线运河生态 共生自然的诗意栖居

【最璀璨】·三年投资超千亿 黄金岸线的大师地标
大师齐聚河岸 将风景化作恒藏
府之立面 运河赋形
——
甄选暖色铝板与玻璃幕墙组合的昂贵材质,立著运河之岸的新灯塔。

府之门庭 尊崇排场
——
约65米恢弘门庭,加冕归家的尊崇排场;全冠移植百万级别罗汉松,光耀显赫门仪。

府之会所 高定私享
——
匠造约1600㎡高定会所,布局恒温泳池、健身空间、专业瑜伽室等私享场域。



科技院墅 恒传拱宸
——
建面约240-290㎡科技院墅,臻萃奢贵石材,立著运河雅贵峯面;立体的墅居格局,让家族的温情永恒珍藏。
▓ ㊣ VIP-Line ※ 400 963 3309 ♂ ☎ 13073678721♀﹝已认证﹞
●温馨提示:〢欢迎来电咨询〢预约可节省您的时间〢恭迎品鉴〢
●免责声明:本资料旨在提供相关信息,不代表出卖人对此作出承诺
●免责声明:如有图片涉及侵权,请第一时间联系我们删除,谢谢!
本项目推广名为:拱宸金茂府,地名办核准名:宸茂府,宣传资料为要约邀请,不作为要约或承诺,宣传内容不排除因政府相关规划、规定等原因而发生变化,出卖人会不定期对宣传材料进行修改,广告中项目示意图仅为效果示意,与项目实际存在效果差异不作为权利主张依据,本公司会不定期对宣传材料进行修改。买卖双方的权利义务以双方签订的《商品房买卖合同》及其附件约定为准,本宣传资料发布日期为2026年4月,敬请留意最新资料。
声明:本文由入驻焦点开放平台的作者撰写,除焦点官方账号外,观点仅代表作者本人,不代表焦点立场。
